Высшая инженерная школа ESIEE-IT в коммуне Понтуаз
                Фотография © Charly Broyez / предоставлена агентством Metropolis
        Высшая инженерная школа ESIEE-IT в коммуне Понтуаз
                Фотография © Charly Broyez / предоставлена агентством Metropolis
        Высшая инженерная школа ESIEE-IT в коммуне Понтуаз
                Фотография © Charly Broyez / предоставлена агентством Metropolis
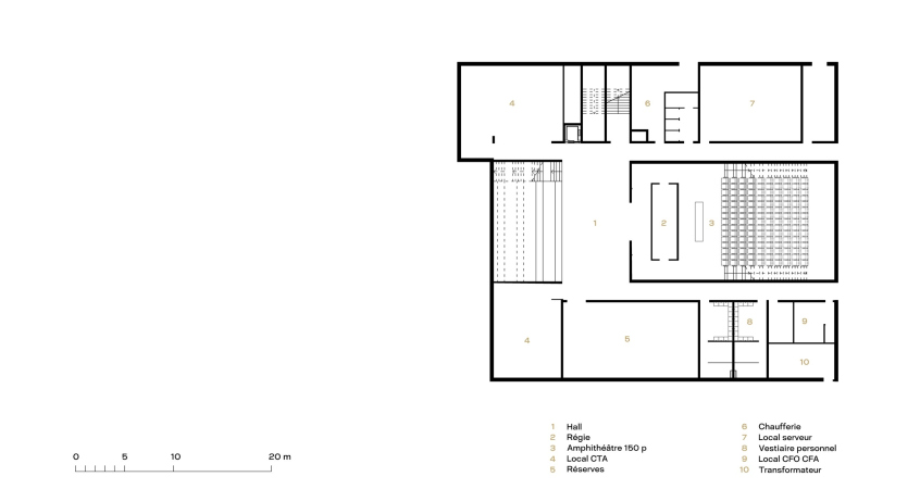
        Готовят здесь инженеров, программистов и специалистов в области информационных технологий. Компактный объем общей площадью всего 4714 м2 воспринимается как закрытый: от окружающего города, шумных улиц и назойливого солнца учебный процесс скрыт нейтральной оболочкой из металлических панелей. Но просторные общественные пространства и террасы, как бы вырезанные из прямоугольника здания, отделаны деревом, остеклены и полностью открыты. Они отвечают за связь с окружением и обеспечивают обилие естественного света внутри.
Высшая инженерная школа ESIEE-IT в коммуне Понтуаз
                Фотография © Charly Broyez / предоставлена агентством Metropolis
        Высшая инженерная школа ESIEE-IT в коммуне Понтуаз
                Фотография © Charly Broyez / предоставлена агентством Metropolis
        Высшая инженерная школа ESIEE-IT в коммуне Понтуаз
                Фотография © Charly Broyez / предоставлена агентством Metropolis
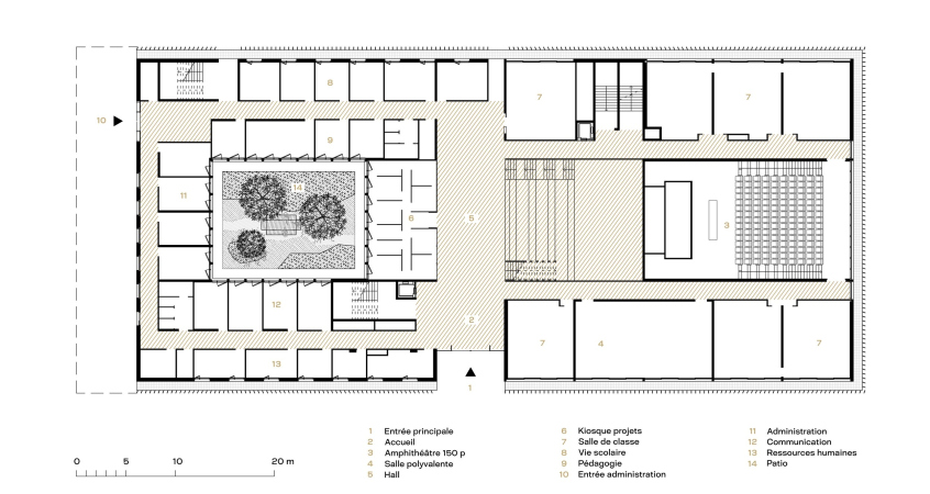
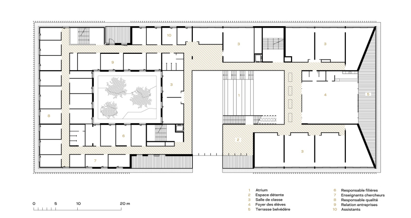
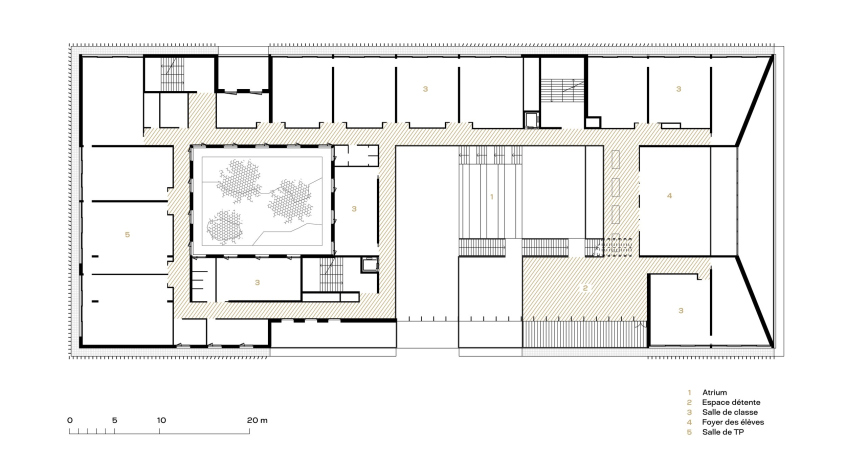
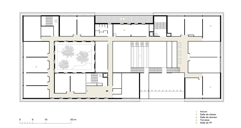
        Все административные помещения сгруппированы на первых двух этажах вокруг тихого и зеленого внутреннего двора. Два этажа выше – и все остальные площади занимают уже учебные аудитории. Главным пространством всего вуза стал большой остекленный атриум, куда классы выходят галереями, а общественные зоны – уступами террас. Легкая лестница соединяет все уровни, одновременно формируя дополнительные места для отдыха и общения.
Высшая инженерная школа ESIEE-IT в коммуне Понтуаз
                Фотография © Charly Broyez / предоставлена агентством Metropolis
        Высшая инженерная школа ESIEE-IT в коммуне Понтуаз
                Фотография © Charly Broyez / предоставлена агентством Metropolis
        Используя естественный перепад высот на участке, архитекторы создали отдельную углубленную зону, более камерную, но пространственно связанную с атриумом. Лестница туда также служит зоной коммуникации. В самом углублении размещена двухуровневая коробка большой аудитории на 150 человек, на крыше которой создано еще одно пространство с выходом на террасу. Отсюда открываются эффектные виды на церковь и старую часть города.
Высшая инженерная школа ESIEE-IT в коммуне Понтуаз
                Фотография © Charly Broyez / предоставлена агентством Metropolis
        При внешней компактности и закрытости здания школы, ее интерьер чрезвычайно сложен, разнообразен и совсем не утомителен. Он стимулирует движение и общение, предлагая студентам и преподавателям разнообразные по настроению и функции зоны.
Бюджет проекта составил 14 млн евро.
Высшая инженерная школа ESIEE-IT в коммуне Понтуаз
                Фотография © Charly Broyez / предоставлена агентством Metropolis
        Высшая инженерная школа ESIEE-IT в коммуне Понтуаз
                Фотография © Charly Broyez / предоставлена агентством Metropolis
        Высшая инженерная школа ESIEE-IT в коммуне Понтуаз
                © Vallet de Martinis architectes / предоставлено агентством Metropolis
        Высшая инженерная школа ESIEE-IT в коммуне Понтуаз
                © Vallet de Martinis architectes / предоставлено агентством Metropolis
        
 
                         
            
            
         
                            
 
                             
                             
                             
                             
                             
                                         
                                         
                                         
                                         
                                         
                                         
                                         
                             
                                         
                                         
                             
                             
                                         
                                         
                                         
                                         
                                         
                                         
                                         
                                         
                                         
                                         
                             
                             
                             
                                         
                                         
                                         
                                         
                                         
                             
                     
                                                                        
                                                                     
                                                                        
                                                                     
                                                                        
                                                                     
                                                                        
                                                                     
                                                                        
                                                                     
                                                                        
                                                                     
                                                                        
                                                                     
                                                                        
                                                                     
                                                                        
                                                                     
                                                                        
                                                                     
                                                                        
                                                                     
                                                                        
                                                                     
                                                                        
                                                                     
                                                                        
                                                                     
                                                                        
                                                                     
                                                                        
                                                                     
                                                                        
                                                                     
                                                                        
                                                                     
                                                                        
                                                                     
                                                                        
                                                                     
                                                                        
                                                                     
                                                                        
                                                                     
                                                                        
                                                                     
                                                                        
                                                                     
                                                                        
                                                                     
                                                                        
                                                                     
                                                                        
                                                                     
                                                                        
                                                                     
                                                                        
                                                                     
                                                                        
                                                                     
                                                                        
                                                                     
                                                                        
                                                                     
                                                                        
                                                                     
                                                                        
                                                                     
                                                                        
                                                                     
                                                                        
                                                                     
                                                                        
                                                                     
                                                                        
                                                                     
                                                                        
                                                                     
                                                                        
                                                                     
                                                                        
                                                                     
                                                                        
                                                                     
                                                                        
                                                                     
                                                                        
                                                                     
                                                                        
                                                                     
                                                                        
                                                                     
                                                                        
                                                                     
                                                                        
                                                                     
                                                                        
                                                                     
                                                                        
                                                                     
                                                                        
                                                                     
                                                                        
                                                                     
                                                                        
                                                                     
                                                                        
                                                                     
                                                                        
                                                                     
                                                                        
                                                                     
                                                                        
                                                                     
                                                                        
                                                                     
                                                                        
                                                                     
                                                                        
                                                                     
                                                                        
                                                                     
                                                                        
                                                                     
                                                                        
                                                                     
                                                                        
                                                                     
                                                                        
                                                                     
                                                                        
                                                                     
                                                                        
                                                                     
                                                                        
                                                                     
                                                                        
                                                                     
                                                                        
                                                                     
                                                                        
                                                                     
                                                                        
                                                                     
                                                                        
                                                                     
                                        