Как создать маленькую, но функциональную кухню для сторонников здорового образа жизни?

Реклама
ООО "КИТЧЕН КОНЦЕПТ" ИНН 9725057392 
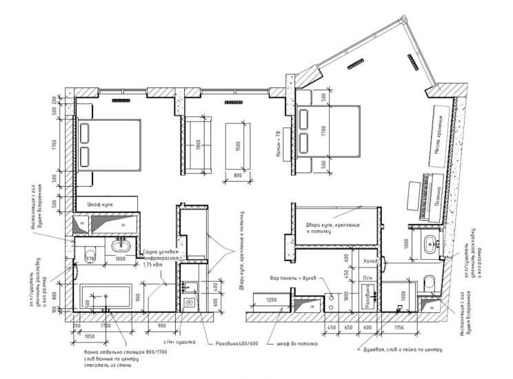
Маленькая дизайнерская кухня может быть настоящим вызовом, но при правильном подходе она станет уютным и функциональным пространством. Как в реализованном проекте студии Kitchen Concept с кухней Touch от немецкой фабрики nobilia.
 
В изначальной планировке квартиры кухня располагалась в стандартном помещении у окна, но в дизайн-проекте в итоге была перенесена в небольшое помещение без окон, подходящее скорее для кладовой нежели для кухни.
 
Стояла задача распределения приоритетов, так как заказчики ведут здоровый образ жизни, тщательно следят за питанием, но при этом имеют большую загрузку на работе, и на кухне только готовят завтраки и вечерние перекусы. Это сыграло решающую роль в создании нестандартного проекта и перераспределении площади квартиры. Помещение кухни было отдано под кабинет, а новая кухня расположилась в помещении площадью 3,5 кв. метра с узким проходом 900 мм и расширением в функциональной зоне до 2,1 метра.
 
После «брейн-шторма» определились с набором необходимой крупной бытовой техники: холодильник, вытяжка, мини-печь. Вместо варочной поверхности было решено использовать гриль.  
 
Также условием проекта стал бренд техники Bork, выбранный заказчиками еще до начала работы над планировкой кухни. Наш заказчик имел опыт взаимодействия с брендом, и заранее решил, какими моделями техники Bork, хотел бы пользоваться на своей кухне.
 
От духового шкафа, как и от варочной поверхности, мы отказались, что стало вторым необычным решением для кухни.
 
Для нас важно было максимально использовать каждый сантиметр, что бы задействовать весь объем полезного пространства. Гарнитур было решено расположить по двум соседним стенам, буквой «Г». В такой планировке удалось уместить нужную технику и создать достаточно мест хранения.
 
Шкафы верхнего яруса до потолка дают дополнительные места хранения и визуально расширяют помещение. А небольшой «островок» зелени под потолком придает проекту «легкости».
 
Рабочая зона при своих скромных размерах сохранила все необходимые функции, при том что правую часть столешницы мы уменьшили со стандартных 60 см до 50 см и разместили в нижних базах выдвижные ящики для столовых приоров и место для мини-печки.
 
Мы не стали отходить от регламента рабочего треугольника и разместили холодильник, мойку и гриль (вместо плиты) в соответствии с принципами эргономики, что всегда делает процесс приготовления  пищи более комфортным.
 
На кухонном фартуке установили рейлинговую систему Sign Emotion, сочетающую в себе организованное пространство для хранения и современный дизайн.
 
В угловом модуле встроена функциональная моечная система – смеситель, мойка и кухонные аксессуары, три в одном. Вся необходимая утварь – ножи, разделочные доски и коландер – складируются в отсеке с удобным доступом, занимая минимум пространства. Блок располагается во второй чаше со сливом и крышкой рядом с раковиной. Когда аксессуары не нужны, они хранятся на своих местах в безопасности и чистоте, не привлекая внимания. А вынимаемая из блока заглушка раковины так же увеличивает рабочую поверхность в те моменты когда нам не нужен смеситель.
 
Также мы оптимизировали систему хранения, которая позволила удобно расположить необходимую посуду, продукты и кухонные принадлежности. За цельными нижними фасадами скрываются выдвижные ящики. 
 
Кухня также оснащена системой сортировки мусора. Она имеет несколько ведер, выполненных из пищевого прочного пластика, которые легко вынимаются и моются в случае необходимости. Все ведра имеют плотные крышки, что позволяет избежать неприятных запахов. 
 
Третьей нестандартной задачей стал решение обеденной зоны. Так как полноценный обеденный стол установить в маленькой кухне невозможно – он бы мешал проходу или работе на кухне, поэтому в качестве альтернативы полноценного стола мы добавили в проект функциональный кофейный столик на колесиках из ассортимента фабрики nobilia. Его можно сложить и поставить у стены, не занимая пространства.
 
В этом проекте кухня не имеет источника естественного освещения, поэтому в нашу задачу входило создание хорошего искусственного освещения. Свет выполняет на кухне как утилитарную функцию (освещает рабочую зону и дарит комфорт), так и декоративную: светодиодная линия ярко очерчивает линию столешницы. При этом яркость и цвет освещения можно контролировать с помощью дополнительного пульта.
 
А матовые фасады в оттенке «Магнолия» делают помещение просторнее и светлее. Их особенность в уникальном, премиальном покрытии, которое имеет не только визуальную составляющую, но и тактильную. Смотрится очень благородно благодаря особой матовой поверхности и отсутствию бликов. Покрытие устойчиво к механическим повреждениям, а значит, дизайнерская кухня наших заказчиков дольше сохранит первоначальный вид. Природный компонент в дизайн премиум-кухни внесли элементы с фактурой дерева: модули открытых полок, стеновая панель. 
 
Еще одна «фишка» кухни – стеллажи Backlight – эксклюзивный концепт от nobilia. Универсальная система позволяет реализовывать множество дизайнерских идей.
Мы уже рассказывали, что наши заказчики придерживаются принципов правильного питания. Хозяйка увлекается выращиванием микрозелени. Поэтому на специальные металлические стойки стеллажей с фоновой подсветкой кроме полок были установлены и специальные деревянные ящики, в которых можно выращивать растения и микрозелень. А встроенные фитолампы обеспечивают ежедневную потребность растений в солнечном свете. В любой момент каждый из элементов стеллажа можно отрегулировать по высоте.
 
Маленькая кухня может быть не менее удобной и стильной, чем большая, если правильно спланировать дизайн и использовать каждый сантиметр пространства. Не бойтесь экспериментировать с различными решениями и идеями, чтобы создать уникальное и функциональное пространство, отражающее ваш стиль и потребности. А мы всегда готовы помочь вам в этом!
 
KITCHEN CONCEPT
Студия немецких кухонь
Москва, Серпуховской вал, 21, корп. 2, 1 этаж
8800-555-7018
www.kitchen-concept.ru
 
Технологии и материалы
От модерниста – экологисту
Швейцарский архитектор Барбара Бузер получила премию Джейн Дрю 2026 года. Ежегодную премию представительницам слабого пола вручает журнал Architects′ Journal – за профессиональные достижения и «укрепление женского авторитета в профессии».
Зеленые полимеры: эволюция фасадной теплоизоляции
Современная «зеленая архитектура» – это не только про озеленение крыш и солнечные батареи. В первую очередь, это про технологии, снижающие углеродный след здания. Ключевую роль здесь играют теплоизоляционные материалы (ТИМ), позволяющие радикально сократить потребление энергии. Пенополистирол, PIR и другие материалы, которые принято называть «зелеными полимерами» за их вклад в энергоэффективность, сегодня превратились в стандарт индустрии.
Пищевые производства: логистика и температура
Будучи одними из самых сложных объектов с точки зрения внутренней организации, пищевые производства требуют не просто размещения холодильных камер и цехов, а создания системы «климатических островов» внутри здания. Главная сложность возникает в зонах проемов в условиях интенсивного движения техники и персонала. Разбираем инженерные нюансы подбора оборудования, позволяющие обеспечить герметичность без потери энергоэффективности и удобства логистики.
Тепло и форма
Энергоэффективность сегодня – не враг архитектурной выразительности. Полимерные утеплители – ЭППС, ПИР, ППУ – берут на себя нагрузку, усадку и влагу, освобождая фасад от массивных наслоений. Какой материал выбрать для фундамента, фасада и кровли, чтобы сохранить и тепло, и чистоту линий – разбираем в обзоре.
Угольная пыль вместо цемента
Ученые Пермского Политеха и УрФУ создали экологичный бетон с повышенной водостойкостью. В составе материала – тонкомолотые горелые породы, отравляющие экологию угледобывающих регионов.
Материал с характером
За последние годы продажи металлических фасадных кассет в России выросли почти на 40 % – в сегментах бизнес и премиум всё активнее спрос на материалы, которые дают архитектору свободу работать с выразительной формой, не в ущерб безопасности и сроку службы фасада. Металлокассеты стали одним из главных ответов на этот запрос. Смотрим актуальные приёмы их применения на реализованных объектах от компании «Алкотек».
Архитектура воздухообмена
В зданиях большого объема – от спортивных комплексов до производственных корпусов – формирование комфортного микроклимата связано с особыми инженерными задачами. Одной из ключевых становится организация циркуляции воздуха, позволяющая устранить температурное расслоение и обеспечить равномерные условия по всей высоте пространства.
Инновационное остекление для идеального микроклимата:...
В современной архитектуре стеклопакет приобрел множество полезных функций, став полноценным инструментом управления микроклиматом здания. Так, энергосберегающие стеклопакеты эффективно удерживают тепло в помещении, солнцезащитные – предотвращают перегрев, а электрообогреваемые сами становятся источником тепла. Разбираемся в многообразии современных стеклоизделий на примере продукции Российской Стекольной Компании.
Опоры из грибницы
В США придумали новую альтернатива бетону – живой материал на основе мицелия и бактерий. Такой материал способен самовосстанавливаться и годится для применения в конструктивных компонентах зданий.
«Сухой» монтаж: КНАУФ в BelExpo
Минский BelExpo возвели на год раньше плана. Ключевую роль сыграли технологии КНАУФ: в основе конструкций – каркасно-обшивное перекрытие, собранное как конструктор и перекрывающее 6 метров без тяжелой техники, а также системы «потолок под потолком» с плитами КНАУФ-Акустика.
Полы, выращенные бактериями
Нидерландско-американская исследовательская команда представила напольную плитку на основе «биоцемента». Привычный цемент, выполняющий роль вяжущего вещества, авторы заменили на выработанный бактериями известняк. При производстве плитки Mimmik в среду попадает на 60% меньше выбросов – по сравнению с традиционной.
Живой металл
Анодированный алюминий занимает все более заметное место в архитектурных проектах – от жилых комплексов до аэропортов. Его выбирают за выразительный внешний вид и стабильные эксплуатационные характеристики. В России с архитектурным анодированием системно работает завод полного цикла «25 микрон». В статье на примере его технологий и решений разберем, как устроен процесс анодирования и какие свойства делают этот материал востребованным.
Обновленный шоу-рум LUCIDO: рабочая среда для архитектора
Бутик Итальянской Плитки LUCIDO, расположенный в особняке на Пречистенке, завершил реконструкцию. Задача обновления – усилить функциональность пространства как инструмента для профессиональной работы с материалом. В новой экспозиции сделан акцент на навигацию, сценарии освещения и демонстрацию крупных форматов в условиях, приближенных к реальному интерьеру.
Стальное зеркало терруара
Архитектурная мастерская «АКАНТ» превратила здание винодельни в Краснодарском крае в оптическую иллюзию при помощи полированной нержавеющей стали «СуперЗеркало» от компании «Орнамита». Материал позволяет играть со светом и восприятием объемов, снижать теплопоглощение и создавать объекты-магниты, привлекающие яркой образностью, оставаясь при этом практичным и ремонтопригодным решением.
Осознанный выбор
С каждым годом, с каждой новой научной и технологической разработкой и запуском в производство новых полимерных материалов с улучшенными качествами сфера их применения расширяется. О специфике и форматах применения полимерных материалов в современной общественной архитектуре, включая самые сложные и масштабные объекты, такие как стадионы, мы поговорили с заместителем генерального директора по проектированию ПИ «АРЕНА» Алексеем Орловым.
Сёрфборд для жилья
Гавайская архитектурная фирма Hawaii Off-Grid занялась производством строительных блоков из досок для сёрфинга. Разработка призвана побороть проблему нехватки жилья на островах и чрезмерных отходов сёрфинг-индустрии.
Бетон со знаком «минус»
В США разработали заполнитель для бетона с «отрицательным» содержанием углерода. Технология позволяет «запечатывать» CO₂ в минералах и использовать их в качестве заполнителей для бетонных смесей.
Японцы нашли ключ к «зеленому» стеклу из древесины
Исследователи из Университета Осаки разработали технологию получения прозрачной древесины без использования пластиковых компонентов и объяснили физику процесса, открывающую путь к управлению свойствами материала.
​Полимеры: завтрашний день строительства
Современная архитектура движется от статичных форм к адаптивным зданиям. Ключевую роль в этой трансформации играют полимерные материалы: именно они позволяют совершить переход от архитектуры как сборки деталей – к архитектуре как созданию высокоэффективной «оболочки». В статье разбираем ключевые направления – от уже работающих технологий до горизонтов в 5-10 лет.
Земля плюс картон
Австралийские исследователи, вдохновившись землебитной архитектурой, разработали собственный строительный материал. В его основе – традиционный для землебитной технологии грунт и картонные трубы. Углеродный след такого материала в четыре раза «короче», чем след бетона.
Сейчас на главной
Балконы в небо
Компактная жилая башня Cielo в индийском Нагпуре напоминает колос: необычную форму создают придуманные Sanjay Puri Architects двухэтажные балконы.
Гипербола в кирпиче
Апарт-комплекс «Маки» – третья очередь комплекса «Инские холмы» в Новосибирске. Проектная артель 2ПБ создала в ней акцент за счет контраста материалов и форм: в кирпичном объеме, тяготеющем к кубу, сделаны два округлых стеклянных «выреза», в которых отражается город. Специально для проекта разработан кирпич особого цвета и формовки. Рельефная кладка в сочетании с фибробетоном, моллированным стеклом и гранитом делают архитектуру «осязаемой». Также пространство на уровне улицы усложнено рельефом.
Офис без границ
Офисное здание Delta под Барселоной задумано авторами его проекта PichArchitects как проницаемое, адаптивное и таким образом готовое к будущим переменам.
Маяк славы
Градостроительный совет Петербурга рассмотрел эскизный проект 40-метровой стелы, которую бюро Intercolumnium предлагает разместить в центре мемориального комплекса, посвященного Ленинградской битве. Памятный знак состоит из шести «лепестков», за которыми прячется световой столп. Эксперты высказали ряд рекомендаций и констатировали недостаточное количество материалов, чтобы судить о реализуемости подобного объекта.
Теплый берег
Проектная группа 8 и Институт развития городов и сел Башкортостана во взаимодействии с жителями района на окраине Уфы благоустроили территорию вокруг пруда. Зонировние учитывает интересы рыбаков, любителей наблюдать за птицами, владельцев собак и, конечно, детей и спортсменов. Малые архитектурные формы раскрывают природный потенциал территории, одновременно делая ее более безопасной.
Жизнерадостный декаданс
Ресторан «Машенька», созданный бюро ARCHPOINT, представляет еще один взгляд на интерьерный дизайн, вдохновленный русскими традициями и народными промыслами. Правда, в нем не так много прямых цитат, а больше вольных фантазий в духе «Алисы в стране чудес», благодаря чему гости могут развлечься разгадыванием визуальных шарад.
Я в домике
Работая над новым зданием школы «Летово Джуниор» – оно открылось для учеников осенью 2025 года в Долине МГУ – архитекторы UNK, следуя за видением заказчика, подчинили как фасады, так и интерьеры теме дома. Множество версий скатных кровель, силуэт города на стеклянных ограждениях, деревянные фактуры и целая серия микропространств для уединения в общественных зонах – к услугам учеников младшей и средней школы. Изучаем новое здание школы – и то, как оно интерпретирует передовые тенденции образовательных пространств.
Под знаком красного
Nefa Architects обустроили образовательный хаб для компании ДКС на территории фабрики «Большевик». Красный амфитеатр в самом центре – рифмуется с биографией места и подает концентрированный сигнал о том, где именно в этом пространстве происходит главное.
Приближение таинства
Бюро Ивана Землякова ziarch спроектировало для Новой Москвы небольшой храм для венчаний и крещений, который также включает приходское кафе в духе «Антипы». Автор ясно разделяет мирскую и храмовую части, опираясь на аналоги из архангельских деревень. Постройка дополнит основной храм, перекликаясь с ним схожими материалами в отделке.
«Баланс между краткой формой и насыщенностью контекста»
В издательстве Музея «Гараж» вышел 5-й путеводитель из серии о модернизме в крупных городах СССР: теперь речь идет о Ереване. Мы поговорили о новой книге, ее особенностях и отличиях от предыдущих 4 изданий с ее авторами: Анной Броновицкой, Еленой Маркус и Юрием Пальминым.
Легкая степень брутализма
Особенные люди собираются в особенных местах. Например, в кофейне St.Riders Coffee, спроектированной бюро Marat Mazur interior design специально для сообщества райдеров и любителей экстрима, с использованием материалов и деталей, достаточно брутальных, чтобы будущие посетители почувствовали себя в своей стихии.
Красный Корбюзье в красной Москве (колористический...
Исследование Петра Завадовского об изменении цвета отделки здания Центросоюза в Москве Ле Корбюзье в ходе его проектирования и влиянии этого обстоятельства на практику архитектуры советского авангарда в 1929–1935.
Текстильный подход
Бюро 5:00 am создало для фабрики «Крестецкая строчка» и бренда Alexandra Georgieva московский шоу-рум, продолжив эксперименты со стилизацией под классические жилые интерьеры XIX века, в которых благодаря переосмыслению культуры быта и прикладной эстетики актуальные тренды сочетаются с народными традициями, атмосферностью и тактильностью.
Здание-губка
Проектируя модульные спортивный центр и центр искусств Старшей школы Хундин в Шэньчжэне, архитекторы O-Office устанавливали связь с окружающей природой и создавали внутренние связи.
Парный разряд
Архитектуру Дворца тенниса, построенного в Лужниках по проекту ПИ «АРЕНА», определили три фактора: соседство бруталистской арены «Дружба», близость Москвы-реки и эстакады моста, а также особенности функции – для размещения кортов необходимы большие площади, обилие света и защита от солнца. Авторы разделили здание на несколько блоков, сыграв на контрасте, который усилили фасады, разработанные совместно с ТПО «Резерв».
Холстом и маслом
В галерее «Солодовня» – новой точке на культурной карте Москвы – открылась выставка «Холст, масло». Это выставка-знакомство: она демонстрирует посетителю и новое пространство в историческом здании, и разнообразие коллекции. Куратор Павел Котляр разделил картины русских художников на контрастные пары, что усилило каждое высказывание, а архитектор Полина Светозарова искала способы сближения художников друг с другом и с залами галереи. Главным «связующим» стал холст – сам по себе очень выразительный элемент.
Микродинамика макропроцессов
Учитывая близость многофункционального комплекса SOLOS к парку Сокольники и развитому транспортному узлу, бюро Kleinewelt Аrchitekten заложило в проект двух высотных башен динамику, но свойственную скорее природным явлениям, чем антропогенным объектам. Разобраться в ней без авторских схем не так просто, хотя глаз сразу замечает закономерность и пытается ее раскрыть. Нам показалось, что в одной башне заложен импульс готового раскрыться бутона, а во второй – движения литосферной плиты. Предлагаем разбираться вместе.
Пространство посткубизма
Сергей Чобан и Александра Шейнер, Студия ЧАРТ, создали для выставки «посткубистической» скульптуры Беатрисы Сандомирской – автора талантливого и мейнстримного, но почти не известного даже историкам искусства – пространство, подобное ее пластике: крепко сбитое, уверенно-стереометрическое и выразительное подспудно. Оно круглится, акцентируя крупный объем скульптуры, обнимает собой зрителя и ведет его от перспективы к перспективе, от «капища» к «Мадонне».
Ценность открытого места
Для участка рядом с метро Баррикадная Сергей Скуратов за период 2020–2025 сделал 5 проектов. Два из них победили в закрытых конкурсах заказчика. Пятый не так давно выбрал мэр Москвы для реализации. Проект ярок и пластичен, акцентен, заметен и интересен; что характерно для нашего времени. Однако – он среднеэтажен, невысок. И в своей северо-западной части, у метро и Дружинниковской улицы, формирует комфортный город. А с другой стороны – распахивается, открывая двор для солнечных лучей и формируя пространственную паузу в городской застройке. Как все устроено, какие тут геометрические закономерности и почему так – читайте в нашем материале.
Еловый храм
Бюро Ивана Землякова ziarch для живописного участка на берегу Волги недалеко от Твери предложило храм, которые наследует традициям местного деревянного зодчества, но и развивает их. Четверик поднят на бетонный подклет, вытянутая восьмискатная щипцовая кровля покрыта лемехом, а украшением фасада служат маленькие оконца. Сочетание материалов, форм и приемов роднит храм с окружающим лесным пейзажем.
Сезонные настроения
Бюро «Уголок» разработало интерьер одного из филиалов ресторана «М2 Органик клуб», специализирующегося на экологически чистой продукции и органической кулинарии, проиллюстрировав при помощи дизайна каждое из четырех времен года.
Прощай, эпоха
Сергей Кузнецов покинул пост главного архитектора Москвы. Новый главный архитектор не известен. Вероятно, пока. Что будет с московской архитектурой – тоже, с одной стороны, довольно понятно; а с другой – не очень.
Форма воды
Станцию Кэйп-Флэтс в Кейптауне SALT Architects проектировали как пример качественной индустриальной архитектуры, открыто, если не с гордостью, демонстрирующей свое предназначение.
Пришедшие с холода
Фестиваль «АрхБухта» – все еще один из немногих в России, где участники проходят через все этапы создания объекта от концепции до стройки. И делают это на берегу Байкала и ему же в посвящение. В этом году бюро GAFA приняло участие и рассказало о своем опыте: местная легенда, дизайн-код для команды, друзья, а также катание на коньках и испытание морозом помогли получить не только награду, но и нечто большее.
Сложная композиция
Парк технологий и инноваций Lenovo в Тяньцзине по проекту E Plus Design рассчитан на более чем 3000 сотрудников подразделения исследования и разработки.
Фахверк в формате барнхауса
В проекте загородного дома Frame Wood от AGE architects тектоника мощного фахверкового каркаса освобождена от стереотипов и заключена в лаконичный силуэт барнхауса. Конструкция по-прежнему – главное средство выразительности, но она становится более вариативной, а дом приобретает не характерную для фахверка легкость.
Цифры Вавилона
Публикуем магистерскую диссертацию Хаймана Хунде, подготовленную на Факультете архитектуры и дизайна Кубанского государственного университета. Она посвящена разработке градостроительных принципов развития города Эль-Хилла в Ираке с учетом исторического наследия и региональных особенностей. Например, формируя современные кварталы, автор обращается к планам древних городов, орнаменту и даже траектории движения небесных тел.