RSS
МАУ ДО «Лаборатория». Интерьер IT-класса
Фотография © Александр Панекин / предоставлена АБ Архнуво

МАУ ДО «Лаборатория»

информация:

  • статус
    реализовано
  • даты
    06.2024 — 01.2025 / 01.2025
  • region= area= address=микрорайон Славянский, дом 12 country_t=Россия city_t=Новый Уренгой
    место
    Новый Уренгой микрорайон Славянский, дом 12
  • координаты
    66.120482, 76.666934
  • функция
    Образование и наука / Учебный корпус
  • общая площадь
    3 607 м2
  • этажность
    4

авторский коллектив

ГАП – Василий Рыбаков; руководители проекта – Дмитрий Харченко, Мария Ефременко; менеджер проекта – Евгения Сорокина; архитекторы – Дарья Грехова, Наталья Карпенко; дизайнеры – Татьяна Байбородина, Мария Ефременко, Ольга Куликова, Ирина Емельянова, Василина Полякова; визуализаторы – Алексей Ельцов, Илья Островский, Елизавета Шатохина; комплектатор – Александра Прохоренко

партнеры, заказчики, смежники

Заказчик: Администрация г. Новый Уренгой, департамент образования Ямало-Ненецкого АО
МАУ ДО «Лаборатория». Интерьер биологического класса
Фотография © Александр Панекин / предоставлена АБ Архнуво
МАУ ДО «Лаборатория». Интерьер биологического класса
Фотография © Александр Панекин / предоставлена АБ Архнуво

описание:

Четырехэтажное здание кванториума в Новом Уренгое – официально он называется образовательным парком «Лаборатория» – расположено на севере, недалеко от границы Полярного круга. Авторы дизайн–проекта хотели сделать интерьер ярким: сочные цвета, разнообразные краски, которые контрастируют с пейзажами за окном (в регионе зима длится полгода) и одновременно помогают в навигации между тематическими классами и лабораториями.

В северных широтах было важно создать атмосферу природы, поэтому в интерьерах коридоров, зон рекреации, вестибюле предусмотрено много зелени. Изначально существовала идея создать в центре «Лаборатории» образ дерева с раскидистой кроной на верхних этажах и древесным стволом на нижних.

В учреждении детей и подростков от 5 до 18 лет обучают промышленному дизайну, химии, прогрессивному растениеводству, авто– и авиамоделированию. Для каждой из 11 лабораторий дизайнеры разработали свою символику и стиль.

Стены коридоров и лестничных пролетов декорированы графикой, посвященной космосу, информатике, биологии. Помимо паттернов графики на стенах мы выгодно использовали подвесные панели на потолках – в химическом классе на них изображены элементы периодической системы, в IT–классе круглые и линейные панели выстраиваются в двоичный код, в шахматной гостиной черные и белые квадраты становятся игральной доской.

МАУ ДО «Лаборатория». Интерьер класса промышленного дизайна
Фотография © Александр Панекин / предоставлена АБ Архнуво
МАУ ДО «Лаборатория». Интерьер коворкинг-зоны
Фотография © Александр Панекин / предоставлена АБ Архнуво
МАУ ДО «Лаборатория». Интерьер химического класс
Фотография © Александр Панекин / предоставлена АБ Архнуво
МАУ ДО «Лаборатория». Интерьер шахматной гостиной
Фотография © Александр Панекин / предоставлена АБ Архнуво
МАУ ДО «Лаборатория». Мебель в зоне рекреации
Фотография © Александр Панекин / предоставлена АБ Архнуво
МАУ ДО «Лаборатория». Оформление лестничных пролётов
Фотография © Александр Панекин / предоставлена АБ Архнуво
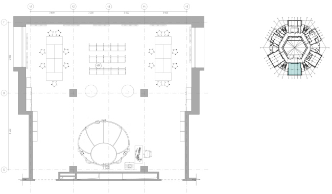
МАУ ДО «Лаборатория». Этаж 1. Конференц-зал
© АБ Архнуво
МАУ ДО «Лаборатория». Этаж 1. Коридор
© АБ Архнуво
МАУ ДО «Лаборатория». Этаж 2. Аэролаборатория
© АБ Архнуво
МАУ ДО «Лаборатория». Этаж 2. Зона рекреации
© АБ Архнуво
МАУ ДО «Лаборатория». Этаж 2. Обеденная зона
© АБ Архнуво
МАУ ДО «Лаборатория». Этаж 2. Химический класс
© АБ Архнуво
МАУ ДО «Лаборатория». Этаж 2. Шахматная гостиная
© АБ Архнуво
МАУ ДО «Лаборатория». Этаж 2. Шахматная гостиная
© АБ Архнуво
МАУ ДО «Лаборатория». Этаж 3. IT-класс
© АБ Архнуво
МАУ ДО «Лаборатория». Этаж 3. Выставочный зал
© АБ Архнуво
МАУ ДО «Лаборатория». Этаж 3. Лаборатория гидропоники
© АБ Архнуво
МАУ ДО «Лаборатория». Этаж 3. Лаборатория гидропоники
© АБ Архнуво
МАУ ДО «Лаборатория». Этаж 3. Лаборатория гидропоники
© АБ Архнуво
МАУ ДО «Лаборатория». Этаж 3. Лаборатория гидропоники
© АБ Архнуво
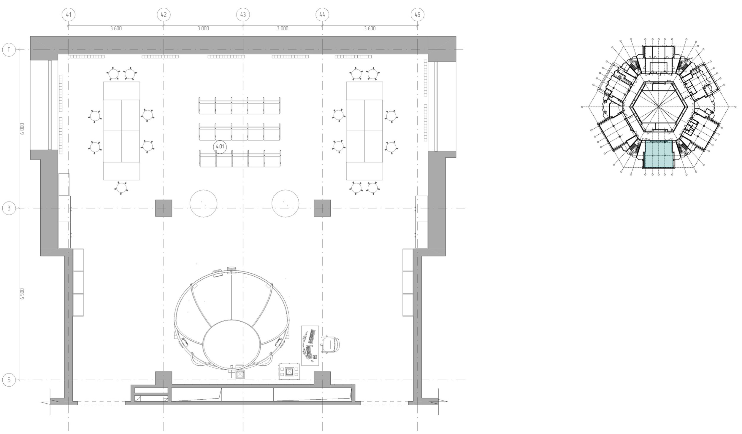
МАУ ДО «Лаборатория». Этаж 1. Конференц-зал. План расстановки мебели
© АБ Архнуво
МАУ ДО «Лаборатория». Этаж 1. Примеры интерьерных решений
© АБ Архнуво
МАУ ДО «Лаборатория». Этаж 1. Эскиз художественной росписи стен коридоров
© АБ Архнуво
МАУ ДО «Лаборатория». Этаж 2. Интерьерные решения в шахматной гостиной, развертка стен
© АБ Архнуво
МАУ ДО «Лаборатория». Этаж 2. План потолка в химическом классе
© АБ Архнуво
МАУ ДО «Лаборатория». Этаж 2. План потолка в шахматной гостиной
© АБ Архнуво
МАУ ДО «Лаборатория». Этаж 3. Зона рекреации
© АБ Архнуво
МАУ ДО «Лаборатория». Этаж 3. План потолка в IT-классе
© АБ Архнуво
МАУ ДО «Лаборатория». Этаж 3. Эскиз художественной росписи коридоров
© АБ Архнуво
МАУ ДО «Лаборатория». 4 этаж. Планетарий
© АБ Архнуво
МАУ ДО «Лаборатория». 4 этаж. Эскиз художественной росписи коридоров
© АБ Архнуво
МАУ ДО «Лаборатория». Эскиз художественной росписи лестничных пролётов
© АБ Архнуво
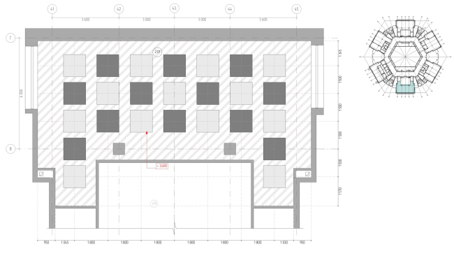
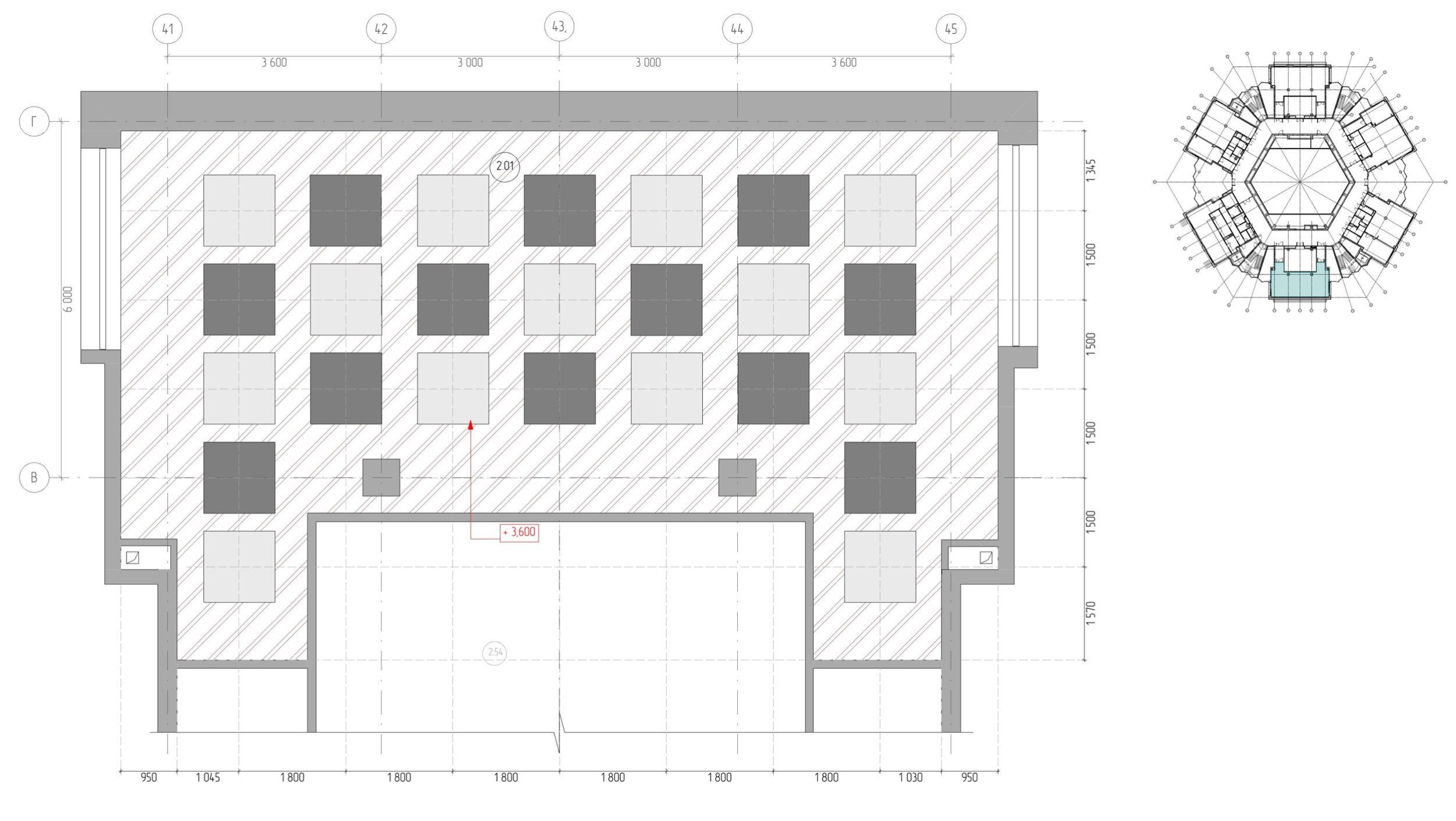
МАУ ДО «Лаборатория». Этаж 1. Конференц-зал. План потолка
© АБ Архнуво

Архитекторы – партнеры Архи.ру:

  • Григориос Гавалидис
  • Ерлан Бекмухамедов
  • Андрей Романов
  • Дмитрий Буш
  • Сергей Труханов
  • Олег Шапиро
  • Дмитрий Ликин
  • Всеволод Медведев
  • Ростислав Цайзер
  • Алексей Орлов
  • Александра Кузьмина
  • Антон Яр-Скрябин
  • Олег Мединский
  • Даниил Лоренц
  • Евгений Новосадюк
  • Евгений Подгорнов
  • Игорь Членов
  • Наталия Шилова
  • Мария Ахременкова
  • Андрей Гнездилов
  • Иван Кожин
  • Николай Кикава
  • Андрей Асадов
  • Марина Егорова
  • Виталий Лутц
  • Юлия Тряскина
  • Александр Самарин
  • Дмитрий Остроумов
  • Павел Андреев
  • Никита Явейн
  • Александр Асадов
  • Валерий Каняшин
  • Константин Ходнев
  • Борис Воскобойников
  • Владимир Плоткин
  • Андрей Михайлов
  • Александр Котенков
  • Евгений Зеленов
  • Юлиана Княжевская
  • Игорь Шварцман
  • Полина Воеводина
  • Энди Сноу
  • Степан Липгарт
  • Сергей Кузнецов
  • Татьяна Зульхарнеева
  • Александр Скокан
  • Михаил Давыдов
  • Наталья Сидорова
  • Анастасия Абашева
  • Григорий Мустафин
  • Юлий Борисов
  • Михаил Канунников
  • Сергей Переслегин
  • Дмитрий Сухов
  • Владислав Андреев
  • Раис Баишев
  • Георгий Трофимов
  • Илья Машков
  • Василий Крапивин
  • Сергей Скуратов
  • Вера Бутко
  • Зураб Басария
  • Юлия Солдатенкова
  • Антон Надточий
  • Сергей Никешкин
  • Елена Пучкова
  • Станислав Белых
  • Сергей Чобан
  • Екатерина Кузнецова
  • Николай Переслегин
  • Тимур Абдуллаев
  • Екатерина Абдуллаева
  • Маргарита Авдышева
  • Левон Айрапетов
  • Александр Аношкин
  • Алексей Афоничкин
  • Владислав Бек-Булатов
  • Антон Белов
  • Татьяна Бузулукова
  • Петр Васильев
  • Данило Вукосавлевич
  • Алина Георгиевская
  • Павел Гордеев
  • Илья Гринберг
  • Никита Демидов
  • Никита Дергунов
  • Наталья Жилкина
  • Алексей Зародов
  • Екатерина Зырина
  • Алексей Ильин
  • Дарья Ильина
  • Олег Карлсон
  • Алексей Кибкало
  • Денис Кувшинников
  • Анна Куликова
  • Алексей Курков
  • Данил Куров
  • Евгений Кутай
  • Мария Кутай
  • Иван Кычкин
  • Антон Ладыгин
  • Дмитрий Лапин
  • Илья Левянт
  • Катерина Левянт
  • Борис Левянт
  • Валерий Лукомский
  • Антон Лукомский
  • Екатерина Ляпунова
  • Иса Магомедов
  • Сергей Марков
  • Елена Мерцалова
  • Николай Миловидов
  • Станислав Михаловский
  • Сергей Мичурин
  • Олеся Могилевская
  • Мария Николаева
  • Дмитрий Овчаров
  • Сергей Пергаев
  • Виктор Перов
  • Алексей Полищук
  • Роман Пономарёв
  • Валерия Преображенская
  • Виктория Раубо
  • Василий Рыбаков
  • Николай Рыбаков
  • Мария Салех
  • Александр Стариков
  • Илья Уткин
  • Елисей Чакан
  • Бориша Чорович
  • Олег Шурыгин
  • Дмитрий Шурыгин

Проект из каталога (случайный выбор)

Офисно-торговый центр на Ленинградском шоссе
Борис Левянт, Борис Стучебрюков, 2007
Офисно-торговый центр на Ленинградском шоссе

Постройки и проекты (новые записи):

  • Архитектурная концепция кластера Ломоносов-2
  • Клубный дом в 1-м Казачьем переулке
  • Частный дом в Ленинградской области
  • Гостиничный комплекс Cosmos Selection Derbent 5
  • Офис компании АльфаСтрахование
  • MIDITI
  • Офис компании Kept
  • Дом Спорта
  • ЖК Camelia

Новости российской архитектуры:

Северный ветер
27.04.2026

Северный ветер

Дарья Белецкая
Высший уровень
24.04.2026

Высший уровень

Борис Воскобойников, Мария Ахременкова
Белые террасы в зеленом предгорье
24.04.2026

Белые террасы в зеленом предгорье

Маргарита Авдышева