RSS
ТОТ на Октябрьской. ЖК «Гермес»
Фотография © Дима Четыре

ТОТ

информация:

  • статус
    реализовано
  • даты
    2021 / — 01.2025
  • region=Нижегородская область area=Нижний Новгород address=ул. Октябрьская, 21 country_t=Россия city_t=
    место
    Нижегородская область Нижний Новгород ул. Октябрьская, 21
  • координаты
    56.322079, 44.005666
  • функция
    Жилой / клубный дом
  • площадь общественная
    605,2 м2 м2
  • общая площадь
    9410,2 м2 м2
  • высота
    22 м
  • этажность
    4-6
  • строительный объем
    31 985,3 м3 м3
  • кол-во машиномест
    56
ART project / Россия

авторский коллектив

АПМ “АртПроект”
руководитель – Ольга Добротина;
ГИП – Елена Григорьева;
ведущий архитектор – Андрей Никитин;
архитекторы – Евгения Безаева, Даниил Нуждин, Роман Оганин 


другие названия проекта
ЖК «Гермес»

награды:

    Шорт-лист 16 рейтинга архитектуры Нижнего Новгорода
ТОТ на Октябрьской. ЖК «Гермес»
Фотография предоставлена АПМ “АртПроект”

Архи.ру об этом объекте:

14.03.2026

Юлия Тарабарина. Защита чувств

В Нижнем Новгороде объявили победителей 16 архитектурного рейтинга, который проводится в этом городе, как правило, один раз за два года. Напомним, победителя тут съедают в виде торта, что, с одной стороны, забавно, а с другой – не лишено тонкого смысла. Архитекторы взаправду пугаются прежде чем «разрезать свой объект ножом»! И вот наш небольшой репортаж. В победителях 5 бюро и 7 объектов. В премии впервые появилась номинация. Угадайте, угадайте же, кто у нас «Царь горы»?

И съели в виде торта. Хотя не только. В этом году еще было две импровизированных композиции: горка из чак чака досталась Станиславу Горшунову, фруктово-сырный салат Зое Рюриковой. В 16 рейтинге а он проводится с 1998 года было 33 объекта ло...   читать дальше

другие тексты Архи.ру:

ТОТ на Октябрьской. ЖК «Гермес»
Фотография предоставлена АПМ “АртПроект”

описание:

Всем своим видом по Октябрьской новый дом подчеркивает родство с Домом ученых и угловым, где – Художественный салон. Два дома ученых в ряд, согласитесь, перебор, потому коммерческое название «Гермес» – как поклон «Лобачевский плаза», что напротив – на левой стороне Октябрьской. Но старинное здание Дома ученых – более привлекательное, теплое, родное  место для очень многих горожан, оно – про другие ценности и смыслы.

А кто у нас Бог мудрости и знаний? Вики подсказывает: ТОТ – древнеегипетский покровитель библиотек, ученых, и даже чиновников.

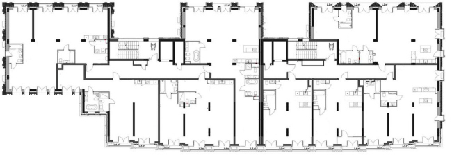
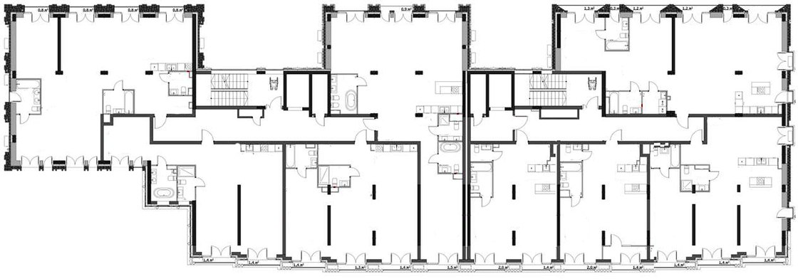
В основе объёмно-планировочного решения здания – протяжённый линейный корпус, формирующий непрерывный уличный фронт. Он расчленён на несколько самостоятельных объёмов, различающихся по пластике и глубине, что визуально уменьшает масштаб здания и приближает его к ритму исторической застройки. Три кирпичных блока воспринимаются как отдельные «дома», нанизанные на основную “фоновую” часть здания. Такое членение создаёт иллюзию постепенного наращивания, будто здание сложилось из нескольких корпусов.
Планировочно здание организовано вокруг центрального коммуникационного ядра с вертикальными связями. От него по обе стороны развиваются линейные коридоры, обеспечивающие доступ к жилым ячейкам. Конструктивная сетка регулярна, что обеспечивает рациональную нарезку помещений. Внутренние планировки подчинены этой сетке, благодаря чему фасадный ритм точно отражает структуру помещений.
 
ТОТ на Октябрьской. ЖК «Гермес»
Фотография предоставлена АПМ “АртПроект”
ТОТ на Октябрьской. ЖК «Гермес»
Фотография предоставлена АПМ “АртПроект”
Фрагмент фасада. ЖК «Гермес»
Фотография © Дима Четыре
Застройка по улице Октябрьской. ЖК «Гермес»
Фотография © Дима Четыре
На переднем плане – Дом ученых. ЖК «Гермес»
Фотография © Дима Четыре
ЖК «Гермес»
Фотография © Дима Четыре
Фрагмент бокового фасада, вид со двора. ЖК «Гермес»
Фотография © Дима Четыре
Боковой фасад. ЖК «Гермес»
Фотография © Дима Четыре
Проезд с видом на Лобачевский Плаза. ЖК «Гермес»
Фотография © Дима Четыре
Дворовый фасад. ЖК «Гермес»
Фотография © Дима Четыре
План жилого этажа. ЖК «Гермес»
Фотография © АРТ Проект

Архитекторы – партнеры Архи.ру:

  • Сергей Труханов
  • Василий Крапивин
  • Александр Котенков
  • Евгений Новосадюк
  • Андрей Асадов
  • Зураб Басария
  • Михаил Канунников
  • Юлия Солдатенкова
  • Олег Мединский
  • Евгений Зеленов
  • Александра Кузьмина
  • Андрей Романов
  • Сергей Скуратов
  • Виталий Лутц
  • Александр Самарин
  • Сергей Никешкин
  • Николай Кикава
  • Илья Машков
  • Вера Бутко
  • Раис Баишев
  • Николай Переслегин
  • Наталия Шилова
  • Ерлан Бекмухамедов
  • Никита Явейн
  • Георгий Трофимов
  • Энди Сноу
  • Марина Егорова
  • Елена Пучкова
  • Дмитрий Остроумов
  • Григориос Гавалидис
  • Станислав Белых
  • Антон Яр-Скрябин
  • Дмитрий Сухов
  • Екатерина Кузнецова
  • Сергей Чобан
  • Игорь Шварцман
  • Евгений Подгорнов
  • Владимир Плоткин
  • Игорь Членов
  • Ростислав Цайзер
  • Григорий Мустафин
  • Иван Кожин
  • Юлий Борисов
  • Полина Воеводина
  • Татьяна Зульхарнеева
  • Мария Ахременкова
  • Александр Скокан
  • Всеволод Медведев
  • Степан Липгарт
  • Михаил Давыдов
  • Павел Андреев
  • Александр Асадов
  • Олег Шапиро
  • Антон Надточий
  • Андрей Гнездилов
  • Сергей Кузнецов
  • Юлия Тряскина
  • Юлиана Княжевская
  • Наталья Сидорова
  • Константин Ходнев
  • Дмитрий Буш
  • Владислав Андреев
  • Анастасия Абашева
  • Алексей Орлов
  • Даниил Лоренц
  • Андрей Михайлов
  • Дмитрий Ликин
  • Валерий Каняшин
  • Сергей Переслегин
  • Борис Воскобойников
  • Тимур Абдуллаев
  • Екатерина Абдуллаева
  • Маргарита Авдышева
  • Левон Айрапетов
  • Александр Аношкин
  • Алексей Афоничкин
  • Владислав Бек-Булатов
  • Антон Белов
  • Татьяна Бузулукова
  • Петр Васильев
  • Данило Вукосавлевич
  • Андрей Вырва
  • Алина Георгиевская
  • Павел Гордеев
  • Илья Гринберг
  • Никита Демидов
  • Никита Дергунов
  • Наталья Жилкина
  • Алексей Зародов
  • Екатерина Зырина
  • Алексей Ильин
  • Дарья Ильина
  • Олег Карлсон
  • Алексей Кибкало
  • Денис Кувшинников
  • Анна Куликова
  • Алексей Курков
  • Данил Куров
  • Мария Кутай
  • Евгений Кутай
  • Иван Кычкин
  • Антон Ладыгин
  • Дмитрий Лапин
  • Борис Левянт
  • Илья Левянт
  • Катерина Левянт
  • Валерий Лукомский
  • Антон Лукомский
  • Екатерина Ляпунова
  • Иса Магомедов
  • Сергей Марков
  • Елена Мерцалова
  • Николай Миловидов
  • Станислав Михаловский
  • Сергей Мичурин
  • Олеся Могилевская
  • Филипп Никандров
  • Мария Николаева
  • Дмитрий Овчаров
  • Сергей Пергаев
  • Виктор Перов
  • Алексей Полищук
  • Роман Пономарёв
  • Валерия Преображенская
  • Виктория Раубо
  • Василий Рыбаков
  • Николай Рыбаков
  • Мария Салех
  • Александр Стариков
  • Илья Уткин
  • Елисей Чакан
  • Евгения Чернышева
  • Бориша Чорович
  • Олег Шурыгин
  • Дмитрий Шурыгин

Проект из каталога (случайный выбор)

Телеинформационный комплекс РФ
Александр Асадов, Андрей Асадов, 2004
Телеинформационный комплекс РФ

Постройки и проекты (новые записи):

  • Многофункциональный спортивный клуб Jet Arena
  • Павильон  Идеал
  • Флагманская кофейня Дринкит
  • Гостиница в Чите
  • ЖК Квартал 64
  • Деловое пространство «ПЛЭЙН»
  • Конкурсный проект ФИЦ / ТПО «Резерв»
  • Porta
  • Детский сад на 200 мест в Жилино-1

Новости российской архитектуры:

Красная карточка за авторское право
25.05.2026

Красная карточка за авторское право

Алексей Орлов, Дмитрий Буш, Ерлан Бекмухамедов
Новая коллекция МАФов
25.05.2026

Новая коллекция МАФов

Сергей Пергаев
Хвост кометы
22.05.2026

Хвост кометы

Андрей Волынцев, Анна Волынцева
На глубине 101
22.05.2026

На глубине 101

Дарья Белякова