RSS
«Майский»
Предоставлено ПБ «ГОРА»

«Майский»

информация:

  • статус
    реализовано
  • даты
    20242025
  • region=Нижегородская область area= address=Площадь Ульянова, 2Б country_t=Россия city_t=Первомайск
    место
    Первомайск Нижегородская область Площадь Ульянова, 2Б
  • координаты
    54.873857, 43.798439
  • функция
    Культурный / Культурный центр
Станислав Горшунов
Елизавета Будько
Мария Юдина
Gorshunov Architecture Bureau GORA / Россия

авторский коллектив

С. Горшунов, М. Юдина, Е. Будько, А. Матвеева    


другие названия проекта
Детский развивающий центр

награды:

    Шорт-лист 16 рейтинга архитектуры Нижнего Новгорода
«Майский»
Предоставлено ПБ «ГОРА»

Архи.ру об этом объекте:

14.03.2026

Юлия Тарабарина. Защита чувств

В Нижнем Новгороде объявили победителей 16 архитектурного рейтинга, который проводится в этом городе, как правило, один раз за два года. Напомним, победителя тут съедают в виде торта, что, с одной стороны, забавно, а с другой – не лишено тонкого смысла. Архитекторы взаправду пугаются прежде чем «разрезать свой объект ножом»! И вот наш небольшой репортаж. В победителях 5 бюро и 7 объектов. В премии впервые появилась номинация. Угадайте, угадайте же, кто у нас «Царь горы»?

И съели в виде торта. Хотя не только. В этом году еще было две импровизированных композиции: горка из чак чака досталась Станиславу Горшунову, фруктово-сырный салат Зое Рюриковой. В 16 рейтинге а он проводится с 1998 года было 33 объекта ло...   читать дальше

другие тексты Архи.ру:

«Майский»
Предоставлено ПБ «ГОРА»

описание:

Первомайск – небольшой город на юге Нижегородской области. Имеет прямое железнодорожное сообщение с Москвой, но находится вдали от крупных автомобильных магистралей. Преобразование городской среды здесь началось несколько лет назад по федеральной программе, в том числе – и старого заброшенного парка «Майский».

Проект благоустройства этого парка в 2020 году победил во Всероссийском конкурсе проектов по созданию комфортной городской среды в малых городах и исторических поселениях. Финансирование осуществлялось в рамках проекта инициативного бюджетирования «Вам решать» и нацпроекта «Жилье и городская среда». Общая сумма выделенных средств составила около 100 млн рублей.

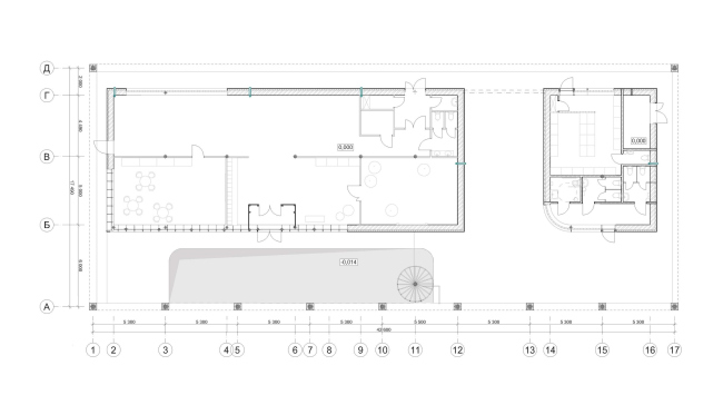
Павильон – один из ключевых объектов комплексного благоустройства парка «Майский», доминанта площади и акцентное завершение входной пешеходной аллеи. 
Объект стилизован под архитектуру авангарда 20-x – 30-х годов XX века. Это отсылка к творчеству Н. Ламановой, которая родилась в Первомайске.

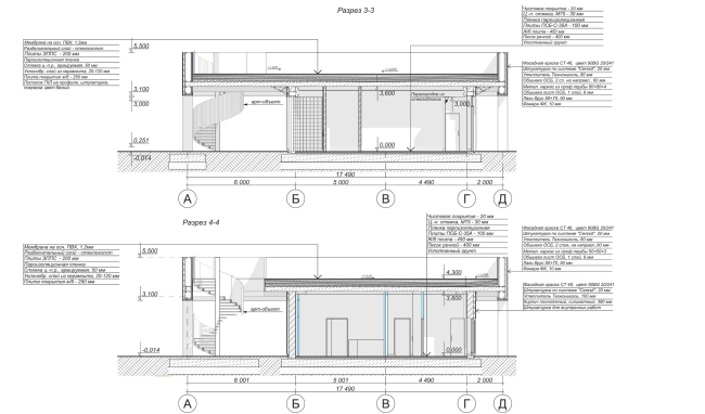
Два прямоугольных объема объединены единой кровлей, с включением между ними контрастного плавного художественного объекта – винтовой лестницы. 

Работы на территории продолжались два года. Павильон детского развивающего центра завершил  комплекс благоустройства парка. Сейчас в павильоне – сразу два центра – «Майский жук» – для малышей от года до семи лет и центр «Мишель», оборудованный интерактивным полом и стенами.
«Майский»
Предоставлено ПБ «ГОРА»
«Майский»
Предоставлено ПБ «ГОРА»
«Майский»
Предоставлено ПБ «ГОРА»
«Майский». Фасад
© ПБ «ГОРА»
«Майский». Боковой фасад
© ПБ «ГОРА»
«Майский». План
© ПБ «ГОРА»
«Майский». Разрез
© ПБ «ГОРА»

Архитекторы – партнеры Архи.ру:

  • Сергей Труханов
  • Василий Крапивин
  • Александр Котенков
  • Евгений Новосадюк
  • Андрей Асадов
  • Зураб Басария
  • Михаил Канунников
  • Юлия Солдатенкова
  • Олег Мединский
  • Евгений Зеленов
  • Александра Кузьмина
  • Андрей Романов
  • Сергей Скуратов
  • Виталий Лутц
  • Александр Самарин
  • Сергей Никешкин
  • Николай Кикава
  • Илья Машков
  • Вера Бутко
  • Раис Баишев
  • Николай Переслегин
  • Наталия Шилова
  • Ерлан Бекмухамедов
  • Никита Явейн
  • Георгий Трофимов
  • Энди Сноу
  • Марина Егорова
  • Елена Пучкова
  • Дмитрий Остроумов
  • Григориос Гавалидис
  • Станислав Белых
  • Антон Яр-Скрябин
  • Дмитрий Сухов
  • Екатерина Кузнецова
  • Сергей Чобан
  • Игорь Шварцман
  • Евгений Подгорнов
  • Владимир Плоткин
  • Игорь Членов
  • Ростислав Цайзер
  • Григорий Мустафин
  • Иван Кожин
  • Юлий Борисов
  • Полина Воеводина
  • Татьяна Зульхарнеева
  • Мария Ахременкова
  • Александр Скокан
  • Всеволод Медведев
  • Степан Липгарт
  • Михаил Давыдов
  • Павел Андреев
  • Александр Асадов
  • Олег Шапиро
  • Антон Надточий
  • Андрей Гнездилов
  • Сергей Кузнецов
  • Юлия Тряскина
  • Юлиана Княжевская
  • Наталья Сидорова
  • Константин Ходнев
  • Дмитрий Буш
  • Владислав Андреев
  • Анастасия Абашева
  • Алексей Орлов
  • Даниил Лоренц
  • Андрей Михайлов
  • Дмитрий Ликин
  • Валерий Каняшин
  • Сергей Переслегин
  • Борис Воскобойников
  • Тимур Абдуллаев
  • Екатерина Абдуллаева
  • Маргарита Авдышева
  • Левон Айрапетов
  • Александр Аношкин
  • Алексей Афоничкин
  • Владислав Бек-Булатов
  • Антон Белов
  • Татьяна Бузулукова
  • Петр Васильев
  • Данило Вукосавлевич
  • Андрей Вырва
  • Алина Георгиевская
  • Павел Гордеев
  • Илья Гринберг
  • Никита Демидов
  • Никита Дергунов
  • Наталья Жилкина
  • Алексей Зародов
  • Екатерина Зырина
  • Алексей Ильин
  • Дарья Ильина
  • Олег Карлсон
  • Алексей Кибкало
  • Денис Кувшинников
  • Анна Куликова
  • Алексей Курков
  • Данил Куров
  • Мария Кутай
  • Евгений Кутай
  • Иван Кычкин
  • Антон Ладыгин
  • Дмитрий Лапин
  • Борис Левянт
  • Илья Левянт
  • Катерина Левянт
  • Валерий Лукомский
  • Антон Лукомский
  • Екатерина Ляпунова
  • Иса Магомедов
  • Сергей Марков
  • Елена Мерцалова
  • Николай Миловидов
  • Станислав Михаловский
  • Сергей Мичурин
  • Олеся Могилевская
  • Филипп Никандров
  • Мария Николаева
  • Дмитрий Овчаров
  • Сергей Пергаев
  • Виктор Перов
  • Алексей Полищук
  • Роман Пономарёв
  • Валерия Преображенская
  • Виктория Раубо
  • Василий Рыбаков
  • Николай Рыбаков
  • Мария Салех
  • Александр Стариков
  • Илья Уткин
  • Елисей Чакан
  • Евгения Чернышева
  • Бориша Чорович
  • Олег Шурыгин
  • Дмитрий Шурыгин

Проект из каталога (случайный выбор)

Телеинформационный комплекс РФ
Александр Асадов, Андрей Асадов, 2004
Телеинформационный комплекс РФ

Постройки и проекты (новые записи):

  • Многофункциональный спортивный клуб Jet Arena
  • Павильон  Идеал
  • Флагманская кофейня Дринкит
  • Гостиница в Чите
  • ЖК Квартал 64
  • Деловое пространство «ПЛЭЙН»
  • Конкурсный проект ФИЦ / ТПО «Резерв»
  • Porta
  • Детский сад на 200 мест в Жилино-1

Новости российской архитектуры:

Красная карточка за авторское право
25.05.2026

Красная карточка за авторское право

Алексей Орлов, Дмитрий Буш, Ерлан Бекмухамедов
Новая коллекция МАФов
25.05.2026

Новая коллекция МАФов

Сергей Пергаев
Хвост кометы
22.05.2026

Хвост кометы

Андрей Волынцев, Анна Волынцева
На глубине 101
22.05.2026

На глубине 101

Дарья Белякова