RSS
предоставлено ПБ «ДА»
«На фасон Скобы» Главный фасад по Рождественской

«На фасон Скобы»

информация:

  • статус
    реализовано
  • даты
    2019 / — 2024
  • region=Нижегородская область area= address=улица Рождественская, 17 country_t=Россия city_t=Нижний Новгород
    место
    Нижний Новгород Нижегородская область улица Рождественская, 17
  • координаты
    56.330141, 43.994998
  • функция
    Многофункциональный комплекс / Многофункциональный комплекс
    Двухэтажное здание на сводчатых подвалах строилось как корпус общественных лавок – доход от сдачи их в аренду должен был пополнять городскую казну. И в XX- начале XXI здание оставалось торговым. После реконструкции и надстройки здесь разместился Центр повышения квалификации «Корпоративный университет Правительства Нижегородской области», офисы, ресторан.

авторский коллектив

Проектное бюро ДА: архитекторы Зоя Рюрикова, Анаит Огаджанян, Ирина Мизгирева,
конструктор Г.М. Грушевский


другие названия проекта
Реконструкция двухэтажного здания IX века на улице Рождественской

награды:

    Шорт-лист 16 рейтинга архитектуры Нижнего Новгорода
предоставлено ПБ «ДА»
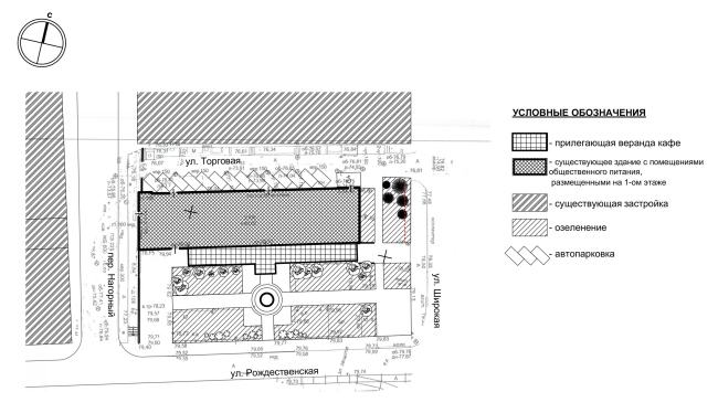
«На фасон Скобы» Схема генплана

Архи.ру об этом объекте:

20.02.2026

Рейтинг нижегородской архитектуры: шорт-лист

В середине марта в Нижнем Новгороде объявят победителя – или победителей – шестнадцатого архитектурного рейтинга. И разрежут торт в форме победившего здания. Сейчас, пока еще идет работа профессионального жюри, мы публикуем все проекты шорт-листа. Их шестнадцать.

Раз в два года в Нижнем Новгороде проводится конкурс-смотр лучших проектов нижегородских архитекторов. Этот конкурс новостроек проходит с 1997 года, рейтинг подсчитывается на основе двухэтапного опроса: длинный список обсуждают нижегородцы, и после п...   читать дальше
предоставлено ПБ «ДА»
«На фасон Скобы» Вид здания до пожара 2010-х

история проекта:

Торговый дом «Скоба» построенн  в 1859–1861 годах по проекту архитектора Николая Ивановича Ужумедского-Грицевича. Изначально здание было двух-этажным, П-образным в плане, за что получило народное название «Скоба», территория вокруг стала называться также.
В советский период  было утрачено левое крыло здания, а в 90-е годы правое. На момент начала проектирования в 2019 году здание сильно пострадало от пожара.   

описание:

Торговый дом «Скоба» построенн  в 1859–1861 годах по проекту архитектора Николая Ивановича Ужумедского-Грицевича. Изначально здание было двух-этажным, П-образным в плане, за что получило народное название «Скоба», территория вокруг стала называться также.Двухэтажное здание на сводчатых подвалах строилось как корпус общественных лавок – доход от сдачи их в аренду должен был пополнять городскую казну. И в XX- начале XXI здание оставалось торговым. 
В советский период  было утрачено левое крыло здания, а в 90-е годы правое. На момент начала проектирования в 2019 году здание сильно пострадало от пожара.   Проектом реконструкции была предусмотрена надстройка здания третьим этажом и мансардой. Фасады  очищены от штукатурки, кладка восстановлена, в декоре нового третьего этажа появились полукруглые колонны из фасонного кирпича, кровлю покрыли фальцованной медью. После реконструкции и надстройки здесь разместился Центр повышения квалификации «Корпоративный университет Правительства Нижегородской области», офисы, ресторан. Для ресторана «Гусь в яблоках» выполнена стеклянная веранда, по форме напоминающая трамвай – трамвай №1, что ходил по улице с 1896 года.
предоставлено ПБ «ДА»
«На фасон Скобы»
предоставлено ПБ «ДА»
«На фасон Скобы»
предоставлено ПБ «ДА»
«На фасон Скобы» Схема благоустройства
предоставлено ПБ «ДА»
«На фасон Скобы» Схема плана
предоставлено ПБ «ДА»
«На фасон Скобы» Вид на «Скобу» со стороны площади Народного единства
предоставлено ПБ «ДА»
«На фасон Скобы» Главный фасад
предоставлено ПБ «ДА»
«На фасон Скобы» Боковой фасад
предоставлено ПБ «ДА»
«На фасон Скобы»
https://gooserest.ru/#popup:infoblock_1
«На фасон Скобы» «Скоба» в 90-е прошлого века

Архитекторы – партнеры Архи.ру:

  • Станислав Белых
  • Степан Липгарт
  • Юлия Тряскина
  • Алексей Гинзбург
  • Дмитрий Ликин
  • Полина Воеводина
  • Евгений Подгорнов
  • Илья Машков
  • Иван Кожин
  • Екатерина Кузнецова
  • Олег Мединский
  • Антон Яр-Скрябин
  • Виталий Лутц
  • Никита Явейн
  • Андрей Чуйков
  • Вера Бутко
  • Григориос Гавалидис
  • Даниил Лоренц
  • Александра Кузьмина
  • Татьяна Зульхарнеева
  • Андрей Гнездилов
  • Ерлан Бекмухамедов
  • Всеволод Медведев
  • Михаил Давыдов
  • Сергей Скуратов
  • Сергей Чобан
  • Раис Баишев
  • Анастасия Абашева
  • Антон Надточий
  • Игорь Шварцман
  • Дмитрий Остроумов
  • Николай Кикава
  • Сергей Кузнецов
  • Андрей Романов
  • Наталия Шилова
  • Энди Сноу
  • Александр Асадов
  • Юлий Борисов
  • Сергей Никешкин
  • Олег Шапиро
  • Дмитрий Буш
  • Павел Андреев
  • Евгений Новосадюк
  • Василий Крапивин
  • Алексей Орлов
  • Александр Скокан
  • Андрей Михайлов
  • Анна Иванова
  • Владимир Плоткин
  • Михаил Канунников
  • Юлиана Княжевская
  • Григорий Мустафин
  • Сергей Труханов
  • Евгений Зеленов
  • Владислав Андреев
  • Роман Леонидов
  • Георгий Трофимов
  • Игорь Членов
  • Елена Пучкова
  • Ростислав Цайзер
  • Марина Егорова
  • Зураб Басария
  • Николай Переслегин
  • Юлия Солдатенкова
  • Александр Самарин
  • Дмитрий Сухов
  • Наталья Сидорова
  • Константин Ходнев
  • Валерий Каняшин
  • Андрей Асадов
  • Александр Котенков
  • Сергей Переслегин
  • Тимур Абдуллаев
  • Екатерина Абдуллаева
  • Маргарита Авдышева
  • Левон Айрапетов
  • Александр Аношкин
  • Алексей Афоничкин
  • Владислав Бек-Булатов
  • Антон Белов
  • Татьяна Бузулукова
  • Петр Васильев
  • Алина Георгиевская
  • Павел Гордеев
  • Илья Гринберг
  • Никита Демидов
  • Никита Дергунов
  • Наталья Жилкина
  • Алексей Зародов
  • Екатерина Зырина
  • Алексей Ильин
  • Дарья Ильина
  • Олег Карлсон
  • Алексей Кибкало
  • Денис Кувшинников
  • Анна Куликова
  • Алексей Курков
  • Алексей Курков
  • Данил Куров
  • Евгений Кутай
  • Мария Кутай
  • Антон Ладыгин
  • Антон Ладыгин
  • Дмитрий Лапин
  • Катерина Левянт
  • Илья Левянт
  • Борис Левянт
  • Антон Лукомский
  • Валерий Лукомский
  • Екатерина Ляпунова
  • Сергей Марков
  • Николай Миловидов
  • Станислав Михаловский
  • Олеся Могилевская
  • Мария Николаева
  • Виктор Перов
  • Алексей Полищук
  • Роман Пономарёв
  • Валерия Преображенская
  • Виктория Раубо
  • Василий Рыбаков
  • Мария Салех
  • Александр Стариков
  • Илья Уткин
  • Олег Шурыгин
  • Дмитрий Шурыгин

Проект из каталога (случайный выбор)

Постройки и проекты (новые записи):

  • Дворец бильярда в Мневниковской пойме
  • БЦ в Раменках
  • БЦ на Верейской улице
  • DELO HOUSE 3.2 с флигелем
  • Ледовый дворец Navka Arena
  • Благоустройство территории ЖК Holms Residence
  • Игровое пространство у театра им. Г.К. Камала
  • Вторая ось
  • Концепция проекта храмового комплекса в Куркино, Москва

Новости российской архитектуры:

Визуальная чистота
20.02.2026

Визуальная чистота

Александр Жидков, Михаил Гуманков
Кирпичная вуаль
20.02.2026

Кирпичная вуаль

Айк Навасардян, Рубен Аракелян
Иглы созерцания горизонта
19.02.2026

Иглы созерцания горизонта

Николай Переслегин, Георгий Трофимов, Сергей Переслегин
Отель у озера
18.02.2026

Отель у озера

Тимур Абдуллаев, Екатерина Абдуллаева