RSS
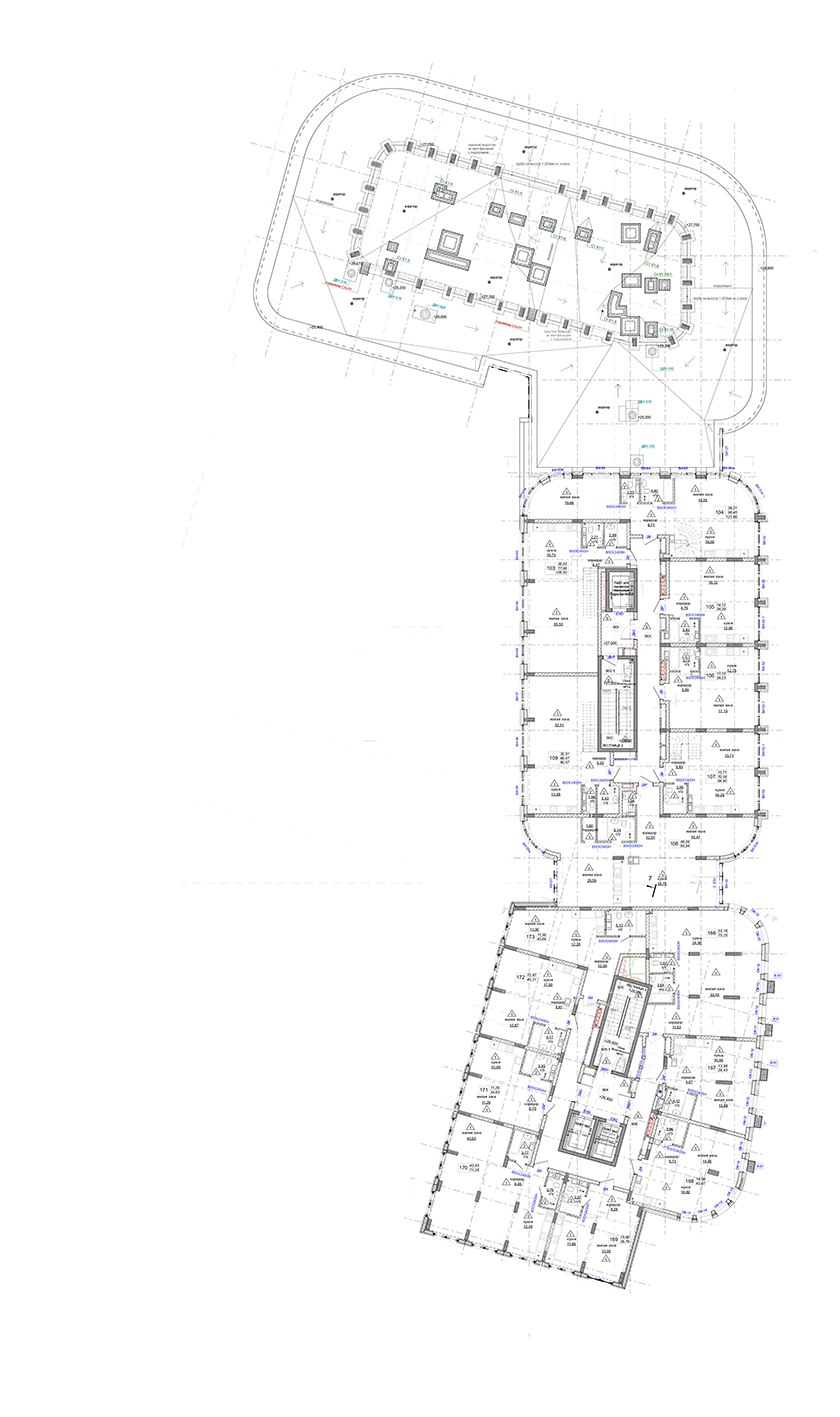
«Три толстяка» План 7 этажа
Проектная Компания «ГОРПРО»

Три толстяка

информация:

  • статус
    реализовано
  • даты
    2023 / — 2025
  • region=Нижегородская область area= address=Дальняя улица, 10 country_t=Россия city_t=Нижний Новгород
    место
    Нижний Новгород Нижегородская область Дальняя улица, 10
  • координаты
    56.314319, 43.976715
  • функция
    Жилой / многоквартирный дом
  • площадь застройки
    24 192,08м2 м2
  • общая площадь
    24 192,08м2 м2
  • этажность
    9-11-14
  • ссылки:

авторский коллектив

ГОРПРО: Максим Горев, Ольга Земскова, Маргарита Шишкина

 


другие названия проекта
Многоквартирный дом со встроенными помещениями общественного назначения и подземной стоянкой автомобилей, расположенный на территории в границах улиц Ереванская, Дальняя в Нижегородском районе города Нижнего Новгорода

награды:

    Шорт-лист 16 рейтинга архитектуры Нижнего Новгорода
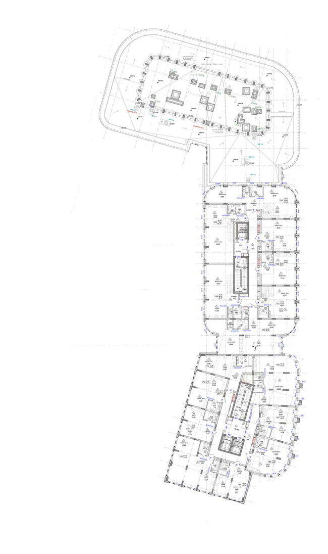
«Три толстяка» План первого этажа
Проектная Компания «ГОРПРО»

Архи.ру об этом объекте:

20.02.2026

Рейтинг нижегородской архитектуры: шорт-лист

В середине марта в Нижнем Новгороде объявят победителя – или победителей – шестнадцатого архитектурного рейтинга. И разрежут торт в форме победившего здания. Сейчас, пока еще идет работа профессионального жюри, мы публикуем все проекты шорт-листа. Их шестнадцать.

Раз в два года в Нижнем Новгороде проводится конкурс-смотр лучших проектов нижегородских архитекторов. Этот конкурс новостроек проходит с 1997 года, рейтинг подсчитывается на основе двухэтапного опроса: длинный список обсуждают нижегородцы, и после п...   читать дальше
«Три толстяка» Фрагмент дворового фасада
Фотография предоставлена "AlcoteK®"

описание:

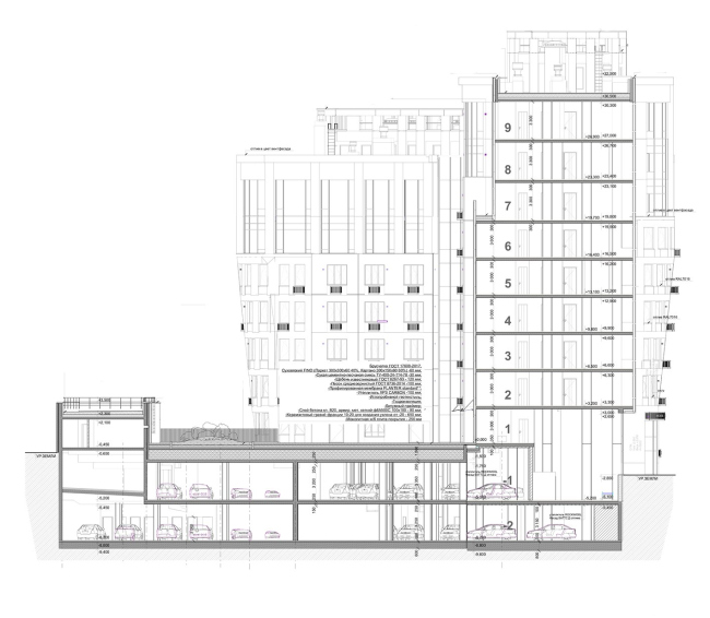
Здание расположено на высоком берегу Оки и является градостроительной доминантой по пути следования от метромоста до улицы Барминская и далее до Окского съезда. Территория  характеризуется значительными  перепадами рельефа, что оказало влияние на характер объемно-пространственного решения многофункционального здания. Оно представляет собой  комбинацию трех объемов – секций с переменной этажностью, вытянутую в плане. В двухуровневой подземной части здания расположены стоянка автомобилей, кладовые для хранения шин, технические помещения и помещения общественного значения. На отм. -5,100, -8,700 располагается стоянка автомобилей на 142 м/м, кладовые для хранения шин и технические помещения. На минус первом этаже (-5,100) расположены помещения общественного значения. На первом этаже здания – помещения общественного назначения и в первой секции – жилые квартиры. С 2 по 12 этажи – жилые квартиры.

Основная конструктивная схема здания – монолитная железобетонная каркасная система с вертикальными железобетонными стенами, колоннами и пилонами, связанными горизонтальными дисками перекрытий с ядрами жёсткости лестничных, лифтовых узлов.

архитектурно-планировочные решения:

Здание – трехсекционное, имеет разное количество и высоту этажей. Первая секция – 7-этажная, с 1 по 5 этажи высота этажа – 3,3 м; 6–7 этажи высота 3,6 м. Вторая – 9-этажная секция, со 2–6 этажи высота – 3,3 м; 7–9 этажи -3,6 м. Третья секция – 12-этажная, с 2–9 этажи – 3,3 м; с 10–12 этажи – 3,6 м. Высота автостоянки: минус второй уровень – 3,6 м, минус первый уровень – 3,3 м. Помещения общественного значения имеют разновысотную конфигурацию – 3,3 м, 5,4 м, 8,4 м.

Интенсивный наклон рельефа обуславливает планировку жилых и общественных помещений. Входы в здание организуются с нескольких уровней, с внутренней дворовой части в здание с отм. 0.000, с северной части здания вдоль всего фасада, обращенного на улицы Одесская, Ереванская входы осуществляются с различных планировочных отметок от -5,100 до – 1,500.

решения генерального плана:

Территория объекта ограничена существующей магистралью городского значения с восточной стороны – съезд на Метромост, с южной стороны – улицами местного значения в жилой застройке – улицей Ереванская, с западной стороны – улицей Дальняя, с северной – техническим проездом

«Три толстяка» Дворовый фасад
Фотография Александра Ивасенко предоставлена Проектная Компания «ГОРПРО»
«Три толстяка» Фрагмент со стороны двора
Фотография Александра Ивасенко предоставлена Проектная Компания «ГОРПРО»
«Три толстяка» фрагмент фасада
Фотография предоставлена "AlcoteK®"
Так «Три толстяка» выглядят с улицы Ереванской
Фотография Александра Ивасенко предоставлена Проектная Компания «ГОРПРО»
«Три толстяка» – не коммерческое название, а придуманное по традиции «Рейтинга архитектуры»
Фотография Александра Ивасенко предоставлена Проектная Компания «ГОРПРО»
«Три толстяка» Вид с армянской церковью
Фотография Александра Ивасенко предоставлена Проектная Компания «ГОРПРО»
«Три толстяка» Вид со стороны улицы Барминской
Фотография Александра Ивасенко предоставлена Проектная Компания «ГОРПРО»
«Три толстяка» План 9 этажа
Проектная Компания «ГОРПРО»
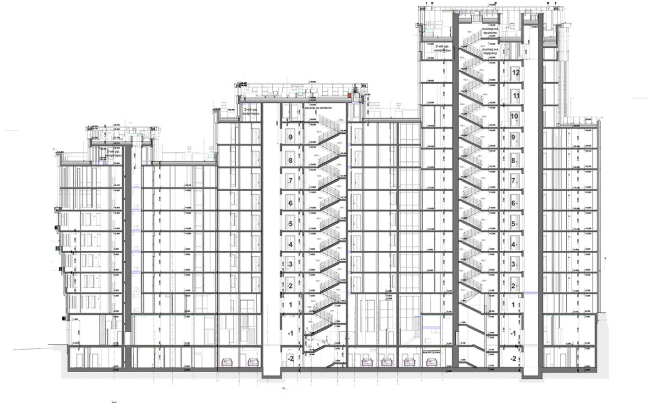
«Три толстяка» Разрез
Проектная Компания «ГОРПРО»
«Три толстяка» Разрез
Проектная Компания «ГОРПРО»

Архитекторы – партнеры Архи.ру:

  • Станислав Белых
  • Степан Липгарт
  • Юлия Тряскина
  • Алексей Гинзбург
  • Дмитрий Ликин
  • Полина Воеводина
  • Евгений Подгорнов
  • Илья Машков
  • Иван Кожин
  • Екатерина Кузнецова
  • Олег Мединский
  • Антон Яр-Скрябин
  • Виталий Лутц
  • Никита Явейн
  • Андрей Чуйков
  • Вера Бутко
  • Григориос Гавалидис
  • Даниил Лоренц
  • Александра Кузьмина
  • Татьяна Зульхарнеева
  • Андрей Гнездилов
  • Ерлан Бекмухамедов
  • Всеволод Медведев
  • Михаил Давыдов
  • Сергей Скуратов
  • Сергей Чобан
  • Раис Баишев
  • Анастасия Абашева
  • Антон Надточий
  • Игорь Шварцман
  • Дмитрий Остроумов
  • Николай Кикава
  • Сергей Кузнецов
  • Андрей Романов
  • Наталия Шилова
  • Энди Сноу
  • Александр Асадов
  • Юлий Борисов
  • Сергей Никешкин
  • Олег Шапиро
  • Дмитрий Буш
  • Павел Андреев
  • Евгений Новосадюк
  • Василий Крапивин
  • Алексей Орлов
  • Александр Скокан
  • Андрей Михайлов
  • Анна Иванова
  • Владимир Плоткин
  • Михаил Канунников
  • Юлиана Княжевская
  • Григорий Мустафин
  • Сергей Труханов
  • Евгений Зеленов
  • Владислав Андреев
  • Роман Леонидов
  • Георгий Трофимов
  • Игорь Членов
  • Елена Пучкова
  • Ростислав Цайзер
  • Марина Егорова
  • Зураб Басария
  • Николай Переслегин
  • Юлия Солдатенкова
  • Александр Самарин
  • Дмитрий Сухов
  • Наталья Сидорова
  • Константин Ходнев
  • Валерий Каняшин
  • Андрей Асадов
  • Александр Котенков
  • Сергей Переслегин
  • Тимур Абдуллаев
  • Екатерина Абдуллаева
  • Маргарита Авдышева
  • Левон Айрапетов
  • Александр Аношкин
  • Алексей Афоничкин
  • Владислав Бек-Булатов
  • Антон Белов
  • Татьяна Бузулукова
  • Петр Васильев
  • Алина Георгиевская
  • Павел Гордеев
  • Илья Гринберг
  • Никита Демидов
  • Никита Дергунов
  • Наталья Жилкина
  • Алексей Зародов
  • Екатерина Зырина
  • Алексей Ильин
  • Дарья Ильина
  • Олег Карлсон
  • Алексей Кибкало
  • Денис Кувшинников
  • Анна Куликова
  • Алексей Курков
  • Алексей Курков
  • Данил Куров
  • Евгений Кутай
  • Мария Кутай
  • Антон Ладыгин
  • Антон Ладыгин
  • Дмитрий Лапин
  • Катерина Левянт
  • Илья Левянт
  • Борис Левянт
  • Антон Лукомский
  • Валерий Лукомский
  • Екатерина Ляпунова
  • Сергей Марков
  • Николай Миловидов
  • Станислав Михаловский
  • Олеся Могилевская
  • Мария Николаева
  • Виктор Перов
  • Алексей Полищук
  • Роман Пономарёв
  • Валерия Преображенская
  • Виктория Раубо
  • Василий Рыбаков
  • Мария Салех
  • Александр Стариков
  • Илья Уткин
  • Олег Шурыгин
  • Дмитрий Шурыгин

Проект из каталога (случайный выбор)

Постройки и проекты (новые записи):

  • Дворец бильярда в Мневниковской пойме
  • БЦ в Раменках
  • БЦ на Верейской улице
  • DELO HOUSE 3.2 с флигелем
  • Ледовый дворец Navka Arena
  • Благоустройство территории ЖК Holms Residence
  • Игровое пространство у театра им. Г.К. Камала
  • Вторая ось
  • Концепция проекта храмового комплекса в Куркино, Москва

Новости российской архитектуры:

Визуальная чистота
20.02.2026

Визуальная чистота

Александр Жидков, Михаил Гуманков
Кирпичная вуаль
20.02.2026

Кирпичная вуаль

Айк Навасардян, Рубен Аракелян
Иглы созерцания горизонта
19.02.2026

Иглы созерцания горизонта

Николай Переслегин, Георгий Трофимов, Сергей Переслегин
Отель у озера
18.02.2026

Отель у озера

Тимур Абдуллаев, Екатерина Абдуллаева