RSS
Апартаменты на улице Родионова
Фотография: предоставлена «ГОРПРО»

«Синий»

информация:

  • статус
    реализовано
  • даты
    20222024
  • region= area= address=улица Родионова, 136Б country_t=Россия city_t=Нижний Новгород
    место
    Нижний Новгород улица Родионова, 136Б
  • координаты
    56.317293, 44.068374
  • функция
    Жилой / апартаменты длительного проживания
Максим Горев
Россия

авторский коллектив

«Горпро»: архитекторы Максим Горев, Маргарита Шишкина


другие названия проекта
Апартаменты на улице Родионова

награды:

    Шорт-лист 16 рейтинга архитектуры Нижнего Новгорода
Апартаменты на улице Родионова
Фотография: предоставлена «ГОРПРО»

Архи.ру об этом объекте:

20.02.2026

Рейтинг нижегородской архитектуры: шорт-лист

В середине марта в Нижнем Новгороде объявят победителя – или победителей – шестнадцатого архитектурного рейтинга. И разрежут торт в форме победившего здания. Сейчас, пока еще идет работа профессионального жюри, мы публикуем все проекты шорт-листа. Их шестнадцать.

Раз в два года в Нижнем Новгороде проводится конкурс-смотр лучших проектов нижегородских архитекторов. Этот конкурс новостроек проходит с 1997 года, рейтинг подсчитывается на основе двухэтапного опроса: длинный список обсуждают нижегородцы, и после п...   читать дальше
Апартаменты на улице Родионова
Фотография: предоставлена «ГОРПРО»

описание:

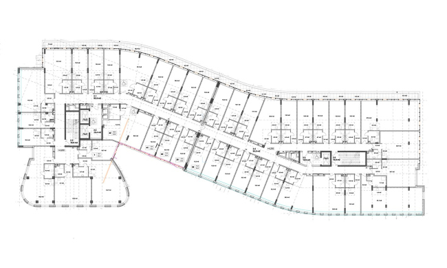
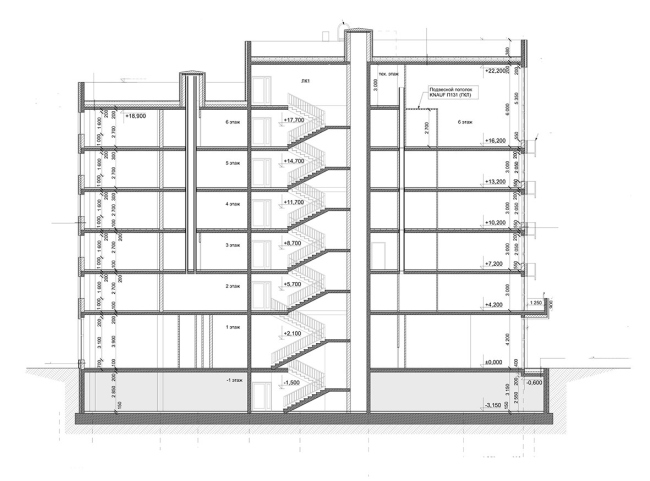
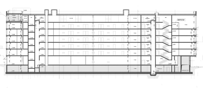
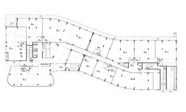
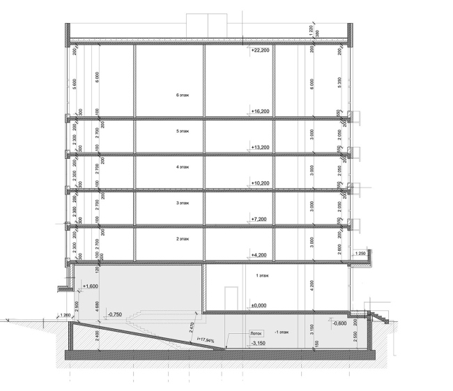
Здание представляет собой изогнутый плавный объем из 7 (6+технический) этажей, стыкующийся с бочкообразным синим объемом из 6 этажей, со встроенными помещениями общественного назначения (1 этаж), техническим этажом (h=3 м) и подземной автостоянкой.

Размеры здания в плане 81,0х34,2 м. На первом этаже располагаются коммерческие помещения и помещения гостиницы. На 2–6 этажах располагаются апартаменты гостиницы. Связь этажей – за счет лестниц и лифтов. На -1 этаже – автостоянка и технические помещения. Автостоянка размещена в одном пожарном отсеке. Каждый этаж гостиницы представляет собой отдельный пожарный отсек. На техническом этаже размещены машинные помещения лифтов. На эксплуатируемой кровле – помещение котельной, вент. оборудование.

Конструктивная схема – монолитный ж/б каркас, наружные стены из газосиликатных блоков, утеплителя, вент. фасада и тонкостенной штукатурки. Кровля плоская утепленная.
Апартаменты на улице Родионова
Фотография: предоставлена «ГОРПРО»
Апартаменты на улице Родионова
Фотография: предоставлена «ГОРПРО»
Апартаменты на улице Родионова
Апартаменты на улице Родионова
Фотография: предоставлена «ГОРПРО»
Апартаменты на улице Родионова
Фотография © Владимир Гудков / предоставлена «ГОРПРО»
Апартаменты на улице Родионова
Фотография © Владимир Гудков / предоставлена «ГОРПРО»
Апартаменты на улице Родионова
Фотография © Владимир Гудков / предоставлена «ГОРПРО»
Апартаменты на улице Родионова
Фотография © Владимир Гудков / предоставлена «ГОРПРО»
Апартаменты на улице Родионова
Фотография © Владимир Гудков / предоставлена «ГОРПРО»
Апартаменты на улице Родионова
Фотография © Владимир Гудков / предоставлена «ГОРПРО»
Апартаменты на улице Родионова
Фотография © Владимир Гудков / предоставлена «ГОРПРО»
Апартаменты на улице Родионова
Фотография © Владимир Гудков / предоставлена «ГОРПРО»
Апартаменты на улице Родионова
Фотография © Владимир Гудков / предоставлена «ГОРПРО»
Апартаменты на улице Родионова
Фотография © Владимир Гудков / предоставлена «ГОРПРО»
Апартаменты на улице Родионова
Фотография © Владимир Гудков / предоставлена «ГОРПРО»
Апартаменты на улице Родионова
Фотография © Владимир Гудков / предоставлена «ГОРПРО»
Апартаменты на улице Родионова
Фотография © Владимир Гудков / предоставлена «ГОРПРО»
Апартаменты на улице Родионова
Фотография © Владимир Гудков / предоставлена «ГОРПРО»
Апартаменты на улице Родионова
Фотография © Владимир Гудков / предоставлена «ГОРПРО»
Апартаменты на улице Родионова
Фотография © Владимир Гудков / предоставлена «ГОРПРО»
Апартаменты на улице Родионова
Фотография © Владимир Гудков / предоставлена «ГОРПРО»
Апартаменты на улице Родионова
Фотография © Владимир Гудков / предоставлена «ГОРПРО»
Апартаменты на улице Родионова
Фотография © Владимир Гудков / предоставлена «ГОРПРО»
Апартаменты на улице Родионова
Фотография © Владимир Гудков / предоставлена «ГОРПРО»
Апартаменты на улице Родионова
Фотография © Владимир Гудков / предоставлена «ГОРПРО»
Апартаменты на улице Родионова
Фотография © Владимир Гудков / предоставлена «ГОРПРО»
Апартаменты на улице Родионова
Фотография © Владимир Гудков / предоставлена «ГОРПРО»
Апартаменты на улице Родионова
Фотография © Владимир Гудков / предоставлена «ГОРПРО»
Апартаменты на улице Родионова
Фотография © Владимир Гудков / предоставлена «ГОРПРО»
Апартаменты на улице Родионова
Фотография © Владимир Гудков / предоставлена «ГОРПРО»
Апартаменты на улице Родионова
Фотография © Владимир Гудков / предоставлена «ГОРПРО»
Апартаменты на улице Родионова
Фотография © Владимир Гудков / предоставлена «ГОРПРО»
Апартаменты на улице Родионова
Фотография © Владимир Гудков / предоставлена «ГОРПРО»
Апартаменты на улице Родионова
Фотография © Владимир Гудков / предоставлена «ГОРПРО»
Апартаменты на улице Родионова
Фотография © Владимир Гудков / предоставлена «ГОРПРО»
Апартаменты на улице Родионова
Фотография © Владимир Гудков / предоставлена «ГОРПРО»
Апартаменты на улице Родионова
Фотография © Владимир Гудков / предоставлена «ГОРПРО»
Апартаменты на улице Родионова
Фотография © Владимир Гудков / предоставлена «ГОРПРО»
Апартаменты на улице Родионова
Фотография © Владимир Гудков / предоставлена «ГОРПРО»
Апартаменты на улице Родионова
Фотография © Владимир Гудков / предоставлена «ГОРПРО»
Апартаменты на улице Родионова
Фотография © Владимир Гудков / предоставлена «ГОРПРО»
Апартаменты на улице Родионова
Фотография © Владимир Гудков / предоставлена «ГОРПРО»
Апартаменты на улице Родионова
Фотография © Владимир Гудков / предоставлена «ГОРПРО»
Апартаменты на улице Родионова
Фотография © Владимир Гудков / предоставлена «ГОРПРО»
Апартаменты на улице Родионова
© «ГОРПРО»
Апартаменты на улице Родионова
© «ГОРПРО»
Апартаменты на улице Родионова
© «ГОРПРО»
Апартаменты на улице Родионова
© «ГОРПРО»
Апартаменты на улице Родионова
© «ГОРПРО»

Архитекторы – партнеры Архи.ру:

  • Игорь Шварцман
  • Андрей Романов
  • Василий Крапивин
  • Андрей Асадов
  • Владимир Плоткин
  • Валерий Каняшин
  • Георгий Трофимов
  • Сергей Переслегин
  • Евгений Зеленов
  • Антон Яр-Скрябин
  • Григорий Мустафин
  • Сергей Никешкин
  • Дмитрий Остроумов
  • Иван Кожин
  • Елена Пучкова
  • Энди Сноу
  • Михаил Канунников
  • Вера Бутко
  • Михаил Давыдов
  • Сергей Чобан
  • Юлий Борисов
  • Полина Воеводина
  • Юлия Солдатенкова
  • Александр Самарин
  • Николай Переслегин
  • Олег Мединский
  • Александр Скокан
  • Даниил Лоренц
  • Александр Котенков
  • Владислав Андреев
  • Антон Надточий
  • Никита Явейн
  • Дмитрий Буш
  • Константин Ходнев
  • Екатерина Кузнецова
  • Сергей Скуратов
  • Юлия Тряскина
  • Сергей Кузнецов
  • Дмитрий Ликин
  • Раис Баишев
  • Степан Липгарт
  • Евгений Подгорнов
  • Илья Машков
  • Андрей Гнездилов
  • Всеволод Медведев
  • Сергей Труханов
  • Павел Андреев
  • Юлиана Княжевская
  • Алексей Орлов
  • Зураб Басария
  • Татьяна Зульхарнеева
  • Станислав Белых
  • Марина Егорова
  • Наталья Сидорова
  • Виталий Лутц
  • Андрей Михайлов
  • Евгений Новосадюк
  • Николай Кикава
  • Наталия Шилова
  • Ерлан Бекмухамедов
  • Ростислав Цайзер
  • Олег Шапиро
  • Александр Асадов
  • Игорь Членов
  • Анастасия Абашева
  • Дмитрий Сухов
  • Александра Кузьмина
  • Григориос Гавалидис
  • Тимур Абдуллаев
  • Екатерина Абдуллаева
  • Маргарита Авдышева
  • Левон Айрапетов
  • Александр Аношкин
  • Алексей Афоничкин
  • Владислав Бек-Булатов
  • Антон Белов
  • Татьяна Бузулукова
  • Петр Васильев
  • Данило Вукосавлевич
  • Алина Георгиевская
  • Павел Гордеев
  • Илья Гринберг
  • Никита Демидов
  • Никита Дергунов
  • Наталья Жилкина
  • Алексей Зародов
  • Екатерина Зырина
  • Алексей Ильин
  • Дарья Ильина
  • Олег Карлсон
  • Алексей Кибкало
  • Денис Кувшинников
  • Анна Куликова
  • Алексей Курков
  • Данил Куров
  • Мария Кутай
  • Евгений Кутай
  • Иван Кычкин
  • Антон Ладыгин
  • Дмитрий Лапин
  • Борис Левянт
  • Илья Левянт
  • Катерина Левянт
  • Валерий Лукомский
  • Антон Лукомский
  • Екатерина Ляпунова
  • Иса Магомедов
  • Сергей Марков
  • Елена Мерцалова
  • Николай Миловидов
  • Станислав Михаловский
  • Сергей Мичурин
  • Олеся Могилевская
  • Мария Николаева
  • Дмитрий Овчаров
  • Сергей Пергаев
  • Виктор Перов
  • Алексей Полищук
  • Роман Пономарёв
  • Валерия Преображенская
  • Виктория Раубо
  • Василий Рыбаков
  • Николай Рыбаков
  • Мария Салех
  • Александр Стариков
  • Илья Уткин
  • Елисей Чакан
  • Бориша Чорович
  • Олег Шурыгин
  • Дмитрий Шурыгин

Проект из каталога (случайный выбор)

Постройки и проекты (новые записи):

  • Архитектурная концепция кластера Ломоносов-2
  • Клубный дом в 1-м Казачьем переулке
  • Частный дом в Ленинградской области
  • Гостиничный комплекс Cosmos Selection Derbent 5
  • Офис компании АльфаСтрахование
  • MIDITI
  • Офис компании Kept
  • Дом Спорта
  • ЖК Camelia

Новости российской архитектуры:

Всматриваясь вдаль
21.04.2026

Всматриваясь вдаль

Иван Казадаев
«Лотус» над пустыней
21.04.2026

«Лотус» над пустыней

Бориша Чорович, Данило Вукосавлевич, Елисей Чакан
Гипербола в кирпиче
17.04.2026

Гипербола в кирпиче

Олег Беляев