RSS
ЖК «Бугров»
Фотография: предоставлена НПО «Архстрой»

«Бугров»

информация:

  • статус
    реализовано
  • даты
    20232025
  • region=Нижегородская область area= address=ул. Молитовская country_t=Россия city_t=Нижний Новгород
    место
    Нижний Новгород Нижегородская область ул. Молитовская
  • координаты
    56.296584, 43.948814
  • функция
    Жилой / жилой комплекс
  • общая площадь
    34 050 м2
  • этажность
    24
  • 478 квартир

авторский коллектив

НПО «АРХСТРОЙ»: Александр Дехтяр, Анна Дряхлова, Анастасия Тхорева

партнеры, заказчики, смежники

Генеральное проектирование: ООО «Волговятпроектстрой»

другие названия проекта
Жилой комплекс «БУГРОВ» на улице Молитовской в Нижнем Новгороде

награды:

    Шорт-лист 16 рейтинга архитектуры Нижнего Новгорода
ЖК «Бугров»
Фотография: предоставлена НПО «Архстрой»

Архи.ру об этом объекте:

20.02.2026

Рейтинг нижегородской архитектуры: шорт-лист

В середине марта в Нижнем Новгороде объявят победителя – или победителей – шестнадцатого архитектурного рейтинга. И разрежут торт в форме победившего здания. Сейчас, пока еще идет работа профессионального жюри, мы публикуем все проекты шорт-листа. Их шестнадцать.

Раз в два года в Нижнем Новгороде проводится конкурс-смотр лучших проектов нижегородских архитекторов. Этот конкурс новостроек проходит с 1997 года, рейтинг подсчитывается на основе двухэтапного опроса: длинный список обсуждают нижегородцы, и после п...   читать дальше
Вид с парковки ТЦ. ЖК «Бугров»
Фотография: предоставлена НПО «Архстрой»

описание:

ЖК располагается на второй линии от площади Комсомольской, в геометрии впередистоящего здания торгового центра. Оба здания имеют «сквозной» проход на 1 этаже, что помогает организовать «двор без машин». Дома образуют выразительный «куст» доминант, отвечающих домам ЖК «Аквамарин» на северной стороне площади Комсомольской и формируют речной фасад, открывающийся с верхней части города и Молитовского моста.

Здание представляет собой структурированный монообъем с динамичными «зазубринами». Структурно разделен на два блока – «рыжий» и «белый» с подсечкой. Вертикальные белые пилоны, уходящие вверх и собранные над основным парапетом здания, создают законченный и выразительный образ. Корзины для кондиционеров добавляют структурности и мелкой пластики.
ЖК «Бугров»
Фотография: предоставлена НПО «Архстрой»
ЖК «Бугров»
Фотография: предоставлена НПО «Архстрой»
ЖК «Бугров»
Фотография: предоставлена НПО «Архстрой»
Генплан. ЖК «Бугров»
© НПО «Архстрой»
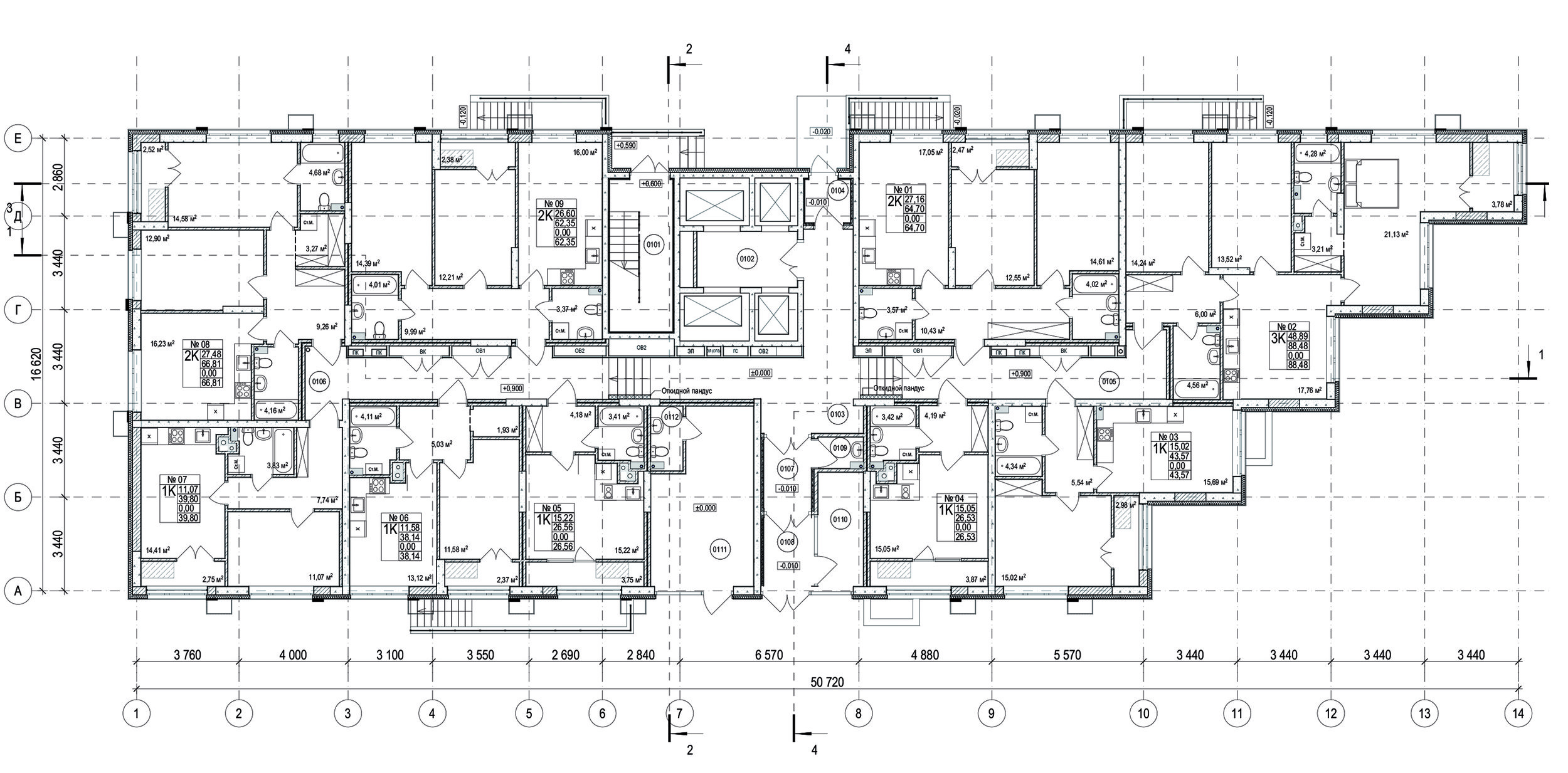
План первого дома. ЖК «Бугров»
© НПО «Архстрой»
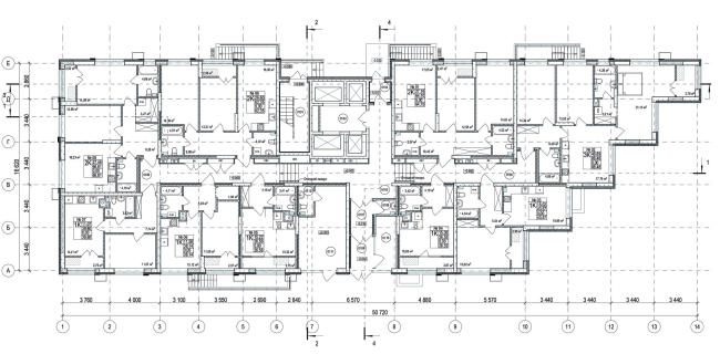
План второго дома. ЖК «Бугров»
© НПО «Архстрой»
Разрезы. ЖК «Бугров»
© НПО «Архстрой»

Архитекторы – партнеры Архи.ру:

  • Станислав Белых
  • Степан Липгарт
  • Юлия Тряскина
  • Алексей Гинзбург
  • Дмитрий Ликин
  • Полина Воеводина
  • Евгений Подгорнов
  • Илья Машков
  • Иван Кожин
  • Екатерина Кузнецова
  • Олег Мединский
  • Антон Яр-Скрябин
  • Виталий Лутц
  • Никита Явейн
  • Андрей Чуйков
  • Вера Бутко
  • Григориос Гавалидис
  • Даниил Лоренц
  • Александра Кузьмина
  • Татьяна Зульхарнеева
  • Андрей Гнездилов
  • Ерлан Бекмухамедов
  • Всеволод Медведев
  • Михаил Давыдов
  • Сергей Скуратов
  • Сергей Чобан
  • Раис Баишев
  • Анастасия Абашева
  • Антон Надточий
  • Игорь Шварцман
  • Дмитрий Остроумов
  • Николай Кикава
  • Сергей Кузнецов
  • Андрей Романов
  • Наталия Шилова
  • Энди Сноу
  • Александр Асадов
  • Юлий Борисов
  • Сергей Никешкин
  • Олег Шапиро
  • Дмитрий Буш
  • Павел Андреев
  • Евгений Новосадюк
  • Василий Крапивин
  • Алексей Орлов
  • Александр Скокан
  • Андрей Михайлов
  • Анна Иванова
  • Владимир Плоткин
  • Михаил Канунников
  • Юлиана Княжевская
  • Григорий Мустафин
  • Сергей Труханов
  • Евгений Зеленов
  • Владислав Андреев
  • Роман Леонидов
  • Георгий Трофимов
  • Игорь Членов
  • Елена Пучкова
  • Ростислав Цайзер
  • Марина Егорова
  • Зураб Басария
  • Николай Переслегин
  • Юлия Солдатенкова
  • Александр Самарин
  • Дмитрий Сухов
  • Наталья Сидорова
  • Константин Ходнев
  • Валерий Каняшин
  • Андрей Асадов
  • Александр Котенков
  • Сергей Переслегин
  • Тимур Абдуллаев
  • Екатерина Абдуллаева
  • Маргарита Авдышева
  • Левон Айрапетов
  • Александр Аношкин
  • Алексей Афоничкин
  • Владислав Бек-Булатов
  • Антон Белов
  • Татьяна Бузулукова
  • Петр Васильев
  • Алина Георгиевская
  • Павел Гордеев
  • Илья Гринберг
  • Никита Демидов
  • Никита Дергунов
  • Наталья Жилкина
  • Алексей Зародов
  • Екатерина Зырина
  • Алексей Ильин
  • Дарья Ильина
  • Олег Карлсон
  • Алексей Кибкало
  • Денис Кувшинников
  • Анна Куликова
  • Алексей Курков
  • Алексей Курков
  • Данил Куров
  • Евгений Кутай
  • Мария Кутай
  • Антон Ладыгин
  • Антон Ладыгин
  • Дмитрий Лапин
  • Катерина Левянт
  • Илья Левянт
  • Борис Левянт
  • Антон Лукомский
  • Валерий Лукомский
  • Екатерина Ляпунова
  • Сергей Марков
  • Николай Миловидов
  • Станислав Михаловский
  • Олеся Могилевская
  • Мария Николаева
  • Виктор Перов
  • Алексей Полищук
  • Роман Пономарёв
  • Валерия Преображенская
  • Виктория Раубо
  • Василий Рыбаков
  • Мария Салех
  • Александр Стариков
  • Илья Уткин
  • Олег Шурыгин
  • Дмитрий Шурыгин

Проект из каталога (случайный выбор)

Постройки и проекты (новые записи):

  • Дворец бильярда в Мневниковской пойме
  • БЦ в Раменках
  • БЦ на Верейской улице
  • DELO HOUSE 3.2 с флигелем
  • Ледовый дворец Navka Arena
  • Благоустройство территории ЖК Holms Residence
  • Игровое пространство у театра им. Г.К. Камала
  • Вторая ось
  • Концепция проекта храмового комплекса в Куркино, Москва

Новости российской архитектуры:

Визуальная чистота
20.02.2026

Визуальная чистота

Александр Жидков, Михаил Гуманков
Кирпичная вуаль
20.02.2026

Кирпичная вуаль

Айк Навасардян, Рубен Аракелян
Иглы созерцания горизонта
19.02.2026

Иглы созерцания горизонта

Николай Переслегин, Георгий Трофимов, Сергей Переслегин
Отель у озера
18.02.2026

Отель у озера

Тимур Абдуллаев, Екатерина Абдуллаева