RSS
Благотворительный фонд им. Алены Петровой
Фотография предоставлена Фондом Алёны Петровой

Благотворительный фонд им. Алены Петровой

информация:

  • статус
    реализовано
  • даты
    05.2015 / 08.2015 — 06.2017
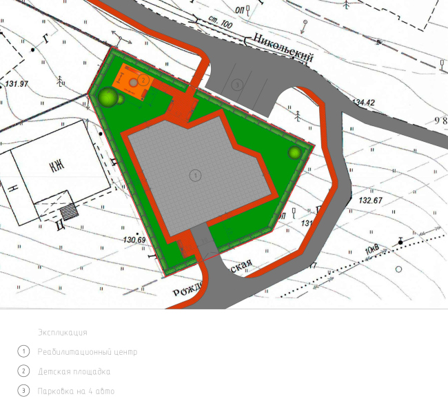
  • region= area= address=переулок Никольский, 19 country_t=Россия city_t=Томск
    место
    Томск переулок Никольский, 19
  • координаты
    56.484218, 85.042690
  • функция
    Туризм/здравоохранение / Больница
    Детский реабилитационный центр
  • площадь участка
    0,0735 га
  • площадь подземная
    585,13 м2
  • общая площадь
    1 686,33 м2
  • высота
    11,1
  • этажность
    2
  • строительный объем
    9 620,6 м3

авторский коллектив

ГАП – Василий Рыбаков; руководитель проекта – Анастасия Жарикова; архитектор – Ольга Мищенко; инженер–конструктор – Алексей Чередниченко

партнеры, заказчики, смежники

Смежники: специалист по отоплению и вентиляции – Дмитрий Торгонский; специалист по водоснабжению и канализации – Елена Порватова

Заказчик: Общественно полезный некоммерческий детский благотворительный фонд (ОПНДБФ) имени Алены Петровой
Благотворительный фонд им. Алены Петровой
Фотография предоставлена Фондом Алёны Петровой
Благотворительный фонд им. Алены Петровой
Фотография предоставлена Фондом Алёны Петровой

описание:

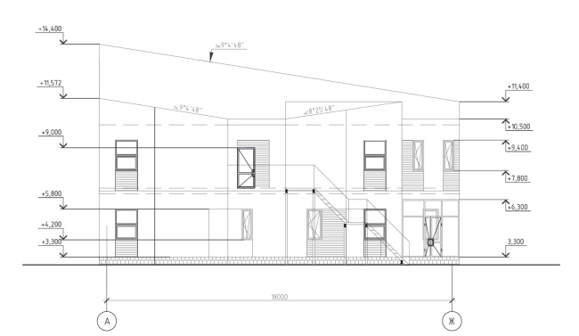
Здание детского благотворительного фонда имени Алёны Петровой располагается на сложном рельефе с перепадом высот около трех метров. Эту разницу мы выгодно использовали для проектирования цокольного этажа – вместо того чтобы компенсировать перепад массивным фундаментом.

Часть цоколя углублена в рельеф, часть открыта и доступна с черного хода. Там находятся хозяйственные и технические помещения, котельная. Парадный вход расположен вровень с землей. Такое решение продиктовано рациональным использованием пространства.

Кровля построена на противопоставлении размеров. В низкой части рельефа мы наращиваем высоту угла, создавая место для чердака, а в высокой части – оставляем сооружение равновеликим окружающим домам и коттеджам – не более двух этажей. Таким образом мы подчеркиваем значимость здания в самой низкой точке. С высоты птичьего полета контуры кровли повторяют логотип фонда – символ сердца.

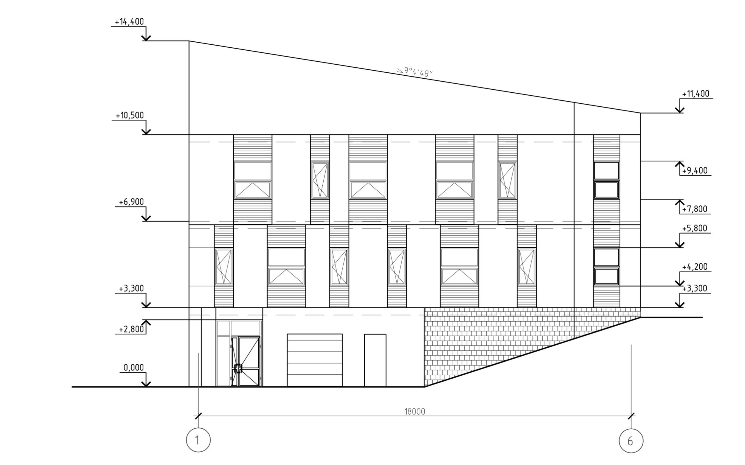
Поскольку фонд – некоммерческая организация, в отделке мы выбрали кирпич и цветные линеарные панели, которые придают фасаду визуальную динамику, не сильно увеличивая бюджет. Заказчик позже использовал оттенки для панелей, отличные от тех, что представлены на визуализациях.

Архитектура проекта современная, несложная и утилитарная. Благоустройство предусматривает детские площадки, ограждения с дружелюбными для детей образами и кашпо. Существующие на участке деревья сохранены.

Благотворительный фонд им. Алены Петровой
Фотография предоставлена Фондом Алёны Петровой
Благотворительный фонд им. Алены Петровой. Лицевой фасад
© Архитектурная студия «Архнуво»
Благотворительный фонд им. Алены Петровой. Задний фасад
© Архитектурная студия «Архнуво»
Благотворительный фонд им. Алены Петровой. Ограждения территории
© Архитектурная студия «Архнуво»
Благотворительный фонд им. Алены Петровой
© Архитектурная студия «Архнуво»
Благотворительный фонд им. Алены Петровой. Антивандальные ограждения водосточных труб
© Архитектурная студия «Архнуво»
Благотворительный фонд им. Алены Петровой. Генплан
© Архитектурная студия «Архнуво»
Благотворительный фонд им. Алены Петровой. Разрез 1 этажа
© Архитектурная студия «Архнуво»
Благотворительный фонд им. Алены Петровой. Разрез 2 этажа
© Архитектурная студия «Архнуво»
Благотворительный фонд им. Алены Петровой. Разрез цоколя
© Архитектурная студия «Архнуво»
Благотворительный фонд им. Алены Петровой. Фасады. Колористика
© Архитектурная студия «Архнуво»
Благотворительный фонд им. Алены Петровой. Фасады. Колористика
© Архитектурная студия «Архнуво»
Благотворительный фонд им. Алены Петровой. Фасады. Колористика
© Архитектурная студия «Архнуво»
Благотворительный фонд им. Алены Петровой. Фасады. Колористика
© Архитектурная студия «Архнуво»
Благотворительный фонд им. Алены Петровой. Фасады. Раскладка панелей
© Архитектурная студия «Архнуво»
Благотворительный фонд им. Алены Петровой. Фасады. Раскладка панелей
© Архитектурная студия «Архнуво»
Благотворительный фонд им. Алены Петровой. Фасад
© Архитектурная студия «Архнуво»
Благотворительный фонд им. Алены Петровой. Фасад
© Архитектурная студия «Архнуво»
Благотворительный фонд им. Алены Петровой. Фасад
© Архитектурная студия «Архнуво»
Благотворительный фонд им. Алены Петровой. Фасад
© Архитектурная студия «Архнуво»

Архитекторы – партнеры Архи.ру:

  • Григориос Гавалидис
  • Ерлан Бекмухамедов
  • Андрей Романов
  • Дмитрий Буш
  • Сергей Труханов
  • Олег Шапиро
  • Дмитрий Ликин
  • Всеволод Медведев
  • Ростислав Цайзер
  • Алексей Орлов
  • Александра Кузьмина
  • Антон Яр-Скрябин
  • Олег Мединский
  • Даниил Лоренц
  • Евгений Новосадюк
  • Евгений Подгорнов
  • Игорь Членов
  • Наталия Шилова
  • Мария Ахременкова
  • Андрей Гнездилов
  • Иван Кожин
  • Николай Кикава
  • Андрей Асадов
  • Марина Егорова
  • Виталий Лутц
  • Юлия Тряскина
  • Александр Самарин
  • Дмитрий Остроумов
  • Павел Андреев
  • Никита Явейн
  • Александр Асадов
  • Валерий Каняшин
  • Константин Ходнев
  • Борис Воскобойников
  • Владимир Плоткин
  • Андрей Михайлов
  • Александр Котенков
  • Евгений Зеленов
  • Юлиана Княжевская
  • Игорь Шварцман
  • Полина Воеводина
  • Энди Сноу
  • Степан Липгарт
  • Сергей Кузнецов
  • Татьяна Зульхарнеева
  • Александр Скокан
  • Михаил Давыдов
  • Наталья Сидорова
  • Анастасия Абашева
  • Григорий Мустафин
  • Юлий Борисов
  • Михаил Канунников
  • Сергей Переслегин
  • Дмитрий Сухов
  • Владислав Андреев
  • Раис Баишев
  • Георгий Трофимов
  • Илья Машков
  • Василий Крапивин
  • Сергей Скуратов
  • Вера Бутко
  • Зураб Басария
  • Юлия Солдатенкова
  • Антон Надточий
  • Сергей Никешкин
  • Елена Пучкова
  • Станислав Белых
  • Сергей Чобан
  • Екатерина Кузнецова
  • Николай Переслегин
  • Тимур Абдуллаев
  • Екатерина Абдуллаева
  • Маргарита Авдышева
  • Левон Айрапетов
  • Александр Аношкин
  • Алексей Афоничкин
  • Владислав Бек-Булатов
  • Антон Белов
  • Татьяна Бузулукова
  • Петр Васильев
  • Данило Вукосавлевич
  • Алина Георгиевская
  • Павел Гордеев
  • Илья Гринберг
  • Никита Демидов
  • Никита Дергунов
  • Наталья Жилкина
  • Алексей Зародов
  • Екатерина Зырина
  • Алексей Ильин
  • Дарья Ильина
  • Олег Карлсон
  • Алексей Кибкало
  • Денис Кувшинников
  • Анна Куликова
  • Алексей Курков
  • Данил Куров
  • Евгений Кутай
  • Мария Кутай
  • Иван Кычкин
  • Антон Ладыгин
  • Дмитрий Лапин
  • Илья Левянт
  • Катерина Левянт
  • Борис Левянт
  • Валерий Лукомский
  • Антон Лукомский
  • Екатерина Ляпунова
  • Иса Магомедов
  • Сергей Марков
  • Елена Мерцалова
  • Николай Миловидов
  • Станислав Михаловский
  • Сергей Мичурин
  • Олеся Могилевская
  • Мария Николаева
  • Дмитрий Овчаров
  • Сергей Пергаев
  • Виктор Перов
  • Алексей Полищук
  • Роман Пономарёв
  • Валерия Преображенская
  • Виктория Раубо
  • Василий Рыбаков
  • Николай Рыбаков
  • Мария Салех
  • Александр Стариков
  • Илья Уткин
  • Елисей Чакан
  • Бориша Чорович
  • Олег Шурыгин
  • Дмитрий Шурыгин

Проект из каталога (случайный выбор)

Офисно-торговый центр на Ленинградском шоссе
Борис Левянт, Борис Стучебрюков, 2007
Офисно-торговый центр на Ленинградском шоссе

Постройки и проекты (новые записи):

  • Архитектурная концепция кластера Ломоносов-2
  • Клубный дом в 1-м Казачьем переулке
  • Частный дом в Ленинградской области
  • Гостиничный комплекс Cosmos Selection Derbent 5
  • Офис компании АльфаСтрахование
  • MIDITI
  • Офис компании Kept
  • Дом Спорта
  • ЖК Camelia

Новости российской архитектуры:

Северный ветер
27.04.2026

Северный ветер

Дарья Белецкая
Высший уровень
24.04.2026

Высший уровень

Борис Воскобойников, Мария Ахременкова
Белые террасы в зеленом предгорье
24.04.2026

Белые террасы в зеленом предгорье

Маргарита Авдышева