RSS
Молодёжный еврейский центр
Фотография © Никита Гольцов / предоставлена Архитектурная студия «Архнуво»

Молодёжный еврейский центр

информация:

  • статус
    реализовано
  • даты
    20142017 / 20152021
  • region= area= address=улица Розы Люксембург 38/1 country_t=Россия city_t=Томск
    место
    Томск улица Розы Люксембург 38/1
  • координаты
    56.495772, 84.950389
  • функция
    Культурный / Общественный центр
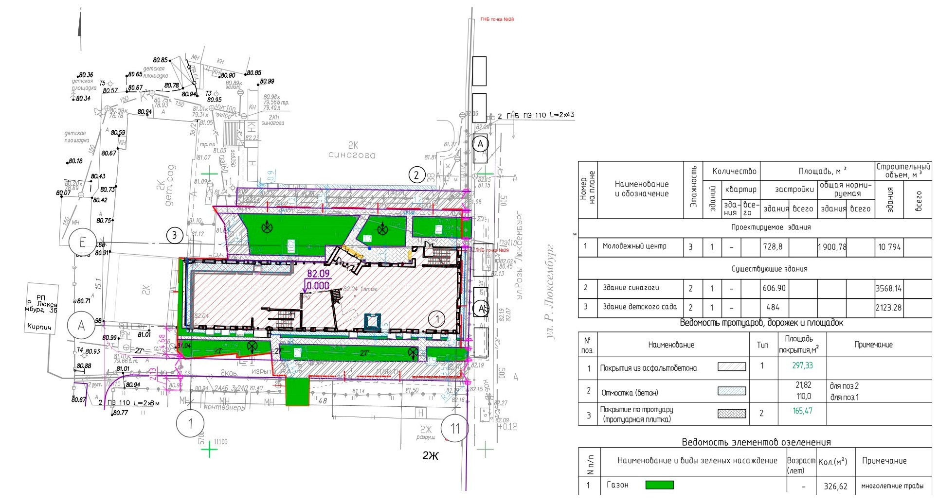
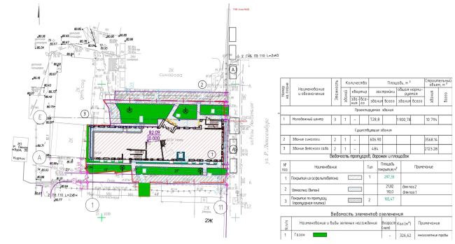
  • площадь участка
    0,07288 га
  • площадь подземная
    2 669 м2
  • общая площадь
    1 900,78 м2
  • высота
    12
  • этажность
    2
  • строительный объем
    10 794 м3
  • другие объекты
    2013
    Молодежный еврейский центр

авторский коллектив

Главный архитектор проекта – Д.С. Харченко; главный инженер проекта – М.А. Исаенко; архитекторы – С.Д. Бутырина, К.Л. Щербина; инженер – А.Ю. Колесникова

Соавторы: Йедиди Хасин 

партнеры, заказчики, смежники

Заказчик: местная религиозная организация ортодоксального иудаизма «Еврейская община г. Томска»
Молодёжный еврейский центр
Фотография © Томская еврейская община / предоставлена Архитектурная студия «Архнуво»
Молодёжный еврейский центр
Фотография © Томская еврейская община / предоставлена Архитектурная студия «Архнуво»

описание:

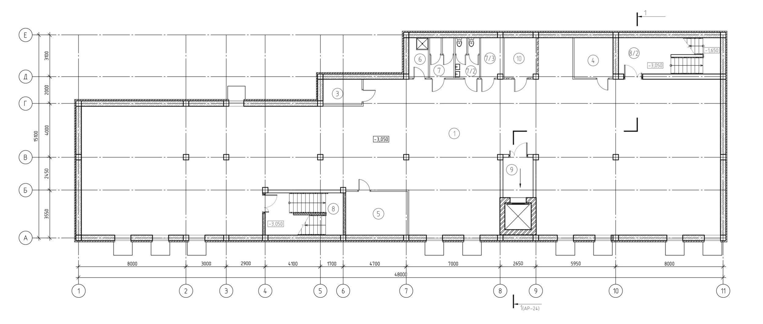
Двухэтажное здание молодежного еврейского центра предназначено для обучения и развития детей дошкольного и младшего школьного возраста. Группы рассчитаны на шесть человек, предусмотрены игровая, буфет и классы развивающих занятий. В здании предусмотрен подвал.

Фасады выполнены на контрасте цвета отделки и фактуры облицовочных материалов: камень, металл, стекло. Палитра спокойная – природные тона с бежевыми и коричневыми оттенками. Витражи покрыты яркой разноцветной пленкой – так создаются акценты на всех фасадах здания.

Фасады в основном покрыты тонкослойной декоративной штукатуркой с оттиском под натуральный камень. Их часть, а также заполнения проемов в наружных стенах, представляют собой витражные конструкции из алюминиевых профилей. Однокамерные стеклопакеты в хаотичном порядке тонируются цветными пленками синего, красного, желтого и зеленого цветов.

Витражи выделяют входные группы и лестничные клетки. Окна одинаковых размеров создают ритмичные ряды. Горизонтальные декоративные балки уравновешивают вертикальные элементы, ту же функцию выполняет ленточное остекление чердака.

Композиция главного фасада – выходящего на ул. Розы Люксембург – симметричная. Она выстроена вокруг цветного витража, который делит фасад пополам по вертикали. По бокам от витража расположены вытянутые вверх ниши, завершающиеся полукругом. Внутри попарно размещены высокие окна. На первом этаже они прямоугольные, а на втором завершаются аркой, что перекликается с формой ниш, в которых они расположены.

Окна и ниши обрамляет лепнина; она же расположена в центре каждой ниши над окнами. Обе ниши и витраж объединены на фасаде прямоугольной декоративной балкой. Благодаря выразительной пластике все видимые фасады являются равнозначными по восприятию.

Декоративные элементы фасадов по стилистике перекликаются с архитектурно–художественным решением фасадов здания синагоги, благодаря чему здание еврейского центра гармонично вписывается в окружающую застройку.

Молодёжный еврейский центр
Фотография © Никита Гольцов / предоставлена Архитектурная студия «Архнуво»
Молодёжный еврейский центр
Фотография © Никита Гольцов / предоставлена Архитектурная студия «Архнуво»
Молодёжный еврейский центр
Фотография © Никита Гольцов / предоставлена Архитектурная студия «Архнуво»
Молодёжный еврейский центр
Фотография © Никита Гольцов / предоставлена Архитектурная студия «Архнуво»
Молодёжный еврейский центр
Фотография © Никита Гольцов / предоставлена Архитектурная студия «Архнуво»
Молодёжный еврейский центр
Фотография © Никита Гольцов / предоставлена Архитектурная студия «Архнуво»
Молодёжный еврейский центр
© Архитектурная студия «Архнуво»
Молодёжный еврейский центр
© Архитектурная студия «Архнуво»
Молодёжный еврейский центр
© Архитектурная студия «Архнуво»
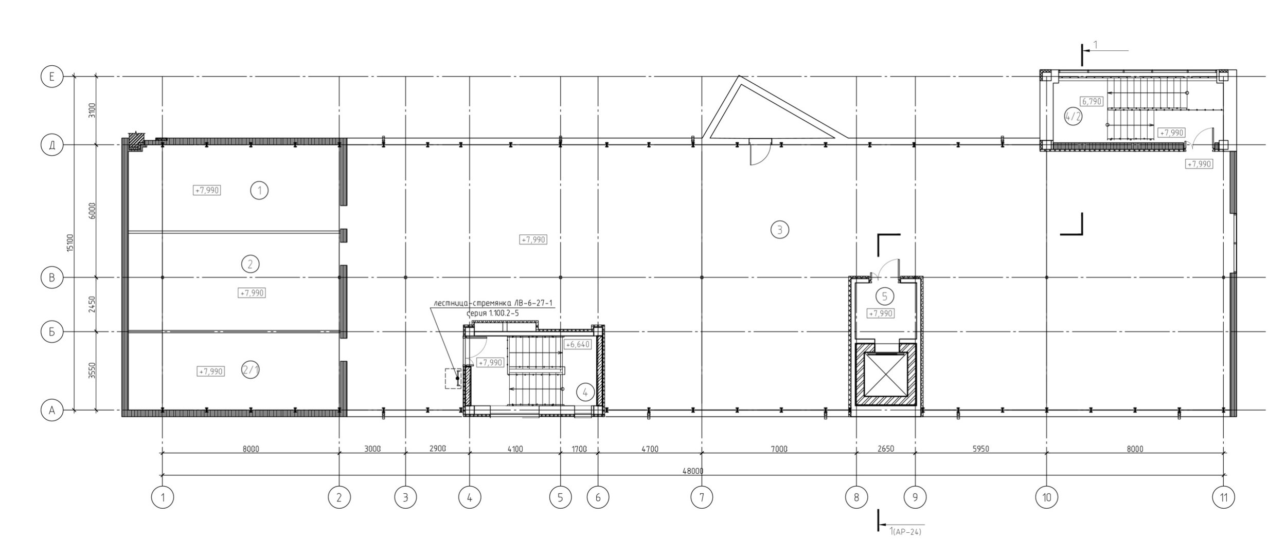
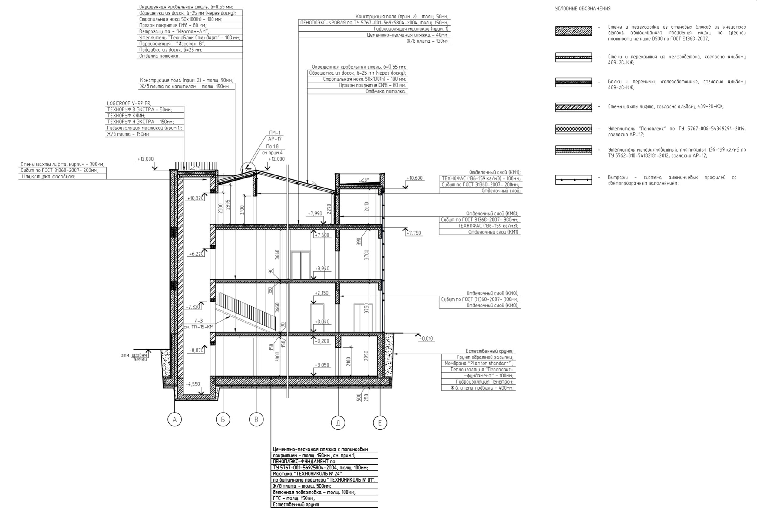
Молодёжный еврейский центр. Разрез подвала
© Архитектурная студия «Архнуво»
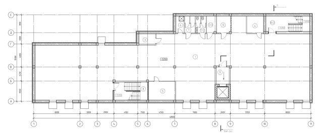
Молодёжный еврейский центр. Разрез 1 этажа
© Архитектурная студия «Архнуво»
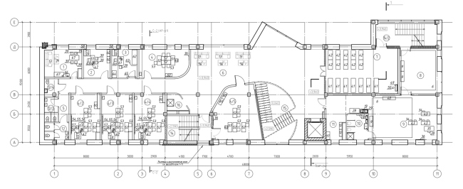
Молодёжный еврейский центр. Разрез 2 этажа
© Архитектурная студия «Архнуво»
Молодёжный еврейский центр. Разрез чердака
© Архитектурная студия «Архнуво»
Молодёжный еврейский центр
© Архитектурная студия «Архнуво»
Молодёжный еврейский центр
© Архитектурная студия «Архнуво»

Архитекторы – партнеры Архи.ру:

  • Григориос Гавалидис
  • Ерлан Бекмухамедов
  • Андрей Романов
  • Дмитрий Буш
  • Сергей Труханов
  • Олег Шапиро
  • Дмитрий Ликин
  • Всеволод Медведев
  • Ростислав Цайзер
  • Алексей Орлов
  • Александра Кузьмина
  • Антон Яр-Скрябин
  • Олег Мединский
  • Даниил Лоренц
  • Евгений Новосадюк
  • Евгений Подгорнов
  • Игорь Членов
  • Наталия Шилова
  • Мария Ахременкова
  • Андрей Гнездилов
  • Иван Кожин
  • Николай Кикава
  • Андрей Асадов
  • Марина Егорова
  • Виталий Лутц
  • Юлия Тряскина
  • Александр Самарин
  • Дмитрий Остроумов
  • Павел Андреев
  • Никита Явейн
  • Александр Асадов
  • Валерий Каняшин
  • Константин Ходнев
  • Борис Воскобойников
  • Владимир Плоткин
  • Андрей Михайлов
  • Александр Котенков
  • Евгений Зеленов
  • Юлиана Княжевская
  • Игорь Шварцман
  • Полина Воеводина
  • Энди Сноу
  • Степан Липгарт
  • Сергей Кузнецов
  • Татьяна Зульхарнеева
  • Александр Скокан
  • Михаил Давыдов
  • Наталья Сидорова
  • Анастасия Абашева
  • Григорий Мустафин
  • Юлий Борисов
  • Михаил Канунников
  • Сергей Переслегин
  • Дмитрий Сухов
  • Владислав Андреев
  • Раис Баишев
  • Георгий Трофимов
  • Илья Машков
  • Василий Крапивин
  • Сергей Скуратов
  • Вера Бутко
  • Зураб Басария
  • Юлия Солдатенкова
  • Антон Надточий
  • Сергей Никешкин
  • Елена Пучкова
  • Станислав Белых
  • Сергей Чобан
  • Екатерина Кузнецова
  • Николай Переслегин
  • Тимур Абдуллаев
  • Екатерина Абдуллаева
  • Маргарита Авдышева
  • Левон Айрапетов
  • Александр Аношкин
  • Алексей Афоничкин
  • Владислав Бек-Булатов
  • Антон Белов
  • Татьяна Бузулукова
  • Петр Васильев
  • Данило Вукосавлевич
  • Алина Георгиевская
  • Павел Гордеев
  • Илья Гринберг
  • Никита Демидов
  • Никита Дергунов
  • Наталья Жилкина
  • Алексей Зародов
  • Екатерина Зырина
  • Алексей Ильин
  • Дарья Ильина
  • Олег Карлсон
  • Алексей Кибкало
  • Денис Кувшинников
  • Анна Куликова
  • Алексей Курков
  • Данил Куров
  • Евгений Кутай
  • Мария Кутай
  • Иван Кычкин
  • Антон Ладыгин
  • Дмитрий Лапин
  • Илья Левянт
  • Катерина Левянт
  • Борис Левянт
  • Валерий Лукомский
  • Антон Лукомский
  • Екатерина Ляпунова
  • Иса Магомедов
  • Сергей Марков
  • Елена Мерцалова
  • Николай Миловидов
  • Станислав Михаловский
  • Сергей Мичурин
  • Олеся Могилевская
  • Мария Николаева
  • Дмитрий Овчаров
  • Сергей Пергаев
  • Виктор Перов
  • Алексей Полищук
  • Роман Пономарёв
  • Валерия Преображенская
  • Виктория Раубо
  • Василий Рыбаков
  • Николай Рыбаков
  • Мария Салех
  • Александр Стариков
  • Илья Уткин
  • Елисей Чакан
  • Бориша Чорович
  • Олег Шурыгин
  • Дмитрий Шурыгин

Проект из каталога (случайный выбор)

Офисно-торговый центр на Ленинградском шоссе
Борис Левянт, Борис Стучебрюков, 2007
Офисно-торговый центр на Ленинградском шоссе

Постройки и проекты (новые записи):

  • Архитектурная концепция кластера Ломоносов-2
  • Клубный дом в 1-м Казачьем переулке
  • Частный дом в Ленинградской области
  • Гостиничный комплекс Cosmos Selection Derbent 5
  • Офис компании АльфаСтрахование
  • MIDITI
  • Офис компании Kept
  • Дом Спорта
  • ЖК Camelia

Новости российской архитектуры:

Северный ветер
27.04.2026

Северный ветер

Дарья Белецкая
Высший уровень
24.04.2026

Высший уровень

Борис Воскобойников, Мария Ахременкова
Белые террасы в зеленом предгорье
24.04.2026

Белые террасы в зеленом предгорье

Маргарита Авдышева