RSS
Многофункциональный комплекс ТПУ Фили. Конкурсный проект
© АМ Алексея Ильина

Многофункциональный комплекс ТПУ Фили. Конкурсный проект. Версия АМ Алексея Ильина

/ Fili transport hub

информация:

  • статус
    проект
  • даты
    20242025
  • region= area= address=проспект Багратиона country_t=Россия city_t=Москва
    место
    Москва проспект Багратиона
  • координаты
    55.744236, 37.515602
  • функция
    Многофункциональный комплекс / Многофункциональный комплекс
  • площадь участка
    8.09 га
  • площадь подземная
    5 280 м2
  • общая площадь
    179 746 м2
  • высота
    269
  • этажность
    66
  • кол-во машиномест
    1370
Алексей Ильин

авторский коллектив

Автор проекта – Алексей Ильин; ведущий архитектор – Екатерина Сенникова; архитектор – Виктория Сорокина

партнеры, заказчики, смежники

Совместно с Бюро-VГРАДТРАНСПРОЕКТPROJECT2018 и HIGHLIGHT Architecture. Визуализаторы – grib.studio
Заказчик: АО «Новая концессионная компания»
Многофункциональный комплекс ТПУ Фили. Конкурсный проект
© АМ Алексея Ильина

Архи.ру об этом объекте:

25.02.2026

Юлия Тарабарина. Контур «Основания»

В конкурсном проекте для ТПУ Фили архитекторы консорциума Алексея Ильина предложили «обитаемую арку» – форма простая, но сложная. Авторы подчеркивают, что уже на стадии конкурса реализуемость проекта была полностью просчитана с учетом минимальных по времени ночных перекрытий проспекта Багратиона. Каким образом? С какими функциями? Изучаем. На наш взгляд, здание подошло бы для героев книг Айзека Азимова про «Основание».

Конкурс на ТПУ Фили был объявлен в мае 2024 года как очень амбициозный. Его инициатором стала компания Лидер она управляет активами Пенсионного фонда РФ и она же построила платную трассу Багратион , скоростной северный дублер Кутузовского прос...   читать дальше

другие тексты Архи.ру:

Многофункциональный комплекс ТПУ Фили. Конкурсный проект
© АМ Алексея Ильина

описание:

Проект ТПУ «Фили» вошел в шорт–лист конкурса.
Концепция, разработанная большой сплоченнои командои специалистов разных направлении, воплощает яркии образ «дома – окна», состоящего из двух высоток и соединяющих их консольных уровнеи. При движении в центр города по проспекту Багратиона появляется знаковыи объект, в «раме» которого мы видим небоскребы Москва–Сити. В стилобатнои части расположено свободное от опор пространство транспортно–пересадочного узла, соединяющее станцию метро, линию МЦД, автобусныи терминал и пешеходные переходы через железнодорожные пути и проспект. Объем основного холла трактуется как современная интерпретация вокзалов начала XX века. Это потрясающее большепролетное сооружение, выполняющее не только утилитарную, но и эстетическую функцию, поражающее воображение посетителеи. Современныи «дворец» включает в себя экспозицию с моделями самолетов, производившихся на авиазаводе на этом месте, кафе и зоны отдыха. Кроме того, часть общественнои зоны, включающая спортивныи и развлекательныи центры, расположена на верхних этажах, пространства с уникальными видовыми раскрытиями на город и Москва–Сити станут доступны всем горожанам. В башнях представлены самые различные функции, предложенные нашими специалистами в результате функционального исследования окружающеи застроики.

Как в объеме стилобатнои части ТПУ, так и в самом общественно–деловом комплексе использован один основнои материал отделки – полированныи алюминии, он же используется и в отделке стилобатнои части и кровель перронов, таким образом объединены самые разные по форме и деталям части комплекса. Дизай–код присутствует во всех элементах здании и ландшафта, эффектную форму окон высокой башни повторяют и планы, и элементы мощения, и рисунок пола в интерьере, и отдельные элементы фурнитуры и светильников.

Конструкция здания представляет собой уникальную высокотехнологичную структуру, разработанную нашими инженерами – конструкторами. После строительства двух высотных объемов на свободном участке монтируется многоуровневая структура, которая поднимается кранами на высоту 250 метров без перекрытия движения по проспекту и МЦД. Пространство основного зала ТПУ также монтируется на земле как пространственная ферма, затем методом смещения с двух сторон сдвигается к центру при помощи временных опор на перронах и около шоссе. На кровле здания расположены вертолетные площадки для коммерческих такси и беспилотников, таким образом в будущем дорога от аэропорта до «окна» и Сити будет занимать несколько минут.

Многофункциональный комплекс ТПУ Фили. Конкурсный проект
© АМ Алексея Ильина
Многофункциональный комплекс ТПУ Фили. Конкурсный проект
© АМ Алексея Ильина
Многофункциональный комплекс ТПУ Фили. Конкурсный проект
© АМ Алексея Ильина
Многофункциональный комплекс ТПУ Фили. Конкурсный проект
© АМ Алексея Ильина
Многофункциональный комплекс ТПУ Фили. Конкурсный проект
© АМ Алексея Ильина
Многофункциональный комплекс ТПУ Фили. Конкурсный проект
© АМ Алексея Ильина
Многофункциональный комплекс ТПУ Фили. Конкурсный проект
© АМ Алексея Ильина
Многофункциональный комплекс ТПУ Фили. Конкурсный проект
© АМ Алексея Ильина
Транспортная схема съездов. Многофункциональный комплекс ТПУ Фили. Конкурсный проект
© АМ Алексея Ильина
Схема пешеходных потоков. Многофункциональный комплекс ТПУ Фили. Конкурсный проект
© АМ Алексея Ильина
Схема благоустройства. Многофункциональный комплекс ТПУ Фили. Конкурсный проект
© АМ Алексея Ильина
Функциональная модель. Многофункциональный комплекс ТПУ Фили. Конкурсный проект
© АМ Алексея Ильина
Взрыв-схема. Функциональная модель. Многофункциональный комплекс ТПУ Фили. Конкурсный проект
© АМ Алексея Ильина
Сравнение вариантов функционального наполнения. Многофункциональный комплекс ТПУ Фили. Конкурсный проект
© АМ Алексея Ильина
Схема планов 1-2 этажей. Многофункциональный комплекс ТПУ Фили. Конкурсный проект
© АМ Алексея Ильина
Схема функц зонирования ТПУ. Многофункциональный комплекс ТПУ Фили. Конкурсный проект
© АМ Алексея Ильина
Схема навигации ТПУ. Многофункциональный комплекс ТПУ Фили. Конкурсный проект
© АМ Алексея Ильина
Схема пешеходных потоков в ТПУ. Многофункциональный комплекс ТПУ Фили. Конкурсный проект
© АМ Алексея Ильина
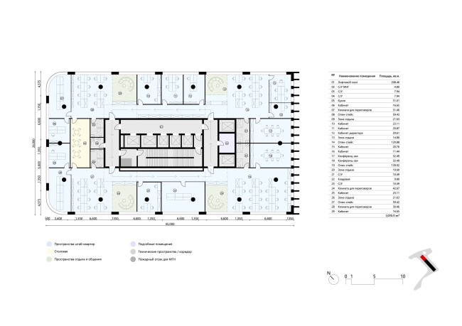
Схема плана типового этажа, штаб-квартира. Многофункциональный комплекс ТПУ Фили. Конкурсный проект
© АМ Алексея Ильина
Схема плана, конференц-залы. Многофункциональный комплекс ТПУ Фили. Конкурсный проект
© АМ Алексея Ильина
Схема плана, спортивные залы. Многофункциональный комплекс ТПУ Фили. Конкурсный проект
© АМ Алексея Ильина
Схема плана, фитнес-клуб. Многофункциональный комплекс ТПУ Фили. Конкурсный проект
© АМ Алексея Ильина
Схема плана, спа-зона и бассейны. Многофункциональный комплекс ТПУ Фили. Конкурсный проект
© АМ Алексея Ильина
Схема плана кровли. Многофункциональный комплекс ТПУ Фили. Конкурсный проект
© АМ Алексея Ильина
Схема разреза. Многофункциональный комплекс ТПУ Фили. Конкурсный проект
© АМ Алексея Ильина
Фрагмент фасада. Многофункциональный комплекс ТПУ Фили. Конкурсный проект
© АМ Алексея Ильина
Аксонометрия. Многофункциональный комплекс ТПУ Фили. Конкурсный проект
© АМ Алексея Ильина
Схема возведения объекта. Многофункциональный комплекс ТПУ Фили. Конкурсный проект
© АМ Алексея Ильина

Архитекторы – партнеры Архи.ру:

  • Николай Переслегин
  • Александр Скокан
  • Андрей Асадов
  • Ростислав Цайзер
  • Юлия Солдатенкова
  • Андрей Романов
  • Игорь Членов
  • Елена Пучкова
  • Полина Воеводина
  • Мария Ахременкова
  • Татьяна Зульхарнеева
  • Энди Сноу
  • Александра Кузьмина
  • Георгий Трофимов
  • Борис Воскобойников
  • Василий Крапивин
  • Григорий Мустафин
  • Сергей Кузнецов
  • Наталия Шилова
  • Степан Липгарт
  • Евгений Подгорнов
  • Дмитрий Буш
  • Виталий Лутц
  • Ерлан Бекмухамедов
  • Владислав Андреев
  • Сергей Труханов
  • Николай Кикава
  • Станислав Белых
  • Игорь Шварцман
  • Константин Ходнев
  • Антон Яр-Скрябин
  • Григориос Гавалидис
  • Александр Асадов
  • Александр Самарин
  • Владимир Плоткин
  • Зураб Басария
  • Олег Мединский
  • Екатерина Кузнецова
  • Антон Надточий
  • Сергей Переслегин
  • Алексей Орлов
  • Юлия Тряскина
  • Никита Явейн
  • Анастасия Абашева
  • Даниил Лоренц
  • Илья Машков
  • Раис Баишев
  • Сергей Чобан
  • Павел Андреев
  • Вера Бутко
  • Дмитрий Ликин
  • Наталья Сидорова
  • Олег Шапиро
  • Евгений Новосадюк
  • Сергей Скуратов
  • Александр Котенков
  • Дмитрий Остроумов
  • Михаил Канунников
  • Марина Егорова
  • Андрей Гнездилов
  • Дмитрий Сухов
  • Сергей Никешкин
  • Евгений Зеленов
  • Андрей Михайлов
  • Иван Кожин
  • Валерий Каняшин
  • Михаил Давыдов
  • Всеволод Медведев
  • Юлий Борисов
  • Юлиана Княжевская
  • Тимур Абдуллаев
  • Екатерина Абдуллаева
  • Маргарита Авдышева
  • Левон Айрапетов
  • Александр Аношкин
  • Алексей Афоничкин
  • Владислав Бек-Булатов
  • Антон Белов
  • Татьяна Бузулукова
  • Петр Васильев
  • Данило Вукосавлевич
  • Алина Георгиевская
  • Павел Гордеев
  • Илья Гринберг
  • Никита Демидов
  • Никита Дергунов
  • Наталья Жилкина
  • Алексей Зародов
  • Екатерина Зырина
  • Алексей Ильин
  • Дарья Ильина
  • Олег Карлсон
  • Алексей Кибкало
  • Денис Кувшинников
  • Анна Куликова
  • Алексей Курков
  • Данил Куров
  • Мария Кутай
  • Евгений Кутай
  • Иван Кычкин
  • Антон Ладыгин
  • Дмитрий Лапин
  • Борис Левянт
  • Илья Левянт
  • Катерина Левянт
  • Валерий Лукомский
  • Антон Лукомский
  • Екатерина Ляпунова
  • Иса Магомедов
  • Сергей Марков
  • Елена Мерцалова
  • Николай Миловидов
  • Станислав Михаловский
  • Сергей Мичурин
  • Олеся Могилевская
  • Филипп Никандров
  • Мария Николаева
  • Дмитрий Овчаров
  • Сергей Пергаев
  • Виктор Перов
  • Алексей Полищук
  • Роман Пономарёв
  • Валерия Преображенская
  • Виктория Раубо
  • Василий Рыбаков
  • Николай Рыбаков
  • Мария Салех
  • Александр Стариков
  • Илья Уткин
  • Елисей Чакан
  • Бориша Чорович
  • Олег Шурыгин
  • Дмитрий Шурыгин

Проект из каталога (случайный выбор)

Постройки и проекты (новые записи):

  • Гостиница в Чите
  • ЖК Квартал 64
  • Деловое пространство «ПЛЭЙН»
  • Конкурсный проект ФИЦ / ТПО «Резерв»
  • Porta
  • Детский сад на 200 мест в Жилино-1
  • Архитектурная концепция кластера Ломоносов-2
  • Клубный дом в 1-м Казачьем переулке
  • Частный дом в Ленинградской области

Новости российской архитектуры:

Сплав мировых культур
13.05.2026

Сплав мировых культур

Александр Салов, Татьяна Осецкая
КиноГолограмма
12.05.2026

КиноГолограмма

Николай Переслегин, Сергей Переслегин, Георгий Трофимов
Форма как метод: ТПО «Резерв»
12.05.2026

Форма как метод: ТПО «Резерв»

Владимир Плоткин
Консервация как комментарий
12.05.2026

Консервация как комментарий

Наринэ Тютчева