Современная изба. Усадьба из Кело
Фотография © Николай Гриненко / предоставлена AI-architects
Современная изба. Усадьба из Кело
информация:
-
статус
реализовано -
даты
2022 — 2023 / 2022 — 2025 -
место
Москва деревня Бурцево, Речная улица, 38 -
координаты
55.558936, 37.268496 -
функция
Жилой / индивидуальный жилой дом -
теги
send.project -
площадь подземная
460 м2 -
общая площадь
1 823 м2 -
площадь жилая
1 450 м2 -
высота
4,5 -
этажность
2-3 - Колтчество квартир – 3
-
кол-во машиномест
6

Иван Колманок
Ivan Kolmanok / Россия
Александр Томашенко
РоссияAI-architects
AI-architects / Россияавторский коллектив
партнеры, заказчики, смежники
Современная изба. Усадьба из Кело
Фотография © Николай Гриненко / предоставлена AI-architects
Архи.ру об этом объекте:
Современная изба
Современная изба – это оксюморон, потому что сама суть избы заключена в ее архаичности, простоте и резистентности к изменениям. Она была утилитарным жилищем, построенным по веками выверенным канонам, где каждая деталь имела функцию и символику. Попытка придать ей современность часто приводит к стилизации под народный стиль с декоративными излишествами. Создание современной избы в рамках архитектурных приличий – редкость. Но иногда, как в случае с проектом AI-architects, это удается.
Описание предоставлено архитекторами Усадьба из кело проект бюро AI-architects под руководством Ивана Колманка и Александра Томашенко. Дом расположен в деревне Бурцево под Москвой. Общая площадь объекта 1823 м 2 , из которых 460 м 2 приходи... читать дальшеСовременная изба. Усадьба из Кело
Фотография © Николай Гриненко / предоставлена AI-architects
история проекта:
Заказ получили по рекомендации. Знакомый риэлтор – Елена Пирогова рекомендовала наше бюро своему клиенту.
описание:
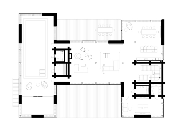
Концепция архитектуры
Современная интерпретация традиционного шале/загородного дома, органично вписанная в природный ландшафт. Основные акценты сделаны на использовании натуральных материалов, панорамных окон для максимального раскрытия видов и естественного освещения, а также на создании уютного и комфортного пространства для отдыха.
Архитектурный стиль
Эклектика, объединяющая элементы Rustic Modern (современной рустикальности) и Contemporary.
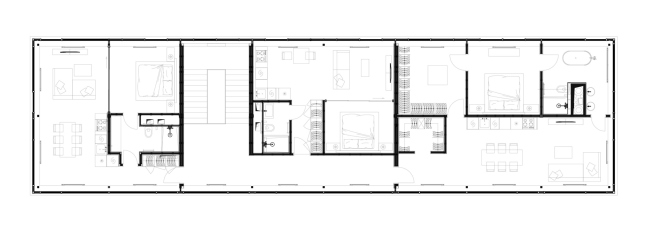
Концепция интерьера
Интерьер сочетает современный комфорт и утончённость с вдохновением, навеянным природой. В нём грубые натуральные элементы органично переплетены с изысканной мебелью и отделкой. Пространство ориентировано на отдых и созерцание, с акцентом на естественный свет и виды.
Стиль интерьера
Эклектика, соединяющая три направления:
-
Contemporary – чёткие линии, минимализм в декоре, открытая планировка;
-
Rustic Modern – тёплая атмосфера за счёт дерева и камня, натуральные текстуры;
-
Industrial – открытые балки, бетонные колонны, акцент на функциональности и честности материалов.