RSS
Дом Долговых. 1839г. Фасад, выданный от Комиссии для строений в Москве. ГБУ ЦГА г. Мск
Предоставлено МВ-ПРОЕКТ

Дом Долговых

информация:

  • статус
    проект
  • даты
    07.2023 — 12.2024
  • region= area= address=просп. Мира, д. 20, корп. 1 country_t=Россия city_t=Москва
    место
    Москва просп. Мира, д. 20, корп. 1
  • координаты
    55.776197, 37.632676
  • функция
    Административно-офисный / административно-офисное здание
  • площадь участка
    0,0773 га
  • площадь подземная
    56,41 м2
  • общая площадь
    811,1 м2
  • высота
    12,4
  • этажность
    1-2
  • строительный объем
    7 121,1 м3
Олег Шурыгин
Дмитрий Шурыгин
МВ-ПРОЕКТ

авторский коллектив

​Руководители авторского коллектива: О.А. Шурыгин,
Д.М. Шурыгин 
Авторский коллектив: Е.В. Андреева, В.М. Богданова,
Е.Е. Макарова, П.Ю.Тюрина, А.Н. Осипова, А.А. Муромский 

партнеры, заказчики, смежники

Заказчик: Государственное казенное учреждение города Москвы «Технический центр Департамента культуры города Москвы»

другие названия проекта
Объект культурного наследия федерального значения «Дом Долговых, 1770-е годы »Здесь в 1865-1897 гг. жил и работал врач Г.А. Захарьин"
Дом Долговых. 1907г. План владения Потомств. двор. С.Г. Захарьина. ГБУ ЦГА г.Мск
Предоставлено МВ-ПРОЕКТ
Дом Долговых. Главный фасад, г. 2023
Фотография © арх. Осипова А.Н., МВ-ПРОЕКТ

описание:

Здание является объектом культурного наследия федерального значения: «Дом Долговых, 1770‑е годы. Здесь в 1865–1897 гг. жил и работал врач Григорий Антонович Захарьин». Имеет не только градостроительное значение в формировании исторической застройки улицы, но и обладает архитектурной ценностью, поскольку сохранил первоначальный белокаменный объём 1770‑х годов, а также архитектурно‑художественное оформление фасадов в два периода – первой трети XIX и начала XX веков. Год постройки белокаменного объёма относится к 1775 году.

Фасады: здание представляет собой прямоугольный в плане двухэтажный каменный дом, расположенный главным фасадом вдоль проспекта Мира. Дворовой фасад находится в глубине владения и имеет одноэтажную каменную пристройку крыльца. Главный фасад оформлен в начале XX века, во время второго этапа перестройки. Фасад акцентирован небольшим выступом и треугольным греческим фронтоном, тимпан которого украшен барельефом на античный сюжет. Главный вход расположен по центральной оси фасада. Окна первого этажа оформлены арочными нишами с веерными замками и львиными масками. Центральные окна второго этажа украшены орнаментальными композициями – венками. Остальные окна имеют белокаменный декор: профилированные полочки. Весь первый этаж главного фасада выполнен с глубокой рустовкой и сложным профилем шва. Штукатурная отделка второго этажа и фронтона – гладкая.

Второй этаж дополнительно выделен объёмом балкона с металлическим ограждением 1950‑х годов. Это – эркер‑балкон с формой и кровлей, напоминающими фонарь. Эркер украшен трёхчетвертными колоннами с капителями ионического ордера.

Декор дворового фасада относится к первоначальному периоду оформления и украшен раннеклассическими элементами: раскрепованной тягой, венчающим карнизом с иониками, окнами, заглублёнными в ниши, подоконными полочками с фартуками. Плоскость фасада членится вертикально пилястрами и прямоугольными нишами. В объёме крытого крыльца пристройки расположен второй вход. Южный фасад демонстрирует смешанную пластическую трактовку обоих эпохальных периодов оформления здания.

Интерьеры: в основе сохранившейся внутренней планировки – проект перестройки 1909 года, с позднейшими перепланировками под жильё и административное учреждение. Сохранившаяся отделка в вестибюле первого этажа и части помещений второго относится к концу XIX – началу XX века. Под южной частью здания сохранился первоначальный белокаменный подвал с кирпичными цилиндрическими сводами и распалубками окон.

В ходе комплексных научных исследований были обнаружены исторические наборные паркеты, а также за обшивками стен – печь с отделкой из гладких белых глазурованных плиток.

В анфиладе парадных комнат второго этажа отчасти сохранилось декоративное убранство начала XX века в неоклассических формах. Стены парадного двусветного зала, самого крупного зала особняка, украшены классическим греческим стилем: пилястры с коринфскими капителями и профилированными зеркалами. На уровне второго света размещены двадцать круглых медальонов‑барельефов с лепными изображениями античных сюжетов. Между ними – фрагменты монументальной масляной живописи.

В другом помещении второго этажа сохранился лепной плафон потолка, являющийся точной копией плафона Рокайльного зала особняка Пётра Петровича Смирнова (Москва, Тверской бульвар, д. 18, стр. 1). Этот особняк XVIII века в 1901–1905 годах был реконструирован с участием архитектора Фёдора О. Шехтеля. Плафон украшен нежной лепниной в технике «tourbillon» с растительными мотивами и фигурами «декадентских дам» по углам. Оформление парадной лестницы Дома Долговых сходно с «лестницей‑волной» особняка Смирнова. Совпадает рисунок лепнины капителей колонн, потолочных розеток, обрамлений дверных порталов. Возможно, декор был выполнен последователями или учениками архитектора Шехтеля.

Описание проектных решений:
Цель – сохранить функциональное назначение здания как административного.

Фасады: проект предусматривает реставрацию отделки, воссоздание утраченных элементов декора по образцам, возврат обликов конца XVIII и начала XX веков. Запланированы работы по частичному раскрытию заблокированных оконных и дверных проёмов пристройки, консервация оставшихся ступеней белокаменной лестницы вниз в подвал со стороны дворового фасада, воссоздание фрагмента утраченного каменного крыльца по остаткам конструкций, реставрация интерьеров – устранение поверхностной деструкции, следов протечек и потери художественной выразительности вследствие многократного окрашивания.

По результатам зондажных работ восстановлено историческое цветовое решение фасадов конца XVIII и начала XX веков. Выявлено, что здание сохранило прежнее фасадное решение, предположительно конца XVIII века.

В проекте предусмотрена замена современных ПВХ‑ и металлических окон на исторические по образцам, с XIX‑вековой схемой расстекловки, клеёнками, горбыльковым профилем и цветовой гаммой, подтверждённой стратиграфическими исследованиями. Планируется установка светопрозрачной конструкции над спуском в подвал вместо поздней надстройки. Также восстановление исторических светильников в парадных помещениях.

Все решения направлены на восстановление целостного исторического восприятия здания, акцент на выразительность двух эпох, возвращение праздничности и парадности интерьеров с характерными колористическими решениями.

архитектурно-планировочные решения:


Конструкции
Фасадные конструкции. Стены наружные и внутренние из кирпичной кладки. Отделка окрашенная штукатурка гладкая и рустованная
Кровля. Двускатная, по деревянным стропильным конструкциям. Материал: металлическая, фальцевая
Оконные системы. Индивидуальное изготовление деревянных стеклопакетов с сохранением и восстановлением исторических профилей и рисунка расстекловки

Инженерия
Вентиляция и кондиционирование: приточно-вытяжная система


Интерьер
Пол. Исторический паркет, реставрационный советский паркет, керамическая плитка, паркет.
Стены. Штукатурка окрашенная, исторические интерьеры с сохранением материалов отделки и облика.
Потолок. Штукатурка окрашенная, исторические интерьеры с сохранением материала отделки и облика
Оригинальные элементы интерьера. Проектирование, изготовление. Исторические лепные и белокаменные детали на фасадах, лепной декор с бликовкой в интерьерах на стенах, декор плафонов потолков, кессоннированные потолки, фрагменты живописи, парадная лестница из мрамора, частично сохранились исторические окна н. XX в. с запорной фурнитурой, реставрационные дверные заполнения. Воссоздание витража в парадном двусветном зале.

Дом Долговых. Главный фасад, г. 2023
Фотография © арх. Осипова А.Н., МВ-ПРОЕКТ
Дом Долговых. Тимпан фронтона
Фотография © арх. Осипова А.Н., МВ-ПРОЕКТ
Дом Долговых. Софитный навес
Фотография © арх. Осипова А.Н., МВ-ПРОЕКТ
Дом Долговых. Маскарон
Фотография © арх. Осипова А.Н., МВ-ПРОЕКТ
Дом Долговых. Плвфон-двойник в стиле Ф.О. Шехтеля
Фотография © арх. Осипова А.Н., МВ-ПРОЕКТ
Дом Долговых. Плафон холла
Фотография © арх. Осипова А.Н., МВ-ПРОЕКТ
Дом Долговых. Фрагмент интерьера двусветного зала
Фотография © арх. Осипова А.Н., МВ-ПРОЕКТ
Дом Долговых. Фрагмент интерьера двусветного зала
Фотография © арх. Осипова А.Н., МВ-ПРОЕКТ
Дом Долговых. План 1 этажа
© МВ-ПРОЕКТ
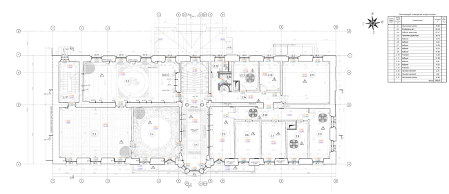
Дом Долговых. План 2 этажа
© МВ-ПРОЕКТ
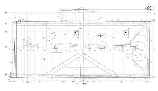
Дом Долговых. План кровли
© МВ-ПРОЕКТ
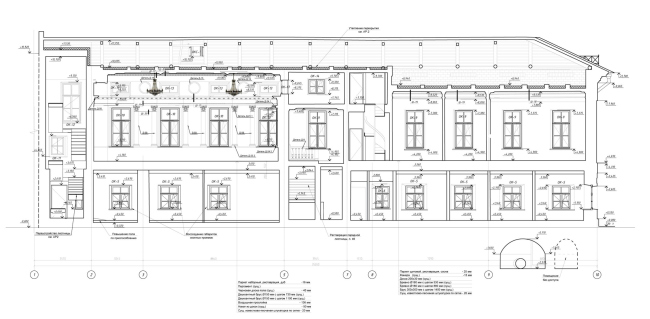
Дом Долговых. Продольный разрез
© МВ-ПРОЕКТ
Дом Долговых. Поперечный разрез
© МВ-ПРОЕКТ
Дом Долговых. Проектное решение главного фасада
© МВ-ПРОЕКТ
Дом Долговых. Колористическое решение главного фасада
© МВ-ПРОЕКТ
Дом Долговых. Колористическое решение дворового фасада
© МВ-ПРОЕКТ
Дом Долговых. Колористическое решение бокового фасада
© МВ-ПРОЕКТ
Дом Долговых. Картограмма дефектов двусветного зала
© МВ-ПРОЕКТ
Дом Долговых. Колористическое решение двусветного зала
© МВ-ПРОЕКТ
Дом Долговых. Витраж в двусветном помещении
© МВ-ПРОЕКТ

Архитекторы – партнеры Архи.ру:

  • Михаил Давыдов
  • Энди Сноу
  • Раис Баишев
  • Николай Переслегин
  • Даниил Лоренц
  • Антон Надточий
  • Мария Ахременкова
  • Андрей Асадов
  • Наталья Сидорова
  • Александр Асадов
  • Павел Андреев
  • Игорь Членов
  • Юлиана Княжевская
  • Александр Скокан
  • Дмитрий Ликин
  • Сергей Труханов
  • Илья Машков
  • Степан Липгарт
  • Евгений Зеленов
  • Евгений Подгорнов
  • Михаил Канунников
  • Анастасия Абашева
  • Сергей Переслегин
  • Андрей Михайлов
  • Олег Мединский
  • Николай Кикава
  • Константин Ходнев
  • Григориос Гавалидис
  • Георгий Трофимов
  • Ростислав Цайзер
  • Юлий Борисов
  • Александр Самарин
  • Игорь Шварцман
  • Полина Воеводина
  • Александра Кузьмина
  • Валерий Каняшин
  • Зураб Басария
  • Юлия Солдатенкова
  • Антон Яр-Скрябин
  • Алексей Орлов
  • Виталий Лутц
  • Екатерина Кузнецова
  • Сергей Чобан
  • Борис Воскобойников
  • Дмитрий Сухов
  • Сергей Кузнецов
  • Андрей Гнездилов
  • Юлия Тряскина
  • Андрей Романов
  • Никита Явейн
  • Сергей Скуратов
  • Ерлан Бекмухамедов
  • Иван Кожин
  • Сергей Никешкин
  • Дмитрий Остроумов
  • Александр Котенков
  • Всеволод Медведев
  • Евгений Новосадюк
  • Елена Пучкова
  • Наталия Шилова
  • Татьяна Зульхарнеева
  • Олег Шапиро
  • Дмитрий Буш
  • Вера Бутко
  • Василий Крапивин
  • Григорий Мустафин
  • Владислав Андреев
  • Владимир Плоткин
  • Станислав Белых
  • Марина Егорова
  • Тимур Абдуллаев
  • Екатерина Абдуллаева
  • Маргарита Авдышева
  • Левон Айрапетов
  • Александр Аношкин
  • Алексей Афоничкин
  • Владислав Бек-Булатов
  • Антон Белов
  • Татьяна Бузулукова
  • Петр Васильев
  • Данило Вукосавлевич
  • Алина Георгиевская
  • Павел Гордеев
  • Илья Гринберг
  • Никита Демидов
  • Никита Дергунов
  • Наталья Жилкина
  • Алексей Зародов
  • Екатерина Зырина
  • Алексей Ильин
  • Дарья Ильина
  • Олег Карлсон
  • Алексей Кибкало
  • Денис Кувшинников
  • Анна Куликова
  • Алексей Курков
  • Данил Куров
  • Мария Кутай
  • Евгений Кутай
  • Иван Кычкин
  • Антон Ладыгин
  • Дмитрий Лапин
  • Илья Левянт
  • Катерина Левянт
  • Борис Левянт
  • Валерий Лукомский
  • Антон Лукомский
  • Екатерина Ляпунова
  • Иса Магомедов
  • Сергей Марков
  • Елена Мерцалова
  • Николай Миловидов
  • Станислав Михаловский
  • Сергей Мичурин
  • Олеся Могилевская
  • Филипп Никандров
  • Мария Николаева
  • Дмитрий Овчаров
  • Сергей Пергаев
  • Виктор Перов
  • Алексей Полищук
  • Роман Пономарёв
  • Валерия Преображенская
  • Виктория Раубо
  • Василий Рыбаков
  • Николай Рыбаков
  • Мария Салех
  • Александр Стариков
  • Илья Уткин
  • Елисей Чакан
  • Бориша Чорович
  • Олег Шурыгин
  • Дмитрий Шурыгин

Проект из каталога (случайный выбор)

Постройки и проекты (новые записи):

  • Детский сад на 200 мест в Жилино-1
  • Архитектурная концепция кластера Ломоносов-2
  • Клубный дом в 1-м Казачьем переулке
  • Частный дом в Ленинградской области
  • IT-кластер TravelLine в Йошкар-Оле
  • Гостиничный комплекс Cosmos Selection Derbent 5
  • Офис компании АльфаСтрахование
  • Офис компании Kept
  • Дом Спорта

Новости российской архитектуры:

Баня по-царски
07.05.2026

Баня по-царски

Ольга Смоленская
«Заря» над волнами
07.05.2026

«Заря» над волнами

Дарья Виноградова
Белый конгломерат
07.05.2026

Белый конгломерат

Александр Томашенко, Андрей Горелов, Василий Сошников, Иван Колманок, Николай Фугаров, Владимир Плоткин
Между фантазией и реальностью: ПАСП & РОСТ
06.05.2026

Между фантазией и реальностью: ПАСП & РОСТ

Андрей Тютерев, Владимир Плоткин