Штаб-квартира компании «ФСК Девелопмент»
Фотография © Даниил Анненков / предоставлена Kleinewelt Architekten
Штаб-квартира компании «ФСК Девелопмент»
информация:
-
статус
в процессе реализации -
даты
2021 — 2022 / 2022 -
место
Москва ул. Шеногина, 2/11 -
координаты
55.765816, 37.508647 -
функция
Многофункциональный комплекс / Многофункциональный комплекс -
площадь подземная
12 801 м2 -
общая площадь
70 000 м2 -
этажность
24 -
Офисы (open space) (3,6-24 эт) – 41 689 м2
Столовая (4-5 эт) – 2 558 м2
Ритейл (1-2 эт) – 2 056 м2
Ресторан (1-2 эт) – 467 м2
Эксплуатируемые террасы – 2 220, 00 м2

Сергей Переслегин
Sergey Pereslegin / Россия
Николай Переслегин
Nikolay Pereslegin / Россия
Георгий Трофимов
Georgy Trofimov / РоссияKleinewelt Architekten
Kleinewelt Architekten / Россияавторский коллектив
Руководители бюро: Н. Переслегин, С. Переслегин, Г. Трофимов
Руководитель проекта: А. Баев
ГАП: О. Новоскольцева
Ведущий архитектор: К. Дудникова, А. Кабанова
Архитектор: А. Тихонов
ГИП: А. Солдатенков
Руководитель проекта: А. Баев
ГАП: О. Новоскольцева
Ведущий архитектор: К. Дудникова, А. Кабанова
Архитектор: А. Тихонов
ГИП: А. Солдатенков
партнеры, заказчики, смежники
Заказчик: ФСК Девелопмент
Штаб-квартира компании «ФСК Девелопмент»
Фотография © Даниил Анненков / предоставлена Kleinewelt Architekten
Архи.ру об этом объекте:
04.06.2025
Юлия Тарабарина. Фонари и лестница
Мартовская съемка почти-построенной штаб-квартиры ГК ФСК на улице Шеногина. Снаружи спокойно-лаконично, внутри увлекательно, многоярусно. Особенно хороши, и больше всего – в бетоне, конусные зенитные фонари представительского офиса. И ведущая в него большая винтовая лестница. Впрочем, спиральная лестница здесь не одна, да и в первые этажи, фактически, встроен небольшой торговый центр.
Улица Шеногина отделяет ЖК Сердце столицы , построенный достаточно давно, лет 10 назад, от строящегося между Звенигородским шоссе и Москвой-рекой комплекса Sidney City – редевелопментом территории и строительством, фактически, мини-города в рамках п... читать дальшеШтаб-квартира компании «ФСК Девелопмент»
Фотография © Даниил Анненков / предоставлена Kleinewelt Architekten
описание:
Новый офисный центр – будущая штаб-квартира компании «ФСК Девелопмент» в районе Хорошево-Мневники.
Динамика здания образована пересечением ромбовидной формы участка и правильного прямоугольника офисного этажа.
Контраст визуально массивного стилобата со стеклянным объемом офисной башни формирует монументальный и, вместе с тем, динамичный образ здания.
Динамика здания образована пересечением ромбовидной формы участка и правильного прямоугольника офисного этажа.
Контраст визуально массивного стилобата со стеклянным объемом офисной башни формирует монументальный и, вместе с тем, динамичный образ здания.
Штаб-квартира компании «ФСК Девелопмент»
Фотография © Даниил Анненков / предоставлена Kleinewelt Architekten
Штаб-квартира компании «ФСК Девелопмент»
Фотография © Даниил Анненков / предоставлена Kleinewelt Architekten
Штаб-квартира компании «ФСК Девелопмент»
Фотография © Даниил Анненков / предоставлена Kleinewelt Architekten
Штаб-квартира компании «ФСК Девелопмент»
Фотография © Даниил Анненков / предоставлена Kleinewelt Architekten
Штаб-квартира компании «ФСК Девелопмент»
Фотография © Даниил Анненков / предоставлена Kleinewelt Architekten
Штаб-квартира компании «ФСК Девелопмент»
Фотография © Даниил Анненков / предоставлена Kleinewelt Architekten
Штаб-квартира компании «ФСК Девелопмент»
Фотография © Даниил Анненков / предоставлена Kleinewelt Architekten
Штаб-квартира компании «ФСК Девелопмент»
Фотография © Даниил Анненков / предоставлена Kleinewelt Architekten
Штаб-квартира компании «ФСК Девелопмент»
Фотография © Даниил Анненков / предоставлена Kleinewelt Architekten
Штаб-квартира компании «ФСК Девелопмент»
Фотография © Даниил Анненков / предоставлена Kleinewelt Architekten
Штаб-квартира компании «ФСК Девелопмент»
Фотография © Даниил Анненков / предоставлена Kleinewelt Architekten
Штаб-квартира компании «ФСК Девелопмент»
Фотография © Даниил Анненков / предоставлена Kleinewelt Architekten
Штаб-квартира компании «ФСК Девелопмент»
Фотография © Даниил Анненков / предоставлена Kleinewelt Architekten
Штаб-квартира компании «ФСК Девелопмент»
Фотография © Даниил Анненков / предоставлена Kleinewelt Architekten
Штаб-квартира компании «ФСК Девелопмент»
Фотография © Даниил Анненков / предоставлена Kleinewelt Architekten
Штаб-квартира компании «ФСК Девелопмент»
Фотография © Даниил Анненков / предоставлена Kleinewelt Architekten
Штаб-квартира компании «ФСК Девелопмент»
Фотография © Даниил Анненков / предоставлена Kleinewelt Architekten
Штаб-квартира компании «ФСК Девелопмент»
Фотография © Даниил Анненков / предоставлена Kleinewelt Architekten
Штаб-квартира компании «ФСК Девелопмент»
Фотография © Даниил Анненков / предоставлена Kleinewelt Architekten
Штаб-квартира компании «ФСК Девелопмент»
© Kleinewelt Architekten
Штаб-квартира компании «ФСК Девелопмент»
© Kleinewelt Architekten
Штаб-квартира компании «ФСК Девелопмент»
© Kleinewelt Architekten
Штаб-квартира компании «ФСК Девелопмент»
© Kleinewelt Architekten
Штаб-квартира компании «ФСК Девелопмент»
© Kleinewelt Architekten
Штаб-квартира компании «ФСК Девелопмент»
© Kleinewelt Architekten
Штаб-квартира компании «ФСК Девелопмент»
© Kleinewelt Architekten
Лестница с первого этажа на третий. Штаб-квартира компании «ФСК Девелопмент»
© Kleinewelt Architekten
Штаб-квартира компании «ФСК Девелопмент»
© Kleinewelt Architekten
Open space 3 этажа под зенитными фонарями. Штаб-квартира компании «ФСК Девелопмент»
© Kleinewelt Architekten
Штаб-квартира компании «ФСК Девелопмент»
© Kleinewelt Architekten
Штаб-квартира компании «ФСК Девелопмент»
© Kleinewelt Architekten
Сечение первых пяти ярусов по атриуму. На первом плане трехъярусный атриум, пространство ритейла. На дальнем плане справа винтовая лестница, ведущая в презентационное пространство офиса. Штаб-квартира компании «ФСК Девелопмент»
© Kleinewelt Architekten
Штаб-квартира компании «ФСК Девелопмент»
© Kleinewelt Architekten
Штаб-квартира компании «ФСК Девелопмент»
© Kleinewelt Architekten
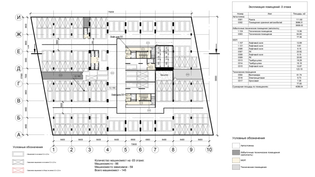
Штаб-квартира компании «ФСК Девелопмент». План -3 этажа
© Kleinewelt Architekten
Штаб-квартира компании «ФСК Девелопмент». План -2 этажа
© Kleinewelt Architekten
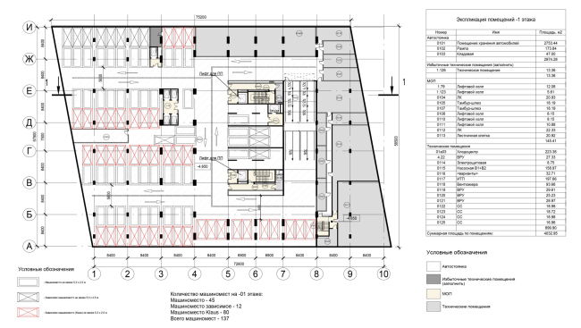
Штаб-квартира компании «ФСК Девелопмент». План -1 этажа
© Kleinewelt Architekten
Штаб-квартира компании «ФСК Девелопмент». План 1 этажа
© Kleinewelt Architekten
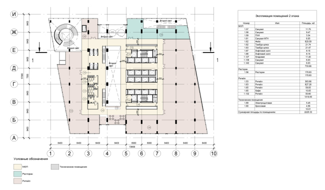
Штаб-квартира компании «ФСК Девелопмент». План 2 этажа
© Kleinewelt Architekten
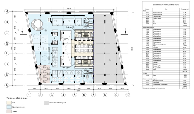
Штаб-квартира компании «ФСК Девелопмент». План 3 этажа
© Kleinewelt Architekten
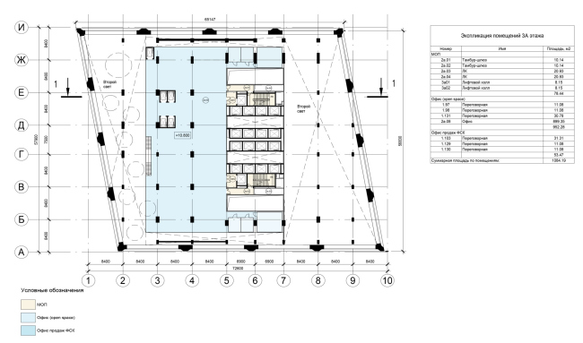
Штаб-квартира компании «ФСК Девелопмент». План 3а этажа
© Kleinewelt Architekten
Штаб-квартира компании «ФСК Девелопмент». План 4 этажа
© Kleinewelt Architekten
Штаб-квартира компании «ФСК Девелопмент». План 5 этажа
© Kleinewelt Architekten
Штаб-квартира компании «ФСК Девелопмент». План 6-10 этажа
© Kleinewelt Architekten
Штаб-квартира компании «ФСК Девелопмент». План 11 этажа
© Kleinewelt Architekten
Штаб-квартира компании «ФСК Девелопмент». План 12-13 этажа
© Kleinewelt Architekten
Штаб-квартира компании «ФСК Девелопмент». План 16 этажа
© Kleinewelt Architekten
Штаб-квартира компании «ФСК Девелопмент». План 17-20
© Kleinewelt Architekten
Штаб-квартира компании «ФСК Девелопмент». План 22 этажа
© Kleinewelt Architekten
Штаб-квартира компании «ФСК Девелопмент». План 23 этажа
© Kleinewelt Architekten
Штаб-квартира компании «ФСК Девелопмент». Разрез 1-1
© Kleinewelt Architekten
Архитекторы – партнеры Архи.ру:
Проект из каталога (случайный выбор)
Постройки и проекты (новые записи):
Новости российской архитектуры:
16.10.2025
Жила, жива и будет жить
15.10.2025
Рай с видом на Кремль
Ким Ен Гир , Валентин Остроумов14.10.2025
Живопись и графика
Ксения Караваева, Мурат Гукетлов14.10.2025