Дом для переселения в поселке Туголесский Бор
© ALEV
Дом для переселения в поселке Туголесский Бор
информация:
-
статус
проект -
даты
— 2023 -
место
Туголесский Бор -
координаты
55.553226, 39.806391 -
функция
Жилой / многоквартирный дом -
теги
send.project -
площадь участка
0,5101 га -
площадь застройки
1 177,1 м2 -
площадь подземная
1 083,40 м2 -
общая площадь
6 265,5 м2 -
площадь жилая
3 812,7 м2 -
этажность
5 -
кол-во машиномест
75

Константин Гандрабур
РоссияALEV
Россияавторский коллектив
ГАП: Константин Гандрабур
Архитекторы: Иван Михайлов, Никита Обжерин, Ясмин Пронченко
Визуализаторы: Евгения Погосова, Энкира Уланкиева
Архитекторы: Иван Михайлов, Никита Обжерин, Ясмин Пронченко
Визуализаторы: Евгения Погосова, Энкира Уланкиева
партнеры, заказчики, смежники
Заказчик: Стройкомплекс
Дом для переселения в поселке Туголесский Бор
© ALEV
Архи.ру об этом объекте:
05.11.2024
Наталья Коряковская. Жилые проекты Московской области:
12 примеров
Мособлархитектура постоянно работает над новыми нормативами, цель которых – сделать проекты качественными, в том числе визуально. Следите за обновлениями! О них, в числе прочего, рассказали на региональном Форуме проектировщиков. Там же показали позитивные примеры жилых проектов: 4 от «Лабва» Станислава Кулиша, 3 от арх-подразделения ГК «Самолет», которым руководит Андрей Перлич, 5 переселенческих малоэтажек от «Алев Груп».
В этом году у форума была особенно насыщенная повестка. Четыре круглых стола и три лекции посвященные ключевым изменениям в согласовании градостроительной документации, вступившим в силу в текущем году. Судя по огромному наплыву участников, разбор ... читать дальшеДом для переселения в поселке Туголесский Бор
© ALEV
описание:
Комитетом по архитектуре и градостроительству Московской области согласован облик многоквартирного жилого дома, планируемого к реализации в рамах программы по переселению граждан из аварийного жилищного фонда в Московской области. Новое жилье появится в городском округе Шатура, в поселке Туголесский Бор, вблизи улицы Октябрьская.
«Переселение из аварийного жилого фонда – одна из важнейших задач Правительства Московской области. Проектирование и реализация жилых объектов в регионе ведется по Стандартам качества жилищного строительства, которые были утверждены нами два года назад. Отдельное внимание в Стандартах уделяется домам под переселение – квартиры предоставляются с отделкой комфорт-класса, которая предусматривает использование качественных современных материалов. В новом жилом доме в поселке Туголесский бор предусмотрено 74 квартиры под переселение. Строительство объекта планируется завершить в 2024 году», – рассказал министр Правительства Московской области по архитектуре и градостроительству Владислав Гордиенко.
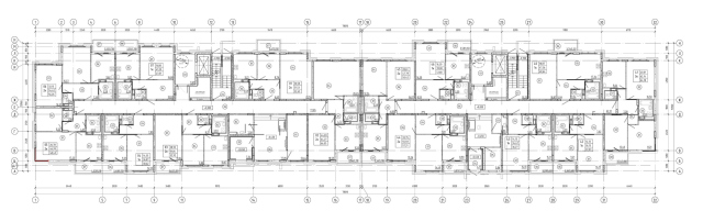
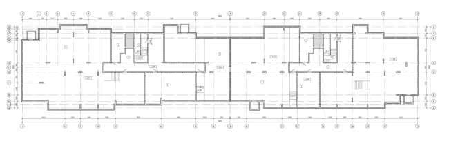
В плане здание представляет собой прямоугольный объем. Облицовка фасадов выполнена из фибробетонных панелей. Входные группы подъездов выделены цветом, продумана навигация. Организована безбарьерная среда: удобные и безопасные входы в подъезды без ступеней, лестниц и пандусов, просторные вестибюли с колясочными, прозрачные двери.
«При создании проекта был важен контекст: здание окружает малоэтажная кирпичная застройка. Для того, чтобы деликатно интегрировать жилой дом в существующую среду, авторы использовали натуральные оттенки и различные виды фактур на фасадах. Контраст горизонтальных и вертикальных панелей напоминает фигуры из игры Тетрис», – отметила главный архитектор Московской области Александра Кузьмина.
Территория жилого дома благоустраивается, организуется прогулочная зона с детскими и спортивными площадками для активного и спокойного отдыха.
«Переселение из аварийного жилого фонда – одна из важнейших задач Правительства Московской области. Проектирование и реализация жилых объектов в регионе ведется по Стандартам качества жилищного строительства, которые были утверждены нами два года назад. Отдельное внимание в Стандартах уделяется домам под переселение – квартиры предоставляются с отделкой комфорт-класса, которая предусматривает использование качественных современных материалов. В новом жилом доме в поселке Туголесский бор предусмотрено 74 квартиры под переселение. Строительство объекта планируется завершить в 2024 году», – рассказал министр Правительства Московской области по архитектуре и градостроительству Владислав Гордиенко.
В плане здание представляет собой прямоугольный объем. Облицовка фасадов выполнена из фибробетонных панелей. Входные группы подъездов выделены цветом, продумана навигация. Организована безбарьерная среда: удобные и безопасные входы в подъезды без ступеней, лестниц и пандусов, просторные вестибюли с колясочными, прозрачные двери.
«При создании проекта был важен контекст: здание окружает малоэтажная кирпичная застройка. Для того, чтобы деликатно интегрировать жилой дом в существующую среду, авторы использовали натуральные оттенки и различные виды фактур на фасадах. Контраст горизонтальных и вертикальных панелей напоминает фигуры из игры Тетрис», – отметила главный архитектор Московской области Александра Кузьмина.
Территория жилого дома благоустраивается, организуется прогулочная зона с детскими и спортивными площадками для активного и спокойного отдыха.
Дом для переселения в поселке Туголесский Бор
© ALEV
Дом для переселения в поселке Туголесский Бор
© ALEV
Дом для переселения в поселке Туголесский Бор. Ситуационный план
© ALEV
Дом для переселения в поселке Туголесский Бор
© ALEV
Дом для переселения в поселке Туголесский Бор. План подземного этажа
© ALEV
Дом для переселения в поселке Туголесский Бор. План 1 этажа
© ALEV
Дом для переселения в поселке Туголесский Бор
© ALEV
Архитекторы – партнеры Архи.ру:
Проект из каталога (случайный выбор)

Владимир Биндеман, 2012 – 2012
Концепция застройки территории малоэтажного жилого комплекса в Сестрорецке
Постройки и проекты (новые записи):
Новости российской архитектуры:
14.10.2025
Живопись и графика
Ксения Караваева, Мурат Гукетлов14.10.2025
Осмысление фьорда
14.10.2025
Архитектура дипломатии
Евгений Леонов13.10.2025