Дом для переселения в п. Радовицкий
© ALEV
Дом для переселения в п. Радовицкий
информация:
-
статус
проект -
даты
— 2023 -
место
Радовицкий -
координаты
55.129085, 39.797882 -
функция
Жилой / многоквартирный дом -
теги
send.project -
площадь участка
0,3 га -
площадь застройки
1 432,7 м2 -
площадь подземная
1 307 м2 -
общая площадь
5 045 м2 -
площадь жилая
2 587 м2 -
этажность
3 -
строительный объем
19 575 м3 - Количество квартир – 56

Константин Гандрабур
РоссияALEV
Россияавторский коллектив
ГАП: Константин Гандрабур
Архитекторы: Иван Михайлов, Никита Обжерин, Ясмин Пронченко
Визуализаторы: Евгения Погосова, Энкира Уланкиева
Архитекторы: Иван Михайлов, Никита Обжерин, Ясмин Пронченко
Визуализаторы: Евгения Погосова, Энкира Уланкиева
партнеры, заказчики, смежники
Заказчик: Стройкомплекс
Дом для переселения в п. Радовицкий
© ALEV
Архи.ру об этом объекте:
05.11.2024
Наталья Коряковская. Жилые проекты Московской области:
12 примеров
Мособлархитектура постоянно работает над новыми нормативами, цель которых – сделать проекты качественными, в том числе визуально. Следите за обновлениями! О них, в числе прочего, рассказали на региональном Форуме проектировщиков. Там же показали позитивные примеры жилых проектов: 4 от «Лабва» Станислава Кулиша, 3 от арх-подразделения ГК «Самолет», которым руководит Андрей Перлич, 5 переселенческих малоэтажек от «Алев Груп».
В этом году у форума была особенно насыщенная повестка. Четыре круглых стола и три лекции посвященные ключевым изменениям в согласовании градостроительной документации, вступившим в силу в текущем году. Судя по огромному наплыву участников, разбор ... читать дальшеДом для переселения в п. Радовицкий
© ALEV
описание:
Комитетом по архитектуре и градостроительству Московской области согласован облик многоквартирного жилого дома, планируемого к реализации в рамах программы по переселению граждан из аварийного жилищного фонда в Московской области.
Новое жилье появится в городском округе Шатура, в поселке Радовицкий, на улице Спортивная.
«В Московской области продолжается реализация программы переселения граждан из аварийного жилищного фонда. Обеспечение доступным и комфортным жильём – одна из приоритетных задач Правительства региона. Так, в Шатуре в скором времени появится новое жилье для переселенцев. По проекту площадь нового трехэтажного многоквартирного дома в поселке Радовицкий составит более 5000 квадратных метров. В доме предусмотрено 56 квартир. Строительство объекта начнется в этом году и планируется завершить в 2024», – рассказал министр Правительства Московской области по архитектуре и градостроительству Владислав Гордиенко.
Здание имеет Г-образную форму в плане. На территории организована безбарьерная среда: удобные и безопасные входы в подъезды без ступеней, лестниц и пандусов, просторные вестибюли с колясочными, прозрачные двери. Входные группы выполнены из алюминиевых кассет с перфорацией зеленого и серого цветов.
Фасады первых двух этажей облицованы бетонной плиткой под кирпич с рельефной поверхностью двух цветов: светло-серого и коричневого. Для оформления третьего этажа используются металлические фальцевые панели. Верхняя часть здания имитирует мансардный этаж, создавая уютный образ загородного дома. В облицовке цоколя применяется гранитная плитка серого оттенка. Ритм фасадов построен на сочетании поверхностей из стекла и бетона. Балконы облицованы панелями, которые располагаются по принципу лесенки, от этажа к этажу.
«Натуральные оттенки основной колористической палитры фасадов способствуют погружению в сельский пейзаж. Объемно-пространственные решения позволяют создать небольшое, но уютное приватное пространство – благоустроенный двор», – отметила главный архитектор Московской области Александра Кузьмина. Она также добавила, что проект соответствует стандартам качества жилищного строительства региона.
На территории организованы детские и спортивные зоны, парковка для автомобилей. В рамках благоустройства выполняется озеленение – высаживаются деревья и кустарники.
Новое жилье появится в городском округе Шатура, в поселке Радовицкий, на улице Спортивная.
«В Московской области продолжается реализация программы переселения граждан из аварийного жилищного фонда. Обеспечение доступным и комфортным жильём – одна из приоритетных задач Правительства региона. Так, в Шатуре в скором времени появится новое жилье для переселенцев. По проекту площадь нового трехэтажного многоквартирного дома в поселке Радовицкий составит более 5000 квадратных метров. В доме предусмотрено 56 квартир. Строительство объекта начнется в этом году и планируется завершить в 2024», – рассказал министр Правительства Московской области по архитектуре и градостроительству Владислав Гордиенко.
Здание имеет Г-образную форму в плане. На территории организована безбарьерная среда: удобные и безопасные входы в подъезды без ступеней, лестниц и пандусов, просторные вестибюли с колясочными, прозрачные двери. Входные группы выполнены из алюминиевых кассет с перфорацией зеленого и серого цветов.
Фасады первых двух этажей облицованы бетонной плиткой под кирпич с рельефной поверхностью двух цветов: светло-серого и коричневого. Для оформления третьего этажа используются металлические фальцевые панели. Верхняя часть здания имитирует мансардный этаж, создавая уютный образ загородного дома. В облицовке цоколя применяется гранитная плитка серого оттенка. Ритм фасадов построен на сочетании поверхностей из стекла и бетона. Балконы облицованы панелями, которые располагаются по принципу лесенки, от этажа к этажу.
«Натуральные оттенки основной колористической палитры фасадов способствуют погружению в сельский пейзаж. Объемно-пространственные решения позволяют создать небольшое, но уютное приватное пространство – благоустроенный двор», – отметила главный архитектор Московской области Александра Кузьмина. Она также добавила, что проект соответствует стандартам качества жилищного строительства региона.
На территории организованы детские и спортивные зоны, парковка для автомобилей. В рамках благоустройства выполняется озеленение – высаживаются деревья и кустарники.
Дом для переселения в п. Радовицкий
© ALEV
Дом для переселения в п. Радовицкий
© ALEV
Дом для переселения в п. Радовицкий. Ситуационный план
© ALEV
Дом для переселения в п. Радовицкий. Генплан
© ALEV
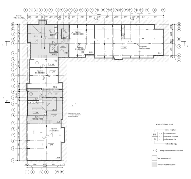
Дом для переселения в п. Радовицкий. План подземного этажа
© ALEV
Дом для переселения в п. Радовицкий. План типового этажа
© ALEV
Дом для переселения в п. Радовицкий
© ALEV
Архитекторы – партнеры Архи.ру:
Проект из каталога (случайный выбор)

Владимир Биндеман, 2012 – 2012
Концепция застройки территории малоэтажного жилого комплекса в Сестрорецке
Постройки и проекты (новые записи):
Новости российской архитектуры:
14.10.2025
Живопись и графика
Ксения Караваева, Мурат Гукетлов14.10.2025
Осмысление фьорда
14.10.2025
Архитектура дипломатии
Евгений Леонов13.10.2025