Дом для переселения в д. Жабкино
© ALEV
Дом для переселения в д. Жабкино
информация:
-
статус
проект -
даты
— 2023 -
координаты
55.554151, 37.635644 -
функция
Жилой / жилой комплекс -
теги
send.project -
площадь участка
6,4 га -
площадь застройки
1 526,40 м2 -
площадь подземная
147,46 м2 -
общая площадь
5 134,82 м2 -
площадь жилая
3 700,82 м2 -
этажность
4 -
кол-во машиномест
52

Константин Гандрабур
РоссияALEV
Россияавторский коллектив
ГАП: Константин Гандрабур
ГИП: Александр Крачун
Архитекторы: Иван Михайлов, Никита Обжерин, Ясмин Пронченко
Визуализаторы: Евгения Погосова, Энкира Уланкиева
ГИП: Александр Крачун
Архитекторы: Иван Михайлов, Никита Обжерин, Ясмин Пронченко
Визуализаторы: Евгения Погосова, Энкира Уланкиева
партнеры, заказчики, смежники
Заказчик: Гранель
Дом для переселения в д. Жабкино
© ALEV
Архи.ру об этом объекте:
05.11.2024
Наталья Коряковская. Жилые проекты Московской области:
12 примеров
Мособлархитектура постоянно работает над новыми нормативами, цель которых – сделать проекты качественными, в том числе визуально. Следите за обновлениями! О них, в числе прочего, рассказали на региональном Форуме проектировщиков. Там же показали позитивные примеры жилых проектов: 4 от «Лабва» Станислава Кулиша, 3 от арх-подразделения ГК «Самолет», которым руководит Андрей Перлич, 5 переселенческих малоэтажек от «Алев Груп».
В этом году у форума была особенно насыщенная повестка. Четыре круглых стола и три лекции посвященные ключевым изменениям в согласовании градостроительной документации, вступившим в силу в текущем году. Судя по огромному наплыву участников, разбор ... читать дальшеДом для переселения в д. Жабкино
© ALEV
описание:
ЖК Живописный – это 4-х этажный жилой дом г-образной формы в плане. Композиционно здание представляет собой сочетание белых, шоколадных секций, со вставками терракотово-морковных тонов.
Секции шоколадных тонов облицованы бетонной плиткой под клинкер, с лёгким дрипом. Белые секции оштукатурены и имеют 4-й визуально мансардный этаж, облицованый металлическими фальцевыми панелями, что придает зданию законченный образ. Ритм дворового фасадов построен на сочетании клинкерной плитки и стеклянных балконов. Балконы облицованы стемалитовыми панелями.
Айдентика здания состоит в том, что выступающие части здания выполнены с использованием фронтонных приемов. Это придает жилому дому характерную силуэтность на фоне живописного леса и создаёт образ малоэтажного жилья.
Секции шоколадных тонов облицованы бетонной плиткой под клинкер, с лёгким дрипом. Белые секции оштукатурены и имеют 4-й визуально мансардный этаж, облицованый металлическими фальцевыми панелями, что придает зданию законченный образ. Ритм дворового фасадов построен на сочетании клинкерной плитки и стеклянных балконов. Балконы облицованы стемалитовыми панелями.
Айдентика здания состоит в том, что выступающие части здания выполнены с использованием фронтонных приемов. Это придает жилому дому характерную силуэтность на фоне живописного леса и создаёт образ малоэтажного жилья.
Дом для переселения в д. Жабкино
© ALEV
Дом для переселения в д. Жабкино
© ALEV
Дом для переселения в д. Жабкино
© ALEV
Дом для переселения в д. Жабкино
© ALEV
Дом для переселения в д. Жабкино
© ALEV
Дом для переселения в д. Жабкино. Аксонометрия
© ALEV
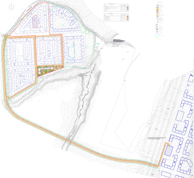
Дом для переселения в д. Жабкино. Генплан
© ALEV
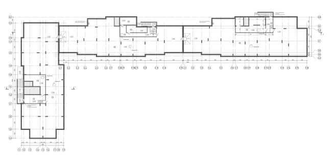
Дом для переселения в д. Жабкино. План подземного этажа
© ALEV
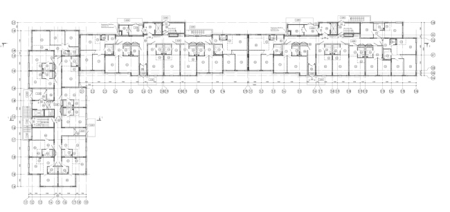
Дом для переселения в д. Жабкино. План 1 этажа
© ALEV
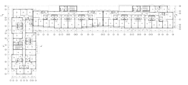
Дом для переселения в д. Жабкино. План типового этажа
© ALEV
Дом для переселения в д. Жабкино
© ALEV
Архитекторы – партнеры Архи.ру:
Проект из каталога (случайный выбор)

Владимир Биндеман, 2012 – 2012
Концепция застройки территории малоэтажного жилого комплекса в Сестрорецке
Постройки и проекты (новые записи):
Новости российской архитектуры:
14.10.2025
Живопись и графика
Ксения Караваева, Мурат Гукетлов14.10.2025
Осмысление фьорда
14.10.2025
Архитектура дипломатии
Евгений Леонов13.10.2025