Дом для переселения в Сергиевом Посаде
© ALEV
Дом для переселения в Сергиевом Посаде
информация:
-
статус
проект -
даты
— 2024 -
место
Сергиев Посад ул.Владимирская, 69 -
координаты
56.333760, 38.148599 -
функция
Жилой / многоквартирный дом -
теги
send.project -
площадь участка
1 га -
площадь застройки
1 854,6 м2 -
площадь подземная
515,6 м2 -
площадь общественная
2 096,48 м2 -
общая площадь
17 129,27 м2 -
площадь жилая
14 517,4 м2 -
высота
34,480 -
этажность
12 -
строительный объем
42 886,42 м3 -
Количество квартир – 273
Площадь озеленения – 2 585 -
кол-во машиномест
180

Константин Гандрабур
РоссияALEV
Россияавторский коллектив
ГАП: Константин Гандрабур
Архитекторы: Иван Михайлов, Никита Обжерин, Ясмин Пронченко,
Визуализаторы: Евгения Погосова, Энкира Уланкиева
Архитекторы: Иван Михайлов, Никита Обжерин, Ясмин Пронченко,
Визуализаторы: Евгения Погосова, Энкира Уланкиева
Дом для переселения в Сергиевом Посаде
© ALEV
Архи.ру об этом объекте:
05.11.2024
Наталья Коряковская. Жилые проекты Московской области:
12 примеров
Мособлархитектура постоянно работает над новыми нормативами, цель которых – сделать проекты качественными, в том числе визуально. Следите за обновлениями! О них, в числе прочего, рассказали на региональном Форуме проектировщиков. Там же показали позитивные примеры жилых проектов: 4 от «Лабва» Станислава Кулиша, 3 от арх-подразделения ГК «Самолет», которым руководит Андрей Перлич, 5 переселенческих малоэтажек от «Алев Груп».
В этом году у форума была особенно насыщенная повестка. Четыре круглых стола и три лекции посвященные ключевым изменениям в согласовании градостроительной документации, вступившим в силу в текущем году. Судя по огромному наплыву участников, разбор ... читать дальшеДом для переселения в Сергиевом Посаде
© ALEV
описание:
Комитетом по архитектуре и градостроительству Московской области согласован облик многоквартирного дома, реализующегося в рамках программы по переселению граждан из аварийного жилищного фонда в Московской области. Новое жилье появится в Сергиев Посад, на улице Владимирская.
В новом жилом доме на улице Владимирская предусмотрено 273 квартиры для переселенцев. В настоящее время ведется строительство объекта, его общая площадь составит порядка более 17,1 тысячи квадратных метров. Реализация проекта ведется по Стандартам жилищного строительства Московской области.
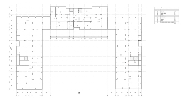
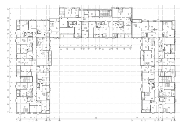
Здание – разноэтажное, от восьми до двенадцати этажей, имеет П-образную форму в плане. Композиционно объект решен в монохромных тонах, представляет собой сочетание серых и темно-серых секций, со вставками графитового цвета. Стены облицованы HPL- панелями с вертикальной нарезкой. Окна объединены по два этажа по вертикали, что позволяет сделать здание визуально ниже и сомасштабным человеку. Фасадные композиции лишены монотонности за счет использования светлых вставок, построенных по принципу лесенки, с развитием по вертикали.
Входные группы слегка заглубленные и облицованы панелями синего цвета, что выделает их и делает интуитивно понятной навигацию на территории. Для удобства жильцов, входы в каждый подъезд организован без ступеней, лестниц и пандусов. Также устанавливаются прозрачные входные двери, что обеспечивает комфорт и безопасность. Внутри подъездов организованы места общего пользования с колясочными.
Объемно-пространственные решения позволяют создать уютную дворовую территорию. Перед домом обустроена зона с детскими и спортивными площадками для активного и спокойного отдыха, а также предусмотрены стоянки для автомобилей.
В новом жилом доме на улице Владимирская предусмотрено 273 квартиры для переселенцев. В настоящее время ведется строительство объекта, его общая площадь составит порядка более 17,1 тысячи квадратных метров. Реализация проекта ведется по Стандартам жилищного строительства Московской области.
Здание – разноэтажное, от восьми до двенадцати этажей, имеет П-образную форму в плане. Композиционно объект решен в монохромных тонах, представляет собой сочетание серых и темно-серых секций, со вставками графитового цвета. Стены облицованы HPL- панелями с вертикальной нарезкой. Окна объединены по два этажа по вертикали, что позволяет сделать здание визуально ниже и сомасштабным человеку. Фасадные композиции лишены монотонности за счет использования светлых вставок, построенных по принципу лесенки, с развитием по вертикали.
Входные группы слегка заглубленные и облицованы панелями синего цвета, что выделает их и делает интуитивно понятной навигацию на территории. Для удобства жильцов, входы в каждый подъезд организован без ступеней, лестниц и пандусов. Также устанавливаются прозрачные входные двери, что обеспечивает комфорт и безопасность. Внутри подъездов организованы места общего пользования с колясочными.
Объемно-пространственные решения позволяют создать уютную дворовую территорию. Перед домом обустроена зона с детскими и спортивными площадками для активного и спокойного отдыха, а также предусмотрены стоянки для автомобилей.
Дом для переселения в Сергиевом Посаде
© ALEV
Дом для переселения в Сергиевом Посаде
© ALEV
Дом для переселения в Сергиевом Посаде
© ALEV
Дом для переселения в Сергиевом Посаде. Генплан
© ALEV
Дом для переселения в Сергиевом Посаде. План -1 этажа
© ALEV
Дом для переселения в Сергиевом Посаде. План 1 этажа
© ALEV
Дом для переселения в Сергиевом Посаде. План 2 этажа
© ALEV
Дом для переселения в Сергиевом Посаде. План типового этажа
© ALEV
Дом для переселения в Сергиевом Посаде
© ALEV
Архитекторы – партнеры Архи.ру:
Проект из каталога (случайный выбор)

Владимир Биндеман, 2012 – 2012
Концепция застройки территории малоэтажного жилого комплекса в Сестрорецке
Постройки и проекты (новые записи):
Новости российской архитектуры:
14.10.2025
Живопись и графика
Ксения Караваева, Мурат Гукетлов14.10.2025
Осмысление фьорда
14.10.2025
Архитектура дипломатии
Евгений Леонов13.10.2025