Balance Coffee
Фотография © Дмитрий Суворов / предоставлена KIDZ
Balance Coffee 1
информация:
-
статус
реализовано -
даты
04.2023 / 06.2023 -
место
Владикавказ проспект Мира 10 -
координаты
43.028353, 44.681175 -
функция
Торгово-коммерческий / кафе
Клиент пришел к нам через соц.сети с целью сделать дизайн для флагманской 6 точки -
теги
send.project -
общая площадь
100 м2

Арианна Микая
РоссияKIDZ
Россияавторский коллектив
Арианна Микая, Софья Плюснина, Руслан Полынский, Ольга Горбунова
Balance Coffee
Фотография © Дмитрий Суворов / предоставлена KIDZ
Архи.ру об этом объекте:
08.09.2025
Больше солнца и воздуха
Бюро KIDZ удается создавать кафе с уникальной атмосферой и настроением, благодаря которым они становятся популярными. И благодаря классному дизайну запускаются целые сети, как это произошло в Нальчике, где к уже двум существующим кофейням Balance Coffee добавилась третья.
От редакцииМодное место в регионе, обладающем собственной культурой, должно сочетать несочетаемое: признаки глобальной модности и приметы локальной идентичности, современность и вневременность, характерность и универсальную нейтральность. Как попаст... читать дальшеBalance Coffee
Фотография © Дмитрий Суворов / предоставлена KIDZ
описание:
Идея Balance Coffee заключается в создании особой атмосферы, за которой хочется возвращаться. Интерьер каждой кофейни располагает как к обычной встрече с друзьями и близкими (что очень важно в данном регионе, так как есть культ семьи и общения), так и работы. Таким образом, бренд удовлетворил сразу несколько запросов аудитории и быстро завоевал ее доверие своей искренностью и подходом.
Сам Нальчик насчитывал к моменту реализации 5 кофеен, параллельно сеть собиралась открывать шестую точку в новой локации – Владикавказе. Нам же предстояла разработка седьмой и флагманской точки – в том же Владикавказе.
Перед реализацией дизайн-проекта каждой точки проводится тщательный анализ территории и целевой аудитории. Так как на тот момент уже разрабатывалась кофейня в том же городе со своей определенной типологией, особо важно было сделать исследование касательно флагманской точки. Мы имели дело с самой привлекательной локацией города – проспект Мира – самая главная пешеходная магистраль. Важно было создать точку притяжения и при этом отыграть сразу несколько сценариев.
Исходя из этой миссии и исследований ключевой концепцией проекта стало слияние основной концепции сети – баланса и функционального запроса заказчика. Мы сразу зацепились за название. Что есть баланс? Кому он присущ? Как люди руководствуются им в обыденной жизни? Как отобразить в интерьере ту искренность, которая присуща бренду, и приумножить эффект?
Задаваясь этими вопросами, мы углубились в тематику гармонии, симметрии и баланса – в каждой детали интерьера мы искали ответы на вопросы о том, что нужно посетителю. Таким образом, мы пришли к королю этих ключевых тезисов – к современному художнику-режиссеру Уэсу Андерсону. Баланс – это про равновесие, чистоту мыслей и открытость сердца, про уют, прозрачность и тепло.
Изучая работы Андерсона, мы уловили для себя основную идею – он собирает все свои знания и трансформирует во что-то новое и самобытное. Благодаря переосмыслению множества известных сюжетов ему удается сказать новое слово в мире кинематографа.
Также мы хотели сказать и про интерьер: “интерьер не просто красивая картинка, он опирается на опыт и переосмысливает обычные сюжеты” Также у Андерсена есть приемы к которым он неоднократно возвращается.
Первый прием – симметрия. В кадрах фильмов Андерсона всегда можно
заметить строго поставленный кадр и перспективу.
И тут нам на руку сыграла расположенная по центру колонна, которая и стала осью композиции. Чтобы растворить ось в пространстве, мы обыграли ее зеркалом, а посадка слева в точности отзеркаливает посадку справа. Полукруглый диван, встречающий посетителей на входе еще больше усиливает этот эффект.
Второй прием – цвет. Цветовой палитре кинолент уделяется большое внимание, ведь каждый новый фильм – это про новые сочетания. Так как Баланс – все же минималистичная кофейня, которая должна была завоевать внимание посетителей мы решили остановиться на более спокойных мотивах и выбрали в качестве референса фильм “Бесподобный мистер Фокс”. Таким образом, все пространство получилось теплым и приглушенным, а основным акцентом в помещении стал глянцевый коммунальный стол оттенка соленой карамели.
Третий прием – персонажи. Мы сразу разделили их по типам и нашли отсылки в интерьере.
Взрослые прагматичные персонажи нашли себя в типовой посадке по периметру помещения, мужские – в доминантных строгих креслах, женские трансформировались в сильный и независимый коммунальный стол, а метафорой детских персонажей стала наивная подпотолочная конструкция с покачивающимися от воздуха мобилями из нержавеющей стали. Также Андерсон не забывает и про животных – их мы интерпретировали интегрировав необычный и немного животный шпон из корня тополя, использовав его локально на столешницах.
Заказчики попросили уделить большое внимание деталям и сервису, что нашло отражение в тщательно продуманных системах хранения продукции, стеллажах.
Сам Нальчик насчитывал к моменту реализации 5 кофеен, параллельно сеть собиралась открывать шестую точку в новой локации – Владикавказе. Нам же предстояла разработка седьмой и флагманской точки – в том же Владикавказе.
Перед реализацией дизайн-проекта каждой точки проводится тщательный анализ территории и целевой аудитории. Так как на тот момент уже разрабатывалась кофейня в том же городе со своей определенной типологией, особо важно было сделать исследование касательно флагманской точки. Мы имели дело с самой привлекательной локацией города – проспект Мира – самая главная пешеходная магистраль. Важно было создать точку притяжения и при этом отыграть сразу несколько сценариев.
Исходя из этой миссии и исследований ключевой концепцией проекта стало слияние основной концепции сети – баланса и функционального запроса заказчика. Мы сразу зацепились за название. Что есть баланс? Кому он присущ? Как люди руководствуются им в обыденной жизни? Как отобразить в интерьере ту искренность, которая присуща бренду, и приумножить эффект?
Задаваясь этими вопросами, мы углубились в тематику гармонии, симметрии и баланса – в каждой детали интерьера мы искали ответы на вопросы о том, что нужно посетителю. Таким образом, мы пришли к королю этих ключевых тезисов – к современному художнику-режиссеру Уэсу Андерсону. Баланс – это про равновесие, чистоту мыслей и открытость сердца, про уют, прозрачность и тепло.
Изучая работы Андерсона, мы уловили для себя основную идею – он собирает все свои знания и трансформирует во что-то новое и самобытное. Благодаря переосмыслению множества известных сюжетов ему удается сказать новое слово в мире кинематографа.
Также мы хотели сказать и про интерьер: “интерьер не просто красивая картинка, он опирается на опыт и переосмысливает обычные сюжеты” Также у Андерсена есть приемы к которым он неоднократно возвращается.
Первый прием – симметрия. В кадрах фильмов Андерсона всегда можно
заметить строго поставленный кадр и перспективу.
И тут нам на руку сыграла расположенная по центру колонна, которая и стала осью композиции. Чтобы растворить ось в пространстве, мы обыграли ее зеркалом, а посадка слева в точности отзеркаливает посадку справа. Полукруглый диван, встречающий посетителей на входе еще больше усиливает этот эффект.
Второй прием – цвет. Цветовой палитре кинолент уделяется большое внимание, ведь каждый новый фильм – это про новые сочетания. Так как Баланс – все же минималистичная кофейня, которая должна была завоевать внимание посетителей мы решили остановиться на более спокойных мотивах и выбрали в качестве референса фильм “Бесподобный мистер Фокс”. Таким образом, все пространство получилось теплым и приглушенным, а основным акцентом в помещении стал глянцевый коммунальный стол оттенка соленой карамели.
Третий прием – персонажи. Мы сразу разделили их по типам и нашли отсылки в интерьере.
Взрослые прагматичные персонажи нашли себя в типовой посадке по периметру помещения, мужские – в доминантных строгих креслах, женские трансформировались в сильный и независимый коммунальный стол, а метафорой детских персонажей стала наивная подпотолочная конструкция с покачивающимися от воздуха мобилями из нержавеющей стали. Также Андерсон не забывает и про животных – их мы интерпретировали интегрировав необычный и немного животный шпон из корня тополя, использовав его локально на столешницах.
Заказчики попросили уделить большое внимание деталям и сервису, что нашло отражение в тщательно продуманных системах хранения продукции, стеллажах.
Balance Coffee
Фотография © Дмитрий Суворов / предоставлена KIDZ
Balance Coffee
Фотография © Дмитрий Суворов / предоставлена KIDZ
Balance Coffee
Фотография © Дмитрий Суворов / предоставлена KIDZ
Balance Coffee
Фотография © Дмитрий Суворов / предоставлена KIDZ
Balance Coffee
Фотография © Дмитрий Суворов / предоставлена KIDZ
Balance Coffee
Фотография © Дмитрий Суворов / предоставлена KIDZ
Balance Coffee
Фотография © Дмитрий Суворов / предоставлена KIDZ
Balance Coffee. Аксонометрия
© KIDZ
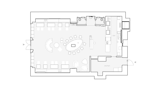
Balance Coffee. План
© KIDZ
Архитекторы – партнеры Архи.ру:
Проект из каталога (случайный выбор)
Постройки и проекты (новые записи):
Новости российской архитектуры:
21.10.2025
Кто в Сити, кто в горы?
Сергей Скуратов21.10.2025
На династической тропе
Сергей Никешкин20.10.2025
Крылья Маяковского
Алексей Гуров20.10.2025