RSS
Дом на Девичке
@ ОЙДА

Дом на Девичке

информация:

  • статус
    проект
  • даты
    2025
  • region= area= address= country_t=Россия city_t=Воронеж
    место
    Воронеж
  • функция
    Жилой / дом
  • теги
    send.project
  • общая площадь
    186 м2
  • высота
    7.450
  • этажность
    1
Никита Ничипоров
Россия

авторский коллектив

Архитекторы – Никита Ничипоров,  Денис Мамедов

Дом на Девичке
@ ОЙДА
Дом на Девичке
@ ОЙДА

история проекта:

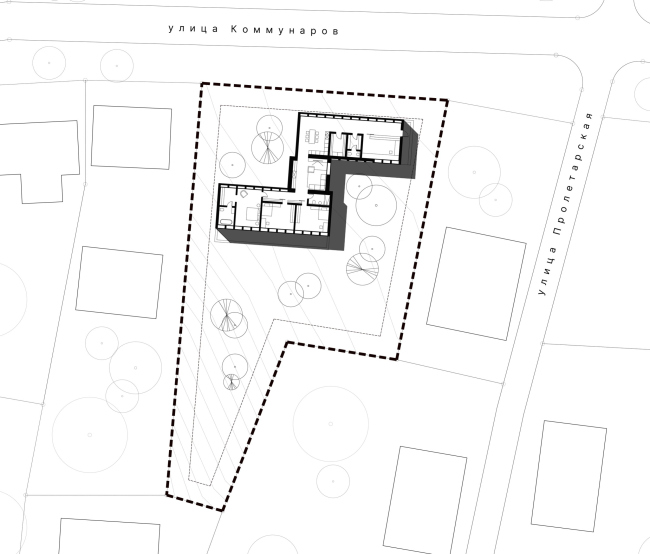
Проект родился из размышлений на тему того, каким мог бы быть современный частный дом, расположенный в центре города, в окружении очень яркого исторического контекста. Для этого мы выбрали участок близ Воронежского Новодевичьего монастыря (отсюда название района в простонародье – Девичок), и придумали свой дом мечты. Чтобы рассказать о своей идее людям, мы принесли свой проект на смотр-конкурс Зодчество ВРН – и выиграли.

описание:

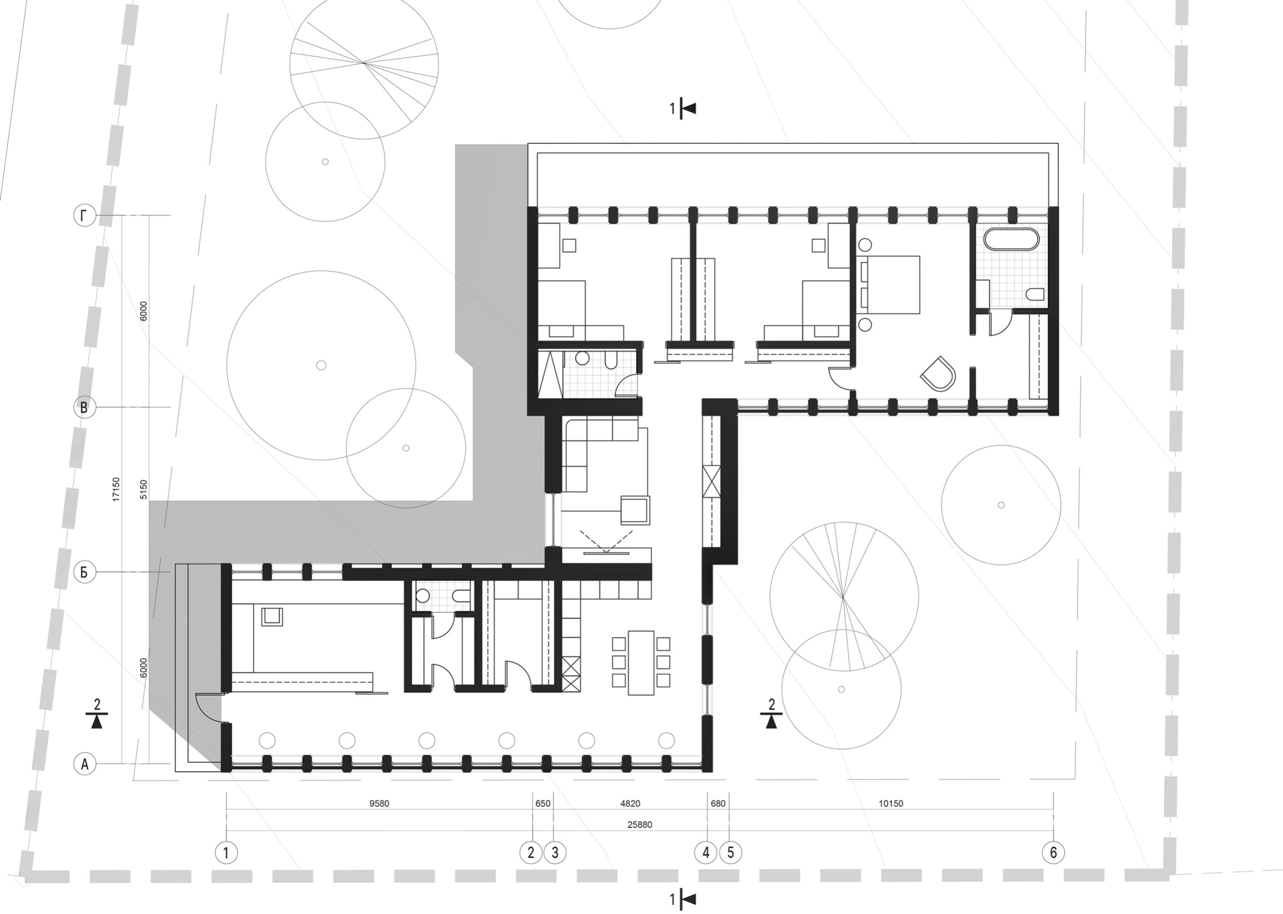
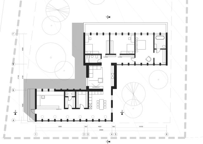
Дом расположен вдоль в северной части участка. Его архитектурный облик образуют три сочлененных объема, разделенных функционально и эстетически. Два крыла хозяйского и гостевого блока расходятся от доминантного объема Печи-гостиной. Гостевой блок размещен вдоль проезда, хозяйский блок обращен в глубину участка и имеет выход на террасу. В гостевом блоке размещена кухня, гостевой санузел, кабинет-мастерская хозяина дома и просторная галерея с возможностью размещения макетов и скульптур. Через кухню можно пройти в уютную гостиную с камином и световым фонарем. В жилом блоке размещены детские спальни и мастер-спальня хозяев.

Архитектура Дома – это размышление на тему воронежского вернакуляра в современной русской архитектуре. Каким может быть современный русский дом, и как этот дом может рассказать о своей «русскости» прохожему, без прямого цитирования традиционных орнаментов? В поисках ответа мы пришли к, с одной стороны, случайной, с другой стороны очень понятной и лаконичной, почти брутальной, форме.
Дом на Девичке
@ ОЙДА
Дом на Девичке
@ ОЙДА
Дом на Девичке
@ ОЙДА
Дом на Девичке
@ ОЙДА
Дом на Девичке
@ ОЙДА

Архитекторы – партнеры Архи.ру:

  • Татьяна Зульхарнеева
  • Николай Кикава
  • Николай Переслегин
  • Анастасия Абашева
  • Дмитрий Сухов
  • Юлия Солдатенкова
  • Владимир Плоткин
  • Михаил Давыдов
  • Александр Асадов
  • Юлиана Княжевская
  • Павел Андреев
  • Александр Скокан
  • Александр Котенков
  • Юлия Тряскина
  • Антон Яр-Скрябин
  • Наталия Шилова
  • Евгений Подгорнов
  • Владислав Андреев
  • Полина Воеводина
  • Юлий Борисов
  • Константин Ходнев
  • Михаил Канунников
  • Олег Мединский
  • Сергей Переслегин
  • Евгений Новосадюк
  • Дмитрий Остроумов
  • Андрей Михайлов
  • Сергей Скуратов
  • Андрей Романов
  • Андрей Асадов
  • Александра Кузьмина
  • Никита Явейн
  • Всеволод Медведев
  • Василий Крапивин
  • Георгий Трофимов
  • Марина Егорова
  • Олег Шапиро
  • Андрей Гнездилов
  • Елена Пучкова
  • Григорий Мустафин
  • Даниил Лоренц
  • Сергей Чобан
  • Сергей Кузнецов
  • Александр Самарин
  • Евгений Зеленов
  • Алексей Орлов
  • Раис Баишев
  • Антон Надточий
  • Илья Машков
  • Виталий Лутц
  • Игорь Шварцман
  • Дмитрий Буш
  • Зураб Басария
  • Валерий Каняшин
  • Дмитрий Ликин
  • Иван Кожин
  • Энди Сноу
  • Наталья Сидорова
  • Ерлан Бекмухамедов
  • Сергей Никешкин
  • Григориос Гавалидис
  • Вера Бутко
  • Степан Липгарт
  • Станислав Белых
  • Екатерина Кузнецова
  • Ростислав Цайзер
  • Игорь Членов
  • Сергей Труханов
  • Тимур Абдуллаев
  • Екатерина Абдуллаева
  • Маргарита Авдышева
  • Левон Айрапетов
  • Александр Аношкин
  • Алексей Афоничкин
  • Владислав Бек-Булатов
  • Антон Белов
  • Татьяна Бузулукова
  • Петр Васильев
  • Данило Вукосавлевич
  • Алина Георгиевская
  • Павел Гордеев
  • Илья Гринберг
  • Никита Демидов
  • Никита Дергунов
  • Наталья Жилкина
  • Алексей Зародов
  • Екатерина Зырина
  • Алексей Ильин
  • Дарья Ильина
  • Олег Карлсон
  • Алексей Кибкало
  • Денис Кувшинников
  • Анна Куликова
  • Алексей Курков
  • Данил Куров
  • Мария Кутай
  • Евгений Кутай
  • Иван Кычкин
  • Антон Ладыгин
  • Дмитрий Лапин
  • Борис Левянт
  • Илья Левянт
  • Катерина Левянт
  • Валерий Лукомский
  • Антон Лукомский
  • Екатерина Ляпунова
  • Сергей Марков
  • Елена Мерцалова
  • Николай Миловидов
  • Станислав Михаловский
  • Сергей Мичурин
  • Олеся Могилевская
  • Мария Николаева
  • Дмитрий Овчаров
  • Сергей Пергаев
  • Виктор Перов
  • Алексей Полищук
  • Роман Пономарёв
  • Валерия Преображенская
  • Виктория Раубо
  • Василий Рыбаков
  • Николай Рыбаков
  • Мария Салех
  • Александр Стариков
  • Илья Уткин
  • Елисей Чакан
  • Бориша Чорович
  • Олег Шурыгин
  • Дмитрий Шурыгин

Проект из каталога (случайный выбор)

Реконструкция здания бывшей фабрики-кухни на ул. Новокузнецкая
Георгий Трофимов, Николай Переслегин, Сергей Переслегин, 2014 – 2015
Реконструкция здания бывшей фабрики-кухни на ул. Новокузнецкая

Постройки и проекты (новые записи):

  • ЖК Ленинский проспект 59
  • Офис компании АльфаСтрахование
  • MIDITI
  • Офис компании Kept
  • Дом Спорта
  • Ежон Алтай
  • Freeform Home Design Challenge
  • Навесы Ленинградского вокзала
  • МФК Лотус

Новости российской архитектуры:

Маяк славы
16.04.2026

Маяк славы

Евгений Подгорнов
Теплый берег
15.04.2026

Теплый берег

Надежда Снигирёва
Жизнерадостный декаданс
14.04.2026

Жизнерадостный декаданс

Валерий Лизунов, Екатерина Агеева, Елизавета Трушина
Я в домике
14.04.2026

Я в домике

Юлий Борисов
Под знаком красного
14.04.2026

Под знаком красного

Дмитрий Овчаров, Елена Мерцалова