RSS
Галерея ОИЯИ
Фотография © Елена Пузынина, Леся Чепурченко / предоставлена Orchestra Design

Галерея ОИЯИ

информация:

  • статус
    реализовано
  • даты
    03.2024 / 05.2025
  • region= area= address=ул. Строителей, 2 country_t=Россия city_t=Дубна
    место
    Дубна ул. Строителей, 2
  • координаты
    56.747592, 37.185930
  • функция
    Культурный / Выставочный зал
  • теги
    send.project
  • общая площадь
    490 м2
Эдуард Моро
Россия

авторский коллектив

Главный архитектор – Эдуард Моро; руководитель проектного офиса – Анастасия Завада; менеджер проекта – Камилла Ибрагимова; архитектор, графический дизайнер – Ирина Харитонова; ведущий дизайнер – Софья Шайхутдинова; архитектор – Ирина Лаппалайнен; 
специалист по социокультурному проектированию – Елена Григорович

партнеры, заказчики, смежники

Основной заказчик – Объединенный институт ядерных исследований (ОИЯИ)
Кураторы проекта со стороны Заказчика – Пресс-центр ОИЯИ
Галерея ОИЯИ
Фотография © Елена Пузынина, Леся Чепурченко / предоставлена Orchestra Design

Архи.ру об этом объекте:

13.05.2026

Елена Петухова. Идеалы модернизма

В Дубне благодаря инициативе руководства местного научного института реконструировано модернистское здание. По проекту Orchestra Design в бывшем Доме международных совещаний открылся выставочный зал «Галерея ОИЯИ», чья деятельность будет проходить на стыке науки и искусства. И первой выставкой, иллюстрирующей этот принцип, стала экспозиция одного из самых известных художников современности, пионера российского кинетизма Франциско Инфантэ.

От редакции Мы уже не раз писали о проблеме наследия советского модернизма. Огромное количество общественных зданий, построенных в нашей стране во второй половине XX века, имеют разную степень сохранности и архитектурно-исторической ценности. Они ст...   читать дальше
Галерея ОИЯИ
Фотография © Елена Пузынина, Леся Чепурченко / предоставлена Orchestra Design

история проекта:

Заказчик узнал о нашей студии по проекту Творческого индустриального кластера «Октава» и рекомендации друга нашей студии, культуролога и исследователя Александра Сувалко (заместитель директора Института исследований культуры Факультета городского и регионального развития; старший преподаватель Факультета гуманитарных наук НИУ ВШЭ; руководитель проектов АНО «Креативная экономика»).

Александр Сувалко совместно с Русланом Хестановым (руководитель Лаборатории исследований культуры Факультета городского и регионального развития; профессор Факультета гуманитарных наук НИУ ВШЭ) разработал исследование «Перспективы развития ДМС как объекта социокультурной инфраструктуры ОИЯИ и города Дубна». В результате исследования и согласно стратегическим планам руководства ОИЯИ было принято решение открыть в Дубне выставочное пространство Art & Science – как демонстрационную и коммуникационную площадку Института. Здесь планируется выставлять работы, созданные в коллаборации ученых ОИЯИ и художников.

Мы взяли за основу заложенные цель и миссию и предложили концепцию с названием проекта «Приоткрывая завесу науки».
 

описание:

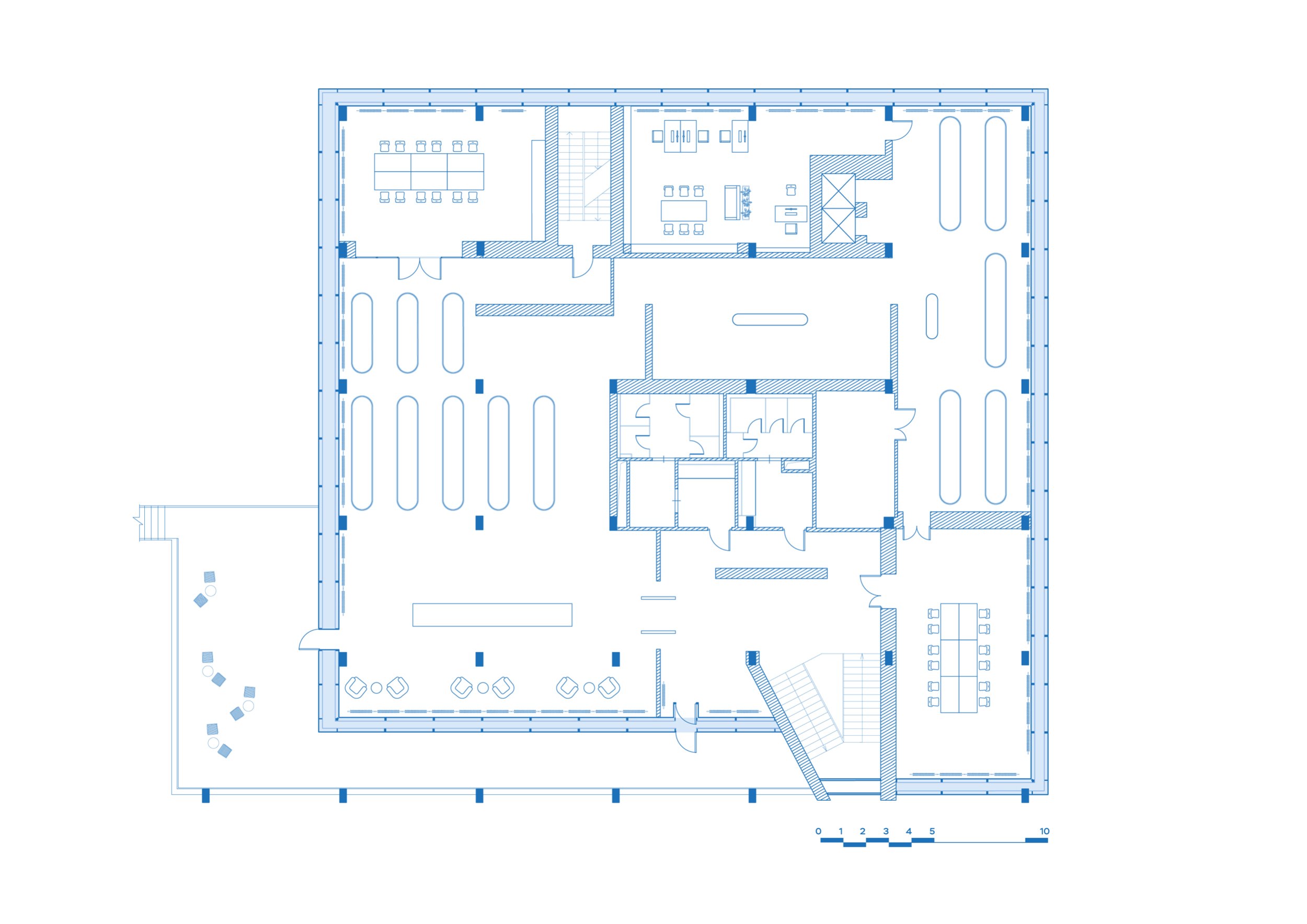
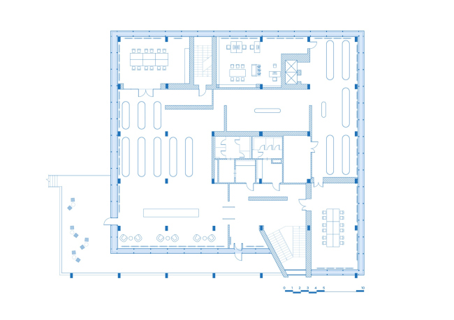
Контекст и концепция
Объединенный институт ядерных исследований (ОИЯИ) открывает Галерею ОИЯИ в Доме международных совещаний (ДМС), спроектированную студией Orchestra Design. Концепция многофункционального выставочного Art & Science пространства получила название «Приоткрывая завесу науки». ДМС становится культурно-образовательной витриной Института и открывает для широкой публики мир современной науки через искусство. Исторически ДМС служил местом для встреч международных научных делегаций. Теперь здание открывается для посещения жителям и гостям города.

Пространство спроектировано как структурированный маршрут для поэтапного прохождения:
Введение – входная лаунж-зона с массивными роторными дверями, где можно познакомиться с различными печатными изданиями и темой экспозиции.
Открытие – главный выставочный зал в эстетике научных лабораторий, вдохновленный дубнинским синхрофазотроном и коллайдером.
Погружение – иммерсивный медиа-зал для аудиовизуальных представлений, превращающий зрителя в участника.
Осмысление – светлое пространство для созерцания экспозиции и анализа.

Архитектура позднего модернизма и эстетика научных лабораторий послужили вдохновением для дизайна интерьера.
Проект бережно сохраняет наследие позднего советского модернизма. Панорамное остекление главная архитектурная ценность – проходит через все залы, сохраняя визуальную связь с городом. Контраст используемых теплых и холодных материалов делит пространство на функциональные и смысловые зоны. Узнаваемый элемент интерьера эллиптическая выставочная система из подвесных и напольных рельс индивидуального изготовления, вдохновленная деталями и линиями ускорительной установки. Она позволяет адаптировать галерею под разные форматы и масштабы экспозиции.

Образовательные и рабочие помещения трансформируются
Планировки прилегающих помещений мастерской, лекционного зала и офиса меняются под различные сценарии: лекции, хакатоны, подкасты, конференции и школьные программы.

Галерея как новый культурный центр Дубны
Обновленный ДМС становится точкой притяжения туристов и горожан, укрепляя идентичность Дубны как научно-культурного центра, где фундаментальные исследования встречаются с искусством и открываются социуму.
 
Галерея ОИЯИ
Фотография © Елена Пузынина, Леся Чепурченко / предоставлена Orchestra Design
Галерея ОИЯИ
Фотография © Елена Пузынина, Леся Чепурченко / предоставлена Orchestra Design
Галерея ОИЯИ
Фотография © Елена Пузынина, Леся Чепурченко / предоставлена Orchestra Design
Галерея ОИЯИ
Фотография © Елена Пузынина, Леся Чепурченко / предоставлена Orchestra Design
Галерея ОИЯИ
Фотография © Елена Пузынина, Леся Чепурченко / предоставлена Orchestra Design
Галерея ОИЯИ
Фотография © Елена Пузынина, Леся Чепурченко / предоставлена Orchestra Design
Галерея ОИЯИ
Фотография © Елена Пузынина, Леся Чепурченко / предоставлена Orchestra Design
Галерея ОИЯИ
Фотография © Елена Пузынина, Леся Чепурченко / предоставлена Orchestra Design
Галерея ОИЯИ
Фотография © Елена Пузынина, Леся Чепурченко / предоставлена Orchestra Design
Галерея ОИЯИ
Фотография © Елена Пузынина, Леся Чепурченко / предоставлена Orchestra Design
Галерея ОИЯИ
Фотография © Елена Пузынина, Леся Чепурченко / предоставлена Orchestra Design
Галерея ОИЯИ
Фотография © Елена Пузынина, Леся Чепурченко / предоставлена Orchestra Design
Галерея ОИЯИ
Фотография © Елена Пузынина, Леся Чепурченко / предоставлена Orchestra Design
Галерея ОИЯИ
Фотография © Елена Пузынина, Леся Чепурченко / предоставлена Orchestra Design
Галерея ОИЯИ
Фотография © Елена Пузынина, Леся Чепурченко / предоставлена Orchestra Design
Галерея ОИЯИ
Фотография © Елена Пузынина, Леся Чепурченко / предоставлена Orchestra Design
Галерея ОИЯИ
Фотография © Елена Пузынина, Леся Чепурченко / предоставлена Orchestra Design
Галерея ОИЯИ
Фотография © Елена Пузынина, Леся Чепурченко / предоставлена Orchestra Design
Галерея ОИЯИ. Вход в галерею
@ Orchestra Design
Галерея ОИЯИ. Входная зона
@ Orchestra Design
Галерея ОИЯИ. Входная зона
@ Orchestra Design
Галерея ОИЯИ. Выставочный зал
@ Orchestra Design
Галерея ОИЯИ. Портал в иммерсивный зал
@ Orchestra Design
Галерея ОИЯИ. Выставочная система
@ Orchestra Design
Галерея ОИЯИ. Окна
@ Orchestra Design
Галерея ОИЯИ
@ Orchestra Design
Галерея ОИЯИ
@ Orchestra Design
Галерея ОИЯИ
@ Orchestra Design
Галерея ОИЯИ
@ Orchestra Design
Галерея ОИЯИ
@ Orchestra Design

Архитекторы – партнеры Архи.ру:

  • Екатерина Кузнецова
  • Юлия Тряскина
  • Дмитрий Ликин
  • Сергей Никешкин
  • Михаил Давыдов
  • Юлия Солдатенкова
  • Вера Бутко
  • Александра Кузьмина
  • Раис Баишев
  • Александр Самарин
  • Виталий Лутц
  • Александр Скокан
  • Евгений Зеленов
  • Сергей Переслегин
  • Полина Воеводина
  • Николай Переслегин
  • Андрей Романов
  • Николай Кикава
  • Олег Шапиро
  • Евгений Новосадюк
  • Павел Андреев
  • Сергей Скуратов
  • Никита Явейн
  • Михаил Канунников
  • Алексей Орлов
  • Сергей Труханов
  • Андрей Михайлов
  • Антон Яр-Скрябин
  • Александр Асадов
  • Андрей Асадов
  • Дмитрий Остроумов
  • Елена Пучкова
  • Борис Воскобойников
  • Дмитрий Сухов
  • Григориос Гавалидис
  • Энди Сноу
  • Всеволод Медведев
  • Владимир Плоткин
  • Татьяна Зульхарнеева
  • Игорь Членов
  • Дмитрий Буш
  • Олег Мединский
  • Александр Котенков
  • Зураб Басария
  • Сергей Чобан
  • Анастасия Абашева
  • Наталья Сидорова
  • Константин Ходнев
  • Георгий Трофимов
  • Антон Надточий
  • Наталия Шилова
  • Владислав Андреев
  • Василий Крапивин
  • Даниил Лоренц
  • Сергей Кузнецов
  • Григорий Мустафин
  • Иван Кожин
  • Степан Липгарт
  • Юлиана Княжевская
  • Андрей Гнездилов
  • Марина Егорова
  • Ростислав Цайзер
  • Валерий Каняшин
  • Станислав Белых
  • Мария Ахременкова
  • Евгений Подгорнов
  • Игорь Шварцман
  • Илья Машков
  • Юлий Борисов
  • Ерлан Бекмухамедов
  • Тимур Абдуллаев
  • Екатерина Абдуллаева
  • Маргарита Авдышева
  • Левон Айрапетов
  • Александр Аношкин
  • Алексей Афоничкин
  • Владислав Бек-Булатов
  • Антон Белов
  • Татьяна Бузулукова
  • Петр Васильев
  • Данило Вукосавлевич
  • Алина Георгиевская
  • Павел Гордеев
  • Илья Гринберг
  • Никита Демидов
  • Никита Дергунов
  • Наталья Жилкина
  • Алексей Зародов
  • Екатерина Зырина
  • Алексей Ильин
  • Дарья Ильина
  • Олег Карлсон
  • Алексей Кибкало
  • Денис Кувшинников
  • Анна Куликова
  • Алексей Курков
  • Данил Куров
  • Мария Кутай
  • Евгений Кутай
  • Иван Кычкин
  • Антон Ладыгин
  • Дмитрий Лапин
  • Илья Левянт
  • Катерина Левянт
  • Борис Левянт
  • Валерий Лукомский
  • Антон Лукомский
  • Екатерина Ляпунова
  • Иса Магомедов
  • Сергей Марков
  • Елена Мерцалова
  • Николай Миловидов
  • Станислав Михаловский
  • Сергей Мичурин
  • Олеся Могилевская
  • Филипп Никандров
  • Мария Николаева
  • Дмитрий Овчаров
  • Сергей Пергаев
  • Виктор Перов
  • Алексей Полищук
  • Роман Пономарёв
  • Валерия Преображенская
  • Виктория Раубо
  • Василий Рыбаков
  • Николай Рыбаков
  • Мария Салех
  • Александр Стариков
  • Илья Уткин
  • Елисей Чакан
  • Бориша Чорович
  • Олег Шурыгин
  • Дмитрий Шурыгин

Проект из каталога (случайный выбор)

Постройки и проекты (новые записи):

  • Гостиница в Чите
  • ЖК Квартал 64
  • Деловое пространство «ПЛЭЙН»
  • Конкурсный проект ФИЦ / ТПО «Резерв»
  • Porta
  • Детский сад на 200 мест в Жилино-1
  • Архитектурная концепция кластера Ломоносов-2
  • Клубный дом в 1-м Казачьем переулке
  • Частный дом в Ленинградской области

Новости российской архитектуры:

Мембрана для мысли: IND
13.05.2026

Мембрана для мысли: IND

Амир Идиатулин, Юлия Парфенова
Сплав мировых культур
13.05.2026

Сплав мировых культур

Александр Салов, Татьяна Осецкая
КиноГолограмма
12.05.2026

КиноГолограмма

Николай Переслегин, Сергей Переслегин, Георгий Трофимов
Форма как метод: ТПО «Резерв»
12.05.2026

Форма как метод: ТПО «Резерв»

Владимир Плоткин
Консервация как комментарий
12.05.2026

Консервация как комментарий

Наринэ Тютчева