Шоу-рум ROCA GROUP SPACE
Фотография ©Михаил Лоскутов / предоставлена VOX Architects
Шоу-рум ROCA GROUP SPACE
/ ROCA GROUP SPACEинформация:
-
статус
реализовано -
даты
2020 / — 2021 -
место
Москва ул. 2-ая Хуторская 38А, стр.14 -
координаты
55.806059, 37.568641 -
функция
Торгово-коммерческий / шоу-рум -
общая площадь
805 м2
Борис Воскобойников
Boris Voskoboynikov / Россия
Мария Ахременкова
Maria Akhremenkova / Россия
VOX architects
VOX architects / Россияавторский коллектив
Руководители проекта – Борис Воскобойников, Мария Ахременкова
Проектная группа – Екатерина Чернышова, Яна Митасова, Валерия Хлебцевич, Евгений Незамайкин, Максим Фролов, Павел Суршков и другие
Проектная группа – Екатерина Чернышова, Яна Митасова, Валерия Хлебцевич, Евгений Незамайкин, Максим Фролов, Павел Суршков и другие
партнеры, заказчики, смежники
Заказчик: ROCA GROUP
Строительная компания: КМТ
Инженерная компания: OBION
Субподрядчики и поставщики: Kartell, Sixinch, Smile, Q-pro, Fundermax, SoundBoard Fine, Versal, Новофлор, Hilti
Строительная компания: КМТ
Инженерная компания: OBION
Субподрядчики и поставщики: Kartell, Sixinch, Smile, Q-pro, Fundermax, SoundBoard Fine, Versal, Новофлор, Hilti
Шоу-рум ROCA GROUP SPACE
Фотография ©Михаил Лоскутов / предоставлена VOX Architects
Шоу-рум ROCA GROUP SPACE
Фотография ©Михаил Лоскутов / предоставлена VOX Architects
описание:
Форма воды
ROCA GROUP Space в Москве – место, где начинается знакомство с философией мирового лидера в области производства инновационных продуктов и решений для ванных комнат, известного своими инвестициями в высококлассный дизайн, приверженностью принципам устойчивого развития в области проектирования и заботой о водных ресурсах.
Московский офис компании пригласил VOX Architects спроектировать мультифункциональное пространство, в котором сосуществуют и взаимодополняют друг друга шоурум, зал для корпоративных и культурных мероприятий, а также учебные классы как для профессиональных дизайнеров и архитекторов, так и для начинающих проектировщиков. Здесь можно не только увидеть бестселлеры и свежие новинки брендов компании ROCA GROUP, но и погрузиться на чувственном, тактильном и пространственном уровне в атмосферу креативности, творчества и нестандартных идей.
Сквозной сюжет
Сразу две выставочные бренд-площадки – ROCA и LAUFEN – объединены интерактивной видеоинсталляцией, которая посвящена воде в самых разных ее формах и проявлениях. Культуре потребления воды производители и сотрудничающие с ними звезды мирового дизайна, от Марселя Вандерса до Патриции Уркиолы, уделяют внимание не только при проектировании новых моделей. ROCA GROUP также заботится о водных ресурсах в рамках некоммерческого проекта «We Are Water», созданного компанией для решения проблем, связанных с нехваткой воды и санитарии в самых неблагополучных районах планеты.
При входе посетителей встречает стойка ресепшн с подсвеченной арт-инсталляцией из фрагментов сантехнической керамики и волной на большом экране, отсылающие, в том числе, к знаменитому «Фонтану» Марселя Дюшана, показавшего, что даже в повседневном предмете можно увидеть красоту формы, чистый образ. Но прежде всего, инсталляция обращается к инновационным разработкам компании, ее исследовательской деятельности в поиске лучшего решения.
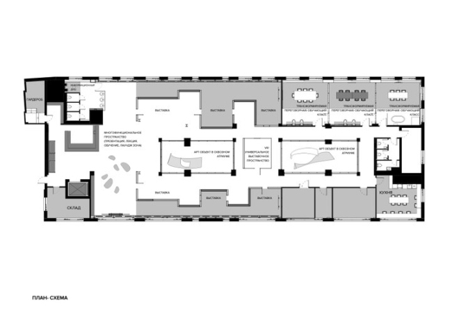
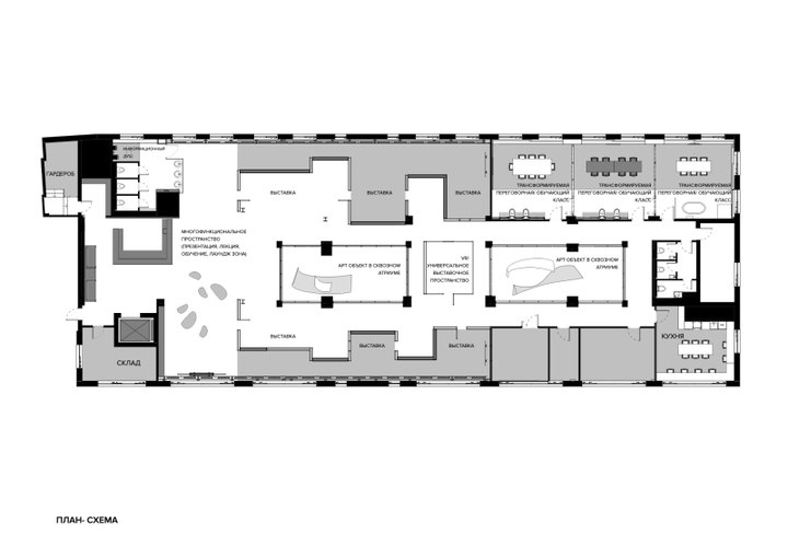
Тема воды, без которой невозможно функционирование решений ROCA GROUP, пронизывает все спроектированные здесь на площади 700 квадратных метров функциональные зоны. Свободным, мощным, меняющимся потоком вода перетекает, бурлит, пузырится, колышется, льется в видеоряде протяженностью 46 метров на ЖК-экранах, закрепленных на темных перфорированных HPL-панелях Fundermax, которыми облицованы стены выставочного пространства. Эти же медиа-экраны служат визуальной составляющей на различных мероприятиях, используются для трансляции фильмов и видео-материалов компании, а также для проведения digital-выставок и дизайн-конкурсов. Цифровая волна опоясывает зал для лекций, презентаций и встреч с прозрачными стульями Frilly от Kartell, а также комнаты с тематическими экспозициями, которые представляют культовые раковины LAUFEN Alessi, цветные аксессуары Kartell by LAUFEN, умный унитаз-биде Cleanet Riva, премиум-коллекцию LAUFEN The New Classic от Марселя Вандерса и элегантную Sonar от Патриции Уркиолы. В зале Roca дигитальная вода «омывает» зоны винтажной линейки Carmen, современной Beyond и Ohtake, плавно «перетекая» в пространство смесителей и решений для душа от Roca и ARMANI/Roca. Еще один информационный поток из логотипа «Roca» льется с потолка в виртуальной душевой комнате, отражаясь в поверхностях пола и потолка.
Потенциал пространства
Связанный с водной стихией образный ряд – чистота, ясность, прозрачность, изменчивость – проявлен в планировочном решении, в выбранных материалах и монохромной палитре.
Экспозиционная площадка решена как чистая графическая модульная конструкция, максимально открытая и мобильная. Ее предельная условность и театральность позволяют играть с пространством и менять его в зависимости от актуальных задач, постоянно достраивая. Прозрачные перегородки тематических комнат легко зашторить и снова раскрыть. Плоскости наливных полов и стемалитовых панелей, покрытых зеркальной пленкой, переотражают друг друга, проявляя глубину ROCA GROUP Space, в котором парят футуристические белоснежные объекты.
«Цифровой» воде могут вторить и физические арт-объекты, заложенные в архитектурном проекте: над двумя атриумами при желании можно пустить металлическую «волну», а над входной зоной – собрать наполненные водой каплевидные объекты из полимерной ткани.
В режиме диалога
Коммуникационные потоки в ROCA GROUP Space выстроены от встреч и общения в гостевой и выставочных зонах к обмену опытом с профессиональной аудиторией в учебных классах, которые соседствуют с переговорной. Здесь на открытом стенде демонстрируются приемы крепления сантехнический изделий, проводятся мастер-классы с дизайнерами, архитекторами, техническими специалистами, раскрываются секреты и тонкости производства. Таким образом, ROCA GROUP Space расширяет представление о шоуруме как о многофункциональном пространстве, всегда открытом для диалога. Оно позволяет выйти на новый уровень коммуникации бренда с аудиторией, помогая формированию современного представления о культуре ванных комнат, осознанному потреблению воды и устойчивому развитию, а также поиску новых решений и идей, улучшающих качество жизни каждого человека.
О ROCA GROUP
Сегодня ROCA GROUP – это один из мировых лидеров в области производства полного ассортимента продукции для ванных комнат: санитарной керамики, смесителей, аксессуаров и мебели для ванной комнаты, напольной и настенной керамической плитки для архитектурных, строительных проектов и интерьерного дизайна, а также единственный в мире производитель всех видов ванн: чугунных, стальных, акриловых. ROCA GROUP представлена в 170 странах и располагает 85 заводами, на которых занято 24 000 сотрудников. В 2019 году ее оборот составил 1,86 миллиарда евро.
Эта семейная группа компаний является лидером рынка в Европе, Латинской Америке, Индии и России. Она также имеет сильные позиции в Китае и других странах Азии, на Ближнем Востоке, в Австралии и Африке. Благодаря этому она является мировым лидером в своей сфере деятельности.
ROCA GROUP Space в Москве – место, где начинается знакомство с философией мирового лидера в области производства инновационных продуктов и решений для ванных комнат, известного своими инвестициями в высококлассный дизайн, приверженностью принципам устойчивого развития в области проектирования и заботой о водных ресурсах.
Московский офис компании пригласил VOX Architects спроектировать мультифункциональное пространство, в котором сосуществуют и взаимодополняют друг друга шоурум, зал для корпоративных и культурных мероприятий, а также учебные классы как для профессиональных дизайнеров и архитекторов, так и для начинающих проектировщиков. Здесь можно не только увидеть бестселлеры и свежие новинки брендов компании ROCA GROUP, но и погрузиться на чувственном, тактильном и пространственном уровне в атмосферу креативности, творчества и нестандартных идей.
Сквозной сюжет
Сразу две выставочные бренд-площадки – ROCA и LAUFEN – объединены интерактивной видеоинсталляцией, которая посвящена воде в самых разных ее формах и проявлениях. Культуре потребления воды производители и сотрудничающие с ними звезды мирового дизайна, от Марселя Вандерса до Патриции Уркиолы, уделяют внимание не только при проектировании новых моделей. ROCA GROUP также заботится о водных ресурсах в рамках некоммерческого проекта «We Are Water», созданного компанией для решения проблем, связанных с нехваткой воды и санитарии в самых неблагополучных районах планеты.
При входе посетителей встречает стойка ресепшн с подсвеченной арт-инсталляцией из фрагментов сантехнической керамики и волной на большом экране, отсылающие, в том числе, к знаменитому «Фонтану» Марселя Дюшана, показавшего, что даже в повседневном предмете можно увидеть красоту формы, чистый образ. Но прежде всего, инсталляция обращается к инновационным разработкам компании, ее исследовательской деятельности в поиске лучшего решения.
Тема воды, без которой невозможно функционирование решений ROCA GROUP, пронизывает все спроектированные здесь на площади 700 квадратных метров функциональные зоны. Свободным, мощным, меняющимся потоком вода перетекает, бурлит, пузырится, колышется, льется в видеоряде протяженностью 46 метров на ЖК-экранах, закрепленных на темных перфорированных HPL-панелях Fundermax, которыми облицованы стены выставочного пространства. Эти же медиа-экраны служат визуальной составляющей на различных мероприятиях, используются для трансляции фильмов и видео-материалов компании, а также для проведения digital-выставок и дизайн-конкурсов. Цифровая волна опоясывает зал для лекций, презентаций и встреч с прозрачными стульями Frilly от Kartell, а также комнаты с тематическими экспозициями, которые представляют культовые раковины LAUFEN Alessi, цветные аксессуары Kartell by LAUFEN, умный унитаз-биде Cleanet Riva, премиум-коллекцию LAUFEN The New Classic от Марселя Вандерса и элегантную Sonar от Патриции Уркиолы. В зале Roca дигитальная вода «омывает» зоны винтажной линейки Carmen, современной Beyond и Ohtake, плавно «перетекая» в пространство смесителей и решений для душа от Roca и ARMANI/Roca. Еще один информационный поток из логотипа «Roca» льется с потолка в виртуальной душевой комнате, отражаясь в поверхностях пола и потолка.
Потенциал пространства
Связанный с водной стихией образный ряд – чистота, ясность, прозрачность, изменчивость – проявлен в планировочном решении, в выбранных материалах и монохромной палитре.
Экспозиционная площадка решена как чистая графическая модульная конструкция, максимально открытая и мобильная. Ее предельная условность и театральность позволяют играть с пространством и менять его в зависимости от актуальных задач, постоянно достраивая. Прозрачные перегородки тематических комнат легко зашторить и снова раскрыть. Плоскости наливных полов и стемалитовых панелей, покрытых зеркальной пленкой, переотражают друг друга, проявляя глубину ROCA GROUP Space, в котором парят футуристические белоснежные объекты.
«Цифровой» воде могут вторить и физические арт-объекты, заложенные в архитектурном проекте: над двумя атриумами при желании можно пустить металлическую «волну», а над входной зоной – собрать наполненные водой каплевидные объекты из полимерной ткани.
В режиме диалога
Коммуникационные потоки в ROCA GROUP Space выстроены от встреч и общения в гостевой и выставочных зонах к обмену опытом с профессиональной аудиторией в учебных классах, которые соседствуют с переговорной. Здесь на открытом стенде демонстрируются приемы крепления сантехнический изделий, проводятся мастер-классы с дизайнерами, архитекторами, техническими специалистами, раскрываются секреты и тонкости производства. Таким образом, ROCA GROUP Space расширяет представление о шоуруме как о многофункциональном пространстве, всегда открытом для диалога. Оно позволяет выйти на новый уровень коммуникации бренда с аудиторией, помогая формированию современного представления о культуре ванных комнат, осознанному потреблению воды и устойчивому развитию, а также поиску новых решений и идей, улучшающих качество жизни каждого человека.
О ROCA GROUP
Сегодня ROCA GROUP – это один из мировых лидеров в области производства полного ассортимента продукции для ванных комнат: санитарной керамики, смесителей, аксессуаров и мебели для ванной комнаты, напольной и настенной керамической плитки для архитектурных, строительных проектов и интерьерного дизайна, а также единственный в мире производитель всех видов ванн: чугунных, стальных, акриловых. ROCA GROUP представлена в 170 странах и располагает 85 заводами, на которых занято 24 000 сотрудников. В 2019 году ее оборот составил 1,86 миллиарда евро.
Эта семейная группа компаний является лидером рынка в Европе, Латинской Америке, Индии и России. Она также имеет сильные позиции в Китае и других странах Азии, на Ближнем Востоке, в Австралии и Африке. Благодаря этому она является мировым лидером в своей сфере деятельности.