RSS
Frame Wood
@ AGE architects

Frame Wood

информация:

  • статус
    проект
  • даты
    20242025
  • функция
    Жилой / дом
  • теги
    send.project
  • общая площадь
    255.3 м2
  • высота
    8.55
  • этажность
    2
  • Общая площадь с уч. террас – 378.6 м2
     
Россия

авторский коллектив

Архитектор – Саид-Магомед Альмурзаев, Евгения Молчанова 
 

партнеры, заказчики, смежники

Заказчик – Арсений Николаевич Морозов

награды:

    Конкурс «Красивые деревянные дома 2025» номинация «Архитектурный проект» – 2 место
Frame Wood
@ AGE architects

Архи.ру об этом объекте:

02.04.2026

Фахверк в формате барнхауса

В проекте загородного дома Frame Wood от AGE architects тектоника мощного фахверкового каркаса освобождена от стереотипов и заключена в лаконичный силуэт барнхауса. Конструкция по-прежнему – главное средство выразительности, но она становится более вариативной, а дом приобретает не характерную для фахверка легкость.

Переосмысливая типологию премиального фахверкового дома, авторы проекта Frame Wood отказываются от привычного образа шале и решетчатой эстетики, заменяя её монолитным современным объемом с двускатной кровлей. Получился интересный гибрид, где сохр...   читать дальше
Frame Wood
@ AGE architects

описание:

Проект загородного дома Frame Wood – это переосмысление традиционной фахверковой архитектуры. В основе концепции лежит ключевая особенность технологии – визуальная выразительность несущего каркаса и его тектоника, которые гармонично проявляются как в экстерьере, так и в интерьере. Благодаря этому создаётся ощущение лёгкости и открытости пространства, а конструкция становится частью архитектурного образа.

Однако привычный облик фахверковых домов, сложившийся за долгие годы, в стандартных решениях утратил свою актуальность. Он стал предсказуемым и не всегда отвечает современным представлениям об архитектуре. Нам было важно не просто использовать технологию, а раскрыть её потенциал в новом контексте, сохранив достоинства, но придав ей индивидуальность и характер.

Мы отошли от классической формы фахверка в пользу силуэта барн-хауса, что сделало архитектуру более лаконичной и монолитной. Логика конструктивных решений подчёркивает горизонтальную динамику дома: в основной деревянной части акцентирована массивная сдвоенная балка, тогда как в зоне навесов для автомобиля использован металлический пояс, создающий ощущение лёгкости и технологичности. Этот баланс материалов усиливает визуальное разделение функций, придавая архитектуре цельность и выразительность.
Frame Wood
@ AGE architects
Frame Wood
@ AGE architects
Frame Wood
@ AGE architects
Frame Wood
@ AGE architects
Frame Wood. Общий вид
@ AGE architects
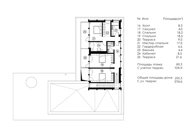
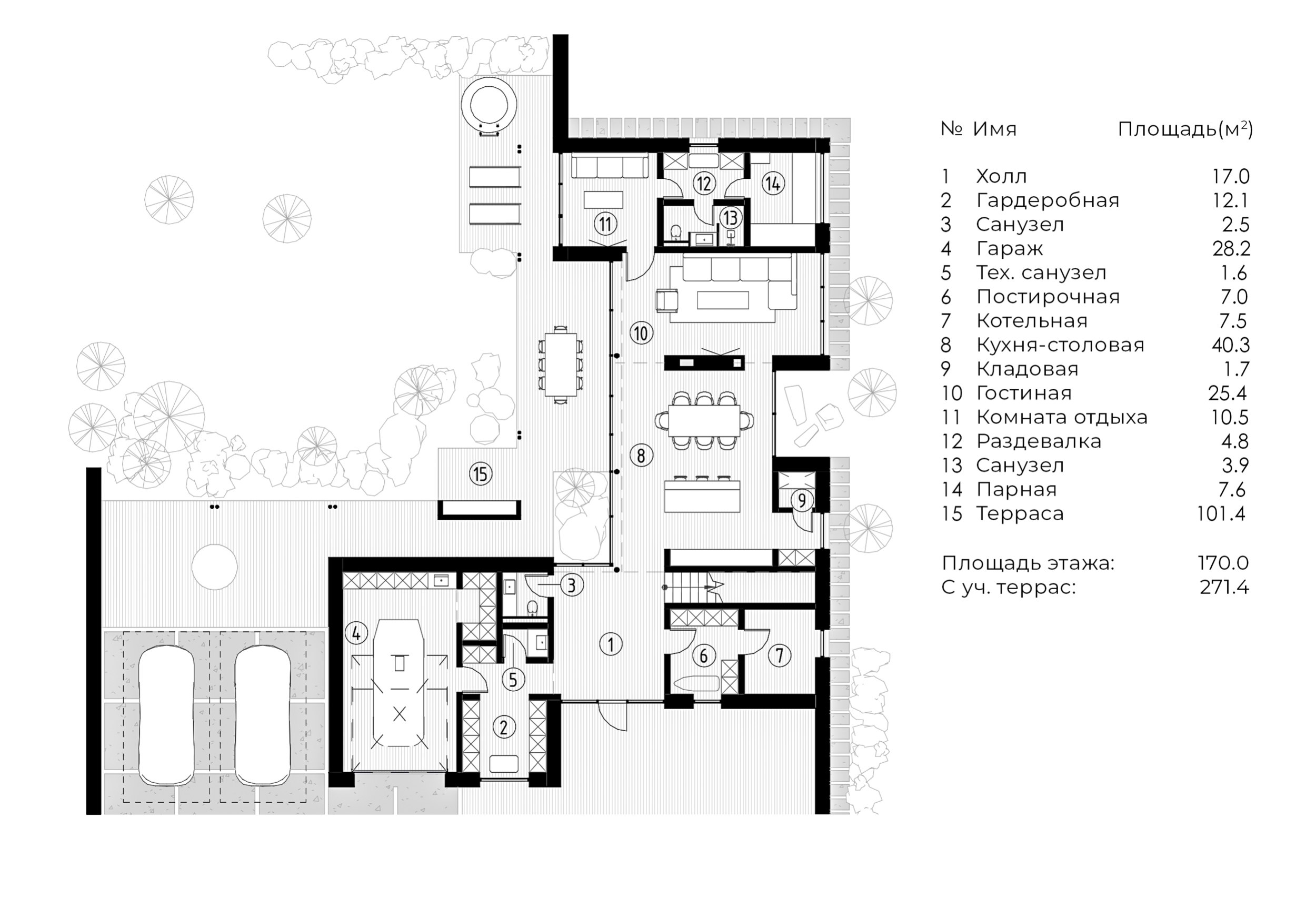
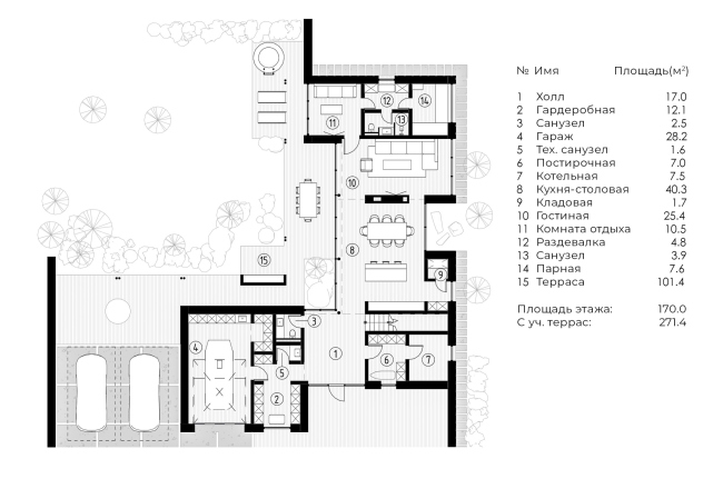
Frame Wood. План 1-го этажа
@ AGE architects
Frame Wood.План 2-го этажа
@ AGE architects
Frame Wood. Фасады
@ AGE architects
Frame Wood. Разрезы
@ AGE architects

Архитекторы – партнеры Архи.ру:

  • Игорь Членов
  • Георгий Трофимов
  • Александр Асадов
  • Андрей Гнездилов
  • Александр Самарин
  • Елена Пучкова
  • Наталия Шилова
  • Валерий Каняшин
  • Даниил Лоренц
  • Дмитрий Остроумов
  • Энди Сноу
  • Юлий Борисов
  • Юлия Тряскина
  • Григорий Мустафин
  • Сергей Труханов
  • Евгений Новосадюк
  • Раис Баишев
  • Сергей Чобан
  • Ерлан Бекмухамедов
  • Андрей Асадов
  • Борис Воскобойников
  • Андрей Романов
  • Татьяна Зульхарнеева
  • Павел Андреев
  • Олег Шапиро
  • Александр Скокан
  • Антон Надточий
  • Николай Переслегин
  • Юлия Солдатенкова
  • Ростислав Цайзер
  • Сергей Никешкин
  • Владислав Андреев
  • Степан Липгарт
  • Зураб Басария
  • Дмитрий Сухов
  • Сергей Кузнецов
  • Алексей Орлов
  • Никита Явейн
  • Василий Крапивин
  • Станислав Белых
  • Михаил Канунников
  • Андрей Михайлов
  • Вера Бутко
  • Полина Воеводина
  • Александра Кузьмина
  • Илья Машков
  • Евгений Зеленов
  • Виталий Лутц
  • Юлиана Княжевская
  • Сергей Скуратов
  • Мария Ахременкова
  • Михаил Давыдов
  • Иван Кожин
  • Евгений Подгорнов
  • Олег Мединский
  • Дмитрий Ликин
  • Григориос Гавалидис
  • Владимир Плоткин
  • Александр Котенков
  • Николай Кикава
  • Антон Яр-Скрябин
  • Сергей Переслегин
  • Всеволод Медведев
  • Анастасия Абашева
  • Дмитрий Буш
  • Игорь Шварцман
  • Екатерина Кузнецова
  • Наталья Сидорова
  • Марина Егорова
  • Константин Ходнев
  • Тимур Абдуллаев
  • Екатерина Абдуллаева
  • Маргарита Авдышева
  • Левон Айрапетов
  • Александр Аношкин
  • Алексей Афоничкин
  • Владислав Бек-Булатов
  • Антон Белов
  • Татьяна Бузулукова
  • Петр Васильев
  • Данило Вукосавлевич
  • Алина Георгиевская
  • Павел Гордеев
  • Илья Гринберг
  • Никита Демидов
  • Никита Дергунов
  • Наталья Жилкина
  • Алексей Зародов
  • Екатерина Зырина
  • Алексей Ильин
  • Дарья Ильина
  • Олег Карлсон
  • Алексей Кибкало
  • Денис Кувшинников
  • Анна Куликова
  • Алексей Курков
  • Данил Куров
  • Мария Кутай
  • Евгений Кутай
  • Иван Кычкин
  • Антон Ладыгин
  • Дмитрий Лапин
  • Борис Левянт
  • Илья Левянт
  • Катерина Левянт
  • Валерий Лукомский
  • Антон Лукомский
  • Екатерина Ляпунова
  • Иса Магомедов
  • Сергей Марков
  • Елена Мерцалова
  • Николай Миловидов
  • Станислав Михаловский
  • Сергей Мичурин
  • Олеся Могилевская
  • Филипп Никандров
  • Мария Николаева
  • Дмитрий Овчаров
  • Сергей Пергаев
  • Виктор Перов
  • Алексей Полищук
  • Роман Пономарёв
  • Валерия Преображенская
  • Виктория Раубо
  • Василий Рыбаков
  • Николай Рыбаков
  • Мария Салех
  • Александр Стариков
  • Илья Уткин
  • Елисей Чакан
  • Бориша Чорович
  • Олег Шурыгин
  • Дмитрий Шурыгин

Проект из каталога (случайный выбор)

Фитнес-клуб La Salute на Белореченской улице
Александр Асадов, Андрей Асадов, 2016 – 2018
Фитнес-клуб La Salute на Белореченской улице

Постройки и проекты (новые записи):

  • Гостиница в Чите
  • ЖК Квартал 64
  • Деловое пространство «ПЛЭЙН»
  • Конкурсный проект ФИЦ / ТПО «Резерв»
  • Porta
  • Детский сад на 200 мест в Жилино-1
  • Архитектурная концепция кластера Ломоносов-2
  • Клубный дом в 1-м Казачьем переулке
  • Частный дом в Ленинградской области

Новости российской архитектуры:

Сплав мировых культур
13.05.2026

Сплав мировых культур

Александр Салов, Татьяна Осецкая
КиноГолограмма
12.05.2026

КиноГолограмма

Николай Переслегин, Сергей Переслегин, Георгий Трофимов
Форма как метод: ТПО «Резерв»
12.05.2026

Форма как метод: ТПО «Резерв»

Владимир Плоткин
Консервация как комментарий
12.05.2026

Консервация как комментарий

Наринэ Тютчева