RSS
ТРК Жуковка 123
Фотография © Дмитрий Чебаненко / предоставлена VFORM

ТРК Жуковка 123

информация:

  • статус
    реализовано
  • даты
    01.2021 / 20212026
  • координаты
    55.738110, 37.243370
  • функция
    Торгово-коммерческий / Торгово-развлекательный комплекс
  • площадь участка
    1,471 га
  • площадь застройки
    2 050 м2
  • высота
    12,474
  • этажность
    3
  • строительный объем
    33.915 м3
Владислав Бек-Булатов
Дарья Ильина
VFORM

авторский коллектив

Владислав Бек-Булатов,  Дарья Ильина, Изотов Илья

ТРК Жуковка 123
Фотография © Дмитрий Чебаненко / предоставлена VFORM
ТРК Жуковка 123
Фотография © Дмитрий Чебаненко / предоставлена VFORM

описание:

Образность и контекстуальность – коммерческая недвижимость выходит на новый уровень эстетики. Торгово–деловой центр «Жуковка 123» от студии VFORM подтверждает: коммерческая архитектура может быть не только функциональным объектом, но и пространством, наполненным эстетикой, метафоричностью и выразительным визуальным языком.

Торгово–деловой центр «Жуковка 123» расположен за городом, в одном из самых живописных районов Подмосковья. Общая площадь – 8 115 м2, из которых 4 530 м2 отведены под аренду. Три наземных и два подземных этажа образуют функционально выверенное пространство, объединяющее деловую активность и повседневный ритм загородной жизни.

Архитектура центра органично вписана в природную среду и «растянута» по рельефу, как будто создана самой местностью. Окружающий ландшафт становится метафорой, определяющей формообразующую логику здания. Ритм и эстетика окружающей природы отражены в выборе материалов и пластике фасадов, такие же мотивы продолжаются внутри здания.

Фасад здания выстроен на тонком сочетании натурального камня, стекла и металла. Ламели из стали Corten – основной элемент, формирующий весь облик здания, – вторят палитре лесного массива и, наподобие сосновых стволов, установлены с легким отклонением от вертикали. Со временем под воздействием погодных факторов поверхность металла покрывается оксидной патиной терракотового оттенка, еще больше мимикрируя под природное окружение. Богатство визуального образа дополняет естественная тектоника натурального сланца на уровне первого этажа. Единый стиль поддерживают и другие элементы оформления – система навигации, мебель, малые формы, подчеркивая долговечность и благородство материалов.

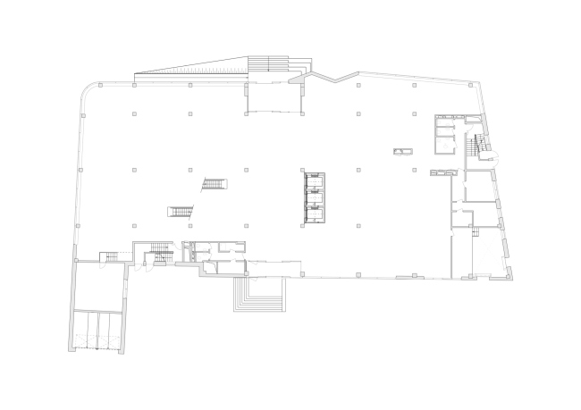
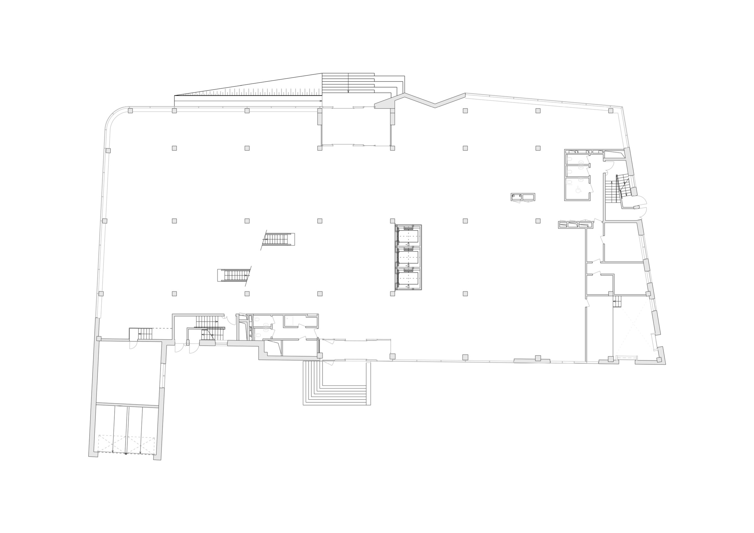
Синергия с природным окружением продолжается и в интерьере центра. Внутреннее пространство атриума пронизано колоннами из кортен–стали, также вторящими стволам сосновых деревьев. Это создает целостный образ, неразрывную взаимосвязь внутреннего и внешнего пространства, так характерную для проектов студии VFORM. Внутренняя планировка создана с учетом смены сценариев естественного освещения в течение дня, грамотно зонирована и адаптивна к различным типологиям арендных площадей и задачам использования. В верхней части предусмотрено размещение коммерческих офисных пространств, в нижней – зоны под рестораны и ритейл.

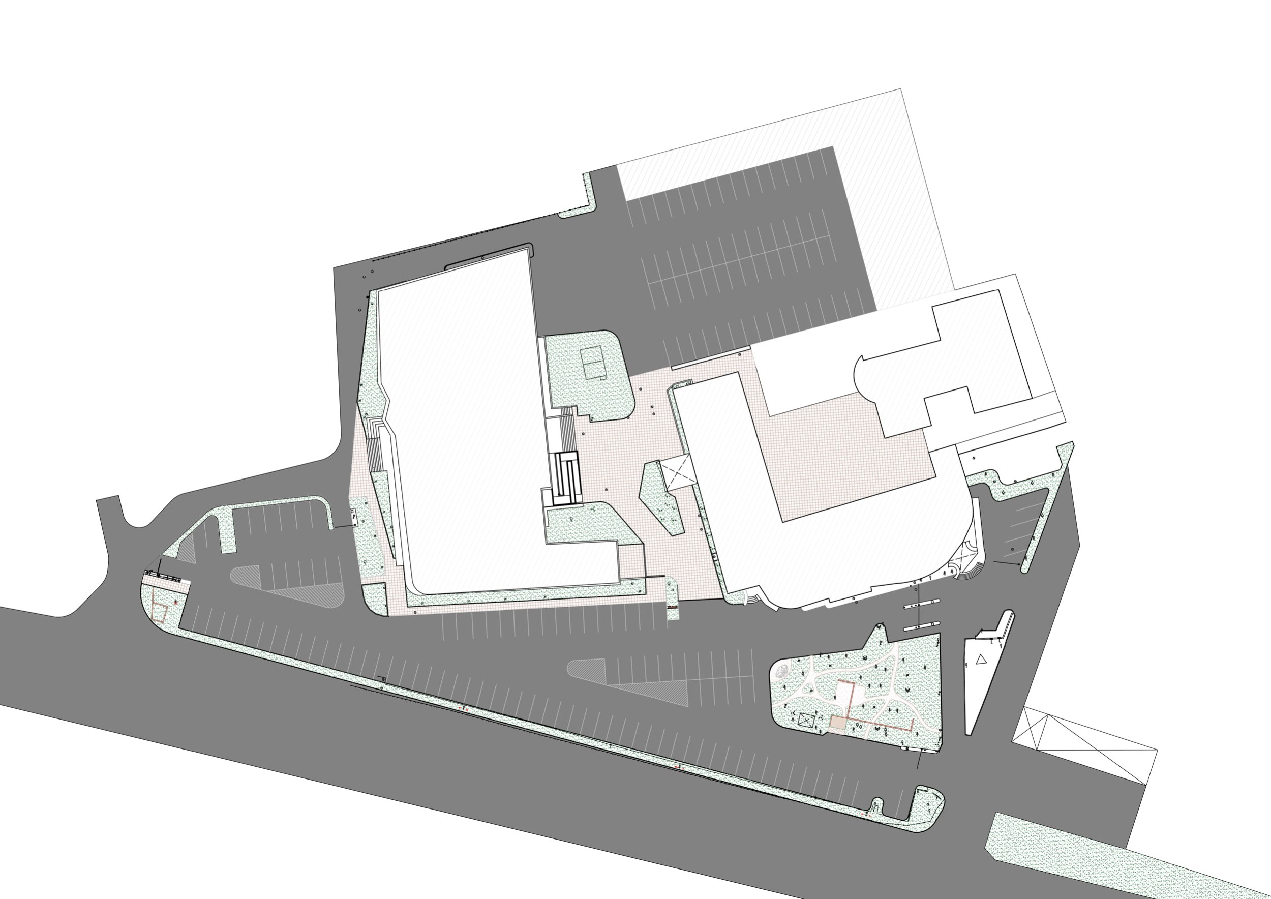
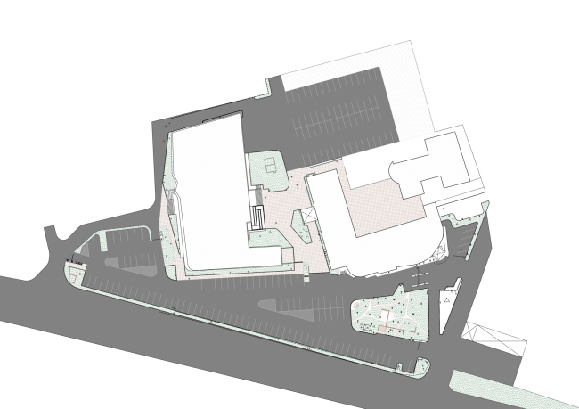
Ландшафтный дизайн вокруг здания – важная и неотъемлемая часть проекта, продолжение архитектурного повествования. Сливаясь с природным окружением и интегрируя в оформлении территории те же материалы, что и на фасаде здания, ландшафтный дизайн усиливает эстетическое звучание внешнего образа здания и всей территории вокруг, а также взаимопроникновение архитектуры и лесного массива.

ТРК Жуковка 123
Фотография © Дмитрий Чебаненко / предоставлена VFORM
ТРК Жуковка 123
Фотография © Дмитрий Чебаненко / предоставлена VFORM
ТРК Жуковка 123
Фотография © Дмитрий Чебаненко / предоставлена VFORM
ТРК Жуковка 123
Фотография © Дмитрий Чебаненко / предоставлена VFORM
ТРК Жуковка 123
Фотография © Дмитрий Чебаненко / предоставлена VFORM
ТРК Жуковка 123
Фотография © Дмитрий Чебаненко / предоставлена VFORM
ТРК Жуковка 123
Фотография © Дмитрий Чебаненко / предоставлена VFORM
ТРК Жуковка 123
Фотография © Дмитрий Чебаненко / предоставлена VFORM
ТРК Жуковка 123
Фотография © Дмитрий Чебаненко / предоставлена VFORM
ТРК Жуковка 123
Фотография © Дмитрий Чебаненко / предоставлена VFORM
ТРК Жуковка 123
Фотография © Дмитрий Чебаненко / предоставлена VFORM
ТРК Жуковка 123
Фотография © Дмитрий Чебаненко / предоставлена VFORM
ТРК Жуковка 123
Фотография © Дмитрий Чебаненко / предоставлена VFORM
ТРК Жуковка 123
Фотография © Дмитрий Чебаненко / предоставлена VFORM
ТРК Жуковка 123. Генеральный план
© VFORM
ТРК Жуковка 123. План 1 этажа
© VFORM
ТРК Жуковка 123
© VFORM
ТРК Жуковка 123
© VFORM
ТРК Жуковка 123
© VFORM
ТРК Жуковка 123
© VFORM

Архитекторы – партнеры Архи.ру:

  • Василий Крапивин
  • Марина Егорова
  • Николай Переслегин
  • Даниил Лоренц
  • Евгений Новосадюк
  • Юлия Солдатенкова
  • Сергей Никешкин
  • Александр Скокан
  • Павел Андреев
  • Олег Шапиро
  • Михаил Канунников
  • Михаил Давыдов
  • Ерлан Бекмухамедов
  • Энди Сноу
  • Олег Мединский
  • Наталья Сидорова
  • Юлий Борисов
  • Вера Бутко
  • Никита Явейн
  • Дмитрий Остроумов
  • Дмитрий Сухов
  • Илья Машков
  • Антон Надточий
  • Виталий Лутц
  • Сергей Труханов
  • Дмитрий Буш
  • Георгий Трофимов
  • Андрей Михайлов
  • Андрей Асадов
  • Александра Кузьмина
  • Наталия Шилова
  • Андрей Гнездилов
  • Николай Кикава
  • Владислав Андреев
  • Елена Пучкова
  • Юлиана Княжевская
  • Игорь Шварцман
  • Сергей Кузнецов
  • Сергей Скуратов
  • Владимир Плоткин
  • Валерий Каняшин
  • Константин Ходнев
  • Евгений Подгорнов
  • Александр Котенков
  • Всеволод Медведев
  • Андрей Романов
  • Степан Липгарт
  • Дмитрий Ликин
  • Сергей Переслегин
  • Ростислав Цайзер
  • Евгений Зеленов
  • Анастасия Абашева
  • Антон Яр-Скрябин
  • Мария Ахременкова
  • Раис Баишев
  • Сергей Чобан
  • Юлия Тряскина
  • Григорий Мустафин
  • Станислав Белых
  • Александр Самарин
  • Татьяна Зульхарнеева
  • Александр Асадов
  • Борис Воскобойников
  • Григориос Гавалидис
  • Полина Воеводина
  • Алексей Орлов
  • Зураб Басария
  • Екатерина Кузнецова
  • Иван Кожин
  • Игорь Членов
  • Тимур Абдуллаев
  • Екатерина Абдуллаева
  • Маргарита Авдышева
  • Левон Айрапетов
  • Александр Аношкин
  • Алексей Афоничкин
  • Владислав Бек-Булатов
  • Антон Белов
  • Татьяна Бузулукова
  • Петр Васильев
  • Данило Вукосавлевич
  • Алина Георгиевская
  • Павел Гордеев
  • Илья Гринберг
  • Никита Демидов
  • Никита Дергунов
  • Наталья Жилкина
  • Алексей Зародов
  • Екатерина Зырина
  • Алексей Ильин
  • Дарья Ильина
  • Олег Карлсон
  • Алексей Кибкало
  • Денис Кувшинников
  • Анна Куликова
  • Алексей Курков
  • Данил Куров
  • Мария Кутай
  • Евгений Кутай
  • Иван Кычкин
  • Антон Ладыгин
  • Дмитрий Лапин
  • Борис Левянт
  • Илья Левянт
  • Катерина Левянт
  • Валерий Лукомский
  • Антон Лукомский
  • Екатерина Ляпунова
  • Иса Магомедов
  • Сергей Марков
  • Елена Мерцалова
  • Николай Миловидов
  • Станислав Михаловский
  • Сергей Мичурин
  • Олеся Могилевская
  • Филипп Никандров
  • Мария Николаева
  • Дмитрий Овчаров
  • Сергей Пергаев
  • Виктор Перов
  • Алексей Полищук
  • Роман Пономарёв
  • Валерия Преображенская
  • Виктория Раубо
  • Василий Рыбаков
  • Николай Рыбаков
  • Мария Салех
  • Александр Стариков
  • Илья Уткин
  • Елисей Чакан
  • Бориша Чорович
  • Олег Шурыгин
  • Дмитрий Шурыгин

Проект из каталога (случайный выбор)

Концепция интерьеров Рижского вокзала
Алексей Горяинов, Михаил Крымов, 2010 – 2010
Концепция интерьеров Рижского вокзала

Постройки и проекты (новые записи):

  • Гостиница в Чите
  • ЖК Квартал 64
  • Деловое пространство «ПЛЭЙН»
  • Конкурсный проект ФИЦ / ТПО «Резерв»
  • Porta
  • Детский сад на 200 мест в Жилино-1
  • Архитектурная концепция кластера Ломоносов-2
  • Клубный дом в 1-м Казачьем переулке
  • Частный дом в Ленинградской области

Новости российской архитектуры:

КиноГолограмма
12.05.2026

КиноГолограмма

Николай Переслегин, Сергей Переслегин, Георгий Трофимов
Форма как метод: ТПО «Резерв»
12.05.2026

Форма как метод: ТПО «Резерв»

Владимир Плоткин
Консервация как комментарий
12.05.2026

Консервация как комментарий

Наринэ Тютчева