RSS
Дом в Лисичкином Лесу
Фотография © Максим Лоскутов / предоставлена Ле Ателье

Дом в Лисичкином Лесу

информация:

  • статус
    реализовано
  • даты
    20212022 / 20222024
  • region= area= address=Коттеджный посёлок Лисичкин Лес country_t=Россия city_t=Солнечногорск
    место
    Солнечногорск Коттеджный посёлок Лисичкин Лес
  • координаты
    56.040134, 37.137505
  • функция
    Жилой / дом
  • теги
    send.project
  • общая площадь
    222 м2
  • этажность
    2
Le Atelier / Россия

авторский коллектив

Сергей Колчин, Глеб Куликовский, Анастасия Волкова

награды:

    Best House Awards 2025
Дом в Лисичкином Лесу
Фотография © Максим Лоскутов / предоставлена Ле Ателье

Архи.ру об этом объекте:

28.01.2026

Лепка формы, ракурса и смысла

Для участка в подмосковном коттеджном поселке «Лисичкин лес» бюро Ле Ателье спроектировало дом, который вырос из рельефа, желания сохранить деревья, необходимых планировочных решений, а также поиска экспрессивной формы. Два штукатурных объема брусничного и графитового цвета сплелись в пластическую композицию, которая выглядит эффектно, но уютно, сложно, но не высоколобо.

Описание предоставлено архитекторами На старте проекта перед бюро Le Atelier стояли вполне формальные задачи: уместить дом на участке с активным рельефом, сохранив деревья, и расположить внутри нужное количество помещений. Первым этапом стала прора...   читать дальше
Дом в Лисичкином Лесу
Фотография © Максим Лоскутов / предоставлена Ле Ателье

история проекта:

Дом создавался для семьи с двумя детьми, поэтому важно было продумать общие зоны, где можно собраться и проводить время вместе, и приватные пространства для каждого. Одним из ключевых пожеланий стало сохранение видов: именно они во многом определили планировку и ориентацию помещений.

описание:

На старте работы над проектом, перед бюро Le Atelier стояли вполне формальные задачи: расположить внутри нужное количество помещений и уместить дом на участке с активным рельефом, сохранив растущие здесь деревья.
 
Первым этапом стала проработка планировочных решений. Дом создавался для семьи с детьми, поэтому в нём должны были появиться изолированные приватные спальни, гостиная, хозяйственные помещения, пространства бани и гаража. Первый этаж отвели для общественной функции: здесь разместили общее пространство, объединяющее гостиную с камином, кухню и столовую. Второй этаж разделён на два крыла – приватную зону для взрослых и детские спальни. Каждое помещение проектировалось таким образом, чтобы из его окон открывался приятный вид.
 
Затем планировочные решения подняли в объём и задали экспрессивную форму, обусловленную расположением деревьев на участке. Так появилось два штукатурных объёма, сложно переплетённых друг с другом. Разная форма и размеры окон сделали пластичный фасад разнообразным и живым.
 
Яркий экстерьер дома контрастен его спокойному внутреннему облику. Точно выверенная планировка внутренних пространств оформлена преимущественно в светлых бежевых оттенках. Основу цветовой палитры задают камень, дерево и текстиль. При этом интерьер не воспринимается монотонным за счёт точечных ярких акцентов и больших окон, наполняющих помещения светом.
 
Скульптурный дом является исследованием темы, актуальной в эпоху кризиса смыслов. Проект ставит сомнение принцип о том, что в архитектуре всё должно быть подчинено определенному смыслу, а красота, композиция и гармония формы не могут возникать сами по себе и непременно требуют какого-то дополнительного оправдания.
 
Подход оправдал себя: активная форма с сочетанием пластики, геометрии и колористики, не содержит в себе нарративных противоречий. При всей её сложности она кажется объяснимой и, в то же время, не требует объяснений.
Дом в Лисичкином Лесу
Фотография © Максим Лоскутов / предоставлена Ле Ателье
Дом в Лисичкином Лесу
Фотография © Максим Лоскутов / предоставлена Ле Ателье
Дом в Лисичкином Лесу
Фотография © Максим Лоскутов / предоставлена Ле Ателье
Дом в Лисичкином Лесу
Фотография © Максим Лоскутов / предоставлена Ле Ателье
Дом в Лисичкином Лесу
Фотография © Максим Лоскутов / предоставлена Ле Ателье
Дом в Лисичкином Лесу
Фотография © Максим Лоскутов / предоставлена Ле Ателье
Дом в Лисичкином Лесу
Фотография © Максим Лоскутов / предоставлена Ле Ателье
Дом в Лисичкином Лесу
Фотография © Максим Лоскутов / предоставлена Ле Ателье
Дом в Лисичкином Лесу
Фотография © Максим Лоскутов / предоставлена Ле Ателье
Дом в Лисичкином Лесу
Фотография © Максим Лоскутов / предоставлена Ле Ателье
Дом в Лисичкином Лесу. Гостиная с панорамным окном и камином
Фотография © Максим Лоскутов / предоставлена Ле Ателье
Дом в Лисичкином Лесу.
Фотография © Максим Лоскутов / предоставлена Ле Ателье
Дом в Лисичкином Лесу. Спальня родителей на втором этаже
Фотография © Максим Лоскутов / предоставлена Ле Ателье
Дом в Лисичкином Лесу.
Фотография © Максим Лоскутов / предоставлена Ле Ателье
Дом в Лисичкином Лесу. Детская спальня
Фотография © Максим Лоскутов / предоставлена Ле Ателье
Дом в Лисичкином Лесу. Детская спальня
Фотография © Максим Лоскутов / предоставлена Ле Ателье
Дом в Лисичкином Лесу. Ванная комната в спальне родителей
Фотография © Максим Лоскутов / предоставлена Ле Ателье
Дом в Лисичкином Лесу.
Фотография © Максим Лоскутов / предоставлена Ле Ателье
Дом в Лисичкином Лесу. Общая ванная комната для детей на втором этаже
Фотография © Максим Лоскутов / предоставлена Ле Ателье
Дом в Лисичкином Лесу
Фотография © Максим Лоскутов / предоставлена Ле Ателье
Дом в Лисичкином Лесу. Аксонометрия дома
© Ле Ателье
Дом в Лисичкином Лесу. Аксонометрия дома
© Ле Ателье
Дом в Лисичкином Лесу. Аксонометрия дома
© Ле Ателье
Дом в Лисичкином Лесу. Аксонометрия дома
© Ле Ателье
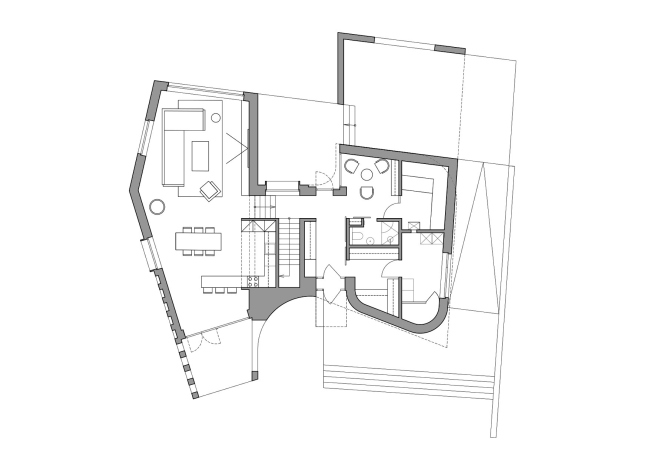
Дом в Лисичкином Лесу. 1 этаж
© Ле Ателье
Дом в Лисичкином Лесу. 2 этаж
© Ле Ателье

Архитекторы – партнеры Архи.ру:

  • Антон Надточий
  • Василий Крапивин
  • Владислав Андреев
  • Сергей Никешкин
  • Сергей Кузнецов
  • Игорь Шварцман
  • Ростислав Цайзер
  • Евгений Подгорнов
  • Михаил Давыдов
  • Татьяна Зульхарнеева
  • Михаил Канунников
  • Полина Воеводина
  • Антон Яр-Скрябин
  • Илья Машков
  • Дмитрий Сухов
  • Андрей Романов
  • Екатерина Кузнецова
  • Юлия Солдатенкова
  • Юлия Тряскина
  • Валерий Каняшин
  • Александра Кузьмина
  • Григорий Мустафин
  • Даниил Лоренц
  • Григориос Гавалидис
  • Сергей Переслегин
  • Дмитрий Буш
  • Александр Асадов
  • Дмитрий Остроумов
  • Роман Леонидов
  • Сергей Скуратов
  • Андрей Асадов
  • Раис Баишев
  • Ерлан Бекмухамедов
  • Александр Самарин
  • Наталья Сидорова
  • Марина Егорова
  • Александр Котенков
  • Анастасия Абашева
  • Никита Явейн
  • Александр Скокан
  • Андрей Гнездилов
  • Наталия Шилова
  • Вера Бутко
  • Сергей Труханов
  • Олег Мединский
  • Павел Андреев
  • Евгений Зеленов
  • Всеволод Медведев
  • Алексей Гинзбург
  • Сергей Чобан
  • Олег Шапиро
  • Андрей Чуйков
  • Николай Переслегин
  • Станислав Белых
  • Юлиана Княжевская
  • Владимир Плоткин
  • Георгий Трофимов
  • Алексей Орлов
  • Елена Пучкова
  • Юлий Борисов
  • Игорь Членов
  • Иван Кожин
  • Дмитрий Ликин
  • Николай Кикава
  • Энди Сноу
  • Анна Иванова
  • Андрей Михайлов
  • Евгений Новосадюк
  • Виталий Лутц
  • Зураб Басария
  • Степан Липгарт
  • Константин Ходнев
  • Тимур Абдуллаев
  • Екатерина Абдуллаева
  • Маргарита Авдышева
  • Левон Айрапетов
  • Александр Аношкин
  • Алексей Афоничкин
  • Владислав Бек-Булатов
  • Антон Белов
  • Татьяна Бузулукова
  • Петр Васильев
  • Алина Георгиевская
  • Павел Гордеев
  • Илья Гринберг
  • Никита Демидов
  • Никита Дергунов
  • Наталья Жилкина
  • Алексей Зародов
  • Екатерина Зырина
  • Алексей Ильин
  • Дарья Ильина
  • Олег Карлсон
  • Алексей Кибкало
  • Денис Кувшинников
  • Анна Куликова
  • Алексей Курков
  • Алексей Курков
  • Данил Куров
  • Евгений Кутай
  • Мария Кутай
  • Антон Ладыгин
  • Антон Ладыгин
  • Дмитрий Лапин
  • Катерина Левянт
  • Илья Левянт
  • Борис Левянт
  • Антон Лукомский
  • Валерий Лукомский
  • Екатерина Ляпунова
  • Сергей Марков
  • Николай Миловидов
  • Станислав Михаловский
  • Олеся Могилевская
  • Мария Николаева
  • Виктор Перов
  • Алексей Полищук
  • Роман Пономарёв
  • Валерия Преображенская
  • Виктория Раубо
  • Николай Рыбаков
  • Василий Рыбаков
  • Мария Салех
  • Александр Стариков
  • Илья Уткин
  • Олег Шурыгин
  • Дмитрий Шурыгин

Проект из каталога (случайный выбор)

Жилой дом Эстет
Елизавета Швердина, Ксения Серебрякова, 2017 – 2022
Жилой дом Эстет

Постройки и проекты (новые записи):

  • ЖК Лесное ожерелье
  • Клубный дом «Хамовники 12»
  • Усадьба «Павлово»
  • Проект общественно-делового комплекса у станции метро «Ботанический Сад» / Genpro
  • Проект общественно-делового комплекса у станции метро «Ботанический Сад» / UNK
  • Бизнес-центр «Триград»
  • БЦ в Раменках
  • Бизнес-центр (на месте ТЦ «Старт»)
  • DELO HOUSE 3.2 с флигелем

Новости российской архитектуры:

Форма радости
07.03.2026

Форма радости

Марат Мазур
Вторая жизнь гидроузла
07.03.2026

Вторая жизнь гидроузла

Эльвира Гришечкина
Орел или решка
05.03.2026

Орел или решка

Ксения Караваева, Мурат Гукетлов
Стены помогают
04.03.2026

Стены помогают

Андрей Михайлов, Сергей Никешкин
Лодка, раскрой паруса
03.03.2026

Лодка, раскрой паруса

Юлий Борисов