RSS
Гостиничный комплекс Grand Cascade. Зона ресепшн
Фотография @ Влад Феоктистов/ предоставлена MAD Architects

Гостиничный комплекс Grand Cascade

/ Grand Cascade

информация:

  • статус
    реализовано
  • даты
    20212023 / 20232025
  • region= area= address=Курортный проспект, 31 country_t=Россия city_t=Сочи
    место
    Сочи Курортный проспект, 31
  • функция
    Туризм/здравоохранение / Гостиничный комплекс
  • общая площадь
    4 100 м2
Мария Николаева
MAD architects

авторский коллектив

CEO – Мария Николаева; руководитель проекта – Анастасия Пинигина; главный архитектор проекта – Юлия Катаева; архитекторы – Полина Москвина, Анфиса Поливанова, Анастасия Морина; визуализатор – Мария Ордян

партнеры, заказчики, смежники

Инженерная компания: АрхиТек
Мебель – бренды и поставщики: Лофтмарк, Первая фабрика фасадов
Кухня / Мини-кухня – мебель и оборудование: Лофтмарк
Освещение – бренды и поставщики: Центросвет, Тема Лайтинг
Перегородки: гкл Knauf, Блоки из керамзитобетона
Напольные покрытия: Натуральный мрамор, керамогранит Italon, Vitra, spc ламинат Alpine floor, мозаика Ezarri, инженерная доска и др.
Потолочные системы: HPL панели Первая фабрика фасадов, гкл Knauf, композитные панели и др.
Изделия на заказ: Лофтмарк, Первая фабрика фасадов, Тема Лайтинг
Двери: Первая фабрика фасадов

Заказчик: Группа компаний «Десо»
Гостиничный комплекс Grand Cascade. Стойка ресепшн
Фотография @ Влад Феоктистов/ предоставлена MAD Architects
Гостиничный комплекс Grand Cascade. Зона ресепшн
Фотография @ Влад Феоктистов/ предоставлена MAD Architects

описание:

Дизайн-концепция гостиничного комплекса Grand Cascade

Гостиничный комплекс Grand Cascade расположен в центре Сочи на Курортном проспекте, в окружении исторической застройки и живописных субтропических ландшафтов. Будучи размещенным в парковой зоне, комплекс буквально растворяется в природной среде и не доминирует над ландшафтом, сохраняя визуальную мягкость и деликатность присутствия. Основная концепция дизайн-проекта интерьеров базируется на синергии наследия и современности: архитектурные решения гармонично сочетают классические элементы с передовыми технологиями, обеспечивая комфорт и эстетику высокого уровня.

С самого начала перед MAD Architects стояла задача создать современный отель высокого класса в стилистике современной классики. Ключевой идеей проекта стало современное осмысление традиционной курортной тематики и архитектуры Сочи середины XX века. Это выражается в использовании натуральных материалов, таких как травертин и дерево, в плавных формах, арках, каннелюрах в отделке стен и колонн, а также в латунных светильниках и декоративных вставках. Архитектура сознательно избегает излишней насыщенности и показной роскоши, характерных для некоторых южных курортов, делая ставку на сдержанную премиальность, ритмическую организованность пространства и общую нарядную, праздничную атмосферу.

Историческое наследие этого места, где некогда располагалось имение купеческого семейства Мамонтовых, вдохновило архитекторов MAD Architects на создание пространства, элегантно вписанного в городскую ткань и отражающего традиции изысканного достатка и интеллектуальной роскоши. Использование природных материалов, таких как натуральный камень и дерево, а также фасадные решения, перекликающиеся с архитектурными традициями средиземноморского региона, создают атмосферу аристократической сдержанности. Архитектура отличается визуальной мягкостью и поддерживает эстетику «тихой роскоши», где выразительность строится на тонкой работе с пропорциями, сдержанностью и благородством материалов. Лаконичные линии дополнены декоративными элементами, вдохновленными классическими орнаментами, что подчеркивает уникальную стилистику здания и его внутреннего пространства.

В отеле предусмотрено 142 дизайнерских номера площадью от 26 до 100 квадратных метров, каждая деталь которых разработана с учетом эстетики и функциональности. Архитектурное решение интерьеров направлено на создание гармоничного пространства, наполненного естественным светом. Использование панорамных окон с видом на море и балконов позволяют расширить границы восприятия пространства, а нейтральные природные оттенки в отделке создают ощущение легкости и уюта.

В отделке использованы натуральные материалы: текстурированный камень, ценные породы дерева, декоративная штукатурка с тактильно приятной поверхностью. Фурнитура и мебель выполнены в минималистичном стиле с акцентом на мягкие линии и функциональность.

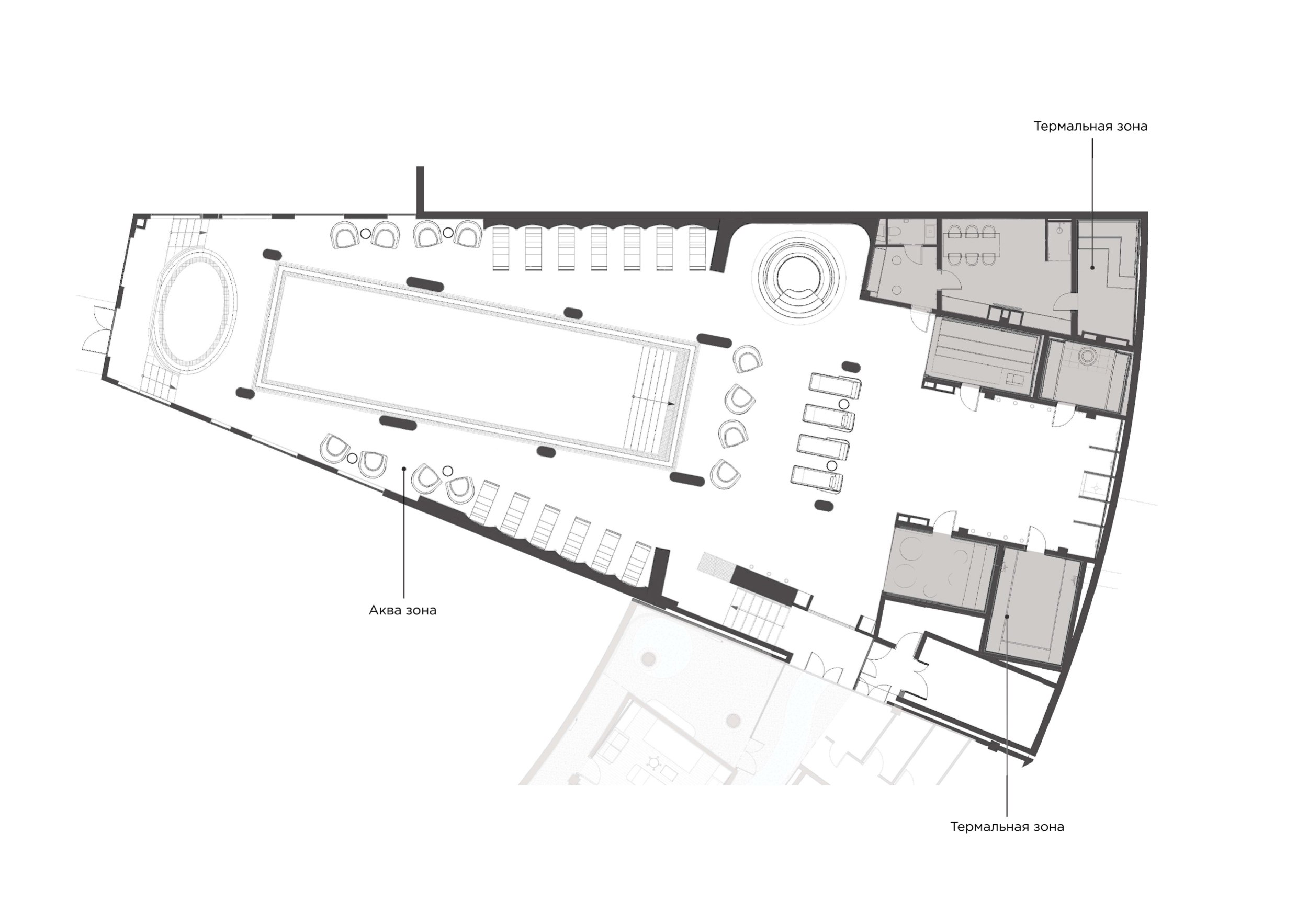
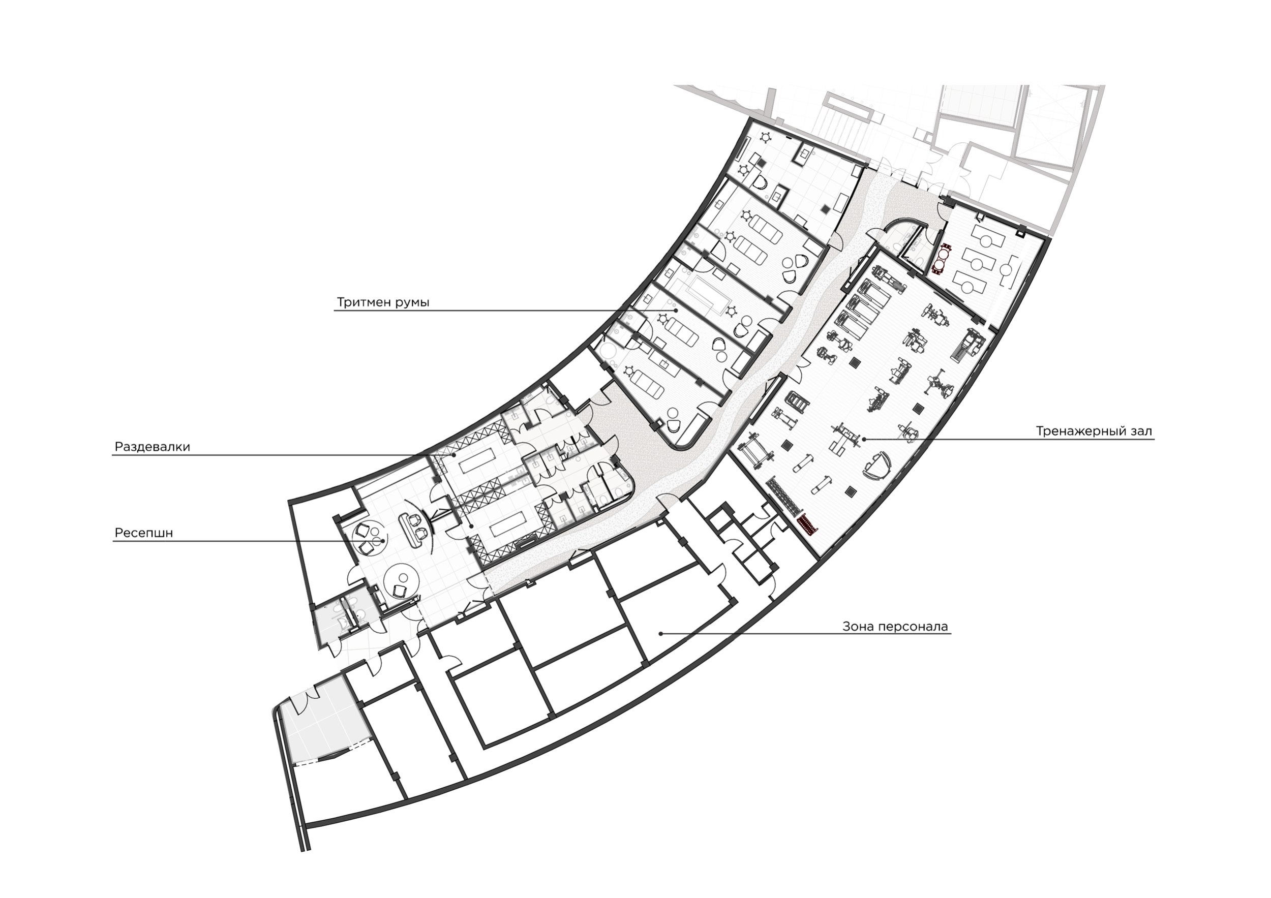
Дополняет комплекс один из крупнейших в городе спа-центров класса deluxe – MIR Spa & Beauty. Архитектурная концепция спа-пространства основана на принципах биофильного дизайна: натуральные материалы, приглушенное освещение, мягкие формы и текучие линии создают ощущение полного расслабления.

В спа-зоне представлены гидротермальная зона, различные бассейны, хаммам, сауны и тренажерный зал Technogym. Водные элементы, выполненные с использованием натурального камня, дополняют атмосферу природного курорта.

Реализация проекта потребовала четкой организации работы и авторского надзора, особенно с учетом расстояния между объектом в Сочи и офисом бюро в Москве. Для архитекторов главным было увидеть проект реализованным максимально точно, чтобы он соответствовал замыслу, начал свою жизнь и стал востребованным местом как для гостей, так и для жителей Сочи. Каждый проект бюро MAD Architects уникален и дает новый опыт, а многолетняя работа над Grand Cascade стала важной вехой в профессиональном пути команды.

Гостиничный комплекс Grand Cascade – это не просто место отдыха, а живая архитектурная история, сочетающая культурное наследие, природу и современный комфорт. Это пространство, в котором гармонично соединены эстетика и функциональность, создавая уникальный опыт проживания для гостей. Высокие стандарты дизайна, внимание к деталям превращают Grand Cascade в новый символ архитектурной изысканности в самом сердце Сочи.

 
Гостиничный комплекс Grand Cascade. Зона ресепшн
Фотография @ Влад Феоктистов/ предоставлена MAD Architects
Гостиничный комплекс Grand Cascade. Холл
Фотография @ Влад Феоктистов/ предоставлена MAD Architects
Гостиничный комплекс Grand Cascade. Фрагмент отделки холла
Фотография @ Влад Феоктистов/ предоставлена MAD Architects
Гостиничный комплекс Grand Cascade. Интерьер номера
Фотография @ Влад Феоктистов/ предоставлена MAD Architects
Гостиничный комплекс Grand Cascade. Интерьер номера
Фотография @ Влад Феоктистов/ предоставлена MAD Architects
Гостиничный комплекс Grand Cascade. Интерьер номера
Фотография @ Влад Феоктистов/ предоставлена MAD Architects
Гостиничный комплекс Grand Cascade. Интерьер номера
Фотография @ Влад Феоктистов/ предоставлена MAD Architects
Гостиничный комплекс Grand Cascade. Интерьер номера
Фотография @ Влад Феоктистов/ предоставлена MAD Architects
Гостиничный комплекс Grand Cascade. СПА-центр
Фотография @ Влад Феоктистов/ предоставлена MAD Architects
Гостиничный комплекс Grand Cascade. СПА-центр
Фотография @ Влад Феоктистов/ предоставлена MAD Architects
Гостиничный комплекс Grand Cascade. СПА-центр
Фотография @ Влад Феоктистов/ предоставлена MAD Architects
Гостиничный комплекс Grand Cascade. СПА-центр
Фотография @ Влад Феоктистов/ предоставлена MAD Architects
Гостиничный комплекс Grand Cascade. СПА-центр
Фотография @ Влад Феоктистов/ предоставлена MAD Architects
Гостиничный комплекс Grand Cascade. СПА-центр. Сауна
Фотография @ Влад Феоктистов/ предоставлена MAD Architects
Гостиничный комплекс Grand Cascade. СПА-центр
Фотография @ Влад Феоктистов/ предоставлена MAD Architects
Гостиничный комплекс Grand Cascade. СПА-центр
Фотография @ Влад Феоктистов/ предоставлена MAD Architects
Гостиничный комплекс Grand Cascade. СПА-центр
Фотография @ Влад Феоктистов/ предоставлена MAD Architects
Гостиничный комплекс Grand Cascade. СПА-центр
Фотография @ Влад Феоктистов/ предоставлена MAD Architects
Гостиничный комплекс Grand Cascade. СПА-центр
Фотография @ Влад Феоктистов/ предоставлена MAD Architects
Гостиничный комплекс Grand Cascade. СПА-центр
Фотография @ Влад Феоктистов/ предоставлена MAD Architects
Гостиничный комплекс Grand Cascade. План 1 этажа
@ MAD Architects
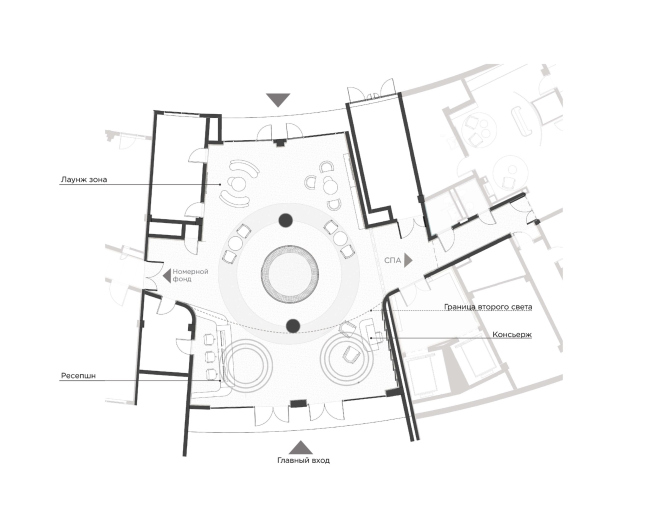
Гостиничный комплекс Grand Cascade. План 1 этажа. Лобби
@ MAD Architects
Гостиничный комплекс Grand Cascade. План 1 этажа. СПА
@ MAD Architects
Гостиничный комплекс Grand Cascade. План 1 этажа. СПА и аквазона
@ MAD Architects

Архитекторы – партнеры Архи.ру:

  • Андрей Чуйков
  • Антон Яр-Скрябин
  • Татьяна Зульхарнеева
  • Василий Крапивин
  • Павел Андреев
  • Валерий Каняшин
  • Дмитрий Буш
  • Григорий Мустафин
  • Михаил Давыдов
  • Наталия Шилова
  • Владимир Плоткин
  • Всеволод Медведев
  • Олег Мединский
  • Николай Переслегин
  • Евгений Подгорнов
  • Наталья Сидорова
  • Ростислав Цайзер
  • Даниил Лоренц
  • Дмитрий Ликин
  • Александр Асадов
  • Сергей Кузнецов
  • Евгений Новосадюк
  • Елена Пучкова
  • Иван Кожин
  • Никита Явейн
  • Константин Ходнев
  • Полина Воеводина
  • Игорь Членов
  • Сергей Переслегин
  • Анастасия Абашева
  • Дмитрий Остроумов
  • Юлия Солдатенкова
  • Андрей Гнездилов
  • Алексей Гинзбург
  • Александр Котенков
  • Олег Шапиро
  • Михаил Канунников
  • Юлиана Княжевская
  • Роман Леонидов
  • Илья Машков
  • Дмитрий Сухов
  • Антон Надточий
  • Николай Кикава
  • Энди Сноу
  • Юлий Борисов
  • Георгий Трофимов
  • Степан Липгарт
  • Сергей Труханов
  • Александр Самарин
  • Виталий Лутц
  • Екатерина Кузнецова
  • Раис Баишев
  • Андрей Романов
  • Ерлан Бекмухамедов
  • Александра Кузьмина
  • Сергей Чобан
  • Вера Бутко
  • Андрей Михайлов
  • Владислав Андреев
  • Евгений Зеленов
  • Сергей Никешкин
  • Андрей Асадов
  • Юлия Тряскина
  • Марина Егорова
  • Зураб Басария
  • Станислав Белых
  • Анна Иванова
  • Сергей Скуратов
  • Александр Скокан
  • Игорь Шварцман
  • Алексей Орлов
  • Григориос Гавалидис
  • Тимур Абдуллаев
  • Екатерина Абдуллаева
  • Маргарита Авдышева
  • Левон Айрапетов
  • Александр Аношкин
  • Алексей Афоничкин
  • Владислав Бек-Булатов
  • Антон Белов
  • Татьяна Бузулукова
  • Петр Васильев
  • Алина Георгиевская
  • Павел Гордеев
  • Илья Гринберг
  • Никита Демидов
  • Никита Дергунов
  • Наталья Жилкина
  • Алексей Зародов
  • Екатерина Зырина
  • Алексей Ильин
  • Дарья Ильина
  • Олег Карлсон
  • Алексей Кибкало
  • Денис Кувшинников
  • Анна Куликова
  • Алексей Курков
  • Алексей Курков
  • Данил Куров
  • Евгений Кутай
  • Мария Кутай
  • Антон Ладыгин
  • Антон Ладыгин
  • Дмитрий Лапин
  • Борис Левянт
  • Катерина Левянт
  • Илья Левянт
  • Антон Лукомский
  • Валерий Лукомский
  • Екатерина Ляпунова
  • Сергей Марков
  • Николай Миловидов
  • Станислав Михаловский
  • Олеся Могилевская
  • Мария Николаева
  • Виктор Перов
  • Алексей Полищук
  • Роман Пономарёв
  • Валерия Преображенская
  • Виктория Раубо
  • Николай Рыбаков
  • Василий Рыбаков
  • Мария Салех
  • Александр Стариков
  • Илья Уткин
  • Дмитрий Шурыгин
  • Олег Шурыгин

Проект из каталога (случайный выбор)

Жилой дом с развитым блоком обслуживания в Новосибирске
Игорь Шварцман, Сергей Киселев, 2007 – 2009
Жилой дом с развитым блоком обслуживания в Новосибирске

Постройки и проекты (новые записи):

  • ЖК Лесное ожерелье
  • Клубный дом «Хамовники 12»
  • Усадьба «Павлово»
  • Проект общественно-делового комплекса у станции метро «Ботанический Сад» / Genpro
  • Проект общественно-делового комплекса у станции метро «Ботанический Сад» / UNK
  • Бизнес-центр «Триград»
  • БЦ в Раменках
  • Бизнес-центр (на месте ТЦ «Старт»)
  • DELO HOUSE 3.2 с флигелем

Новости российской архитектуры:

Анфилада архетипов
10.03.2026

Анфилада архетипов

Михаил Микадзе
Форма радости
07.03.2026

Форма радости

Марат Мазур
Вторая жизнь гидроузла
07.03.2026

Вторая жизнь гидроузла

Эльвира Гришечкина
Орел или решка
05.03.2026

Орел или решка

Ксения Караваева, Мурат Гукетлов