RSS
Гостиница по улице Спартаковская. Вид по улице Марселя Салимжанова с западной стороны
© Липгарт и Герт

Гостиница по улице Спартаковская

информация:

  • статус
    проект
  • даты
    01.2024
  • region= area= address=ул. Спартаковская country_t=Россия city_t=Казань
    место
    Казань ул. Спартаковская
  • координаты
    55.777444, 49.131006
  • функция
    Туризм/здравоохранение / Гостиница
  • площадь участка
    0,3821 га
  • площадь застройки
    3 100 м2
  • общая площадь
    10 250 м2
  • Площадь номеров – 8 450 м2
    Многофункциональное лобби – 660 м2
    Конференц зал – 370 м2
    Ресторан – 390 м2
    Видовой бар – 100 м2
    Ритейл – 200 м2
    Площадь озеленения – 980 м2
  • кол-во машиномест
    87
Степан Липгарт

авторский коллектив

Руководитель авторского коллектива – С. Липгарт; архитекторы – Е. Зотова, Е. Подошвин; визуализации – О. Андрианова

партнеры, заказчики, смежники

Заказчик: Специализированный застройщик «Кронос»
Гостиница по улице Спартаковская. Вид с угла улиц Марселя Салимжанова и Туфана Миннуллина
© Липгарт и Герт
Гостиница по улице Спартаковская. Вид западной части внутреннего двора
© Липгарт и Герт
Гостиница по улице Спартаковская. Вид восточной части внутреннего двора
© Липгарт и Герт
Гостиница по улице Спартаковская. Вид на восточный портад арки во двор
© Липгарт и Герт
Гостиница по улице Спартаковская. Вид с птичьего полета с южной стороны
© Липгарт и Герт
Гостиница по улице Спартаковская. Ситуационный план
© Липгарт и Герт
Гостиница по улице Спартаковская. Генплан
© Липгарт и Герт
Гостиница по улице Спартаковская. План 1 этажа
© Липгарт и Герт
Гостиница по улице Спартаковская. План 2 этажа
© Липгарт и Герт
Гостиница по улице Спартаковская. План типового этажа
© Липгарт и Герт
Гостиница по улице Спартаковская. План 9 этажа
© Липгарт и Герт
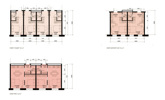
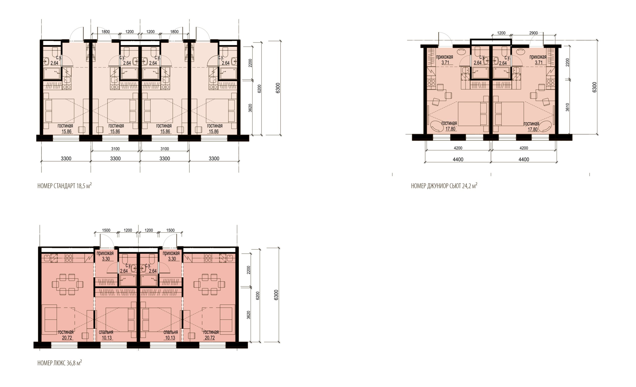
Гостиница по улице Спартаковская. Планировочные схемы типовых номеров
© Липгарт и Герт
Гостиница по улице Спартаковская. Разрезы
© Липгарт и Герт

Архитекторы – партнеры Архи.ру:

  • Юлий Борисов
  • Даниил Лоренц
  • Вера Бутко
  • Иван Кожин
  • Юлия Тряскина
  • Михаил Давыдов
  • Андрей Чуйков
  • Владислав Андреев
  • Анна Иванова
  • Евгений Зеленов
  • Станислав Белых
  • Евгений Новосадюк
  • Елена Пучкова
  • Юлиана Княжевская
  • Андрей Асадов
  • Георгий Трофимов
  • Павел Андреев
  • Валерий Каняшин
  • Энди Сноу
  • Роман Леонидов
  • Наталия Шилова
  • Григорий Мустафин
  • Илья Машков
  • Екатерина Кузнецова
  • Никита Явейн
  • Сергей Кузнецов
  • Николай Переслегин
  • Сергей Переслегин
  • Антон Яр-Скрябин
  • Сергей Скуратов
  • Андрей Романов
  • Николай Кикава
  • Алексей Орлов
  • Дмитрий Ликин
  • Василий Крапивин
  • Ерлан Бекмухамедов
  • Полина Воеводина
  • Дмитрий Буш
  • Раис Баишев
  • Сергей Труханов
  • Владимир Плоткин
  • Игорь Членов
  • Александра Кузьмина
  • Михаил Канунников
  • Андрей Михайлов
  • Всеволод Медведев
  • Александр Асадов
  • Виталий Лутц
  • Сергей Никешкин
  • Алексей Гинзбург
  • Олег Мединский
  • Дмитрий Сухов
  • Дмитрий Остроумов
  • Антон Надточий
  • Евгений Подгорнов
  • Александр Скокан
  • Степан Липгарт
  • Наталья Сидорова
  • Сергей Чобан
  • Константин Ходнев
  • Олег Шапиро
  • Татьяна Зульхарнеева
  • Зураб Басария
  • Игорь Шварцман
  • Марина Егорова
  • Александр Котенков
  • Александр Самарин
  • Анастасия Абашева
  • Юлия Солдатенкова
  • Ростислав Цайзер
  • Григориос Гавалидис
  • Андрей Гнездилов
  • Тимур Абдуллаев
  • Екатерина Абдуллаева
  • Маргарита Авдышева
  • Левон Айрапетов
  • Александр Аношкин
  • Алексей Афоничкин
  • Владислав Бек-Булатов
  • Антон Белов
  • Татьяна Бузулукова
  • Петр Васильев
  • Алина Георгиевская
  • Павел Гордеев
  • Илья Гринберг
  • Никита Демидов
  • Никита Дергунов
  • Наталья Жилкина
  • Алексей Зародов
  • Екатерина Зырина
  • Алексей Ильин
  • Дарья Ильина
  • Олег Карлсон
  • Алексей Кибкало
  • Денис Кувшинников
  • Анна Куликова
  • Алексей Курков
  • Алексей Курков
  • Данил Куров
  • Евгений Кутай
  • Мария Кутай
  • Антон Ладыгин
  • Антон Ладыгин
  • Дмитрий Лапин
  • Борис Левянт
  • Катерина Левянт
  • Илья Левянт
  • Антон Лукомский
  • Валерий Лукомский
  • Екатерина Ляпунова
  • Сергей Марков
  • Николай Миловидов
  • Станислав Михаловский
  • Олеся Могилевская
  • Мария Николаева
  • Виктор Перов
  • Алексей Полищук
  • Роман Пономарёв
  • Валерия Преображенская
  • Виктория Раубо
  • Василий Рыбаков
  • Мария Салех
  • Александр Стариков
  • Илья Уткин
  • Дмитрий Шурыгин
  • Олег Шурыгин

Проект из каталога (случайный выбор)

Фасады ЖК в Мякининской пойме
Артем Укропов, Дарья Листопад, Кирилл Губернаторов, 2018 – 2018
Фасады ЖК в Мякининской пойме

Постройки и проекты (новые записи):

  • Проект общественно-делового комплекса у станции метро «Ботанический Сад» / Genpro
  • Проект общественно-делового комплекса у станции метро «Ботанический Сад» / UNK
  • БЦ в Раменках
  • Бизнес-центр (на месте ТЦ «Старт»)
  • DELO HOUSE 3.2 с флигелем
  • Ледовый дворец Navka Arena
  • Благоустройство территории ЖК Holms Residence
  • Игровое пространство у театра им. Г.К. Камала
  • Вторая ось

Новости российской архитектуры:

Потенциальные примечательности. Обзор проектов 16–22 февраля 2026
22.02.2026

Потенциальные примечательности. Обзор проектов 16–22 февраля 2026

Евгений Зеленов, Юлий Борисов, Амир Идиатулин, Николай Гордюшин, Александр Аношкин, Мария Салех, Никита Дергунов
Визуальная чистота
20.02.2026

Визуальная чистота

Александр Жидков, Михаил Гуманков
Кирпичная вуаль
20.02.2026

Кирпичная вуаль

Айк Навасардян, Рубен Аракелян