RSS
Городская гостиная на территории Рязанской ВДНХ
Фотография © Полина Полудкина / предоставлена APRELarchitects

Городская гостиная на территории Рязанской ВДНХ

информация:

Михаил Разумовский
Алексей Фатькин
Наталья Бавыкина
Галина Волжанская
APRELarchitects / Россия

авторский коллектив

Михаил Разумовский, Алексей Фатькин, Анастасия Маркина, Наталья Бавыкина, Галина Волжанская, Вероника Бабенко, Анастасия Разгильдеева

Городская гостиная на территории Рязанской ВДНХ
Фотография © Полина Полудкина / предоставлена APRELarchitects

Архи.ру об этом объекте:

25.11.2025

Стекло и книги

В Рязани на территории обновленной ВДНХ в павильоне «Животноводство» планируется открыть городскую гостиную – новое общественное пространство и филиал библиотеки им. Горького. Проект реконструкции и современной пристройки разработало архитектурное бюро «Апрель», которое курирует комплексное преобразование этой знаковой территории с 2021 года.

Описание предоставлено архитекторами На территории перезапущенного Рязанского ВДНХ заканчивается реконструкция павильона Животноводство по проекту архитектурного бюро Апрель . В павильоне должна открыться городская гостиная филиал областной Биб...   читать дальше
Городская гостиная на территории Рязанской ВДНХ
Фотография © Полина Полудкина / предоставлена APRELarchitects

описание:

На территории перезапущенного Рязанского ВДНХ заканчивается реконструкция павильона “Животноводство” по проекту архитектурного бюро “Апрель”. В павильоне должна открыться городская гостиная – филиал областной Библиотеки им. Горького.
 
Бюро “ Апрель” занимается территорией с 2021 года, с самого начала преобразований – по заказу правительства Рязанской области архитекторы подготовили мастер-план редевелопмента, реализовали проект благоустройства, дизайн-код и
проекты реконструкции нескольких павильонов.
 
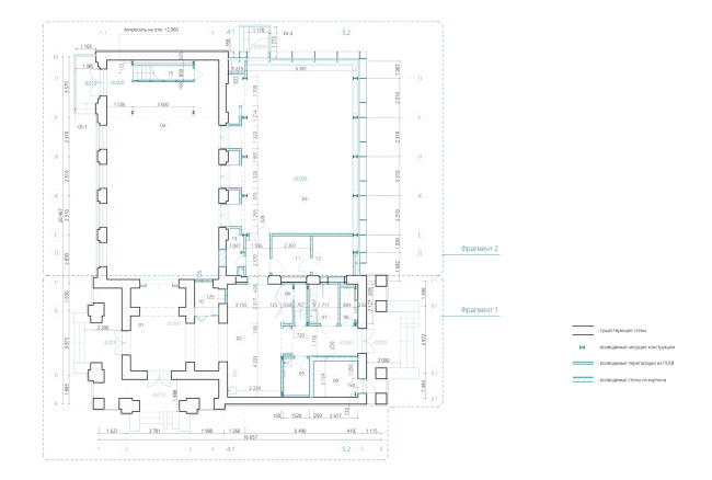
Павильон “Животноводство” – финальный этап этой работы. В нем удалось бережно отреставрировать исторический объем павильона, а на месте позднесоветской пристройки сделать новую, показав как современная архитектура может взаимодействовать и дополнять ансамбль 1950-х годов.
 
Павильон “Животноводство” 1954 года постройки является ценным градоформирующим объектом в рамках предмета охраны Достопримечательного места. Объект имел позднюю пристройку со стороны второстепенной аллеи (юго-западная сторона). Она появилась хоз. способом и являлась диссонирующем элементом среды, по регламентам и мастер-плану развития Рязанской ВДНХ (Торгового городка) такие пристройки предписано санировать или заменять на новые с сохранением объемно-пространственных параметров. 
 
По проекту была проведена реставрация  исторического объема  с санированием поздних наслоений: пристройка сзади, пристройка котельной на главном портике; раскрытием заложенных оконных и дверных проемов. Работы по восстановлению деревянного шатра, который находился в аварийном состоянии. А также создание двух антресолей в исторических залах и новой пристройки.
 
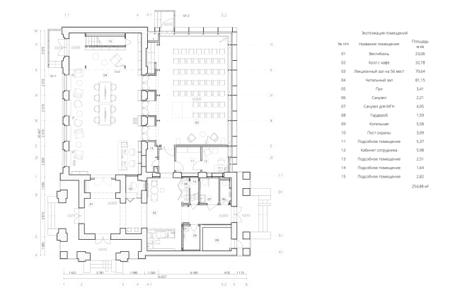
Функциональная программа была нацелена на создание гибкого универсального компактного пространства городской гостиной – третьего места. Она состоит из двух залов: читальный зал – пространство коворкинга, и универсальный зал – пространство для мероприятий, лекций, кинопоказов и мастер-классов; пространства кафе и сопутствующих функций: туалеты, гардероб, подсобные помещения; комнаты сотрудников и технических помещений: газовой котельной, пуи, венткамера.
 
Важной уникальной составляющей проекта стала новая пристройка со стеклянным фасадом и металлическими ламелями, в которой расположился универсальный зал. Ритм нового фасада, вертикальные и горизонтальные членения были взяты с фасада исторического павильона и наследуют их основные пропорции и оси в новом прочтении.
 
Объем пристройки используется под универсальный трансформируемый зал с максимальной вместимостью 54 человека в режиме лекции / кинопросмотра. Зал предусматривает возможность проведения выставок, а также воркшопов и групповых занятий. Запроектированы места для временного хранения мебели и стульев. Зал имеет три проема ( на месте исторических оконных проемов) в читальный зал, что дает возможность смежного использования при необходимости.
 
Новый объем тонко и внимательно взаимодействует с историческим. При этом новая архитектура проницаемая и эффектно раскрывается вовне, работая на окружающую территорию. Витражи позволяют сделать видимым то, что происходит в зале, приглашая и завлекая всех внутрь пространства. 
 
Читальный зал

В главном зале павильона с окнами, которые выходят на главную аллею, располагается читальный зал и пространство коворкинга. Имея большую высоту, проектом предусмотрена антресоль в торце зала, что дает дополнительные места и обогащает пространство. Здесь сохранены и бережно отреставрированы исторические люстры, восстановлен потолочный карниз.
 
В зале формируются разные зоны, а по его длинной стороне выстраивается единый стеллаж с книгами. Стол на 6 рабочих мест, места для работы за ноутбуками, кресла для чтения/работы за ноутбуками у окон.
Городская гостиная на территории Рязанской ВДНХ
Фотография © Полина Полудкина / предоставлена APRELarchitects
Городская гостиная на территории Рязанской ВДНХ
Фотография © Полина Полудкина / предоставлена APRELarchitects
Городская гостиная на территории Рязанской ВДНХ
Фотография © Полина Полудкина / предоставлена APRELarchitects
Городская гостиная на территории Рязанской ВДНХ
Фотография © Полина Полудкина / предоставлена APRELarchitects
Городская гостиная на территории Рязанской ВДНХ
Фотография © Полина Полудкина / предоставлена APRELarchitects
Городская гостиная на территории Рязанской ВДНХ
Фотография © Полина Полудкина / предоставлена APRELarchitects
Городская гостиная на территории Рязанской ВДНХ
Фотография © Полина Полудкина / предоставлена APRELarchitects
Городская гостиная на территории Рязанской ВДНХ
Фотография © Полина Полудкина / предоставлена APRELarchitects
Городская гостиная на территории Рязанской ВДНХ
Фотография © Полина Полудкина / предоставлена APRELarchitects
Городская гостиная на территории Рязанской ВДНХ
Фотография © Полина Полудкина / предоставлена APRELarchitects
Городская гостиная на территории Рязанской ВДНХ
Фотография © Полина Полудкина / предоставлена APRELarchitects
Городская гостиная на территории Рязанской ВДНХ
Фотография © Полина Полудкина / предоставлена APRELarchitects
Городская гостиная на территории Рязанской ВДНХ
Фотография © Полина Полудкина / предоставлена APRELarchitects
Городская гостиная на территории Рязанской ВДНХ
Фотография © Полина Полудкина / предоставлена APRELarchitects
Городская гостиная на территории Рязанской ВДНХ. До реконструкции, 2022 г
Фотография предоставлена APRELarchitects
Городская гостиная на территории Рязанской ВДНХ. До реконструкции, 2022 г
Фотография предоставлена APRELarchitects
Городская гостиная на территории Рязанской ВДНХ. До реконструкции, 2022 г
Фотография предоставлена APRELarchitects
Городская гостиная на территории Рязанской ВДНХ. До реконструкции, 2022 г
Фотография предоставлена APRELarchitects
Городская гостиная на территории Рязанской ВДНХ. До реконструкции, 2022 г
Фотография предоставлена APRELarchitects
Городская гостиная на территории Рязанской ВДНХ. До реконструкции, 2022 г
Фотография предоставлена APRELarchitects
Городская гостиная на территории Рязанской ВДНХ. До реконструкции, 2022 г
Фотография предоставлена APRELarchitects
Историческая фотография.
Фотография предоставлена APRELarchitects
Историческая фотография. Центральная аллея областной сельскохозяйственной, промышленной и строительной выставки
Фотография предоставлена APRELarchitects
Историческая фотография. Расстановка молока
Фотография предоставлена APRELarchitects
Городская гостиная на территории Рязанской ВДНХ
© APRELarchitects
Городская гостиная на территории Рязанской ВДНХ
© APRELarchitects
Городская гостиная на территории Рязанской ВДНХ
© APRELarchitects
Городская гостиная на территории Рязанской ВДНХ
© APRELarchitects
Городская гостиная на территории Рязанской ВДНХ
© APRELarchitects
Городская гостиная на территории Рязанской ВДНХ
© APRELarchitects
Городская гостиная на территории Рязанской ВДНХ
© APRELarchitects
Городская гостиная на территории Рязанской ВДНХ
© APRELarchitects
Городская гостиная на территории Рязанской ВДНХ
© APRELarchitects
Городская гостиная на территории Рязанской ВДНХ
© APRELarchitects
Городская гостиная на территории Рязанской ВДНХ. План монтажа
© APRELarchitects
Городская гостиная на территории Рязанской ВДНХ. План расстановки мебели
© APRELarchitects
Городская гостиная на территории Рязанской ВДНХ. Боковой фасад
© APRELarchitects
Городская гостиная на территории Рязанской ВДНХ. Главный фасад
© APRELarchitects
Городская гостиная на территории Рязанской ВДНХ. Южный фасад
© APRELarchitects

Архитекторы – партнеры Архи.ру:

  • Алексей Орлов
  • Андрей Асадов
  • Михаил Давыдов
  • Юлий Борисов
  • Сергей Скуратов
  • Георгий Трофимов
  • Юлиана Княжевская
  • Полина Воеводина
  • Сергей Кузнецов
  • Сергей Переслегин
  • Зураб Басария
  • Николай Кикава
  • Юлия Тряскина
  • Сергей Никешкин
  • Екатерина Кузнецова
  • Раис Баишев
  • Наталия Шилова
  • Сергей Чобан
  • Олег Шапиро
  • Ерлан Бекмухамедов
  • Валерий Каняшин
  • Дмитрий Сухов
  • Александра Кузьмина
  • Анна Иванова
  • Михаил Канунников
  • Дмитрий Остроумов
  • Павел Андреев
  • Андрей Михайлов
  • Виталий Лутц
  • Евгений Зеленов
  • Андрей Романов
  • Антон Надточий
  • Илья Машков
  • Анастасия Абашева
  • Сергей Труханов
  • Елена Пучкова
  • Александр Асадов
  • Энди Сноу
  • Андрей Чуйков
  • Марина Егорова
  • Григориос Гавалидис
  • Никита Явейн
  • Александр Котенков
  • Алексей Гинзбург
  • Григорий Мустафин
  • Татьяна Зульхарнеева
  • Николай Переслегин
  • Владислав Андреев
  • Даниил Лоренц
  • Александр Скокан
  • Игорь Шварцман
  • Дмитрий Ликин
  • Наталья Сидорова
  • Александр Самарин
  • Евгений Подгорнов
  • Вера Бутко
  • Игорь Членов
  • Ростислав Цайзер
  • Всеволод Медведев
  • Дмитрий Буш
  • Антон Яр-Скрябин
  • Станислав Белых
  • Иван Кожин
  • Роман Леонидов
  • Константин Ходнев
  • Степан Липгарт
  • Владимир Плоткин
  • Василий Крапивин
  • Андрей Гнездилов
  • Евгений Новосадюк
  • Юлия Солдатенкова
  • Олег Мединский
  • Тимур Абдуллаев
  • Екатерина Абдуллаева
  • Маргарита Авдышева
  • Левон Айрапетов
  • Александр Аношкин
  • Алексей Афоничкин
  • Владислав Бек-Булатов
  • Антон Белов
  • Татьяна Бузулукова
  • Петр Васильев
  • Алина Георгиевская
  • Павел Гордеев
  • Илья Гринберг
  • Никита Демидов
  • Никита Дергунов
  • Наталья Жилкина
  • Алексей Зародов
  • Екатерина Зырина
  • Алексей Ильин
  • Дарья Ильина
  • Олег Карлсон
  • Алексей Кибкало
  • Денис Кувшинников
  • Анна Куликова
  • Алексей Курков
  • Алексей Курков
  • Данил Куров
  • Мария Кутай
  • Евгений Кутай
  • Антон Ладыгин
  • Антон Ладыгин
  • Дмитрий Лапин
  • Катерина Левянт
  • Илья Левянт
  • Борис Левянт
  • Антон Лукомский
  • Валерий Лукомский
  • Екатерина Ляпунова
  • Сергей Марков
  • Николай Миловидов
  • Станислав Михаловский
  • Олеся Могилевская
  • Мария Николаева
  • Виктор Перов
  • Алексей Полищук
  • Роман Пономарёв
  • Валерия Преображенская
  • Виктория Раубо
  • Николай Рыбаков
  • Василий Рыбаков
  • Мария Салех
  • Александр Стариков
  • Илья Уткин
  • Дмитрий Шурыгин
  • Олег Шурыгин

Проект из каталога (случайный выбор)

Фитнес-центр «Олимпик Стар Кунцево»
Александр Асадов, Александр Ларин, Андрей Асадов, 2001 – 2002
Фитнес-центр «Олимпик Стар Кунцево»

Постройки и проекты (новые записи):

  • Дом по программе реновации на Тюменской улице, 5
  • ЖК Лесное ожерелье
  • Клубный дом «Хамовники 12»
  • Усадьба «Павлово»
  • Проект общественно-делового комплекса у станции метро «Ботанический Сад» / Genpro
  • Проект общественно-делового комплекса у станции метро «Ботанический Сад» / UNK
  • Бизнес-центр «Триград»
  • БЦ в Раменках
  • Бизнес-центр (на месте ТЦ «Старт»)

Новости российской архитектуры:

Против ветра
12.03.2026

Против ветра

Олег Манов
Игра противоположностей
11.03.2026

Игра противоположностей

Наталья Башкова, Владислав Поляков
Анфилада архетипов
10.03.2026

Анфилада архетипов

Михаил Микадзе