RSS
Клиника Атлас Кременчугская
Фотография © Даша Суббота / предоставлена Justbureau

Клиника Атлас Кременчугская

информация:

  • статус
    реализовано
  • даты
    09.2020 — 05.2022 / 12.2020 — 02.2023
  • region= area= address=ул. Кременчугская дом 3 country_t=Россия city_t=Москва
    место
    Москва ул. Кременчугская дом 3
  • координаты
    55.724536, 37.461851
  • функция
    Туризм/здравоохранение / Медицинский центр
  • теги
    send.project
  • общая площадь
    3 100 м2
  • этажность
    4
Россия

авторский коллектив

Руководитель авторского коллектива – Александр Комлев; дизайнеры интерьеров – Марина Грищенко, Ольга Сиротинина

партнеры, заказчики, смежники

Заказчик: Медицинский центр Атлас (Протэк)
Клиника Атлас Кременчугская
Фотография © Даша Суббота / предоставлена Justbureau

Архи.ру об этом объекте:

13.01.2026

Елена Петухова. Слагаемые здоровья

Одним из элементов бренда сети медицинских клиник «Атлас» выступают интерьеры, созданные бюро Justbureau с учетом дизайн-кода и современных подходов к оформлению оздоровительных пространств, которые должны обеспечивать комфорт и позитивную атмосферу.

От редакцииЕсть только два пути, чтобы дизайнерски осмыслить какую-то типологию или объект, имеющий устоявшийся ассоциативный шлейф: либо пойти по пути эксплуатации и переработки стереотипов, либо категорически нарушить их. Для наглядности сложнос...   читать дальше
Клиника Атлас Кременчугская
Фотография © Даша Суббота / предоставлена Justbureau

история проекта:

Мы разработали интерьер для первой клиники «Атлас» на Кутузовском проспекте в Москве. После смены собственника была пересмотрена стратегия развития, что привело к полному обновлению концепции и созданию новых интерьеров. Так появилась новая линия – масштабный сетевой проект с узнаваемым визуальным кодом, выверенной цветовой системой и обновлённой философией клиники.

описание:

Многопрофильный медицинский центр на Кременчугской улице спроектирован как пространство, в котором технологии не подавляют человека, а поддерживают его эмоциональный комфорт. В основе архитектурного решения – принцип снижения тревожности пациента: спокойные цветовые сочетания, мягкие линии, продуманная навигация и чёткие сценарии перемещения внутри здания.

Планировочная структура организована вокруг центрального ресепшн-узла: от него расходятся направления к диагностическому блоку, стационару и отделению превентивной медицины. Такое решение обеспечивает интуитивно понятный маршрут, сводит к минимуму пересечения потоков и создаёт логичный, ориентируемый «скелет» пространства. Внутри формируются ясные перспективы и выразительные визуальные ориентиры, что упрощает ориентацию в большом комплексе.

Интерьер стремится к балансу технологичности и человеческого масштаба. Светлые нейтральные поверхности сочетаются с тёплыми фактурами и мягким, рассеянным светом. В палатах стационара предусмотрены «домашние» зоны отдыха с лаунж-мебелью и вариативными световыми сценариями – так пребывание воспринимается не как госпитализация, а как заботливое сопровождение.

На наш взгляд, в работе над проектом нам удалось по-новому интерпретировать ключевые зоны медицинского центра и сделать их максимально комфортными, избавляя пациента от ощущения формальности и подчеркивая человеческую сторону медицинской среды.

Клиника Атлас Кременчугская
Фотография © Даша Суббота / предоставлена Justbureau
Клиника Атлас Кременчугская
Фотография © Даша Суббота / предоставлена Justbureau
Клиника Атлас Кременчугская
Фотография © Даша Суббота / предоставлена Justbureau
Клиника Атлас Кременчугская
Фотография © Даша Суббота / предоставлена Justbureau
Клиника Атлас Кременчугская
Фотография © Даша Суббота / предоставлена Justbureau
Клиника Атлас Кременчугская
Фотография © Даша Суббота / предоставлена Justbureau
Клиника Атлас Кременчугская
Фотография © Даша Суббота / предоставлена Justbureau
Клиника Атлас Кременчугская
Фотография © Даша Суббота / предоставлена Justbureau
Клиника Атлас Кременчугская
Фотография © Даша Суббота / предоставлена Justbureau
Клиника Атлас Кременчугская
Фотография © Даша Суббота / предоставлена Justbureau
Клиника Атлас Кременчугская
Фотография © Даша Суббота / предоставлена Justbureau
Клиника Атлас Кременчугская
Фотография © Даша Суббота / предоставлена Justbureau
Клиника Атлас Кременчугская
Фотография © Даша Суббота / предоставлена Justbureau
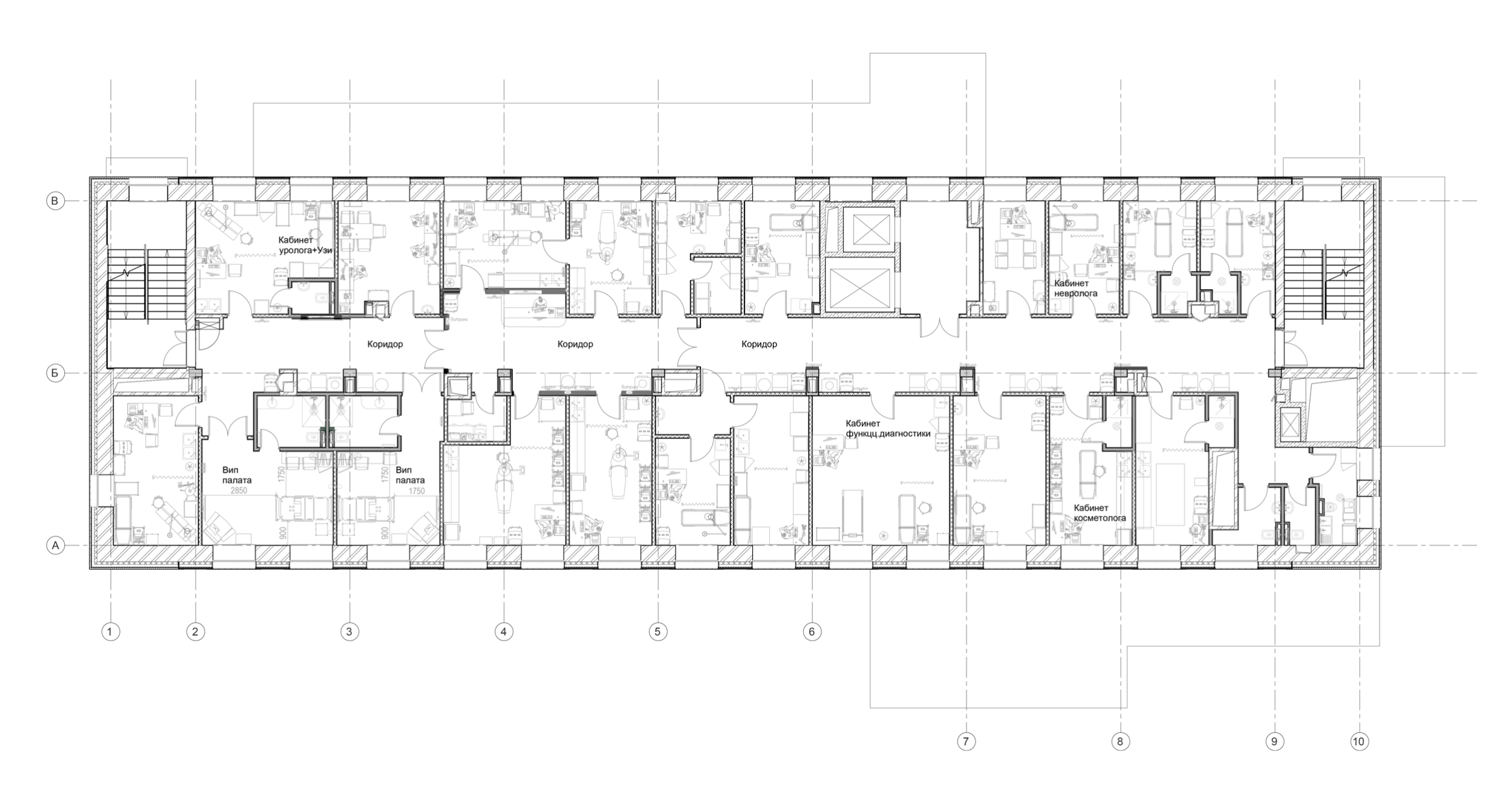
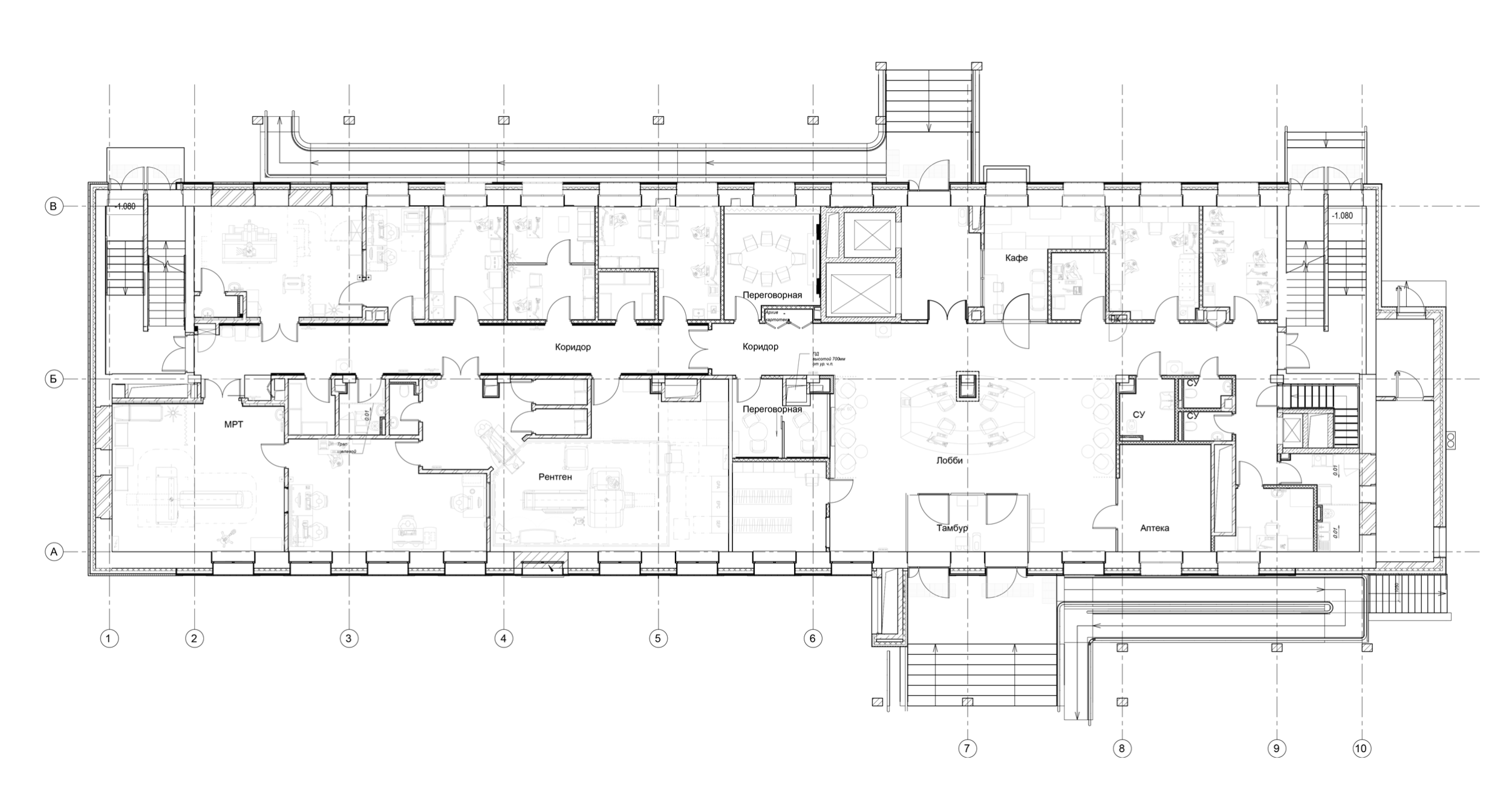
Клиника Атлас Кременчугская. План 1 этажа
© Justbureau
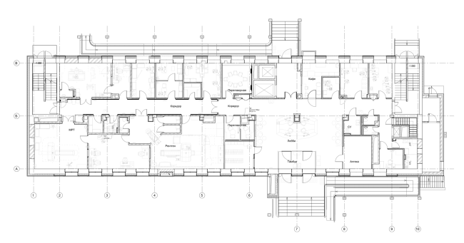
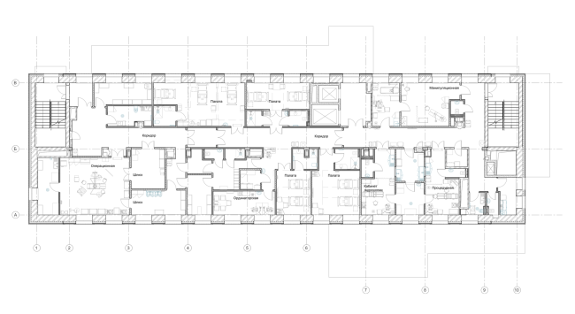
Клиника Атлас Кременчугская. План 2 этажа
© Justbureau
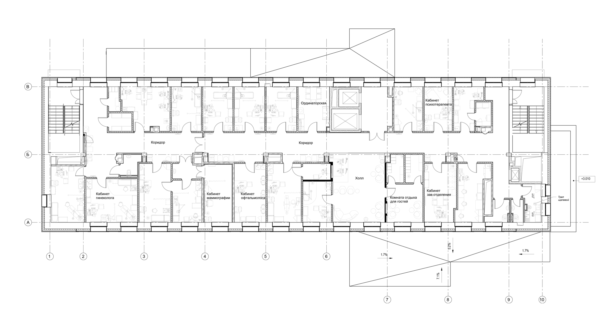
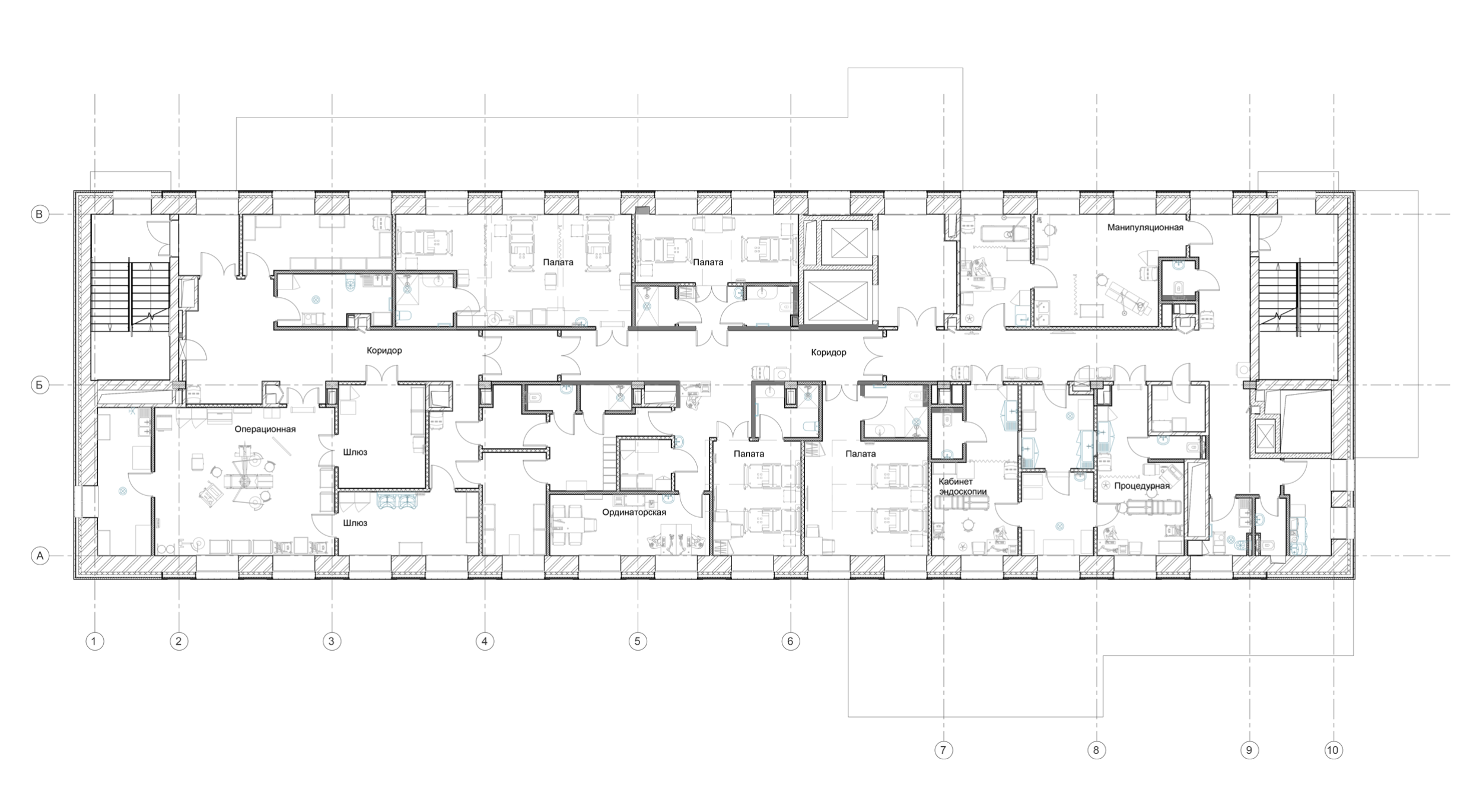
Клиника Атлас Кременчугская. План 3 этажа
© Justbureau
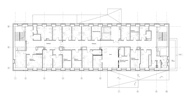
Клиника Атлас Кременчугская. План 4 этажа
© Justbureau

Архитекторы – партнеры Архи.ру:

  • Вера Бутко
  • Елена Пучкова
  • Алексей Орлов
  • Ерлан Бекмухамедов
  • Дмитрий Буш
  • Андрей Михайлов
  • Сергей Кузнецов
  • Евгений Подгорнов
  • Александр Асадов
  • Сергей Чобан
  • Анна Иванова
  • Константин Ходнев
  • Всеволод Медведев
  • Валерий Каняшин
  • Роман Леонидов
  • Наталия Шилова
  • Юлия Тряскина
  • Наталья Сидорова
  • Андрей Асадов
  • Юлий Борисов
  • Евгений Новосадюк
  • Никита Явейн
  • Николай Переслегин
  • Василий Крапивин
  • Андрей Романов
  • Антон Надточий
  • Даниил Лоренц
  • Георгий Трофимов
  • Владислав Андреев
  • Игорь Шварцман
  • Антон Яр-Скрябин
  • Зураб Басария
  • Иван Кожин
  • Михаил Канунников
  • Андрей Чуйков
  • Екатерина Кузнецова
  • Дмитрий Сухов
  • Татьяна Зульхарнеева
  • Александр Котенков
  • Анастасия Абашева
  • Юлиана Княжевская
  • Михаил Давыдов
  • Олег Мединский
  • Станислав Белых
  • Владимир Плоткин
  • Игорь Членов
  • Григориос Гавалидис
  • Александра Кузьмина
  • Дмитрий Остроумов
  • Александр Самарин
  • Раис Баишев
  • Полина Воеводина
  • Сергей Труханов
  • Дмитрий Ликин
  • Энди Сноу
  • Олег Шапиро
  • Григорий Мустафин
  • Сергей Переслегин
  • Николай Кикава
  • Сергей Никешкин
  • Сергей Скуратов
  • Юлия Солдатенкова
  • Ростислав Цайзер
  • Марина Егорова
  • Илья Машков
  • Степан Липгарт
  • Андрей Гнездилов
  • Павел Андреев
  • Александр Скокан
  • Алексей Гинзбург
  • Виталий Лутц
  • Евгений Зеленов
  • Тимур Абдуллаев
  • Екатерина Абдуллаева
  • Маргарита Авдышева
  • Левон Айрапетов
  • Александр Аношкин
  • Алексей Афоничкин
  • Владислав Бек-Булатов
  • Антон Белов
  • Татьяна Бузулукова
  • Петр Васильев
  • Алина Георгиевская
  • Павел Гордеев
  • Илья Гринберг
  • Никита Демидов
  • Никита Дергунов
  • Наталья Жилкина
  • Алексей Зародов
  • Екатерина Зырина
  • Алексей Ильин
  • Дарья Ильина
  • Олег Карлсон
  • Алексей Кибкало
  • Денис Кувшинников
  • Анна Куликова
  • Алексей Курков
  • Алексей Курков
  • Данил Куров
  • Евгений Кутай
  • Мария Кутай
  • Антон Ладыгин
  • Антон Ладыгин
  • Дмитрий Лапин
  • Борис Левянт
  • Катерина Левянт
  • Илья Левянт
  • Антон Лукомский
  • Валерий Лукомский
  • Екатерина Ляпунова
  • Сергей Марков
  • Николай Миловидов
  • Станислав Михаловский
  • Олеся Могилевская
  • Мария Николаева
  • Виктор Перов
  • Алексей Полищук
  • Роман Пономарёв
  • Валерия Преображенская
  • Виктория Раубо
  • Василий Рыбаков
  • Мария Салех
  • Александр Стариков
  • Илья Уткин
  • Дмитрий Шурыгин
  • Олег Шурыгин

Проект из каталога (случайный выбор)

Дом-раковина в Мытищах
Юрий Виссарионов, 2008 – 2008
Дом-раковина в Мытищах

Постройки и проекты (новые записи):

  • Проект общественно-делового комплекса у станции метро «Ботанический Сад» / Genpro
  • Проект общественно-делового комплекса у станции метро «Ботанический Сад» / UNK
  • Дворец бильярда в Мневниковской пойме
  • БЦ в Раменках
  • Бизнес-центр (на месте ТЦ «Старт»)
  • DELO HOUSE 3.2 с флигелем
  • Ледовый дворец Navka Arena
  • Благоустройство территории ЖК Holms Residence
  • Игровое пространство у театра им. Г.К. Камала

Новости российской архитектуры:

Потенциальные примечательности. Обзор проектов 16–22 февраля 2026
22.02.2026

Потенциальные примечательности. Обзор проектов 16–22 февраля 2026

Евгений Зеленов, Юлий Борисов, Амир Идиатулин, Николай Гордюшин, Александр Аношкин, Мария Салех, Никита Дергунов
Визуальная чистота
20.02.2026

Визуальная чистота

Александр Жидков, Михаил Гуманков
Кирпичная вуаль
20.02.2026

Кирпичная вуаль

Айк Навасардян, Рубен Аракелян
Иглы созерцания горизонта
19.02.2026

Иглы созерцания горизонта

Николай Переслегин, Георгий Трофимов, Сергей Переслегин