RSS
Многофункциональный комплекс на территории Электростанции N2. Этап 1. Проектное предложение. Реставрация
© ГК «Спектрум»

Многофункциональный комплекс на территории Электростанции N2

информация:

Россия

авторский коллектив

Проектная организация: Спектрум-Холдинг

Многофункциональный комплекс на территории Электростанции N2. Ситуационная схема
© ГК «Спектрум»

Архи.ру об этом объекте:

25.11.2025

Алёна Кузнецова. Ной Троцкий и залетный биотек

На прошлой неделе Градостроительный совет Петербурга рассмотрел очередной крупный проект, инициированный структурами «Газпрома». Команда «Спектрум-Холдинг» планирует в три этапа преобразить участок серого пояса на Синопской набережной: сначала приспособят объекты культурного наследия под спортивный и концертный залы, затем построят гостинично-офисный центр и административное здание, а после снизят влияние дымовых труб на панораму. Эксперты отнеслись к новой архитектуре критично.

Предмет обсуждения Градостроительного совета территория Электростанции ТЭЦ №2, где после модернизации оборудования высвободились значительные площади. Участок расположен удачно: на Синопской набережной, в пешей доступности от Невской ратуши и Смоль...   читать дальше
Многофункциональный комплекс на территории Электростанции N2. Общий вид комплекса. Существующая ситуация
© ГК «Спектрум»
Многофункциональный комплекс на территории Электростанции N2. Ситуационная схема. Объекты культурного наследия
© ГК «Спектрум»
Многофункциональный комплекс на территории Электростанции N2. Ситуационная схема. Объекты культурного наследия
© ГК «Спектрум»
Многофункциональный комплекс на территории Электростанции N2. Схема организации территории
© ГК «Спектрум»
Многофункциональный комплекс на территории Электростанции N2. Общий вид комплекса
© ГК «Спектрум»
Многофункциональный комплекс на территории Электростанции N2. Последовательность реализации проекта. Этап 1. Реставрация
© ГК «Спектрум»
Многофункциональный комплекс на территории Электростанции N2. Этап 1. Функциональное зонирование
© ГК «Спектрум»
Многофункциональный комплекс на территории Электростанции N2. Этап 1. Функциональное зонирование
© ГК «Спектрум»
Многофункциональный комплекс на территории Электростанции N2. Этап 1. Восстановление исторического облика. Реставрация
© ГК «Спектрум»
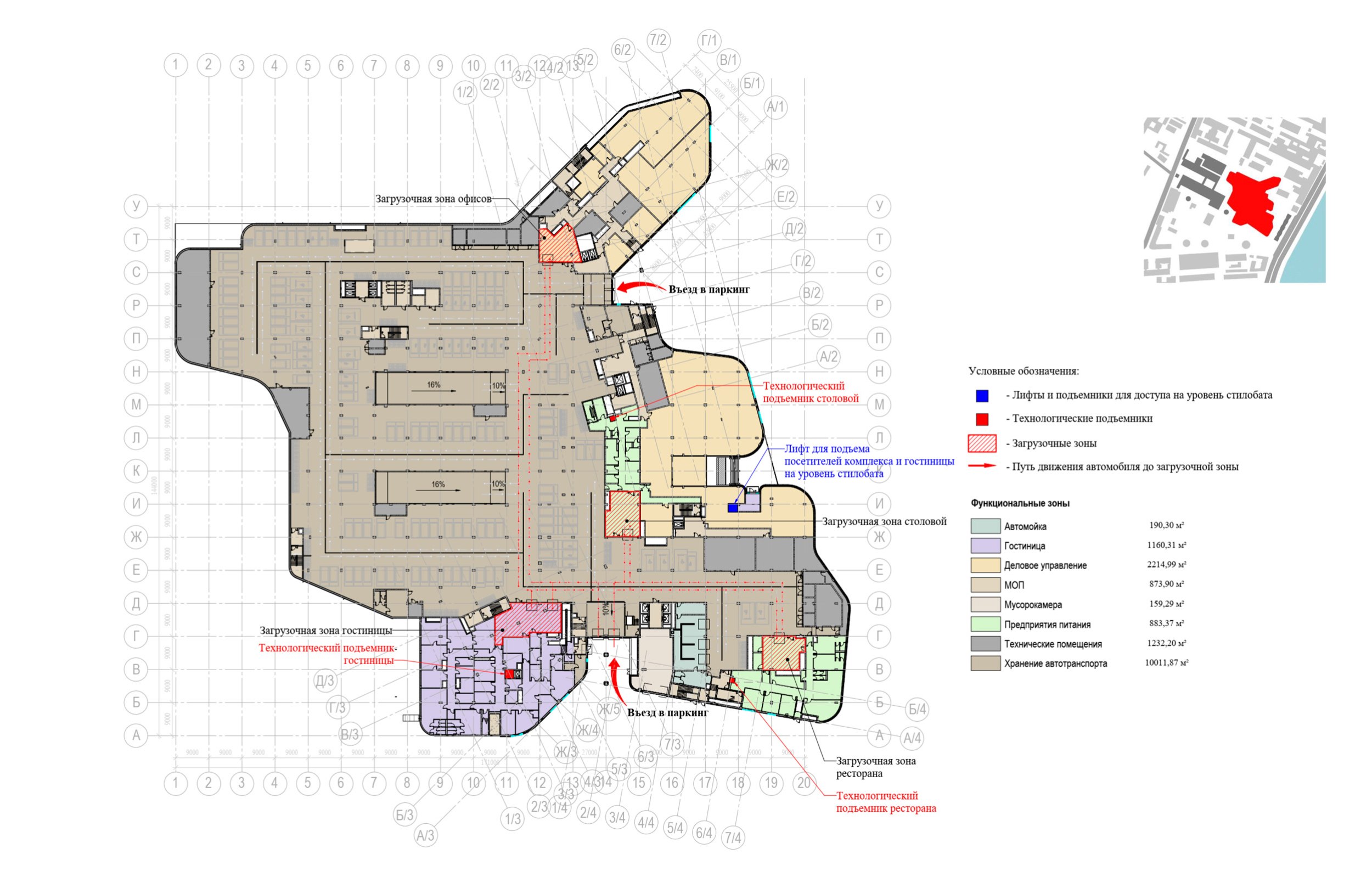
Многофункциональный комплекс на территории Электростанции N2. Этап 1. Проектное предложение. Реставрация
© ГК «Спектрум»
Многофункциональный комплекс на территории Электростанции N2. Этап 1. Проектное предложение. Реставрация
© ГК «Спектрум»
Многофункциональный комплекс на территории Электростанции N2. Этап 1. Проектное предложение. Реставрация
© ГК «Спектрум»
Многофункциональный комплекс на территории Электростанции N2. Этап 1. Проектное предложение. Реставрация
© ГК «Спектрум»
Многофункциональный комплекс на территории Электростанции N2. Этап 1. Проектное предложение. Реставрация
© ГК «Спектрум»
Многофункциональный комплекс на территории Электростанции N2. Последовательность реализации проекта. Этап 2. Корпус 5. Новое строительство
© ГК «Спектрум»
Многофункциональный комплекс на территории Электростанции N2. Этап 2. Схема генерального плана
© ГК «Спектрум»
Многофункциональный комплекс на территории Электростанции N2. Этап 2. Корпус 5. Фасадные решения
© ГК «Спектрум»
Многофункциональный комплекс на территории Электростанции N2. Этап 2. Корпус 5. Фасадные решения
© ГК «Спектрум»
Многофункциональный комплекс на территории Электростанции N2. Этап 2. Корпус 5. Разрезы
© ГК «Спектрум»
Многофункциональный комплекс на территории Электростанции N2. Этап 2. Корпус 5. Схема плана -2 этажа
© ГК «Спектрум»
Многофункциональный комплекс на территории Электростанции N2. Этап 2. Корпус 5. Схема плана -1 этажа
© ГК «Спектрум»
Многофункциональный комплекс на территории Электростанции N2. Этап 2. Корпус 5. Схема плана 1 этажа
© ГК «Спектрум»
Многофункциональный комплекс на территории Электростанции N2. Этап 2. Корпус 5. Схема плана 2 этаж
© ГК «Спектрум»
Многофункциональный комплекс на территории Электростанции N2. Этап 2. Корпус 5. Схема плана 3 этажа
© ГК «Спектрум»
Многофункциональный комплекс на территории Электростанции N2. Этап 2. Корпус 5. Схема плана 4 этажа
© ГК «Спектрум»
Многофункциональный комплекс на территории Электростанции N2. Этап 2. Корпус 5. Схема плана. Проектное предложение
© ГК «Спектрум»
Многофункциональный комплекс на территории Электростанции N2. Этап 2. Корпус 5. Схема плана. Проектное предложение
© ГК «Спектрум»
Многофункциональный комплекс на территории Электростанции N2. Этап 2. Корпус 5. Схема плана. Проектное предложение
© ГК «Спектрум»
Многофункциональный комплекс на территории Электростанции N2. Этап 2. Корпус 5. Схема плана. Проектное предложение
© ГК «Спектрум»
Многофункциональный комплекс на территории Электростанции N2. Этап 2. Корпус 5. Схема плана. Проектное предложение
© ГК «Спектрум»
Многофункциональный комплекс на территории Электростанции N2. Этап 2. Корпус 5. Схема плана. Проектное предложение
© ГК «Спектрум»
Многофункциональный комплекс на территории Электростанции N2. Последовательность реализации проекта. Этап 2. Корпус 8. Новое строительство
© ГК «Спектрум»
Многофункциональный комплекс на территории Электростанции N2. Этап 2. Схема генерального плана
© ГК «Спектрум»
Многофункциональный комплекс на территории Электростанции N2. Этап 2. Корпус 8. Фасадные решения. Разрезы
© ГК «Спектрум»
Многофункциональный комплекс на территории Электростанции N2. Этап 2. Корпус 8. Схема планов этажей
© ГК «Спектрум»
Многофункциональный комплекс на территории Электростанции N2. Этап 2. Корпус 8. Преоктное предложение
© ГК «Спектрум»
Многофункциональный комплекс на территории Электростанции N2. Этап 2. Корпус 8. Преоктное предложение
© ГК «Спектрум»
Многофункциональный комплекс на территории Электростанции N2. Этап 2. Корпус 8. Преоктное предложение
© ГК «Спектрум»
Многофункциональный комплекс на территории Электростанции N2. Этап 2. Корпус 8. Преоктное предложение
© ГК «Спектрум»
Многофункциональный комплекс на территории Электростанции N2. Этап 2. Корпус 8. Преоктное предложение
© ГК «Спектрум»
Многофункциональный комплекс на территории Электростанции N2. Этап 2. Корпус 8. Преоктное предложение
© ГК «Спектрум»
Многофункциональный комплекс на территории Электростанции N2. Этап 2. проектное предложение
© ГК «Спектрум»
Многофункциональный комплекс на территории Электростанции N2. Этап 2. Корпус 8. Ключевые решения
© ГК «Спектрум»
Многофункциональный комплекс на территории Электростанции N2. Этап 2. Развертка по Синопской набережной
© ГК «Спектрум»
Многофункциональный комплекс на территории Электростанции N2. Этап 2. Развертка по внутриквартальному проезду
© ГК «Спектрум»

Архитекторы – партнеры Архи.ру:

  • Игорь Шварцман
  • Дмитрий Сухов
  • Юлия Солдатенкова
  • Юлия Тряскина
  • Григориос Гавалидис
  • Сергей Переслегин
  • Екатерина Кузнецова
  • Зураб Басария
  • Игорь Членов
  • Константин Ходнев
  • Георгий Трофимов
  • Ерлан Бекмухамедов
  • Сергей Чобан
  • Александр Котенков
  • Андрей Асадов
  • Степан Липгарт
  • Всеволод Медведев
  • Сергей Кузнецов
  • Юлий Борисов
  • Андрей Гнездилов
  • Алексей Орлов
  • Антон Яр-Скрябин
  • Андрей Михайлов
  • Григорий Мустафин
  • Сергей Скуратов
  • Мария Ахременкова
  • Александр Самарин
  • Борис Воскобойников
  • Александр Скокан
  • Вера Бутко
  • Анастасия Абашева
  • Николай Переслегин
  • Павел Андреев
  • Раис Баишев
  • Андрей Романов
  • Елена Пучкова
  • Наталья Сидорова
  • Олег Мединский
  • Евгений Новосадюк
  • Ростислав Цайзер
  • Юлиана Княжевская
  • Василий Крапивин
  • Иван Кожин
  • Дмитрий Остроумов
  • Наталия Шилова
  • Дмитрий Ликин
  • Валерий Каняшин
  • Станислав Белых
  • Дмитрий Буш
  • Виталий Лутц
  • Николай Кикава
  • Олег Шапиро
  • Антон Надточий
  • Марина Егорова
  • Полина Воеводина
  • Илья Машков
  • Евгений Зеленов
  • Александр Асадов
  • Сергей Никешкин
  • Александра Кузьмина
  • Даниил Лоренц
  • Владимир Плоткин
  • Михаил Давыдов
  • Никита Явейн
  • Татьяна Зульхарнеева
  • Энди Сноу
  • Владислав Андреев
  • Сергей Труханов
  • Евгений Подгорнов
  • Михаил Канунников
  • Тимур Абдуллаев
  • Екатерина Абдуллаева
  • Маргарита Авдышева
  • Левон Айрапетов
  • Александр Аношкин
  • Алексей Афоничкин
  • Владислав Бек-Булатов
  • Антон Белов
  • Татьяна Бузулукова
  • Петр Васильев
  • Данило Вукосавлевич
  • Алина Георгиевская
  • Павел Гордеев
  • Илья Гринберг
  • Никита Демидов
  • Никита Дергунов
  • Наталья Жилкина
  • Алексей Зародов
  • Екатерина Зырина
  • Алексей Ильин
  • Дарья Ильина
  • Олег Карлсон
  • Алексей Кибкало
  • Денис Кувшинников
  • Анна Куликова
  • Алексей Курков
  • Данил Куров
  • Мария Кутай
  • Евгений Кутай
  • Иван Кычкин
  • Антон Ладыгин
  • Дмитрий Лапин
  • Борис Левянт
  • Илья Левянт
  • Катерина Левянт
  • Валерий Лукомский
  • Антон Лукомский
  • Екатерина Ляпунова
  • Иса Магомедов
  • Сергей Марков
  • Елена Мерцалова
  • Николай Миловидов
  • Станислав Михаловский
  • Сергей Мичурин
  • Олеся Могилевская
  • Филипп Никандров
  • Мария Николаева
  • Дмитрий Овчаров
  • Сергей Пергаев
  • Виктор Перов
  • Алексей Полищук
  • Роман Пономарёв
  • Валерия Преображенская
  • Виктория Раубо
  • Василий Рыбаков
  • Николай Рыбаков
  • Мария Салех
  • Александр Стариков
  • Илья Уткин
  • Елисей Чакан
  • Бориша Чорович
  • Олег Шурыгин
  • Дмитрий Шурыгин

Проект из каталога (случайный выбор)

Жилой дом в Пушкаревом пер.
Павел Андреев, 1999 – 2001
Жилой дом в Пушкаревом пер.

Постройки и проекты (новые записи):

  • Деловое пространство «ПЛЭЙН»
  • Porta
  • Детский сад на 200 мест в Жилино-1
  • Архитектурная концепция кластера Ломоносов-2
  • Клубный дом в 1-м Казачьем переулке
  • Частный дом в Ленинградской области
  • IT-кластер TravelLine в Йошкар-Оле
  • Гостиничный комплекс Cosmos Selection Derbent 5
  • Офис компании АльфаСтрахование

Новости российской архитектуры:

Курган памяти
08.05.2026

Курган памяти

Никита Явейн
Баня по-царски
07.05.2026

Баня по-царски

Ольга Смоленская
«Заря» над волнами
07.05.2026

«Заря» над волнами

Дарья Виноградова
Белый конгломерат
07.05.2026

Белый конгломерат

Александр Томашенко, Андрей Горелов, Василий Сошников, Иван Колманок, Николай Фугаров, Владимир Плоткин
Между фантазией и реальностью: ПАСП & РОСТ
06.05.2026

Между фантазией и реальностью: ПАСП & РОСТ

Андрей Тютерев, Владимир Плоткин