RSS
Бутик Choux
Фотография © Сергей Красюк / предоставлена архитектурной студией ELENA LOKASTOVA

Бутик Choux

информация:

Елена Локастова
Россия

авторский коллектив

Руководитель, главный архитектор – Елена Локастова; архитекторы – Ольга Демченко, Надежда Кононова

партнеры, заказчики, смежники

Заказчик: Виктория Молдавская

награды:

    Победитель премии Design.now 2024/2025 в номинации NOW interior, в подноминации «Магазин, бутик, бьюти-пространство»

    Победитель премии ADD Awards 2024 в номинации Ретейл, в подноминации Люкс
Бутик Choux
Фотография © Сергей Красюк / предоставлена архитектурной студией ELENA LOKASTOVA

Архи.ру об этом объекте:

05.01.2026

Елена Петухова. Барокко 2.0

Студия ELENA LOKASTOVA вдохновлялась барочной эстетикой при создании интерьера бутика Choux, в котором нарочитая декоративность деталей сочетается с общим лаконизмом и даже футуристичностью пространства.

Глядя на величественные и прекрасные памятники античности, экспрессивные и феерические готические соборы или пышные и оживающие барочные церкви, невольно задаешь себе вопрос: как их создатели ухитрялись создавать цельное и гармоничное произведение,...   читать дальше
Бутик Choux
Фотография © Сергей Красюк / предоставлена архитектурной студией ELENA LOKASTOVA

описание:

В магазине два уровня, различающихся цветовой гаммой и материалами, но организованных по единому пространственному принципу. В центре каждого этажа размещена скульптурная форма, которая одновременно служит визуальным акцентом и выполняет практическую функцию.

На верхнем уровне таким объектом стал гигантский золотой «боб», словно зажатый между полом и потолком. Благодаря витринным окнам он заметен даже с противоположного берега Патриаршего пруда. Форма «боба» появилась в процессе экспериментов с бионической эстетикой. Название бренда Choux переводится с французского как «капуста», что подчеркивает его ботаническую связь. В интерьере это проявляется в виде барочного растительного орнамента на потолке и зеленых текстильных панелей нижнего этажа. «Боб» изготовлен из фанеры и покрыт золотым хромом. Внутри него скрывается полость с рейлом для одежды и большим диваном. Золотая поверхность отражает рисунок потолка, созданный нейросетью: в пышную барочную листву вплетён логотип бренда.

На первом этаже расположены касса, примерочные и секретная комната. Секретная комната представляет собой камерное пространство, полностью заполненное маленькими ячейками. Каждый покупатель получает на кассе ключ от одной из них и может оставить подарок и письмо для следующего посетителя.

Пол первого этажа выполнен из светлого терраццо с цветными мраморными вставками правильной формы – словно тетрис, разбежавшийся в разные стороны. Зеркала в примерочных расположены таким образом, что визуально увеличивают пространство в четыре раза.

Лестница, ведущая на нижний этаж, оформлена как тоннель, выложенный мраморной плиткой. Зеркальная стена превращает её в фотогеничный каменный портал. В подземном зале стены покрыты изумрудными бархатными панелями, напоминающими мох, а между полом и потолком растянута гигантская белая «капля», символически питающая золотой проросток на верхнем уровне.

Сложная форма капли облицована белым пластиком. Пол и потолок покрыты глянцевым белым материалом, который контрастирует с бархатной текстурой стен. Между белыми зеркальными примерочными расположена ниша с диваном. Если открыть двери-ширмы в обеих комнатах, образуется единое, бесшовное пространство – идеальное для съемок.

Бутик Choux
Фотография © Сергей Красюк / предоставлена архитектурной студией ELENA LOKASTOVA
Бутик Choux
Фотография © Сергей Красюк / предоставлена архитектурной студией ELENA LOKASTOVA
Бутик Choux
Фотография © Сергей Красюк / предоставлена архитектурной студией ELENA LOKASTOVA
Бутик Choux
Фотография © Сергей Красюк / предоставлена архитектурной студией ELENA LOKASTOVA
Бутик Choux
Фотография © Сергей Красюк / предоставлена архитектурной студией ELENA LOKASTOVA
Бутик Choux
Фотография © Сергей Красюк / предоставлена архитектурной студией ELENA LOKASTOVA
Бутик Choux
Фотография © Сергей Красюк / предоставлена архитектурной студией ELENA LOKASTOVA
Бутик Choux
Фотография © Сергей Красюк / предоставлена архитектурной студией ELENA LOKASTOVA
Бутик Choux
Фотография © Сергей Красюк / предоставлена архитектурной студией ELENA LOKASTOVA
Бутик Choux
Фотография © Сергей Красюк / предоставлена архитектурной студией ELENA LOKASTOVA
Бутик Choux
Фотография © Сергей Красюк / предоставлена архитектурной студией ELENA LOKASTOVA
Бутик Choux
Фотография © Сергей Красюк / предоставлена архитектурной студией ELENA LOKASTOVA
Бутик Choux
Фотография © Сергей Красюк / предоставлена архитектурной студией ELENA LOKASTOVA
Бутик Choux
Фотография © Сергей Красюк / предоставлена архитектурной студией ELENA LOKASTOVA
Бутик Choux
Фотография © Сергей Красюк / предоставлена архитектурной студией ELENA LOKASTOVA
Бутик Choux
Фотография © Сергей Красюк / предоставлена архитектурной студией ELENA LOKASTOVA
Бутик Choux
Фотография © Сергей Красюк / предоставлена архитектурной студией ELENA LOKASTOVA
Бутик Choux
Фотография © Сергей Красюк / предоставлена архитектурной студией ELENA LOKASTOVA
Бутик Choux
Фотография © Сергей Красюк / предоставлена архитектурной студией ELENA LOKASTOVA
Бутик Choux
Фотография © Сергей Красюк / предоставлена архитектурной студией ELENA LOKASTOVA
Бутик Choux
Фотография © Сергей Красюк / предоставлена архитектурной студией ELENA LOKASTOVA
Бутик Choux
Фотография © Сергей Красюк / предоставлена архитектурной студией ELENA LOKASTOVA
Бутик Choux
Фотография © Сергей Красюк / предоставлена архитектурной студией ELENA LOKASTOVA
Бутик Choux
Фотография © Сергей Красюк / предоставлена архитектурной студией ELENA LOKASTOVA
Бутик Choux
Фотография © Сергей Красюк / предоставлена архитектурной студией ELENA LOKASTOVA
Бутик Choux
Фотография © Сергей Красюк / предоставлена архитектурной студией ELENA LOKASTOVA
Бутик Choux
Фотография © Сергей Красюк / предоставлена архитектурной студией ELENA LOKASTOVA
Бутик Choux
Фотография © Сергей Красюк / предоставлена архитектурной студией ELENA LOKASTOVA
Бутик Choux
Фотография © Сергей Красюк / предоставлена архитектурной студией ELENA LOKASTOVA
Бутик Choux
Фотография © Сергей Красюк / предоставлена архитектурной студией ELENA LOKASTOVA
Бутик Choux
Фотография © Сергей Красюк / предоставлена архитектурной студией ELENA LOKASTOVA
Бутик Choux
Фотография © Сергей Красюк / предоставлена архитектурной студией ELENA LOKASTOVA
Бутик Choux
Фотография © Сергей Красюк / предоставлена архитектурной студией ELENA LOKASTOVA
Бутик Choux
Фотография © Сергей Красюк / предоставлена архитектурной студией ELENA LOKASTOVA
Бутик Choux
Фотография © Сергей Красюк / предоставлена архитектурной студией ELENA LOKASTOVA
Бутик Choux
Фотография © Сергей Красюк / предоставлена архитектурной студией ELENA LOKASTOVA
Бутик Choux
Фотография © Сергей Красюк / предоставлена архитектурной студией ELENA LOKASTOVA
Бутик Choux
Фотография © Сергей Красюк / предоставлена архитектурной студией ELENA LOKASTOVA
Бутик Choux
Фотография © Сергей Красюк / предоставлена архитектурной студией ELENA LOKASTOVA
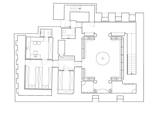
Бутик Choux. План 1 этажа
© Архитектурная студия ELENA LOKASTOVA
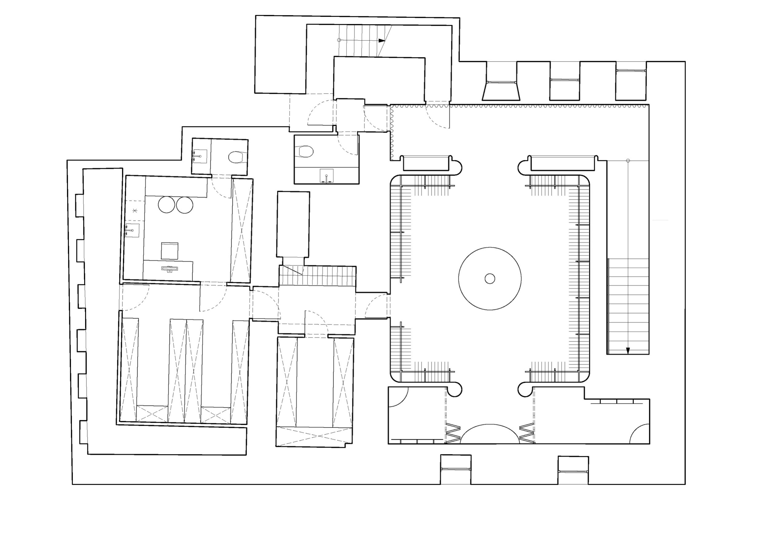
Бутик Choux. План -1 этажа
© Архитектурная студия ELENA LOKASTOVA

Архитекторы – партнеры Архи.ру:

  • Даниил Лоренц
  • Андрей Гнездилов
  • Григориос Гавалидис
  • Сергей Переслегин
  • Антон Надточий
  • Степан Липгарт
  • Иван Кожин
  • Павел Андреев
  • Наталья Сидорова
  • Раис Баишев
  • Елена Пучкова
  • Андрей Романов
  • Сергей Чобан
  • Олег Шапиро
  • Евгений Подгорнов
  • Ерлан Бекмухамедов
  • Юлиана Княжевская
  • Владимир Плоткин
  • Михаил Канунников
  • Юлия Тряскина
  • Михаил Давыдов
  • Валерий Каняшин
  • Дмитрий Сухов
  • Дмитрий Буш
  • Полина Воеводина
  • Андрей Асадов
  • Анастасия Абашева
  • Александр Самарин
  • Евгений Зеленов
  • Антон Яр-Скрябин
  • Григорий Мустафин
  • Виталий Лутц
  • Александр Асадов
  • Татьяна Зульхарнеева
  • Константин Ходнев
  • Марина Егорова
  • Николай Переслегин
  • Георгий Трофимов
  • Игорь Шварцман
  • Владислав Андреев
  • Алексей Орлов
  • Екатерина Кузнецова
  • Игорь Членов
  • Ростислав Цайзер
  • Энди Сноу
  • Зураб Басария
  • Евгений Новосадюк
  • Всеволод Медведев
  • Сергей Труханов
  • Мария Ахременкова
  • Сергей Кузнецов
  • Станислав Белых
  • Александра Кузьмина
  • Борис Воскобойников
  • Дмитрий Остроумов
  • Василий Крапивин
  • Александр Котенков
  • Наталия Шилова
  • Олег Мединский
  • Никита Явейн
  • Вера Бутко
  • Николай Кикава
  • Сергей Скуратов
  • Дмитрий Ликин
  • Сергей Никешкин
  • Александр Скокан
  • Андрей Михайлов
  • Юлия Солдатенкова
  • Юлий Борисов
  • Илья Машков
  • Тимур Абдуллаев
  • Екатерина Абдуллаева
  • Маргарита Авдышева
  • Левон Айрапетов
  • Александр Аношкин
  • Алексей Афоничкин
  • Владислав Бек-Булатов
  • Антон Белов
  • Татьяна Бузулукова
  • Петр Васильев
  • Данило Вукосавлевич
  • Алина Георгиевская
  • Павел Гордеев
  • Илья Гринберг
  • Никита Демидов
  • Никита Дергунов
  • Наталья Жилкина
  • Алексей Зародов
  • Екатерина Зырина
  • Алексей Ильин
  • Дарья Ильина
  • Олег Карлсон
  • Алексей Кибкало
  • Денис Кувшинников
  • Анна Куликова
  • Алексей Курков
  • Данил Куров
  • Мария Кутай
  • Евгений Кутай
  • Иван Кычкин
  • Антон Ладыгин
  • Дмитрий Лапин
  • Борис Левянт
  • Илья Левянт
  • Катерина Левянт
  • Валерий Лукомский
  • Антон Лукомский
  • Екатерина Ляпунова
  • Иса Магомедов
  • Сергей Марков
  • Елена Мерцалова
  • Николай Миловидов
  • Станислав Михаловский
  • Сергей Мичурин
  • Олеся Могилевская
  • Филипп Никандров
  • Мария Николаева
  • Дмитрий Овчаров
  • Сергей Пергаев
  • Виктор Перов
  • Алексей Полищук
  • Роман Пономарёв
  • Валерия Преображенская
  • Виктория Раубо
  • Василий Рыбаков
  • Николай Рыбаков
  • Мария Салех
  • Александр Стариков
  • Илья Уткин
  • Елисей Чакан
  • Бориша Чорович
  • Олег Шурыгин
  • Дмитрий Шурыгин

Проект из каталога (случайный выбор)

Постройки и проекты (новые записи):

  • Деловое пространство «ПЛЭЙН»
  • Porta
  • Детский сад на 200 мест в Жилино-1
  • Архитектурная концепция кластера Ломоносов-2
  • Клубный дом в 1-м Казачьем переулке
  • Частный дом в Ленинградской области
  • IT-кластер TravelLine в Йошкар-Оле
  • Гостиничный комплекс Cosmos Selection Derbent 5
  • Офис компании АльфаСтрахование

Новости российской архитектуры:

Курган памяти
08.05.2026

Курган памяти

Никита Явейн
Баня по-царски
07.05.2026

Баня по-царски

Ольга Смоленская
«Заря» над волнами
07.05.2026

«Заря» над волнами

Дарья Виноградова
Белый конгломерат
07.05.2026

Белый конгломерат

Александр Томашенко, Андрей Горелов, Василий Сошников, Иван Колманок, Николай Фугаров, Владимир Плоткин
Между фантазией и реальностью: ПАСП & РОСТ
06.05.2026

Между фантазией и реальностью: ПАСП & РОСТ

Андрей Тютерев, Владимир Плоткин