RSS
Горные Пороги. Ресторан
Фотография © Виталий Иванов / предоставлена New Desig

Горные Пороги

информация:

  • статус
    реализовано
  • даты
    11.2020 / 01.2021 — 06.2024
  • region= area= address=Бирюзовая Катунь, территория 99, Айский трак country_t=Россия city_t=
    место
    Бирюзовая Катунь, территория 99, Айский трак
  • координаты
    51.825381, 85.770358
  • функция
    Торгово-коммерческий / ресторан
  • теги
    send.project
  • общая площадь
    252.89 м2
  • этажность
    2
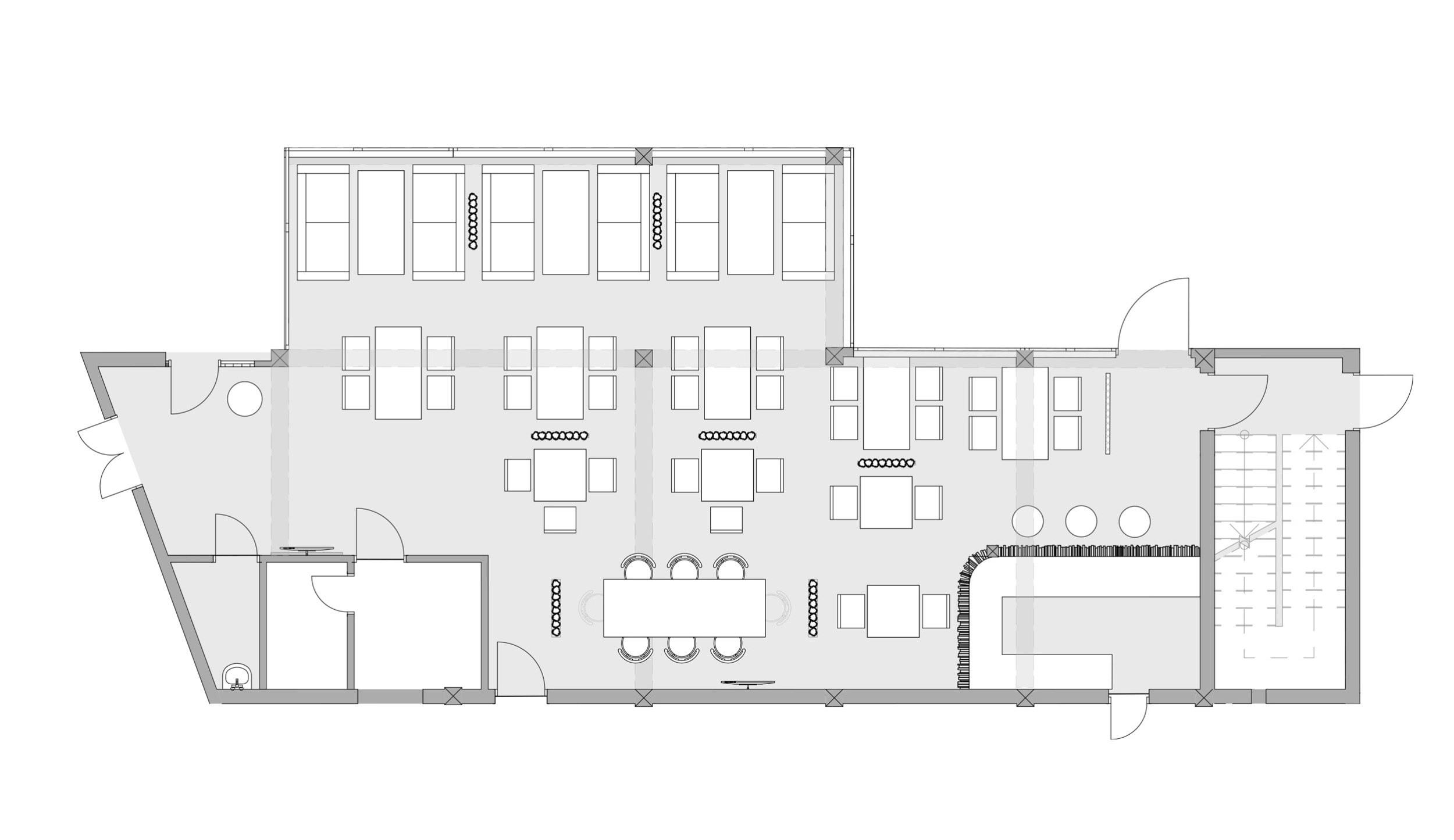
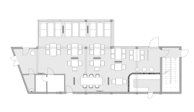
  • Ресторан 1 этаж – 141.93 м2
    Детская игровая зона на 2 этажах – 45.61м2
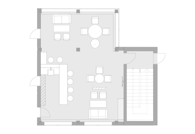
    Винный зал 2 этаж – 65.35м2
Ирина Вольхина
Россия

авторский коллектив

Вольхина Ирина – автор идеи, проектная документация и авторский надзор совместно с командой New Design
Проект здания: архитекторы  Деринг Александр, Тисленко Сергей

партнеры, заказчики, смежники

Заказчик: Хвоя
Архитектрный проект здания: Деринг Александ Федорович, Тисленко Сергей Иванович.

награды:

    Премия в области дизайна интерьеров жилых и общественных пространств.
    Организаторы – журнал «Современный Интерьер-Сибирь» и Союз архитекторов и дизайнеров

    Интерьерная премия «Арх-Тайга-2025» 

    II место Гамбургский счет Премии «Золотая капитель»

    VI место профессиональное жюри Специальный приз от Союза Архитекторов и Дизайнеров за творческую энергию и создание ярких образов
Горные Пороги. Ресторан
Фотография © Виталий Иванов / предоставлена New Desig

Архи.ру об этом объекте:

15.12.2025

Елена Петухова. Стремление к истокам

В интерьере ресторана «Горные пороги» при гостиничном комплексе «Хвоя в горах» в долине реки Катунь архитекторы бюро New Design постарались передать удивительную красоту и мощь природы Алтая, художественно переосмыслив ее наиболее характерные образы.

От редакцииКаждый, кому посчастливилось побывать на Алтае, мечтает туда вернуться, желательно не один раз. Невозможно не влюбиться в этот край с его фантастической природой и завораживающими пейзажами, производящими ошеломляющее, почти гипнотическое...   читать дальше
Горные Пороги. Ресторан
Фотография © Виталий Иванов / предоставлена New Desig

история проекта:

Заказчик обратился в нашу студию с готовым проектом архитектуры, с задачей создать интерьер пропитанный духом Алтая в современном прочтении. 

описание:

Ресторан «Горные Пороги» расположен в самом сердце комплекса «Хвоя. Отель в горах», на уникальной территории Манжерокских порогов. Энергия этого места – мощь и стремительность Катуни – стала основой всей концепции и воплотилась в центральной композиции ресторана, где главное место занимают завораживающий стеклянный стол и стулья.

Композиция подобна горной реке: в её прозрачной глубине мерцают нежные листочки, изящные ветви, массивные каменные глыбы, словно сопротивляющиеся бурному потоку.
«Горные Пороги» – место для истинных гедонистов, где природа и искусство сливаются воедино.

В основном зале будто сама природа расплескала свою палитру: рыжий, хвойный, умбра, изумрудный, серый, белый и графит – оттенки, рождённые ветром, солнцем и водой, сливаются в гармоничное единство. Могучие колонны с петроглифами заключают в себе положительную энергию, наполняя пространство умиротворением и покоем.

Атмосферу дополняют эксклюзивные предметы декора, созданные на заказ – уникальные этнические люстры.

Особый акцент – фактурная стена, рождённая без предварительных референсов, напоминающая величественную скалу, изрезанную временем и стихиями.

На втором этаже располагается винный зал. Продолжая общую идею ресторана, интерьер здесь более камерный и интимный. Акценты из основного зала повторяются – массивные колонны, фактурная отделка бара, необычные люстры. Здесь нет места случайным взглядам и громким разговорам – лишь приватная атмосфера, располагающая к долгому вечеру и истинному наслаждению.

Горные Пороги. Ресторан
Фотография © Виталий Иванов / предоставлена New Desig
Горные Пороги. Ресторан
Фотография © Виталий Иванов / предоставлена New Desig
Горные Пороги. Ресторан
Фотография © Виталий Иванов / предоставлена New Desig
Горные Пороги. Ресторан
Фотография © Виталий Иванов / предоставлена New Desig
Горные Пороги. Ресторан
Фотография © Виталий Иванов / предоставлена New Desig
Горные Пороги. Ресторан
Фотография © Виталий Иванов / предоставлена New Desig
Горные Пороги. Ресторан
Фотография © Виталий Иванов / предоставлена New Desig
Горные Пороги. Ресторан
Фотография © Виталий Иванов / предоставлена New Desig
Горные Пороги. Ресторан
Фотография © Виталий Иванов / предоставлена New Desig
Горные Пороги. Ресторан
Фотография © Виталий Иванов / предоставлена New Desig
Горные Пороги. Ресторан
Фотография © Виталий Иванов / предоставлена New Desig
Горные Пороги. Ресторан
Фотография © Виталий Иванов / предоставлена New Desig
Горные Пороги. Ресторан
Фотография © Виталий Иванов / предоставлена New Desig
Горные Пороги. Ресторан
Фотография © Виталий Иванов / предоставлена New Desig
Горные Пороги. Ресторан
Фотография © Виталий Иванов / предоставлена New Desig
Горные Пороги. Ресторан
Фотография © Виталий Иванов / предоставлена New Desig
Горные Пороги. Ресторан
Фотография © Виталий Иванов / предоставлена New Desig
Горные Пороги. Ресторан
Фотография © Виталий Иванов / предоставлена New Desig
Горные Пороги. Ресторан
Фотография © Виталий Иванов / предоставлена New Desig
Горные Пороги. Ресторан
Фотография © Виталий Иванов / предоставлена New Desig
Горные Пороги. Ресторан
Фотография © Виталий Иванов / предоставлена New Desig
Горные Пороги. Ресторан
Фотография © Виталий Иванов / предоставлена New Desig
Горные Пороги. Винный зал
Фотография © Виталий Иванов / предоставлена New Desig
Горные Пороги. Винный зал
Фотография © Виталий Иванов / предоставлена New Desig
Горные Пороги. Винный зал
Фотография © Виталий Иванов / предоставлена New Desig
Горные Пороги. Винный зал
Фотография © Виталий Иванов / предоставлена New Desig
Горные Пороги. Винный зал
Фотография © Виталий Иванов / предоставлена New Desig
Горные Пороги. Винный зал
Фотография © Виталий Иванов / предоставлена New Desig
Горные Пороги. Винный зал
Фотография © Виталий Иванов / предоставлена New Desig
Горные Пороги
Фотография © Виталий Иванов / предоставлена New Desig
Горные Пороги
Фотография © Виталий Иванов / предоставлена New Desig

Архитекторы – партнеры Архи.ру:

  • Александр Асадов
  • Андрей Михайлов
  • Александра Кузьмина
  • Полина Воеводина
  • Олег Шапиро
  • Константин Ходнев
  • Всеволод Медведев
  • Игорь Членов
  • Юлий Борисов
  • Юлиана Княжевская
  • Владислав Андреев
  • Юлия Тряскина
  • Владимир Плоткин
  • Дмитрий Сухов
  • Николай Кикава
  • Степан Липгарт
  • Иван Кожин
  • Анастасия Абашева
  • Ростислав Цайзер
  • Сергей Скуратов
  • Сергей Кузнецов
  • Андрей Романов
  • Роман Леонидов
  • Энди Сноу
  • Михаил Давыдов
  • Наталия Шилова
  • Даниил Лоренц
  • Андрей Асадов
  • Елена Пучкова
  • Игорь Шварцман
  • Дмитрий Буш
  • Олег Мединский
  • Татьяна Зульхарнеева
  • Григорий Мустафин
  • Ерлан Бекмухамедов
  • Валерий Каняшин
  • Антон Яр-Скрябин
  • Евгений Новосадюк
  • Антон Надточий
  • Василий Крапивин
  • Илья Машков
  • Сергей Труханов
  • Николай Переслегин
  • Юлия Солдатенкова
  • Вера Бутко
  • Никита Явейн
  • Марина Егорова
  • Андрей Гнездилов
  • Григориос Гавалидис
  • Дмитрий Ликин
  • Александр Скокан
  • Александр Самарин
  • Виталий Лутц
  • Анна Иванова
  • Екатерина Кузнецова
  • Сергей Никешкин
  • Георгий Трофимов
  • Наталья Сидорова
  • Сергей Переслегин
  • Михаил Канунников
  • Павел Андреев
  • Станислав Белых
  • Александр Котенков
  • Евгений Зеленов
  • Сергей Чобан
  • Алексей Орлов
  • Зураб Басария
  • Евгений Подгорнов
  • Раис Баишев
  • Алексей Гинзбург
  • Андрей Чуйков
  • Дмитрий Остроумов
  • Тимур Абдуллаев
  • Екатерина Абдуллаева
  • Маргарита Авдышева
  • Левон Айрапетов
  • Александр Аношкин
  • Алексей Афоничкин
  • Владислав Бек-Булатов
  • Антон Белов
  • Татьяна Бузулукова
  • Петр Васильев
  • Алина Георгиевская
  • Павел Гордеев
  • Илья Гринберг
  • Никита Демидов
  • Никита Дергунов
  • Наталья Жилкина
  • Алексей Зародов
  • Екатерина Зырина
  • Алексей Ильин
  • Дарья Ильина
  • Олег Карлсон
  • Алексей Кибкало
  • Денис Кувшинников
  • Анна Куликова
  • Алексей Курков
  • Алексей Курков
  • Данил Куров
  • Евгений Кутай
  • Мария Кутай
  • Антон Ладыгин
  • Антон Ладыгин
  • Дмитрий Лапин
  • Борис Левянт
  • Катерина Левянт
  • Илья Левянт
  • Антон Лукомский
  • Валерий Лукомский
  • Екатерина Ляпунова
  • Сергей Марков
  • Николай Миловидов
  • Станислав Михаловский
  • Олеся Могилевская
  • Мария Николаева
  • Виктор Перов
  • Алексей Полищук
  • Роман Пономарёв
  • Валерия Преображенская
  • Виктория Раубо
  • Николай Рыбаков
  • Василий Рыбаков
  • Мария Салех
  • Александр Стариков
  • Илья Уткин
  • Дмитрий Шурыгин
  • Олег Шурыгин

Проект из каталога (случайный выбор)

Индивидуальный жилой дом в пос. Архангельское
Валерия Преображенская, Левон Айрапетов, 2003 – 2003
Индивидуальный жилой дом в пос. Архангельское

Постройки и проекты (новые записи):

  • ЖК Лесное ожерелье
  • Клубный дом «Хамовники 12»
  • Усадьба «Павлово»
  • Проект общественно-делового комплекса у станции метро «Ботанический Сад» / Genpro
  • Проект общественно-делового комплекса у станции метро «Ботанический Сад» / UNK
  • Бизнес-центр «Триград»
  • БЦ в Раменках
  • Бизнес-центр (на месте ТЦ «Старт»)
  • DELO HOUSE 3.2 с флигелем

Новости российской архитектуры:

Вторая жизнь гидроузла
07.03.2026

Вторая жизнь гидроузла

Эльвира Гришечкина
Орел или решка
05.03.2026

Орел или решка

Ксения Караваева, Мурат Гукетлов
Стены помогают
04.03.2026

Стены помогают

Андрей Михайлов, Сергей Никешкин
Лодка, раскрой паруса
03.03.2026

Лодка, раскрой паруса

Юлий Борисов
Карельский разлом
02.03.2026

Карельский разлом

Евгений Задорожний