RSS
Общественные интерьеры квартала «Евгеньевский». Гранд-лобби
© Babayants Architects

Общественные интерьеры квартала «Евгеньевский»

информация:

  • статус
    проект
  • даты
    02.2025
  • region= area= address=Евгеньевская улица 2 country_t=Россия city_t=Санкт-Петербург
    место
    Санкт-Петербург Евгеньевская улица 2
  • функция
    Жилой / жилой комплекс
  • теги
    send.project
  • общая площадь
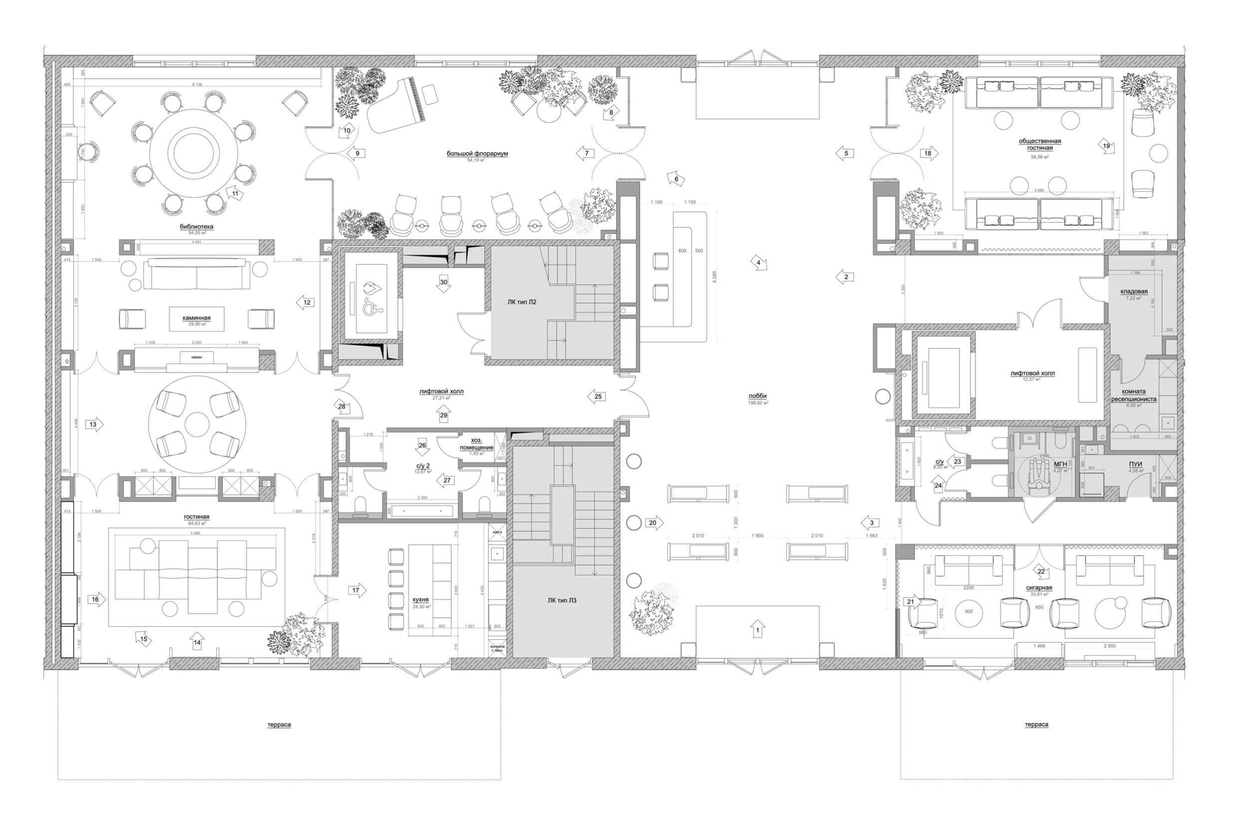
    685 м2
  • Гранд-лобби и общественные пространства 1 этажа  –  635 м2
    2 этаж и мансардные этажи (в строении Гранд лобби): лифтовой холл, коридоры  – 70 м2
Россия

авторский коллектив

Артем Бабаянц – креативный директор; Медея Бродская – дизайнер проекта

партнеры, заказчики, смежники

Девелопер: Formula City
Общественные интерьеры квартала «Евгеньевский». Гранд-лобби
© Babayants Architects
Общественные интерьеры квартала «Евгеньевский». Гранд-лобби
© Babayants Architects

история проекта:

Для квартала «Евгеньевский» наша команда разрабатывает интерьеры общественных пространств в восстанавливаемых корпусах объекта культурного наследия. Главная цель проекта – вдохнуть в квартал новую жизнь, соединив исторические и культурные смыслы места с современными технологиями и концептуальным дизайном.

В работе над проектом мы осмысленно обращаемся к классическим архитектурным темам – формам, симметрии, пропорциям, характерным для исторической застройки Санкт-Петербурга, – избегая буквального цитирования и стилизации.

Интерьер задуман как пространственный манифест о времени, устойчивости и преемственности – метафора внутреннего покоя и культурного равновесия, в которой прошлое и настоящее гармонично сосуществуют.

описание:

В основе архитектурной идеи – диалог с существующим контекстом и стремление к гармонии между историей и современностью. Пространство лобби задумано как театральная сцена, где мягкая архитектурная «лента» по периметру скрывает инженерные системы и формирует плавную, обтекаемую геометрию. Мы сохранили высоту и ощущение воздуха, наполнив помещение естественным светом, проникающим через фонарь в кровле.

Вместо привычного рецепционного ядра – открытое, текучее пространство. Центральные объёмы облицованы рельефной керамикой, напоминающей органные трубы – они усиливают вертикаль и создают эффект архитектурного звучания. Подвесные светильники, словно свечи, подчеркивают атмосферу покоя и внутренней тишины. Вместо традиционной мебельной группы – протяжённые скамьи вдоль оси, отсылающие к церковным интерьерам, но выполненные в современной пластике.

В основе выбора материалов – принцип честности: камень, дерево, металл – без имитации и излишней декоративности. Каждый материал выбран за способность красиво стареть и сохранять след времени. Цветовая палитра объединяет прохладный серый, терракотовый и зелёный мрамор, отсылая к образам Санкт-Петербурга. Паттерн пола, выложенный из плитки, вдохновлён мощением городских парадных.

Симметрия, многослойность, плавность форм, перетекающие материалы и мебель, вдохновлённая дизайном XX века – ключевые приёмы, формирующие лейтмотив интерьера.

Мы стремились к архитектуре с честностью и глубиной, где каждая деталь наполнена смыслом.
«Евгеньевский» – это не просто реконструкция, а возрождение места, где культура, красота и современный образ жизни соединяются в единое целое.

Общественные интерьеры квартала «Евгеньевский». Гранд-лобби
© Babayants Architects
Общественные интерьеры квартала «Евгеньевский». Гранд-лобби
© Babayants Architects
Общественные интерьеры квартала «Евгеньевский». Гранд-лобби
© Babayants Architects
Общественные интерьеры квартала «Евгеньевский». Оранжерея
© Babayants Architects
Общественные интерьеры квартала «Евгеньевский». Оранжерея
© Babayants Architects
Общественные интерьеры квартала «Евгеньевский». Оранжерея
© Babayants Architects
Общественные интерьеры квартала «Евгеньевский». Оранжерея
© Babayants Architects
Общественные интерьеры квартала «Евгеньевский». Библиотека
© Babayants Architects
Общественные интерьеры квартала «Евгеньевский». Библиотека
© Babayants Architects
Общественные интерьеры квартала «Евгеньевский». Каминная
© Babayants Architects
Общественные интерьеры квартала «Евгеньевский». Зона отдыха
© Babayants Architects
Общественные интерьеры квартала «Евгеньевский». Гостиная
© Babayants Architects
Общественные интерьеры квартала «Евгеньевский». Гостиная
© Babayants Architects
Общественные интерьеры квартала «Евгеньевский». Гостиная
© Babayants Architects
Общественные интерьеры квартала «Евгеньевский». Кухня
© Babayants Architects
Общественные интерьеры квартала «Евгеньевский». Общественная гостиная
© Babayants Architects
Общественные интерьеры квартала «Евгеньевский». Общественная гостиная
© Babayants Architects
Общественные интерьеры квартала «Евгеньевский». Сигарная
© Babayants Architects
Общественные интерьеры квартала «Евгеньевский». Сигарная
© Babayants Architects
Общественные интерьеры квартала «Евгеньевский». Санузел гранд-лобби
© Babayants Architects
Общественные интерьеры квартала «Евгеньевский». Санузел гранд-лобби
© Babayants Architects
Общественные интерьеры квартала «Евгеньевский». Лифтовой холл
© Babayants Architects
Общественные интерьеры квартала «Евгеньевский». Лифтовой холл
© Babayants Architects
Общественные интерьеры квартала «Евгеньевский»
© Babayants Architects
Общественные интерьеры квартала «Евгеньевский»
© Babayants Architects
Общественные интерьеры квартала «Евгеньевский»
© Babayants Architects
Общественные интерьеры квартала «Евгеньевский». Типовой этаж
© Babayants Architects
Общественные интерьеры квартала «Евгеньевский»
© Babayants Architects

Архитекторы – партнеры Архи.ру:

  • Екатерина Кузнецова
  • Игорь Членов
  • Михаил Давыдов
  • Андрей Михайлов
  • Олег Шапиро
  • Николай Кикава
  • Илья Машков
  • Георгий Трофимов
  • Юлия Тряскина
  • Валерий Каняшин
  • Дмитрий Буш
  • Вера Бутко
  • Анна Иванова
  • Сергей Кузнецов
  • Энди Сноу
  • Степан Липгарт
  • Алексей Орлов
  • Андрей Гнездилов
  • Раис Баишев
  • Сергей Никешкин
  • Павел Андреев
  • Александра Кузьмина
  • Григорий Мустафин
  • Константин Ходнев
  • Антон Лукомский
  • Василий Крапивин
  • Сергей Переслегин
  • Никита Явейн
  • Андрей Романов
  • Татьяна Гук
  • Антон Яр-Скрябин
  • Дмитрий Остроумов
  • Евгений Зеленов
  • Андрей Асадов
  • Виталий Лутц
  • Николай Переслегин
  • Сергей Труханов
  • Андрей Чуйков
  • Дмитрий Сухов
  • Марина Егорова
  • Ерлан Бекмухамедов
  • Евгений Подгорнов
  • Алексей Гинзбург
  • Елена Пучкова
  • Наталия Шилова
  • Станислав Белых
  • Владимир Плоткин
  • Всеволод Медведев
  • Евгений Новосадюк
  • Наталья Сидорова
  • Александр Самарин
  • Александр Скокан
  • Сергей Чобан
  • Анастасия Абашева
  • Иван Кожин
  • Михаил Канунников
  • Ростислав Цайзер
  • Дмитрий Ликин
  • Григориос Гавалидис
  • Юлия Солдатенкова
  • Роман Леонидов
  • Антон Надточий
  • Полина Воеводина
  • Владислав Андреев
  • Александр Котенков
  • Зураб Басария
  • Татьяна Зульхарнеева
  • Даниил Лоренц
  • Валерий Лукомский
  • Олег Мединский
  • Игорь Шварцман
  • Александр Асадов
  • Юлий Борисов
  • Сергей Скуратов
  • Тимур Абдуллаев
  • Екатерина Абдуллаева
  • Маргарита Авдышева
  • Левон Айрапетов
  • Александр Аношкин
  • Алексей Афоничкин
  • Владислав Бек-Булатов
  • Антон Белов
  • Александр Бровкин
  • Татьяна Бузулукова
  • Петр Васильев
  • Алина Георгиевская
  • Павел Гордеев
  • Илья Гринберг
  • Никита Демидов
  • Никита Дергунов
  • Наталья Жилкина
  • Алексей Зародов
  • Екатерина Зырина
  • Алексей Ильин
  • Дарья Ильина
  • Олег Карлсон
  • Алексей Кибкало
  • Анна Куликова
  • Алексей Курков
  • Евгений Кутай
  • Мария Кутай
  • Антон Ладыгин
  • Дмитрий Лапин
  • Екатерина Ляпунова
  • Николай Макаров
  • Сергей Марков
  • Станислав Михаловский
  • Олеся Могилевская
  • Мария Николаева
  • Виктор Перов
  • Алексей Полищук
  • Роман Пономарёв
  • Валерия Преображенская
  • Виктория Раубо
  • Василий Рыбаков
  • Мария Салех
  • Александр Стариков
  • Илья Уткин
  • Дмитрий Шурыгин
  • Олег Шурыгин

Проект из каталога (случайный выбор)

Офисный комплекс в Турчанинове переулке
Александр Скокан, Андрей Гнездилов, 2004
Офисный комплекс в Турчанинове переулке

Постройки и проекты (новые записи):

  • Магнитогорский музыкальный театр
  • Конкурс на прибрежные кварталы района ALIA
  • Частный жилой дом
  • Речной вокзал в Твери. Новое здание
  • Pop-up библиотека в Бухаре
  • Мультибрендовый магазин PlePle
  • К-30. Летняя веранда легендарного клуба
  • Клубный дом Eden
  • МОП проекта Мангазея НАЗАРЕ

Новости российской архитектуры: