Центр фехтования
Фотография © Ильяс Дусеев / предоставлена Архитектурное бюро «Эйбл»
Центр фехтования
информация:
-
статус
реализовано -
даты
2022 — 2023 / 2023 — 2024 -
место
Уфа проспект Дружбы Народов, 45 -
координаты
54.767871, 55.918906 -
функция
Спортивный / Спорткомплекс -
теги
send.project -
площадь застройки
3 962,9 м2 -
общая площадь
6 287,17 м2 -
строительный объем
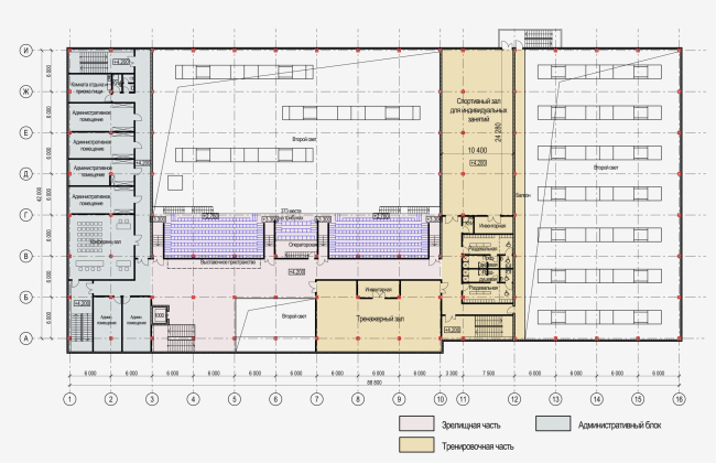
46 094,84 м3 - Вместимость трибун - 373 местра

Ильяс Дусеев
Россия
Лилия Дусеева
РоссияАрхитектурное бюро «Эйбл»
Able` / Россияавторский коллектив
партнеры, заказчики, смежники
Заказчик: ИСК г. Уфы
другие названия проекта
награды:
- GRAND-PRIX, KERAMA MARAZZI, Международный конкурс реализованных проектов, 1 Место в номинации «Материалы KERAMA-MARAZZI в инфраструктурных проектах» г.Уфа 2024 г.
Благодарность Республики Башкортостан «за вклад в строительство республиканских социально-значимых объектов»
Центр фехтования
Фотография © Ильяс Дусеев / предоставлена Архитектурное бюро «Эйбл»
Центр фехтования
Фотография © Ильяс Дусеев / предоставлена Архитектурное бюро «Эйбл»
история проекта:
Фехтование в России имеет давние традиции и богатую историю, а в последние годы этот вид спорта вновь набирает популярность. Особенно активно развивается фехтование в Башкортостане, где возникла потребность в специализированных спортивных объектах, способных обеспечить подготовку спортсменов на профессиональном уровне.
Строительство Центра фехтования в Уфе запланировано в рамках программы по развитию спортивной инфраструктуры региона и поддержке перспективных спортсменов. Проект предусматривает не только создание современных тренировочных залов, но и обустройство выставочных пространств, где будут представлены достижения республиканских и российских фехтовальщиков. Это позволит сделать центр не просто местом для тренировок, но и культурным ядром, популяризирующим фехтование среди широкой аудитории.
Особое внимание уделено вопросам инклюзии – проект адаптирован для посещения и занятий спортом людьми с ограниченными возможностями здоровья.
Создание Центра фехтования в Уфе станет важным шагом в развитии спортивной инфраструктуры Башкортостана, укрепит позиции региона на федеральном уровне и даст импульс развитию фехтования как массового и элитарного вида спорта.
описание:
Архитектурный облик здания решен в современном лаконичном стиле. Перед проектной командой стояла задача создать динамичный и выразительный объем, отражающий спортивный характер объекта. В основу дизайн-кода лег образ фехтовальщика – белый костюм и металлическая сетчатая маска. Эта ассоциация нашла отражение в архитектуре: фасады выполнены в светлых тонах с применением перфорированных алюминиевых панелей, а динамику композиции подчеркивает изогнутый козырек над главным входом.
Объем Центра фехтования представляет собой двухэтажное прямоугольное здание с композиционно выделенной центральной входной группой. Принцип оформления фасадов основан на контрасте стеклянных и глухих поверхностей, выполненных в монохромной гамме светлых оттенков. Главный фасад ориентирован в сторону проспекта Дружбы Народов, с которого осуществляется основной вход в здание. Центр расположен в перспективном квартале, предназначенном под жилую застройку.
В отделке фасадов использована система навесного вентилируемого фасада U-Kon с финишной облицовкой алюминиевыми и перфорированными панелями «BILDEX». В качестве утеплителя применена минераловатная плита. Цоколь крыльца и входной площадки облицован натуральным камнем. Витражное остекление выполнено по структурной безимпостной системе «Алютех» с двухкамерными стеклопакетами и многофункциональным стеклом AGC. Козырьки выполнены из стеклянных полотен триплекс AGC.
Центр фехтования
Фотография © Ильяс Дусеев / предоставлена Архитектурное бюро «Эйбл»
Центр фехтования
Фотография © Ильяс Дусеев / предоставлена Архитектурное бюро «Эйбл»
Центр фехтования
Фотография © Ильяс Дусеев / предоставлена Архитектурное бюро «Эйбл»
Центр фехтования
Фотография © Ильяс Дусеев / предоставлена Архитектурное бюро «Эйбл»
Центр фехтования
Фотография © Ильяс Дусеев / предоставлена Архитектурное бюро «Эйбл»
Центр фехтования
Фотография © Ильяс Дусеев / предоставлена Архитектурное бюро «Эйбл»
Центр фехтования
Фотография © Ильяс Дусеев / предоставлена Архитектурное бюро «Эйбл»
Центр фехтования
Фотография © Ильяс Дусеев / предоставлена Архитектурное бюро «Эйбл»
Центр фехтования
Фотография © Ильяс Дусеев / предоставлена Архитектурное бюро «Эйбл»
Центр фехтования
Фотография © Ильяс Дусеев / предоставлена Архитектурное бюро «Эйбл»
Центр фехтования
Фотография © Ильяс Дусеев / предоставлена Архитектурное бюро «Эйбл»
Центр фехтования
Фотография © Ильяс Дусеев / предоставлена Архитектурное бюро «Эйбл»
Центр фехтования
Фотография © Ильяс Дусеев / предоставлена Архитектурное бюро «Эйбл»
Центр фехтования
Фотография © Ильяс Дусеев / предоставлена Архитектурное бюро «Эйбл»
Центр фехтования
Фотография © Ильяс Дусеев / предоставлена Архитектурное бюро «Эйбл»
Центр фехтования
Фотография © Ильяс Дусеев / предоставлена Архитектурное бюро «Эйбл»
Центр фехтования
Фотография © Ильяс Дусеев / предоставлена Архитектурное бюро «Эйбл»
Центр фехтования
Фотография © Ильяс Дусеев / предоставлена Архитектурное бюро «Эйбл»
Центр фехтования
Фотография © Ильяс Дусеев / предоставлена Архитектурное бюро «Эйбл»
Центр фехтования
Фотография © Ильяс Дусеев / предоставлена Архитектурное бюро «Эйбл»
Центр фехтования
Фотография © Ильяс Дусеев / предоставлена Архитектурное бюро «Эйбл»
Центр фехтования
Фотография © Ильяс Дусеев / предоставлена Архитектурное бюро «Эйбл»
Центр фехтования
Фотография © Ильяс Дусеев / предоставлена Архитектурное бюро «Эйбл»
Центр фехтования
Фотография © Ильяс Дусеев / предоставлена Архитектурное бюро «Эйбл»
Центр фехтования
Фотография © Ильяс Дусеев / предоставлена Архитектурное бюро «Эйбл»
Центр фехтования
Фотография © Ильяс Дусеев / предоставлена Архитектурное бюро «Эйбл»
Центр фехтования
Фотография © Ильяс Дусеев / предоставлена Архитектурное бюро «Эйбл»
Центр фехтования
Фотография © Ильяс Дусеев / предоставлена Архитектурное бюро «Эйбл»
Центр фехтования
© Архитектурное бюро «Эйбл»
Центр фехтования
© Архитектурное бюро «Эйбл»
Центр фехтования
© Архитектурное бюро «Эйбл»
Архитекторы – партнеры Архи.ру:
Проект из каталога (случайный выбор)
