RSS
Проект часовни-купели в честь святого блаженного Иоанна Устюжского
Фотография © Мастерская «Прохрам»

Проект часовни-купели в честь святого блаженного Иоанна Устюжского

информация:

Дмитрий Остроумов
Мастерская «Прохрам»

авторский коллектив

Руководитель проекта – Дмитрий Остроумов; архитектор – Мария Королева; художник – Ирина Брель; визуализатор – Полина Аскарова

награды:

    Серебряный диплом «Дерево в Архитектуре 2024» 
Проект часовни-купели в честь святого блаженного Иоанна Устюжского
Фотография © Мастерская «Прохрам»
Проект часовни-купели в честь святого блаженного Иоанна Устюжского
Фотография © Мастерская «Прохрам»

описание:

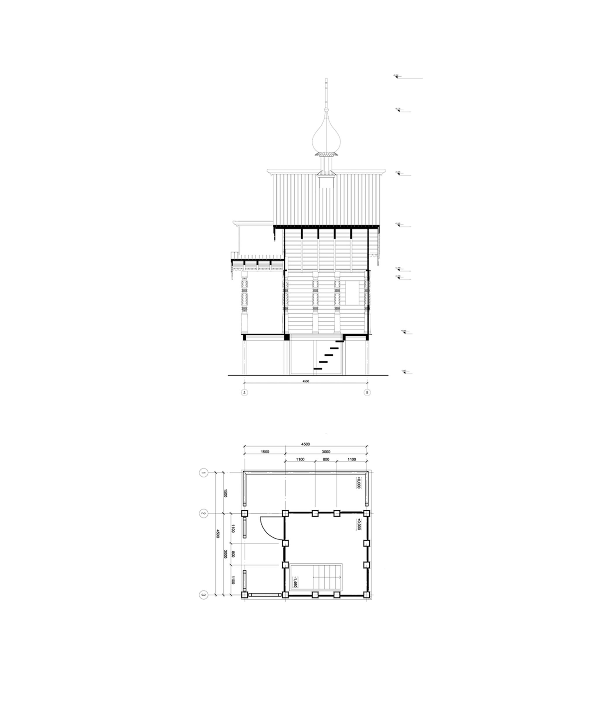
Часовня-купель расположена близ города Великий Устюг, в деревне Морозовица, на месте святого источника, находящегося у разрушенного храма. Именно здесь подвизался святой, в честь которого устроены и храм, и сам источник.

Близость грунтовых вод и бьющий из земли родник позволили организовать купель внутри часовни. От храма, расположенного выше по склону, к часовне ведёт каменная лестница.
Со стороны главного фасада здание имеет крыльцо-террасу, перекрытую скатной кровлей с кокошником.

Проектом предусмотрено несколько способов использования источника:
– возможность окунания в купель внутри часовни;
– возможность набора воды в специально выделенном месте;
– организация проточной воды через купель, чтобы каждый входящий мог окунуться в обновлённую, свежую воду.

Архитектурный облик часовни опирается на традиции северного деревянного зодчества.
Здание богато украшено резными элементами, кровля завершена главкой с крестом, а лемеховое покрытие используется на главке и кокошнике.
На главном фасаде, у входа, размещена резная икона святого блаженного Иоанна Устюжского, подчёркивающая сакральный характер сооружения.

Проект часовни-купели в честь святого блаженного Иоанна Устюжского
Фотография © Мастерская «Прохрам»
Проект часовни-купели в честь святого блаженного Иоанна Устюжского
Фотография © Мастерская «Прохрам»
Проект часовни-купели в честь святого блаженного Иоанна Устюжского
Фотография © Мастерская «Прохрам»
Проект часовни-купели в честь святого блаженного Иоанна Устюжского
© Мастерская «Прохрам»
Проект часовни-купели в честь святого блаженного Иоанна Устюжского
© Мастерская «Прохрам»
Проект часовни-купели в честь святого блаженного Иоанна Устюжского
© Мастерская «Прохрам»
Проект часовни-купели в честь святого блаженного Иоанна Устюжского
© Мастерская «Прохрам»
Проект часовни-купели в честь святого блаженного Иоанна Устюжского
© Мастерская «Прохрам»
Проект часовни-купели в честь святого блаженного Иоанна Устюжского
© Мастерская «Прохрам»
Проект часовни-купели в честь святого блаженного Иоанна Устюжского
© Мастерская «Прохрам»

Архитекторы – партнеры Архи.ру:

  • Юлия Солдатенкова
  • Дмитрий Ликин
  • Марина Егорова
  • Виталий Лутц
  • Андрей Романов
  • Антон Яр-Скрябин
  • Раис Баишев
  • Сергей Скуратов
  • Александр Скокан
  • Полина Воеводина
  • Михаил Канунников
  • Евгений Зеленов
  • Вера Бутко
  • Даниил Лоренц
  • Александра Кузьмина
  • Владимир Плоткин
  • Алексей Гинзбург
  • Роман Леонидов
  • Иван Кожин
  • Энди Сноу
  • Сергей Переслегин
  • Андрей Асадов
  • Николай Кикава
  • Николай Переслегин
  • Ерлан Бекмухамедов
  • Игорь Шварцман
  • Наталия Шилова
  • Татьяна Зульхарнеева
  • Анна Иванова
  • Константин Ходнев
  • Игорь Членов
  • Владислав Андреев
  • Сергей Труханов
  • Андрей Михайлов
  • Сергей Кузнецов
  • Елена Пучкова
  • Валерий Каняшин
  • Зураб Басария
  • Дмитрий Сухов
  • Александр Асадов
  • Дмитрий Остроумов
  • Анастасия Абашева
  • Александр Самарин
  • Станислав Белых
  • Евгений Подгорнов
  • Юлиана Княжевская
  • Евгений Новосадюк
  • Степан Липгарт
  • Олег Мединский
  • Георгий Трофимов
  • Юлий Борисов
  • Михаил Давыдов
  • Никита Явейн
  • Екатерина Кузнецова
  • Александр Котенков
  • Василий Крапивин
  • Дмитрий Буш
  • Григориос Гавалидис
  • Наталья Сидорова
  • Всеволод Медведев
  • Андрей Гнездилов
  • Сергей Никешкин
  • Антон Надточий
  • Сергей Чобан
  • Илья Машков
  • Юлия Тряскина
  • Андрей Чуйков
  • Павел Андреев
  • Олег Шапиро
  • Алексей Орлов
  • Ростислав Цайзер
  • Григорий Мустафин
  • Тимур Абдуллаев
  • Екатерина Абдуллаева
  • Маргарита Авдышева
  • Левон Айрапетов
  • Александр Аношкин
  • Алексей Афоничкин
  • Владислав Бек-Булатов
  • Антон Белов
  • Татьяна Бузулукова
  • Петр Васильев
  • Алина Георгиевская
  • Павел Гордеев
  • Илья Гринберг
  • Никита Демидов
  • Никита Дергунов
  • Наталья Жилкина
  • Алексей Зародов
  • Екатерина Зырина
  • Алексей Ильин
  • Дарья Ильина
  • Олег Карлсон
  • Алексей Кибкало
  • Денис Кувшинников
  • Анна Куликова
  • Алексей Курков
  • Алексей Курков
  • Данил Куров
  • Мария Кутай
  • Евгений Кутай
  • Антон Ладыгин
  • Антон Ладыгин
  • Дмитрий Лапин
  • Катерина Левянт
  • Илья Левянт
  • Борис Левянт
  • Антон Лукомский
  • Валерий Лукомский
  • Екатерина Ляпунова
  • Сергей Марков
  • Николай Миловидов
  • Станислав Михаловский
  • Олеся Могилевская
  • Мария Николаева
  • Виктор Перов
  • Алексей Полищук
  • Роман Пономарёв
  • Валерия Преображенская
  • Виктория Раубо
  • Василий Рыбаков
  • Мария Салех
  • Александр Стариков
  • Илья Уткин
  • Дмитрий Шурыгин
  • Олег Шурыгин

Проект из каталога (случайный выбор)

Школа скульптуры А. И. Рукавишникова
Александра Кузьмина, Илья Машков, – 2012
Школа скульптуры А. И. Рукавишникова

Постройки и проекты (новые записи):

  • Проект общественно-делового комплекса у станции метро «Ботанический Сад» / Genpro
  • Проект общественно-делового комплекса у станции метро «Ботанический Сад» / UNK
  • Дворец бильярда в Мневниковской пойме
  • БЦ в Раменках
  • Бизнес-центр (на месте ТЦ «Старт»)
  • DELO HOUSE 3.2 с флигелем
  • Ледовый дворец Navka Arena
  • Благоустройство территории ЖК Holms Residence
  • Игровое пространство у театра им. Г.К. Камала

Новости российской архитектуры:

Потенциальные примечательности. Обзор проектов 16–22 февраля 2026
22.02.2026

Потенциальные примечательности. Обзор проектов 16–22 февраля 2026

Евгений Зеленов, Юлий Борисов, Амир Идиатулин, Николай Гордюшин, Александр Аношкин, Мария Салех, Никита Дергунов
Визуальная чистота
20.02.2026

Визуальная чистота

Александр Жидков, Михаил Гуманков
Кирпичная вуаль
20.02.2026

Кирпичная вуаль

Айк Навасардян, Рубен Аракелян