RSS
ЖК Каскад. Дом 10
Фотография предоставлена Архитектурная мастерская Евгения Таева

ЖК Каскад

информация:

  • статус
    реализовано
  • даты
    20192022 / 20212025
  • region= area= address=проезд Алексея Афанасьева, 1, 3, 5, 7 country_t=Россия city_t=Петрозаводск
    место
    Петрозаводск проезд Алексея Афанасьева, 1, 3, 5, 7
  • координаты
    61.766011, 34.293478
  • функция
    Жилой / жилой комплекс
  • теги
    send.project
  • общая площадь
    83 990 м2
  • этажность
    6-8-9-22
  • строительный объем
    315 550 м3
Евгений Таев
Россия

авторский коллектив

Автор проекта – архитектор Евгений Таев

партнеры, заказчики, смежники

Разработка проектной документации – Инженерный центр Штрих

Заказчик: Строительная компания ВЕК
ЖК Каскад. Дом 9
Фотография предоставлена Архитектурная мастерская Евгения Таева

Архи.ру об этом объекте:

29.01.2026

Каскад форм

Жилой комплекс «Каскад» в Петрозаводске формирует композиционный центр нового микрорайона и отличается повышенной живописностью. Обилие приемов и цвета при всем разнообразии создает гармоничный образ.

ЖК Каскад в Петрозаводске проектировался в рамках развития нового микрорайона Древлянка-9. На роль его композиционного центра проект претендует не только потому, что располагается на возвышенности, но и чисто геометрически он вписан в окружность,...   читать дальше
ЖК Каскад. Дом 9
Фотография предоставлена Архитектурная мастерская Евгения Таева

история проекта:

астройка центральной части жилого комплекса выполнена в соответствии с общей концепцией развития территории микрорайона «Древлянка-9» жилого района «Древлянка-II» в Петрозаводске.

описание:

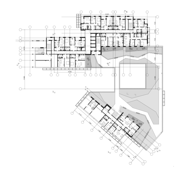
Участок застройки расположен на возвышенности и является композиционным центром жилого района. Жилой дом № 12 занимает доминирующее положение и завершает планировочную ось микрорайона, проходящую по пешеходному бульвару от сквера на улице Попова до раскрытия в сторону микрорайона «Древлянка-8». Жилые дома № 9, 10 и 11 расположены вдоль радиального проезда. Главные фасады домов № 9 и № 12 формируют фронт застройки со стороны перспективной автомагистрали. Переменная этажность квартала – от 6 до 22 этажей – в полной мере отражает название микрорайона.
ЖК Каскад
Фотография предоставлена Архитектурная мастерская Евгения Таева
ЖК Каскад
Фотография предоставлена Архитектурная мастерская Евгения Таева
ЖК Каскад
Фотография предоставлена Архитектурная мастерская Евгения Таева
ЖК Каскад
Фотография предоставлена Архитектурная мастерская Евгения Таева
ЖК Каскад
Фотография предоставлена Архитектурная мастерская Евгения Таева
ЖК Каскад. Дом 10
Фотография предоставлена Архитектурная мастерская Евгения Таева
ЖК Каскад. Дом 11
Фотография предоставлена Архитектурная мастерская Евгения Таева
ЖК Каскад. Дом 11
Фотография предоставлена Архитектурная мастерская Евгения Таева
ЖК Каскад. Дом 12
Фотография предоставлена Архитектурная мастерская Евгения Таева
ЖК Каскад. Дом 12
Фотография предоставлена Архитектурная мастерская Евгения Таева
ЖК Каскад. Дом 12
Фотография предоставлена Архитектурная мастерская Евгения Таева
ЖК Каскад. Дом 11
Фотография предоставлена Архитектурная мастерская Евгения Таева
ЖК Каскад. Дом 10
Фотография предоставлена Архитектурная мастерская Евгения Таева
ЖК Каскад. Дом 5
Фотография предоставлена Архитектурная мастерская Евгения Таева
ЖК Каскад. Дом 12
Фотография предоставлена Архитектурная мастерская Евгения Таева
ЖК Каскад. Дом 12
Фотография предоставлена Архитектурная мастерская Евгения Таева
ЖК Каскад. Дом 12
Фотография предоставлена Архитектурная мастерская Евгения Таева
ЖК Каскад. Дом 9
Фотография предоставлена Архитектурная мастерская Евгения Таева
ЖК Каскад. Дом 12
Фотография предоставлена Архитектурная мастерская Евгения Таева
ЖК Каскад. Дом 12
Фотография предоставлена Архитектурная мастерская Евгения Таева
ЖК Каскад. Дом 12
Фотография предоставлена Архитектурная мастерская Евгения Таева
ЖК Каскад. Дом 12
Фотография предоставлена Архитектурная мастерская Евгения Таева
ЖК Каскад. Дом 12
Фотография предоставлена Архитектурная мастерская Евгения Таева
ЖК Каскад. Дом 12
Фотография предоставлена Архитектурная мастерская Евгения Таева
ЖК Каскад
Фотография предоставлена Архитектурная мастерская Евгения Таева
ЖК Каскад
Фотография предоставлена Архитектурная мастерская Евгения Таева
ЖК Каскад
Фотография предоставлена Архитектурная мастерская Евгения Таева
ЖК Каскад
Фотография предоставлена Архитектурная мастерская Евгения Таева
ЖК Каскад
Фотография предоставлена Архитектурная мастерская Евгения Таева
ЖК Каскад
Фотография предоставлена Архитектурная мастерская Евгения Таева
ЖК Каскад
Фотография предоставлена Архитектурная мастерская Евгения Таева
ЖК Каскад
Фотография предоставлена Архитектурная мастерская Евгения Таева
ЖК Каскад
Фотография предоставлена Архитектурная мастерская Евгения Таева
ЖК Каскад
Фотография предоставлена Архитектурная мастерская Евгения Таева
ЖК Каскад
Фотография предоставлена Архитектурная мастерская Евгения Таева
ЖК Каскад
Фотография предоставлена Архитектурная мастерская Евгения Таева
ЖК Каскад
Фотография предоставлена Архитектурная мастерская Евгения Таева
ЖК Каскад. Фасады. Дом 9
© Архитектурная мастерская Евгения Таева
ЖК Каскад. Фасады. Дом 9
© Архитектурная мастерская Евгения Таева
ЖК Каскад. Фасады. Дом 9
© Архитектурная мастерская Евгения Таева
ЖК Каскад. Фасады. Дом 9
© Архитектурная мастерская Евгения Таева
ЖК Каскад. Фасады. Дом 10
© Архитектурная мастерская Евгения Таева
ЖК Каскад. Фасады. Дом 10
© Архитектурная мастерская Евгения Таева
ЖК Каскад. Фасады. Дом 10
© Архитектурная мастерская Евгения Таева
ЖК Каскад. Фасады. Дом 10
© Архитектурная мастерская Евгения Таева
ЖК Каскад. Фасады. Дом 11
© Архитектурная мастерская Евгения Таева
ЖК Каскад. Фасады. Дом 11
© Архитектурная мастерская Евгения Таева
ЖК Каскад. Главный фасад. Дом 12
© Архитектурная мастерская Евгения Таева
ЖК Каскад. Дворовый фасад. Дом 12
© Архитектурная мастерская Евгения Таева
ЖК Каскад. Севрный фасад. Дом 12
© Архитектурная мастерская Евгения Таева
ЖК Каскад. Генплан
© Архитектурная мастерская Евгения Таева
ЖК Каскад. Дом 12. План 1 этажа
© Архитектурная мастерская Евгения Таева
ЖК Каскад. Дом 12. План 2 этажа
© Архитектурная мастерская Евгения Таева
ЖК Каскад. Дом 9. Типовой этаж
© Архитектурная мастерская Евгения Таева
ЖК Каскад. Дом 10. Типовой этаж
© Архитектурная мастерская Евгения Таева
ЖК Каскад. Дом 11. Палн типового этажа
© Архитектурная мастерская Евгения Таева
ЖК Каскад. Дом 12. План типового этажа
© Архитектурная мастерская Евгения Таева
ЖК Каскад. Дом 12. План типового этажа
© Архитектурная мастерская Евгения Таева

Архитекторы – партнеры Архи.ру:

  • Илья Машков
  • Сергей Чобан
  • Ростислав Цайзер
  • Сергей Переслегин
  • Валерий Каняшин
  • Юлия Тряскина
  • Дмитрий Буш
  • Алексей Орлов
  • Василий Крапивин
  • Татьяна Зульхарнеева
  • Андрей Асадов
  • Юлиана Княжевская
  • Владислав Андреев
  • Александр Котенков
  • Андрей Гнездилов
  • Михаил Канунников
  • Игорь Членов
  • Владимир Плоткин
  • Станислав Белых
  • Зураб Басария
  • Дмитрий Остроумов
  • Вера Бутко
  • Антон Надточий
  • Степан Липгарт
  • Григориос Гавалидис
  • Ерлан Бекмухамедов
  • Григорий Мустафин
  • Александр Самарин
  • Виталий Лутц
  • Павел Андреев
  • Марина Егорова
  • Юлий Борисов
  • Анастасия Абашева
  • Сергей Скуратов
  • Евгений Зеленов
  • Константин Ходнев
  • Мария Ахременкова
  • Николай Кикава
  • Никита Явейн
  • Георгий Трофимов
  • Олег Шапиро
  • Николай Переслегин
  • Елена Пучкова
  • Андрей Михайлов
  • Антон Яр-Скрябин
  • Наталия Шилова
  • Иван Кожин
  • Сергей Кузнецов
  • Евгений Подгорнов
  • Борис Воскобойников
  • Евгений Новосадюк
  • Сергей Труханов
  • Михаил Давыдов
  • Дмитрий Ликин
  • Раис Баишев
  • Екатерина Кузнецова
  • Наталья Сидорова
  • Игорь Шварцман
  • Полина Воеводина
  • Александр Скокан
  • Сергей Никешкин
  • Всеволод Медведев
  • Александр Асадов
  • Даниил Лоренц
  • Андрей Романов
  • Дмитрий Сухов
  • Александра Кузьмина
  • Юлия Солдатенкова
  • Олег Мединский
  • Энди Сноу
  • Тимур Абдуллаев
  • Екатерина Абдуллаева
  • Маргарита Авдышева
  • Левон Айрапетов
  • Александр Аношкин
  • Алексей Афоничкин
  • Владислав Бек-Булатов
  • Антон Белов
  • Татьяна Бузулукова
  • Петр Васильев
  • Данило Вукосавлевич
  • Алина Георгиевская
  • Павел Гордеев
  • Илья Гринберг
  • Никита Демидов
  • Никита Дергунов
  • Наталья Жилкина
  • Алексей Зародов
  • Екатерина Зырина
  • Алексей Ильин
  • Дарья Ильина
  • Олег Карлсон
  • Алексей Кибкало
  • Денис Кувшинников
  • Анна Куликова
  • Алексей Курков
  • Данил Куров
  • Мария Кутай
  • Евгений Кутай
  • Иван Кычкин
  • Антон Ладыгин
  • Дмитрий Лапин
  • Борис Левянт
  • Илья Левянт
  • Катерина Левянт
  • Валерий Лукомский
  • Антон Лукомский
  • Екатерина Ляпунова
  • Иса Магомедов
  • Сергей Марков
  • Елена Мерцалова
  • Николай Миловидов
  • Станислав Михаловский
  • Сергей Мичурин
  • Олеся Могилевская
  • Филипп Никандров
  • Мария Николаева
  • Дмитрий Овчаров
  • Сергей Пергаев
  • Виктор Перов
  • Алексей Полищук
  • Роман Пономарёв
  • Валерия Преображенская
  • Виктория Раубо
  • Василий Рыбаков
  • Николай Рыбаков
  • Мария Салех
  • Александр Стариков
  • Илья Уткин
  • Елисей Чакан
  • Бориша Чорович
  • Олег Шурыгин
  • Дмитрий Шурыгин

Проект из каталога (случайный выбор)

Постройки и проекты (новые записи):

  • Деловое пространство «ПЛЭЙН»
  • Конкурсный проект ФИЦ / ТПО «Резерв»
  • Porta
  • Детский сад на 200 мест в Жилино-1
  • Архитектурная концепция кластера Ломоносов-2
  • Клубный дом в 1-м Казачьем переулке
  • Частный дом в Ленинградской области
  • IT-кластер TravelLine в Йошкар-Оле
  • Гостиничный комплекс Cosmos Selection Derbent 5

Новости российской архитектуры:

КиноГолограмма
12.05.2026

КиноГолограмма

Николай Переслегин, Сергей Переслегин, Георгий Трофимов
Форма как метод: ТПО «Резерв»
12.05.2026

Форма как метод: ТПО «Резерв»

Владимир Плоткин
Консервация как комментарий
12.05.2026

Консервация как комментарий

Наринэ Тютчева