RSS
Детейлинг-центр
© VFORM

Детейлинг-центр

информация:

Владислав Бек-Булатов
VFORM

авторский коллектив

ГАП – Владислав Бек-Булатов; архитектор – Илья Изотов, Дарья Ильина

Детейлинг-центр
© VFORM
Детейлинг-центр
© VFORM

история проекта:

Территория, на которой расположен объект, изначально задумывалась как комплекс из трёх зданий, объединённых общим пространством с техническими зонами, парковками и зонами отдыха, имеющими выходы в прилегающий лес.

Перед командой стояла задача разработать концепцию благоустройства и переосмыслить архитектурный облик зданий, придав им выразительность и современный характер. Требовалось создать уникальный и узнаваемый образ, объединяющий все постройки в единую композицию.

Для этого была разработана новая архитектурная концепция, включающая динамичную пластику фасадов, консольные элементы, панорамное ленточное остекление и единую палитру современных материалов. Параллельно пересмотрена планировочная структура, что позволило улучшить функциональные связи и сделать пространство более удобным для пользователей.

В результате удалось сформировать цельный архитектурный образ комплекса. Здание Детейлинг-центра стало акцентным элементом городской среды – современным и выразительным ориентиром, задающим импульс развитию новой территории.

описание:

Детейлинг-центр в Москве, спроектированный архитектурной студией VForm, – современный многофункциональный комплекс площадью 738 м², воплощающий эстетику и динамику автомобильной культуры.

Архитектура здания вдохновлена формами и визуальным языком индустрии автодизайна, что отражается в пластике фасада и подборе материалов. Фасад общей площадью 789 м² облицован фиброцементными панелями, алюкобондом и медными вставками – эти материалы подчеркивают технологичность и современный характер объекта.

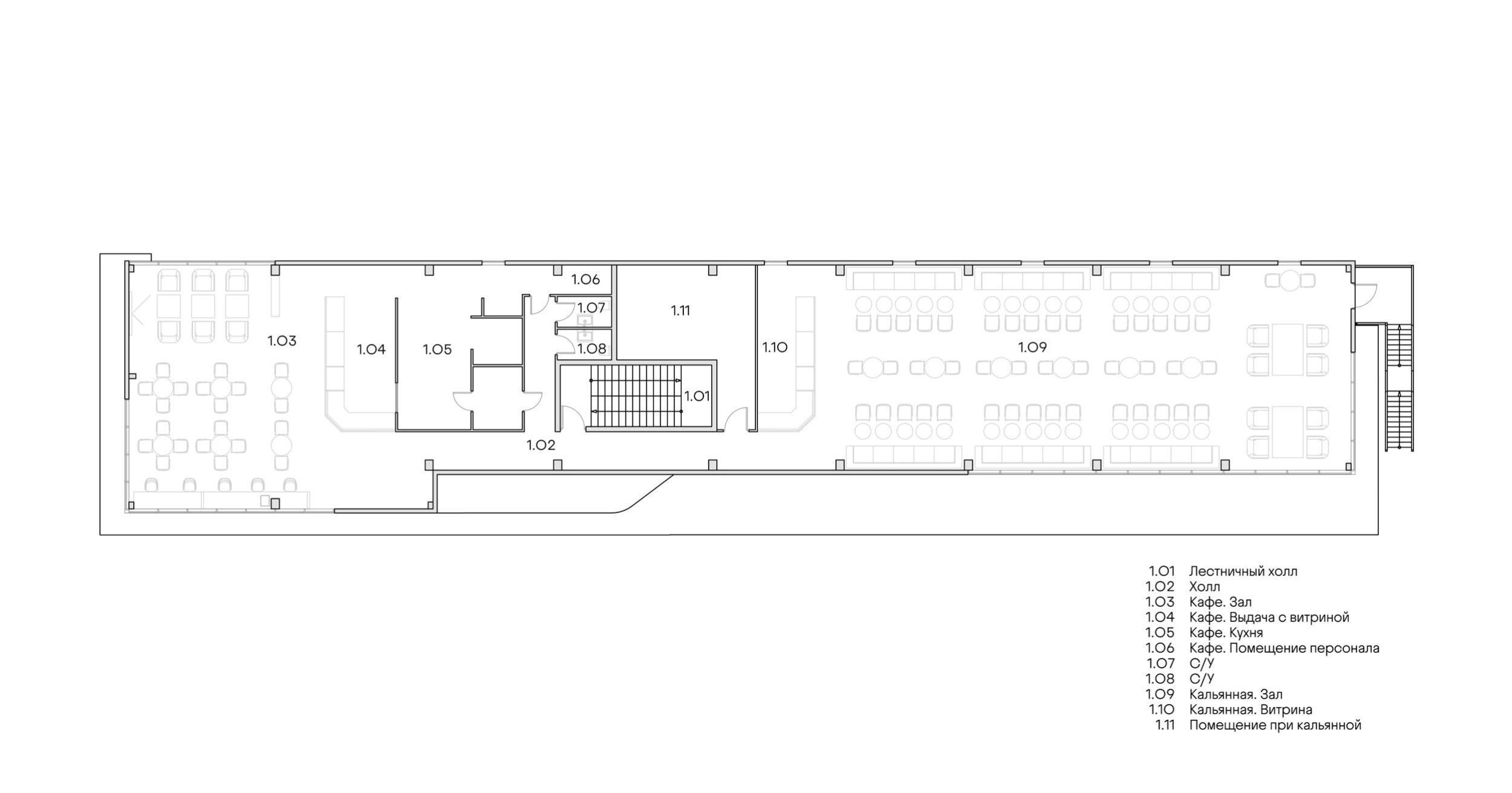
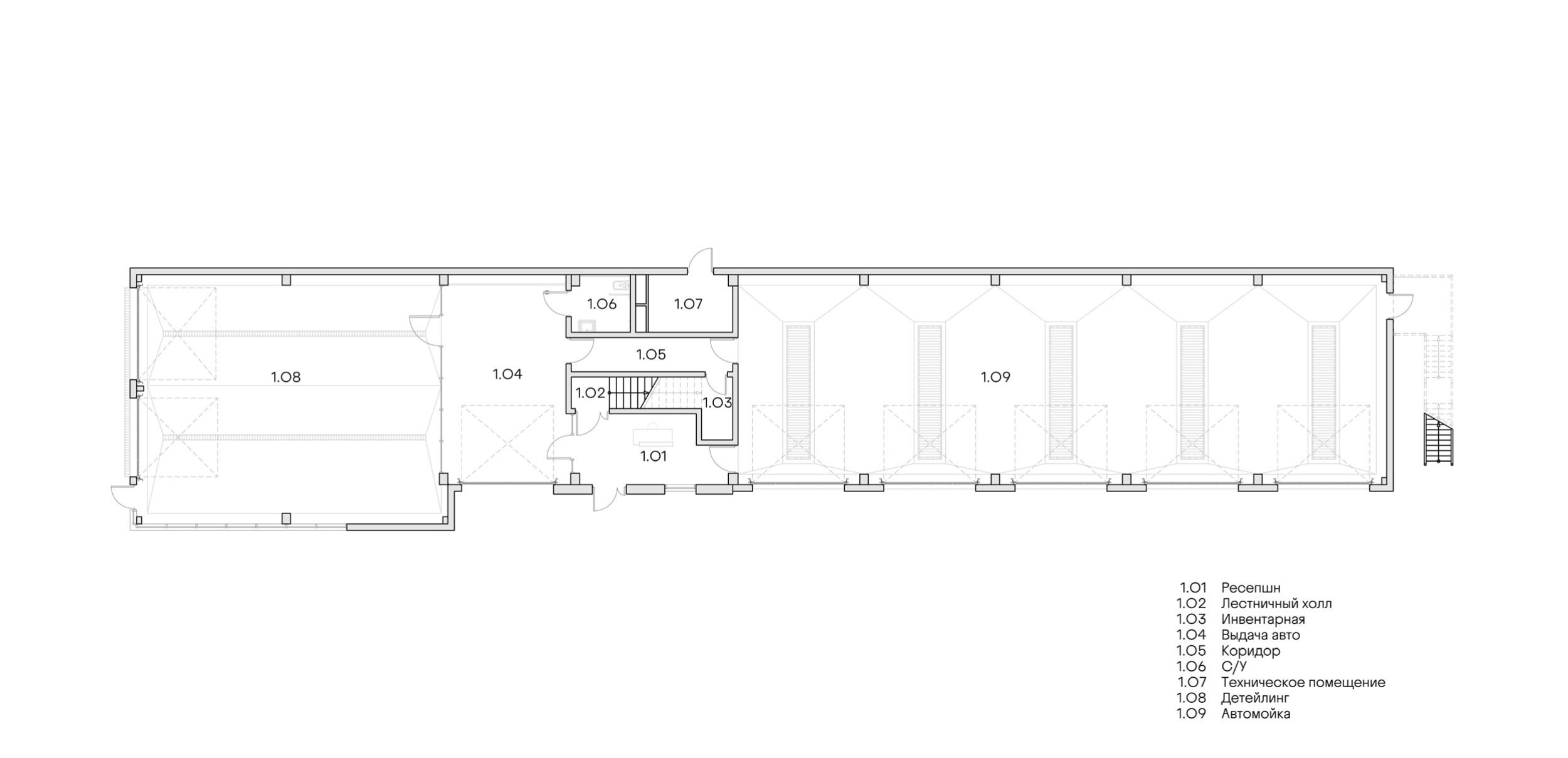
Архитектурная концепция строится на синтезе функциональности и выразительности. Первый этаж отведён под зону технического обслуживания – боксы профессиональной автомойки и студии детейлинга. Второй этаж формирует общественное пространство с кафе, полноценной кухней и кальянной, превращая здание из утилитарного объекта в место общения и отдыха для автолюбителей и гостей.

Проект направлен на формирование сообщества вокруг автомобильной культуры. Продуманное зонирование, выразительная архитектура и возможность проведения мероприятий – от выставок до встреч автоклубов – делают центр точкой притяжения и частью культурного ландшафта города.

Детейлинг-центр от VForm – это не просто сервис, а современное общественное пространство, где архитектура становится инструментом создания идентичности, эмоций и новых сценариев взаимодействия человека, города и автомобиля.

Детейлинг-центр
© VFORM
Детейлинг-центр
© VFORM
Детейлинг-центр
© VFORM
Детейлинг-центр. План 1 этажа
© VFORM
Детейлинг-центр. План 2 этажа
© VFORM

Архитекторы – партнеры Архи.ру:

  • Александр Скокан
  • Игорь Членов
  • Юлий Борисов
  • Олег Мединский
  • Андрей Асадов
  • Михаил Давыдов
  • Владислав Андреев
  • Александра Кузьмина
  • Татьяна Зульхарнеева
  • Николай Переслегин
  • Сергей Переслегин
  • Всеволод Медведев
  • Зураб Басария
  • Иван Кожин
  • Александр Асадов
  • Юлия Тряскина
  • Юлиана Княжевская
  • Антон Яр-Скрябин
  • Станислав Белых
  • Юлия Солдатенкова
  • Ростислав Цайзер
  • Александр Котенков
  • Николай Кикава
  • Энди Сноу
  • Наталья Сидорова
  • Сергей Чобан
  • Евгений Новосадюк
  • Марина Егорова
  • Павел Андреев
  • Илья Машков
  • Василий Крапивин
  • Даниил Лоренц
  • Никита Явейн
  • Сергей Кузнецов
  • Олег Шапиро
  • Андрей Михайлов
  • Георгий Трофимов
  • Мария Ахременкова
  • Дмитрий Ликин
  • Евгений Подгорнов
  • Полина Воеводина
  • Андрей Гнездилов
  • Ерлан Бекмухамедов
  • Сергей Скуратов
  • Екатерина Кузнецова
  • Михаил Канунников
  • Григориос Гавалидис
  • Игорь Шварцман
  • Борис Воскобойников
  • Сергей Никешкин
  • Андрей Романов
  • Алексей Орлов
  • Александр Самарин
  • Дмитрий Сухов
  • Раис Баишев
  • Константин Ходнев
  • Анастасия Абашева
  • Виталий Лутц
  • Наталия Шилова
  • Сергей Труханов
  • Антон Надточий
  • Степан Липгарт
  • Вера Бутко
  • Владимир Плоткин
  • Елена Пучкова
  • Григорий Мустафин
  • Валерий Каняшин
  • Дмитрий Буш
  • Евгений Зеленов
  • Дмитрий Остроумов
  • Тимур Абдуллаев
  • Екатерина Абдуллаева
  • Маргарита Авдышева
  • Левон Айрапетов
  • Александр Аношкин
  • Алексей Афоничкин
  • Владислав Бек-Булатов
  • Антон Белов
  • Татьяна Бузулукова
  • Петр Васильев
  • Данило Вукосавлевич
  • Алина Георгиевская
  • Павел Гордеев
  • Илья Гринберг
  • Никита Демидов
  • Никита Дергунов
  • Наталья Жилкина
  • Алексей Зародов
  • Екатерина Зырина
  • Алексей Ильин
  • Дарья Ильина
  • Олег Карлсон
  • Алексей Кибкало
  • Денис Кувшинников
  • Анна Куликова
  • Алексей Курков
  • Данил Куров
  • Мария Кутай
  • Евгений Кутай
  • Иван Кычкин
  • Антон Ладыгин
  • Дмитрий Лапин
  • Борис Левянт
  • Илья Левянт
  • Катерина Левянт
  • Валерий Лукомский
  • Антон Лукомский
  • Екатерина Ляпунова
  • Иса Магомедов
  • Сергей Марков
  • Елена Мерцалова
  • Николай Миловидов
  • Станислав Михаловский
  • Сергей Мичурин
  • Олеся Могилевская
  • Филипп Никандров
  • Мария Николаева
  • Дмитрий Овчаров
  • Сергей Пергаев
  • Виктор Перов
  • Алексей Полищук
  • Роман Пономарёв
  • Валерия Преображенская
  • Виктория Раубо
  • Василий Рыбаков
  • Николай Рыбаков
  • Мария Салех
  • Александр Стариков
  • Илья Уткин
  • Елисей Чакан
  • Бориша Чорович
  • Олег Шурыгин
  • Дмитрий Шурыгин

Проект из каталога (случайный выбор)

Концепция интерьеров Рижского вокзала
Алексей Горяинов, Михаил Крымов, 2010 – 2010
Концепция интерьеров Рижского вокзала

Постройки и проекты (новые записи):

  • Гостиница в Чите
  • ЖК Квартал 64
  • Деловое пространство «ПЛЭЙН»
  • Конкурсный проект ФИЦ / ТПО «Резерв»
  • Porta
  • Детский сад на 200 мест в Жилино-1
  • Архитектурная концепция кластера Ломоносов-2
  • Клубный дом в 1-м Казачьем переулке
  • Частный дом в Ленинградской области

Новости российской архитектуры:

КиноГолограмма
12.05.2026

КиноГолограмма

Николай Переслегин, Сергей Переслегин, Георгий Трофимов
Форма как метод: ТПО «Резерв»
12.05.2026

Форма как метод: ТПО «Резерв»

Владимир Плоткин
Консервация как комментарий
12.05.2026

Консервация как комментарий

Наринэ Тютчева