RSS
GREEN
Фотография © Маргарита Федина / предоставлена АРХИВУД

GREEN

информация:

  • статус
    реализовано
  • даты
    2023 / — 2024
  • region= area= address=Переделкино country_t=Россия city_t=
    место
    Переделкино
  • координаты
    55.657197, 37.326808
  • функция
    Жилой / индивидуальный жилой дом
  • теги
    send.project
  • общая площадь
    179,1 м2
  • этажность
    2
  • Террасы, крыльцо, балконы – 17,8 м²
Россия

авторский коллектив

Архитектор – Ольга Самошкина; дизайнер – Екатерина Бенеш

награды:

    Финалист премии АРХИWOOD – 2025 в номинации «Загородный дом» 
GREEN
Фотография © Маргарита Федина / предоставлена АРХИВУД

Архи.ру об этом объекте:

13.10.2025

Зеленая гостиная

Дом в Переделкино, построенный по проекту мастерской АРХИВУД, представляет собой вариацию на тему современной дачи. Лаконичное по архитектуре здание вписано в пространство между соснами, соответствует классу энергоэффективности «А» и предназначено как для уединения, так и совместного досуга большой семьи.

Описание предоставлено архитекторами Дом построен для семьи с пятью детьми как дополнительный «флигель»: он объединяет кухню, бильярдную, спальню и музыкальную студию, отвечая главному пожеланию владельцев жить в гармонии с природой, сохраняя комф...   читать дальше
GREEN
Фотография © Маргарита Федина / предоставлена АРХИВУД

история проекта:

Семья владельца дома уже много лет живёт за городом, но строительство на участке не прекращается: меняются интересы и потребности каждого из членов большой семьи с пятью детьми. Когда дети начали профессионально заниматься музыкой, возникла идея создать для них отдельную студию с хорошей акустикой и звукоизоляцией. Со временем замысел вырос в полноценный двухэтажный дом: здесь разместились кухня, бильярдная, спальня и отдельный вход в музыкальное пространство.

описание:

Современная интерпретация дачного дома воплотилась в двухэтажном коттедже в стиле экоминимализма. Он объединяет кухню, бильярдную, спальню и музыкальную студию, отвечая главному пожеланию владельцев: жить в гармонии с природой, сохраняя комфорт и уют для всей семьи.

Особое внимание уделялось сохранению деревьев на участке. Это бережное отношение к природе отразилось и в архитектуре: в использовании натуральных материалов, природных оттенков, лаконичных форм. Дом полностью выполнен «под ключ» – от фундамента до инженерных систем и отделки.

Экоминимализм здесь органично сочетается с энергосбережением: дом соответствует высокому классу энергоэффективности «А». Легкую деревянную конструкцию накрывает металлическая скатная кровля с минимальным уклоном в 7 градусов, скрытая высоким парапетом. Этот архитектурный элемент не только формирует современный силуэт, но и выполняет практическую функцию – предотвращает сход снега на террасы.

Интерьер продолжает архитектурную концепцию. Спокойная палитра природных оттенков, дерево, камень и простые формы создают атмосферу легкости и уюта. В то же время интерьер не лишён индивидуальности: тёплые акценты внесены за счёт авторской мебели и лестницы из фанеры, устланной ковром с традиционным орнаментом.

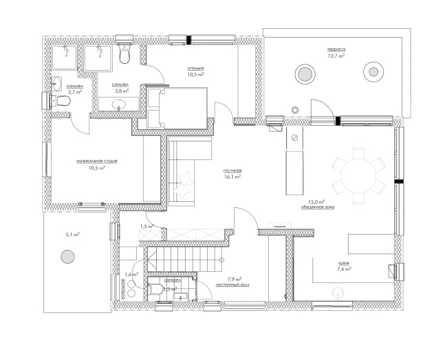
На первом этаже расположены гостиная-кинозал, кухня и столовая. Центральный элемент пространства – камин с двусторонней стеклянной дверцей, позволяющей любоваться огнём как из гостиной, так и из столовой. Кухня с окном, открывающим вид на лес, соединена с террасой. Её изюминка – фермерская мойка, изготовленная в столярном ателье АРХИWOOD, глубокая и функциональная, с бортиком, выступающим за фасад мебели.

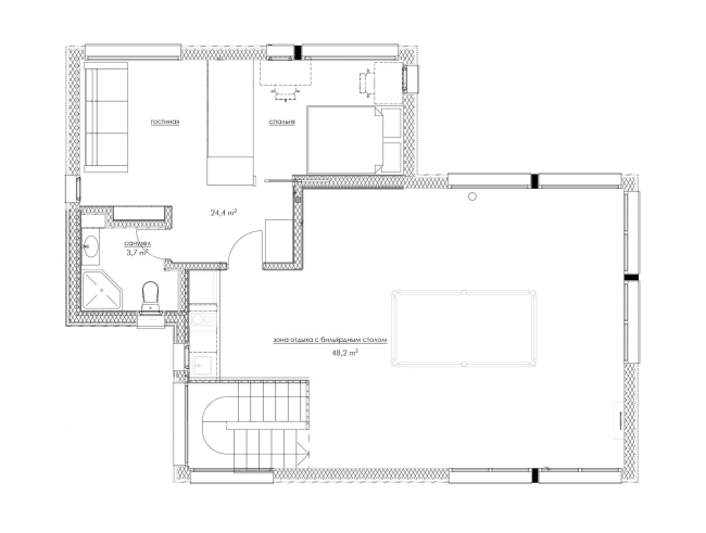
Отдельное место в доме занимает просторная бильярдная. Она изначально проектировалась под массивный игровой стол из ясеня, выполненный на заказ. Жёсткость этой древесины превосходит дуб, что делает стол особенно долговечным. Бильярдная объединена с игровой зоной, кухней и домашним кинотеатром, создавая общее пространство для общения и отдыха.

GREEN
Фотография © Маргарита Федина / предоставлена АРХИВУД
GREEN
Фотография © Маргарита Федина / предоставлена АРХИВУД
GREEN
Фотография © Маргарита Федина / предоставлена АРХИВУД
GREEN
Фотография © Маргарита Федина / предоставлена АРХИВУД
GREEN
Фотография © Маргарита Федина / предоставлена АРХИВУД
GREEN
Фотография © Маргарита Федина / предоставлена АРХИВУД
GREEN
Фотография © Маргарита Федина / предоставлена АРХИВУД
GREEN
Фотография © Маргарита Федина / предоставлена АРХИВУД
GREEN
Фотография © Маргарита Федина / предоставлена АРХИВУД
GREEN
Фотография © Маргарита Федина / предоставлена АРХИВУД
GREEN
Фотография © Маргарита Федина / предоставлена АРХИВУД
GREEN. План 1 этажа
© АРХИВУД
GREEN. План 2 этажа
© АРХИВУД

Архитекторы – партнеры Архи.ру:

  • Полина Воеводина
  • Николай Переслегин
  • Иван Кожин
  • Раис Баишев
  • Дмитрий Буш
  • Андрей Асадов
  • Григориос Гавалидис
  • Елена Пучкова
  • Георгий Трофимов
  • Сергей Переслегин
  • Евгений Подгорнов
  • Олег Шапиро
  • Виталий Лутц
  • Мария Ахременкова
  • Григорий Мустафин
  • Андрей Гнездилов
  • Вера Бутко
  • Василий Крапивин
  • Игорь Шварцман
  • Алексей Орлов
  • Антон Яр-Скрябин
  • Дмитрий Ликин
  • Илья Машков
  • Александра Кузьмина
  • Екатерина Кузнецова
  • Степан Липгарт
  • Ерлан Бекмухамедов
  • Дмитрий Остроумов
  • Наталия Шилова
  • Олег Мединский
  • Евгений Зеленов
  • Зураб Басария
  • Наталья Сидорова
  • Сергей Скуратов
  • Игорь Членов
  • Марина Егорова
  • Владислав Андреев
  • Юлия Тряскина
  • Дмитрий Сухов
  • Евгений Новосадюк
  • Сергей Труханов
  • Андрей Романов
  • Всеволод Медведев
  • Александр Асадов
  • Ростислав Цайзер
  • Александр Скокан
  • Андрей Михайлов
  • Константин Ходнев
  • Даниил Лоренц
  • Анастасия Абашева
  • Татьяна Зульхарнеева
  • Александр Самарин
  • Александр Котенков
  • Сергей Чобан
  • Сергей Никешкин
  • Николай Кикава
  • Юлия Солдатенкова
  • Никита Явейн
  • Юлиана Княжевская
  • Михаил Канунников
  • Валерий Каняшин
  • Михаил Давыдов
  • Сергей Кузнецов
  • Борис Воскобойников
  • Владимир Плоткин
  • Юлий Борисов
  • Энди Сноу
  • Антон Надточий
  • Станислав Белых
  • Павел Андреев
  • Тимур Абдуллаев
  • Екатерина Абдуллаева
  • Маргарита Авдышева
  • Левон Айрапетов
  • Александр Аношкин
  • Алексей Афоничкин
  • Владислав Бек-Булатов
  • Антон Белов
  • Татьяна Бузулукова
  • Петр Васильев
  • Данило Вукосавлевич
  • Алина Георгиевская
  • Павел Гордеев
  • Илья Гринберг
  • Никита Демидов
  • Никита Дергунов
  • Наталья Жилкина
  • Алексей Зародов
  • Екатерина Зырина
  • Алексей Ильин
  • Дарья Ильина
  • Олег Карлсон
  • Алексей Кибкало
  • Денис Кувшинников
  • Анна Куликова
  • Алексей Курков
  • Данил Куров
  • Мария Кутай
  • Евгений Кутай
  • Иван Кычкин
  • Антон Ладыгин
  • Дмитрий Лапин
  • Илья Левянт
  • Катерина Левянт
  • Борис Левянт
  • Валерий Лукомский
  • Антон Лукомский
  • Екатерина Ляпунова
  • Иса Магомедов
  • Сергей Марков
  • Елена Мерцалова
  • Николай Миловидов
  • Станислав Михаловский
  • Сергей Мичурин
  • Олеся Могилевская
  • Филипп Никандров
  • Мария Николаева
  • Дмитрий Овчаров
  • Сергей Пергаев
  • Виктор Перов
  • Алексей Полищук
  • Роман Пономарёв
  • Валерия Преображенская
  • Виктория Раубо
  • Василий Рыбаков
  • Николай Рыбаков
  • Мария Салех
  • Александр Стариков
  • Илья Уткин
  • Елисей Чакан
  • Бориша Чорович
  • Олег Шурыгин
  • Дмитрий Шурыгин

Проект из каталога (случайный выбор)

Жилой дом в Хилковом пер.,3
Юрий Григорян, 2007 – 2008
Жилой дом в Хилковом пер.,3

Постройки и проекты (новые записи):

  • Детский сад на 200 мест в Жилино-1
  • Архитектурная концепция кластера Ломоносов-2
  • Клубный дом в 1-м Казачьем переулке
  • Частный дом в Ленинградской области
  • IT-кластер TravelLine в Йошкар-Оле
  • Гостиничный комплекс Cosmos Selection Derbent 5
  • Офис компании АльфаСтрахование
  • MIDITI
  • Офис компании Kept

Новости российской архитектуры:

Звенья одной цепи
30.04.2026

Звенья одной цепи

Александр Федотов, Глеб Кожевников, Бокейхан Камза, Евгений Волков
IAD Awards 2026
29.04.2026

IAD Awards 2026