Тверицкие бани. Вид с пр. Авиаторов
© DK architects
Тверицкие бани
информация:
-
статус
проект -
даты
03. — 05.2025 -
место
Ярославль пр. Авиаторов, 35 -
координаты
57.643037, 39.916164 -
функция
Туризм/здравоохранение / Бани -
теги
send.project -
площадь участка
0,5725 га -
высота
10 -
этажность
2 -
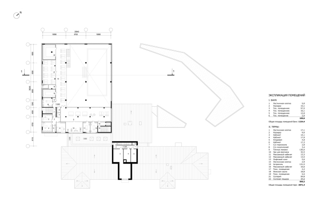
Общая площадь помещений бани – 1 154,4 м2
Общая площадь помещений терм – 2 971,4 м2
Общ. площадь павильонов – 199,9 м2
Общ. площадь веранды – 79,2 м2

Григорий Дайнов
Grigory Dainov / РоссияDK architects
Россияавторский коллектив
Рук., ГАП: Григорий Дайнов
Архитекторы: Роман Маврин, Алексей Лисовой, Ирина Зуева
Визуализатор: Максим Ходырев
Архитекторы: Роман Маврин, Алексей Лисовой, Ирина Зуева
Визуализатор: Максим Ходырев
партнеры, заказчики, смежники
Заказчик: Тверицкие бани
Тверицкие бани. Внутренний двор
© DK architects
Архи.ру об этом объекте:
02.07.2025
Термы за Волгой
Как в нашей стране строят бани? Обычно из лакированных бревен, иногда добавляя розовую штукатурку... А Григорий Дайнов и DK Architects предложили для Тверицких бань на левом берегу Волги в Ярославле – берег заброшенный и депрессивный, но бани, говорят, культовые, – 1. сохранение здания 1950-х, кирпичного, крашеного красной краской; 2. термы из травертина. Ну что тут сказать, идеи Цумтора забрались на азиатский берег. Рассматриваем.
Тверицкие бани, которые планируется реконструировать по проекту Григория Данова, расположены сразу скажу не в Твери, а в Ярославле. На левом берегу Волги, пологом и не очень развитом в отличие от главного в данном случае, высокого правого. На... читать дальшеТверицкие бани. Внутренний двор, вид на термы
© DK architects
описание:
Архитектурная концепция основана на сохранении облика существующего здания бани, построенной в 50-е годы прошлого века, которое благодаря кирпичной трубе, развитой пластике и активному цвету давно является своеобразным символом места.
Здание бани реконструируется, к нему пристраивается новый современный объем терм, вмещающий необходимые по заданию функции. Пространство участка благоустраивается вокруг открытого всесезонного бассейна.
Функция раскрывается во внутреннее пространство двора, который максимально изолирован от довольно депрессивного городского окружения и представляет собой идеализированное пространство, позволяющее на время забыть о мирской суете.
Созданию этого впечатления способствует выбор материалов – здание терм облицовано шлифованным алюминием, который отлично контрастирует с кирпичной фактурой фасадов старых бань, остальные постройки на территории выполняются из дерева, покрытие внутреннего двора – светло-серый камень.
Здание бани реконструируется, к нему пристраивается новый современный объем терм, вмещающий необходимые по заданию функции. Пространство участка благоустраивается вокруг открытого всесезонного бассейна.
Функция раскрывается во внутреннее пространство двора, который максимально изолирован от довольно депрессивного городского окружения и представляет собой идеализированное пространство, позволяющее на время забыть о мирской суете.
Созданию этого впечатления способствует выбор материалов – здание терм облицовано шлифованным алюминием, который отлично контрастирует с кирпичной фактурой фасадов старых бань, остальные постройки на территории выполняются из дерева, покрытие внутреннего двора – светло-серый камень.
Тверицкие бани. Фрагмент: вход в термы
© DK architects
Тверицкие бани. Интерьер входа в термы
© DK architects
Тверицкие бани. Интерьер входа в термы
© DK architects
Тверицкие бани. Интерьер входа в бани
© DK architects
Тверицкие бани. Интерьеры терм
© DK architects
Тверицкие бани. Интерьеры терм
© DK architects
Тверицкие бани. Интерьеры терм
© DK architects
Тверицкие бани. Фотофиксация: бани в существующем состоянии
© DK architects
Тверицкие бани
© DK architects
Тверицкие бани
© DK architects
Тверицкие бани. Схема генплана
© DK architects
Тверицкие бани. План подземного этажа
© DK architects
Тверицкие бани. План 1 этажа
© DK architects
Тверицкие бани. План 2 этажа
© DK architects
Тверицкие бани. Разрез 1-1
© DK architects
Архитекторы – партнеры Архи.ру:
Проект из каталога (случайный выбор)

Наринэ Тютчева, 2017 – 2021
Музей Павла и Сергея Третьяковых в 1-м Голутвинском переулке: реставрация, приспособление и дизайн экспозиции
Постройки и проекты (новые записи):
Новости российской архитектуры:
22.10.2025
Острова и ножки
21.10.2025
Кто в Сити, кто в горы?
Сергей Скуратов21.10.2025