ЖК «Ярославское шоссе, 51»
Фотография © Дмитрий Яговкин / предоставлена АБ KPLN
ЖК «Ярославское шоссе, 51»
информация:
-
статус
реализовано -
даты
2019 / 2020 — 2022 -
место
Москва Ярославское шоссе, 51 -
координаты
55.860875, 37.689845 -
функция
Жилой / жилой комплекс -
площадь участка
0,4109 га -
площадь подземная
1457,20 м2 -
общая площадь
11 263,66 м2 -
площадь жилая
7631,48 м2 -
высота
75 -
этажность
17 -
строительный объем
45 822 м3 -
Подземный этаж: 1
общая площадь: 11 263,66 м2 (по внутренним габаритам наружных стен)подземная площадь: 1457,20 м2 (общая площадь подземной части по внутренним габаритам наружных стен)
кол-во квартир: 160 -
кол-во машиномест
44

Сергей Никешкин
Sergey Nikeshkin / Россия
Андрей Михайлов
Andrew Mikhailov / РоссияKPLN
KPLN / Россияавторский коллектив
С. Никешкин, С. Федорова, О. Шинкарева, К. Кузнецов
партнеры, заказчики, смежники
Заказчик – ООО «Специализированный застройщик Ярославское Плюс»
ЖК «Ярославское шоссе, 51»
Фотография © Дмитрий Яговкин / предоставлена АБ KPLN
Архи.ру об этом объекте:
19.03.2025
Юлия Тарабарина. Дом из весенней материи
За этим домом мы наблюдаем уже пару лет: вроде бы простой, не очень сложный, но как удачно вписался в микрорайонный контекст после развязок МСД. Здорово запоминается этот дом всем, кто хотя бы время о времени ездит по шоссе. На наш взгляд, тут Сергею Никешкину, миксуя популярные приемы и подходы архитектуры 2010-х, удалось простое, вроде бы, здание превратить в высказывание «на тему дома как такового». Разбираемся, как так вышло.
Отрезок Ярославского шоссе между МСД и МКАДом это восточная часть бывшего города Бабушкина, который в 1960 году вошел в состав Москвы и в 1970-е был заполнен микрорайонной застройкой. Шоссе здесь на протяжении шести километров тянется между железно... читать дальшеЖК «Ярославское шоссе, 51»
Фотография © Дмитрий Яговкин / предоставлена АБ KPLN
описание:
Лаконичность, простота и элегантность позволяют проекту стать одним из самых заметных сооружений на въезде в Москву по Ярославскому шоссе. Скатная кровля в проекте отсылает к образу уютного загородного дома – этот же образ рифмуется с организацией входных групп здания. Вентилируемые фасады отделаны стилизованными под кирпич панелями. Спокойствие природных серо-коричневых оттенков разбавлено акцентами цвета лайма. Яркие вертикальные полосы, декоративные алюминиевые элементы под окнами, а также контрастные экраны, закрывающие кондиционеры, создают динамичный рисунок фасада. Крупноразмерное витражное остекление первого этажа придает облику дома легкость и проницаемость. На первом этаже запроектирован образовательный центр с группой кратковременного пребывания детей площадью 600 кв.м. Также предусмотрена колясочная, а рядом с домом – места для хранения велосипедов. Благоустройство прилегающей территории предполагает комплексное озеленение, создание газонов и мощеных пешеходных дорожек, а входные группы расположены на уровне земли – таким образом создается безбарьерная среда, доступная для маломобильных групп населения.
ЖК «Ярославское шоссе, 51»
Фотография © Дмитрий Яговкин / предоставлена АБ KPLN
ЖК «Ярославское шоссе, 51»
Фотография © Дмитрий Яговкин / предоставлена АБ KPLN
ЖК «Ярославское шоссе, 51»
Фотография © Дмитрий Яговкин / предоставлена АБ KPLN
ЖК «Ярославское шоссе, 51»
Фотография © Дмитрий Яговкин / предоставлена АБ KPLN
ЖК «Ярославское шоссе, 51»
Фотография © Дмитрий Яговкин / предоставлена АБ KPLN
ЖК «Ярославское шоссе, 51»
Фотография © Дмитрий Яговкин / предоставлена АБ KPLN
ЖК «Ярославское шоссе, 51»
Фотография © Дмитрий Яговкин / предоставлена АБ KPLN
ЖК «Ярославское шоссе, 51»
Фотография © Дмитрий Яговкин / предоставлена АБ KPLN
ЖК «Ярославское шоссе, 51»
Фотография © Дмитрий Яговкин / предоставлена АБ KPLN
Схема ситуационного плана. ЖК «Ярославское шоссе, 51»
© АБ KPLN
Схема плана на отметке 0.0. ЖК «Ярославское шоссе, 51»
© АБ KPLN
Схема плана на отметке +4.55. ЖК «Ярославское шоссе, 51»
© АБ KPLN
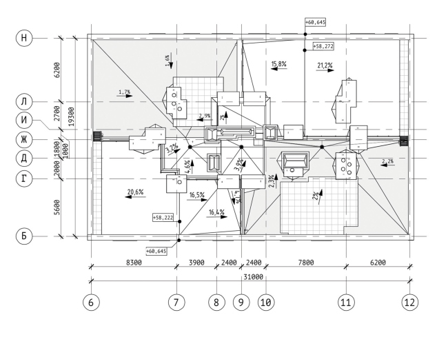
Схема плана на отметке +14. ЖК «Ярославское шоссе, 51»
© АБ KPLN
Схема плана на отметке +51.8. ЖК «Ярославское шоссе, 51»
© АБ KPLN
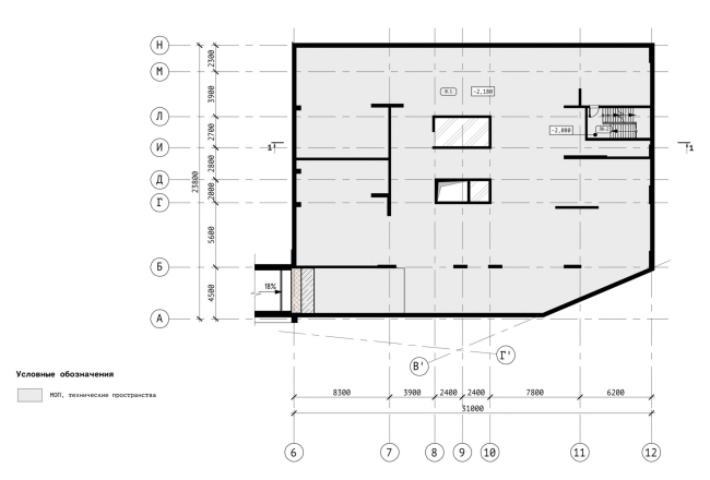
Схема плана на отметке -2.18. ЖК «Ярославское шоссе, 51»
© АБ KPLN
Съема плана кровли. ЖК «Ярославское шоссе, 51»
© АБ KPLN
Разрез 1–1. ЖК «Ярославское шоссе, 51»
© АБ KPLN
Схема благоустройства. ЖК «Ярославское шоссе, 51»
© АБ KPLN
Схема генплана. ЖК «Ярославское шоссе, 51»
© АБ KPLN
Схема фасада в осях 6–12. ЖК «Ярославское шоссе, 51»
© АБ KPLN
Схема фасада в осях А–Н. ЖК «Ярославское шоссе, 51»
© АБ KPLN
Фрагмент фасада 1. ЖК «Ярославское шоссе, 51»
© АБ KPLN
Фрагмент фасада 1. ЖК «Ярославское шоссе, 51»
© АБ KPLN
Архитекторы – партнеры Архи.ру:
Проект из каталога (случайный выбор)
Постройки и проекты (новые записи):
Новости российской архитектуры:
09.10.2025
Курорт на Каме
09.10.2025
Модель многоуровневой жизни
09.10.2025
Снос Энтузиаста
08.10.2025