RSS
Сквош-клуб «Октябрь»
Фотография © Артем Кротов / предоставлена SNA studio

Сквош-клуб «Октябрь»

информация:

  • статус
    реализовано
  • даты
    04.2022 / 05.2022
  • region= area= address=Октябрьская наб. 6В country_t=Россия city_t=Санкт-Петербург
    место
    Санкт-Петербург Октябрьская наб. 6В
  • координаты
    59.914681, 30.416327
  • функция
    Спортивный / Спорткомплекс
    Сквош-клуб, Залы для групповых тренировок, единоборств, массаж, сауна
  • теги
    send.project
  • общая площадь
    600 м2
  • этажность
    2
Россия

авторский коллектив

Алексанина Снежана, Касьянова Наталья 

Сквош-клуб «Октябрь»
Фотография © Артем Кротов / предоставлена SNA studio
Сквош-клуб «Октябрь»
Фотография © Артем Кротов / предоставлена SNA studio

история проекта:

Один из соавторов проекта регулярно играет в Сквош. В сквош-комьюнити было известно, что она дизайнер, поэтому когда было запланировано строительство нового клуба, была приглашена для разработки дизайна интерьера.

описание:

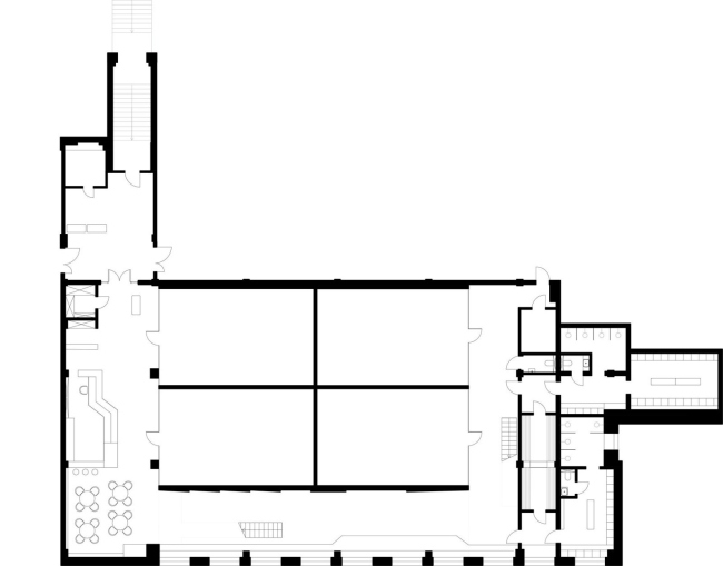
Двухуровневое пространство спортивного клуба задумывалось не просто как место для тренировок, а как домашний, уютный клуб, как место дружеских встреч, место общения людей, объединенных любовью к движению, здоровому образу жизни, и конечно, к сквошу.

В основе интерьера первого уровня спортивного клуба лежит использование естественной декоративности несущих конструкций. Мы открыли зашитые бетонные колонны, сняли плитку из ракушечника с бетонных рёбер жёсткости здания, обнажив природную брутальную фактуру материала. Крупные, тëплые, тактильные пятна с древесной текстурой смягчают общую лофтовую стилистику пространства.

Отдельное внимание хочется уделить буферной зоне, образованной вдоль глухих стен кортов. Сама стена кортов раздроблена на фрагменты, с лёгким веерным раскрытием, добавляя динамичности восприятия. Напротив стены, под окнами – длинная скамья с интегрированными столиками. На контрасте с большим светлым общим пространством клуба раздевалки, душевые, санузлы и сауны выполнены в приглушённых, тёмных оттенках. В интерьере этих зон мы стремились к максимальной лаконичности и чистоте пространств.

На втором уровне спортивного клуба Октябрь располагаются 2 тренировочные зоны. Зал для групповых тренировок, массажный кабинет, зал для кроссфита и кабинет директора клуба. Многофункциональность зала для групповых тренировок обеспечивается металлическим каркасом под потолком для размещения специального оборудования (TRX, аэройога).

Проект предусматривает различные сценарии освещения. В дизайне пространства кроссфита продолжается тема декоративности текстур конструктивных материалов, использованная при разработке первого этажа спортивного клуба.
 
Сквош-клуб «Октябрь»
Фотография © Артем Кротов / предоставлена SNA studio
Сквош-клуб «Октябрь»
Фотография © Артем Кротов / предоставлена SNA studio
Сквош-клуб «Октябрь»
Фотография © Артем Кротов / предоставлена SNA studio
Сквош-клуб «Октябрь»
Фотография © Артем Кротов / предоставлена SNA studio
Сквош-клуб «Октябрь»
Фотография © Артем Кротов / предоставлена SNA studio
Сквош-клуб «Октябрь»
Фотография © Артем Кротов / предоставлена SNA studio
Сквош-клуб «Октябрь»
Фотография © Артем Кротов / предоставлена SNA studio
Сквош-клуб «Октябрь»
Фотография © Артем Кротов / предоставлена SNA studio
Сквош-клуб «Октябрь»
Фотография © Артем Кротов / предоставлена SNA studio
Сквош-клуб «Октябрь»
Фотография © Артем Кротов / предоставлена SNA studio
Сквош-клуб «Октябрь»
Фотография © Артем Кротов / предоставлена SNA studio
Сквош-клуб «Октябрь»
Фотография © Артем Кротов / предоставлена SNA studio
Сквош-клуб «Октябрь»
Фотография © Артем Кротов / предоставлена SNA studio
Сквош-клуб «Октябрь»
Фотография © Артем Кротов / предоставлена SNA studio
Сквош-клуб «Октябрь»
Фотография © Артем Кротов / предоставлена SNA studio
Сквош-клуб «Октябрь»
© SNA studio
Сквош-клуб «Октябрь»
© SNA studio

Архитекторы – партнеры Архи.ру:

  • Юлия Тряскина
  • Олег Мединский
  • Сергей Чобан
  • Евгений Подгорнов
  • Сергей Переслегин
  • Полина Воеводина
  • Юлиана Княжевская
  • Станислав Белых
  • Владислав Андреев
  • Иван Кожин
  • Николай Кикава
  • Алексей Гинзбург
  • Андрей Романов
  • Сергей Кузнецов
  • Антон Яр-Скрябин
  • Павел Андреев
  • Василий Крапивин
  • Всеволод Медведев
  • Михаил Канунников
  • Дмитрий Сухов
  • Николай Переслегин
  • Дмитрий Буш
  • Татьяна Зульхарнеева
  • Зураб Басария
  • Александр Котенков
  • Александр Самарин
  • Марина Егорова
  • Даниил Лоренц
  • Виталий Лутц
  • Екатерина Кузнецова
  • Константин Ходнев
  • Никита Явейн
  • Андрей Михайлов
  • Георгий Трофимов
  • Елена Пучкова
  • Ерлан Бекмухамедов
  • Андрей Чуйков
  • Раис Баишев
  • Степан Липгарт
  • Игорь Шварцман
  • Евгений Новосадюк
  • Сергей Скуратов
  • Григориос Гавалидис
  • Сергей Никешкин
  • Андрей Асадов
  • Игорь Членов
  • Юлия Солдатенкова
  • Анна Иванова
  • Алексей Орлов
  • Роман Леонидов
  • Вера Бутко
  • Олег Шапиро
  • Наталья Сидорова
  • Антон Надточий
  • Наталия Шилова
  • Евгений Зеленов
  • Михаил Давыдов
  • Андрей Гнездилов
  • Владимир Плоткин
  • Александр Асадов
  • Анастасия Абашева
  • Дмитрий Ликин
  • Илья Машков
  • Дмитрий Остроумов
  • Ростислав Цайзер
  • Григорий Мустафин
  • Валерий Каняшин
  • Юлий Борисов
  • Энди Сноу
  • Александра Кузьмина
  • Сергей Труханов
  • Александр Скокан
  • Тимур Абдуллаев
  • Екатерина Абдуллаева
  • Маргарита Авдышева
  • Левон Айрапетов
  • Александр Аношкин
  • Алексей Афоничкин
  • Владислав Бек-Булатов
  • Антон Белов
  • Татьяна Бузулукова
  • Петр Васильев
  • Алина Георгиевская
  • Павел Гордеев
  • Илья Гринберг
  • Никита Демидов
  • Никита Дергунов
  • Наталья Жилкина
  • Алексей Зародов
  • Екатерина Зырина
  • Алексей Ильин
  • Дарья Ильина
  • Олег Карлсон
  • Алексей Кибкало
  • Денис Кувшинников
  • Анна Куликова
  • Алексей Курков
  • Алексей Курков
  • Данил Куров
  • Евгений Кутай
  • Мария Кутай
  • Антон Ладыгин
  • Антон Ладыгин
  • Дмитрий Лапин
  • Борис Левянт
  • Катерина Левянт
  • Илья Левянт
  • Антон Лукомский
  • Валерий Лукомский
  • Екатерина Ляпунова
  • Сергей Марков
  • Николай Миловидов
  • Станислав Михаловский
  • Олеся Могилевская
  • Мария Николаева
  • Виктор Перов
  • Алексей Полищук
  • Роман Пономарёв
  • Валерия Преображенская
  • Виктория Раубо
  • Василий Рыбаков
  • Мария Салех
  • Александр Стариков
  • Илья Уткин
  • Дмитрий Шурыгин
  • Олег Шурыгин

Проект из каталога (случайный выбор)

Постройки и проекты (новые записи):

  • Проект общественно-делового комплекса у станции метро «Ботанический Сад» / Genpro
  • Проект общественно-делового комплекса у станции метро «Ботанический Сад» / UNK
  • БЦ в Раменках
  • Бизнес-центр (на месте ТЦ «Старт»)
  • DELO HOUSE 3.2 с флигелем
  • Ледовый дворец Navka Arena
  • Благоустройство территории ЖК Holms Residence
  • Игровое пространство у театра им. Г.К. Камала
  • Вторая ось

Новости российской архитектуры:

Потенциальные примечательности. Обзор проектов 16–22 февраля 2026
22.02.2026

Потенциальные примечательности. Обзор проектов 16–22 февраля 2026

Евгений Зеленов, Юлий Борисов, Амир Идиатулин, Николай Гордюшин, Александр Аношкин, Мария Салех, Никита Дергунов
Визуальная чистота
20.02.2026

Визуальная чистота

Александр Жидков, Михаил Гуманков
Кирпичная вуаль
20.02.2026

Кирпичная вуаль

Айк Навасардян, Рубен Аракелян