RSS
Банно-оздоровительный комплекс Бани Малевича
© DBA-GROUP

Банно-оздоровительный комплекс Бани Малевича

информация:

  • статус
    в процессе реализации
  • даты
    20222024 / 2024
  • region=Московская обл area= address=д. Шульгино country_t=Россия city_t=
    место
    Московская обл д. Шульгино
  • координаты
    55.739248, 37.302287
  • функция
    Туризм/здравоохранение / Бани
  • площадь застройки
    4 787 м2
  • площадь подземная
    3 813 м2
  • общая площадь
    9 528 м2
  • высота
    15,300
  • этажность
    2
  • Раздевалка – 178 м2
    Некапитальные павильоны кафе и навес – 837 м2
    Бассейн и подземный переход – 1 026,7 м2
    Банно-оздоровительный комплекс – 2 787 м2
    Бассейн и подземный переход – 1 026 м2
    Количество посетителей – 464 чел.
  • кол-во машиномест
    61
DBA-GROUP

авторский коллектив

ГАП – В.В. Андреев, А.В. Миронович; ведущий архитектор – В.В. Лебедева, А.Д. Семенов; 3D архитектор – П.И. Рылов, М.Н, Хушмамедов, М.А. Юринов; архитекторы – А.Р. Родионов, А.В. Задворный, Я.В. Корнева; технолог по бассейнам – С. Петросян; технолог по общественному питанию – С. Большаков

партнеры, заказчики, смежники

Заказчик: БК «БАНИ МАЛЕВИЧА»
Банно-оздоровительный комплекс Бани Малевича
© DBA-GROUP

Архи.ру об этом объекте:

12.08.2025

Дмитрий Леонов. Малевич и бани, природа и хайтек

Комплекс «Бани Малевича» планируется открыть осенью 2025 года на Рублёво-Успенском шоссе. Проект, разработанный DBA-GROUP под руководством Владислава Андреева – пример нетипичного подхода к образу СПА вообще и бань в частности. Намеренно уклонившись от всех видов аллюзий авторы отдали предпочтение характерным для стримлайна угловым скруглениям, сочетанию дерева с моллированным стеклом – сдержанным современным формам. Как внутри, так и снаружи. Изучаем проект.

Банно-оздоровительный комплекс Бани Малевича название звучит более чем удивительно, хотя объясняется просто. Комплекс строится в Парке Малевича, расположенном рядом с селом Немчиновка, где Малевич некоторое время жил, работал и завещал себя похорон...   читать дальше
Банно-оздоровительный комплекс Бани Малевича
© DBA-GROUP

решения генерального плана:

  

Банно-оздоровительный комплекс Бани Малевича
© DBA-GROUP
Банно-оздоровительный комплекс Бани Малевича
© DBA-GROUP
Банно-оздоровительный комплекс Бани Малевича
© DBA-GROUP
Банно-оздоровительный комплекс Бани Малевича
© DBA-GROUP
Банно-оздоровительный комплекс Бани Малевича
© DBA-GROUP
Банно-оздоровительный комплекс Бани Малевича
© DBA-GROUP
Банно-оздоровительный комплекс Бани Малевича
© DBA-GROUP
Банно-оздоровительный комплекс Бани Малевича
© DBA-GROUP
Банно-оздоровительный комплекс Бани Малевича
© DBA-GROUP
Банно-оздоровительный комплекс Бани Малевича
© DBA-GROUP
Банно-оздоровительный комплекс Бани Малевича
© DBA-GROUP
Банно-оздоровительный комплекс Бани Малевича
© DBA-GROUP
Банно-оздоровительный комплекс Бани Малевича
© DBA-GROUP
Банно-оздоровительный комплекс Бани Малевича
© DBA-GROUP
Банно-оздоровительный комплекс Бани Малевича
© DBA-GROUP
Банно-оздоровительный комплекс Бани Малевича
© DBA-GROUP
Банно-оздоровительный комплекс Бани Малевича
© DBA-GROUP
Банно-оздоровительный комплекс Бани Малевича
© DBA-GROUP
Банно-оздоровительный комплекс Бани Малевича
© DBA-GROUP
Банно-оздоровительный комплекс Бани Малевича
© DBA-GROUP
Банно-оздоровительный комплекс Бани Малевича
© DBA-GROUP
Банно-оздоровительный комплекс Бани Малевича
© DBA-GROUP
Банно-оздоровительный комплекс Бани Малевича
© DBA-GROUP
Банно-оздоровительный комплекс Бани Малевича
© DBA-GROUP
Банно-оздоровительный комплекс Бани Малевича
© DBA-GROUP
Банно-оздоровительный комплекс Бани Малевича
© DBA-GROUP
Банно-оздоровительный комплекс Бани Малевича
© DBA-GROUP
Банно-оздоровительный комплекс Бани Малевича
© DBA-GROUP
Банно-оздоровительный комплекс Бани Малевича
© DBA-GROUP
Банно-оздоровительный комплекс Бани Малевича
© DBA-GROUP
Банно-оздоровительный комплекс Бани Малевича
© DBA-GROUP
Банно-оздоровительный комплекс Бани Малевича
© DBA-GROUP
Банно-оздоровительный комплекс Бани Малевича
© DBA-GROUP
Банно-оздоровительный комплекс Бани Малевича
© DBA-GROUP
Банно-оздоровительный комплекс Бани Малевича
© DBA-GROUP
Банно-оздоровительный комплекс Бани Малевича
© DBA-GROUP
Банно-оздоровительный комплекс Бани Малевича
© DBA-GROUP
Банно-оздоровительный комплекс Бани Малевича
© DBA-GROUP
Банно-оздоровительный комплекс Бани Малевича
© DBA-GROUP
Банно-оздоровительный комплекс Бани Малевича
© DBA-GROUP
Банно-оздоровительный комплекс Бани Малевича
© DBA-GROUP
Банно-оздоровительный комплекс Бани Малевича
© DBA-GROUP
Банно-оздоровительный комплекс Бани Малевича
© DBA-GROUP
Банно-оздоровительный комплекс Бани Малевича
© DBA-GROUP
Банно-оздоровительный комплекс Бани Малевича
© DBA-GROUP
Банно-оздоровительный комплекс Бани Малевича
© DBA-GROUP
Банно-оздоровительный комплекс Бани Малевича
© DBA-GROUP
Банно-оздоровительный комплекс Бани Малевича
© DBA-GROUP
Банно-оздоровительный комплекс Бани Малевича
© DBA-GROUP
Банно-оздоровительный комплекс Бани Малевича
© DBA-GROUP
Банно-оздоровительный комплекс Бани Малевича
© DBA-GROUP
Банно-оздоровительный комплекс Бани Малевича
© DBA-GROUP
Банно-оздоровительный комплекс Бани Малевича
© DBA-GROUP
Банно-оздоровительный комплекс Бани Малевича
© DBA-GROUP
Банно-оздоровительный комплекс Бани Малевича
© DBA-GROUP
Банно-оздоровительный комплекс Бани Малевича
© DBA-GROUP
Банно-оздоровительный комплекс Бани Малевича
© DBA-GROUP
Банно-оздоровительный комплекс Бани Малевича
© DBA-GROUP
Банно-оздоровительный комплекс Бани Малевича
© DBA-GROUP
Банно-оздоровительный комплекс Бани Малевича
© DBA-GROUP
Банно-оздоровительный комплекс Бани Малевича. Ситуационный план
© DBA-GROUP
Банно-оздоровительный комплекс Бани Малевича. Проект 2025г. Схема планировочной организации земельного участка
© DBA-GROUP
Банно-оздоровительный комплекс Бани Малевича. Проект 2025г. Транспортная схема
© DBA-GROUP
Банно-оздоровительный комплекс Бани Малевича. Проект 2025г. Сечение по рельефу. Взаимодействие с окружением
© DBA-GROUP
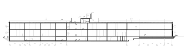
Банно-оздоровительный комплекс Бани Малевича. Проект 2025г. Развертка по фасаду с главным входом
© DBA-GROUP
Банно-оздоровительный комплекс Бани Малевича. Проект 2025г. Фасады. Банно-оздоровительный комплекс
© DBA-GROUP
Банно-оздоровительный комплекс Бани Малевича. Проект 2025г. Фасады. Банно-оздоровительный комплекс
© DBA-GROUP
Банно-оздоровительный комплекс Бани Малевича. Проект 2025г. Фасады. Банно-оздоровительный комплекс
© DBA-GROUP
Банно-оздоровительный комплекс Бани Малевича. Проект 2025г. Фасады. Банно-оздоровительный комплекс
© DBA-GROUP
Банно-оздоровительный комплекс Бани Малевича. Проект 2025г. Здание раздевалок
© DBA-GROUP
Банно-оздоровительный комплекс Бани Малевича. Проект 2025г. Фасады. Здание раздевалок
© DBA-GROUP
Банно-оздоровительный комплекс Бани Малевича. Проект 2025г. Фасады. Здание раздевалок
© DBA-GROUP
Банно-оздоровительный комплекс Бани Малевича. Проект 2025г. Фасады. Здание раздевалок
© DBA-GROUP
Банно-оздоровительный комплекс Бани Малевича. Проект 2025г. Фасады. Здание раздевалок
© DBA-GROUP
Банно-оздоровительный комплекс Бани Малевича. Проект 2025г. Кафе
© DBA-GROUP
Банно-оздоровительный комплекс Бани Малевича. Проект 2025г. Кафе
© DBA-GROUP
Банно-оздоровительный комплекс Бани Малевича. Проект 2025г. Кафе
© DBA-GROUP
Банно-оздоровительный комплекс Бани Малевича. Проект 2025г. Кафе
© DBA-GROUP
Банно-оздоровительный комплекс Бани Малевича. Проект 2025г. Кафе
© DBA-GROUP
Банно-оздоровительный комплекс Бани Малевича. Проект 2025г. Навес с летней кухней
© DBA-GROUP
Банно-оздоровительный комплекс Бани Малевича. Проект 2025г. Навес с летней кухней
© DBA-GROUP
Банно-оздоровительный комплекс Бани Малевича. Проект 2025г. Навес с летней кухней
© DBA-GROUP
Банно-оздоровительный комплекс Бани Малевича. Проект 2025г. Навес с летней кухней
© DBA-GROUP
Банно-оздоровительный комплекс Бани Малевича. Проект 2025г. Навес с летней кухней
© DBA-GROUP
Банно-оздоровительный комплекс Бани Малевича. Проект 2025г. План подземного этажа
© DBA-GROUP
Банно-оздоровительный комплекс Бани Малевича. Проект 2025г. План 1 этажа
© DBA-GROUP
Банно-оздоровительный комплекс Бани Малевича. Проект 2025г. План 2 этажа
© DBA-GROUP
Банно-оздоровительный комплекс Бани Малевича. Проект 2025г. Разрез 1-1
© DBA-GROUP
Банно-оздоровительный комплекс Бани Малевича. Проект 2025г. План и разрез кафе и навеса
© DBA-GROUP
Банно-оздоровительный комплекс Бани Малевича. Проект 2025г. План и разрез раздевалки
© DBA-GROUP

Архитекторы – партнеры Архи.ру:

  • Даниил Лоренц
  • Сергей Кузнецов
  • Наталья Сидорова
  • Николай Переслегин
  • Елена Пучкова
  • Полина Воеводина
  • Владимир Плоткин
  • Станислав Белых
  • Виталий Лутц
  • Евгений Зеленов
  • Андрей Чуйков
  • Зураб Басария
  • Александра Кузьмина
  • Игорь Шварцман
  • Василий Крапивин
  • Александр Асадов
  • Андрей Михайлов
  • Роман Леонидов
  • Александр Котенков
  • Сергей Переслегин
  • Ростислав Цайзер
  • Антон Надточий
  • Михаил Давыдов
  • Анастасия Абашева
  • Дмитрий Сухов
  • Алексей Гинзбург
  • Всеволод Медведев
  • Николай Кикава
  • Александр Скокан
  • Юлия Солдатенкова
  • Никита Явейн
  • Павел Андреев
  • Валерий Каняшин
  • Наталия Шилова
  • Андрей Асадов
  • Степан Липгарт
  • Юлия Тряскина
  • Татьяна Зульхарнеева
  • Раис Баишев
  • Алексей Орлов
  • Константин Ходнев
  • Александр Самарин
  • Георгий Трофимов
  • Андрей Гнездилов
  • Григорий Мустафин
  • Анна Иванова
  • Ерлан Бекмухамедов
  • Григориос Гавалидис
  • Сергей Чобан
  • Иван Кожин
  • Евгений Новосадюк
  • Дмитрий Буш
  • Сергей Труханов
  • Екатерина Кузнецова
  • Антон Яр-Скрябин
  • Энди Сноу
  • Дмитрий Ликин
  • Владислав Андреев
  • Илья Машков
  • Юлиана Княжевская
  • Олег Мединский
  • Олег Шапиро
  • Дмитрий Остроумов
  • Марина Егорова
  • Евгений Подгорнов
  • Сергей Скуратов
  • Андрей Романов
  • Игорь Членов
  • Михаил Канунников
  • Вера Бутко
  • Сергей Никешкин
  • Юлий Борисов
  • Тимур Абдуллаев
  • Екатерина Абдуллаева
  • Маргарита Авдышева
  • Левон Айрапетов
  • Александр Аношкин
  • Алексей Афоничкин
  • Владислав Бек-Булатов
  • Антон Белов
  • Татьяна Бузулукова
  • Петр Васильев
  • Алина Георгиевская
  • Павел Гордеев
  • Илья Гринберг
  • Никита Демидов
  • Никита Дергунов
  • Наталья Жилкина
  • Алексей Зародов
  • Екатерина Зырина
  • Алексей Ильин
  • Дарья Ильина
  • Олег Карлсон
  • Алексей Кибкало
  • Денис Кувшинников
  • Анна Куликова
  • Алексей Курков
  • Алексей Курков
  • Данил Куров
  • Евгений Кутай
  • Мария Кутай
  • Антон Ладыгин
  • Антон Ладыгин
  • Дмитрий Лапин
  • Борис Левянт
  • Катерина Левянт
  • Илья Левянт
  • Антон Лукомский
  • Валерий Лукомский
  • Екатерина Ляпунова
  • Сергей Марков
  • Николай Миловидов
  • Станислав Михаловский
  • Олеся Могилевская
  • Мария Николаева
  • Виктор Перов
  • Алексей Полищук
  • Роман Пономарёв
  • Валерия Преображенская
  • Виктория Раубо
  • Василий Рыбаков
  • Мария Салех
  • Александр Стариков
  • Илья Уткин
  • Дмитрий Шурыгин
  • Олег Шурыгин

Проект из каталога (случайный выбор)

Многоэтажный жилой дом «Белый дом»
Дмитрий Петров, 2006 – 2007
Многоэтажный жилой дом «Белый дом»

Постройки и проекты (новые записи):

  • Проект общественно-делового комплекса у станции метро «Ботанический Сад» / UNK
  • Дворец бильярда в Мневниковской пойме
  • БЦ в Раменках
  • Бизнес-центр (на месте ТЦ «Старт»)
  • DELO HOUSE 3.2 с флигелем
  • Ледовый дворец Navka Arena
  • Благоустройство территории ЖК Holms Residence
  • Игровое пространство у театра им. Г.К. Камала
  • Вторая ось

Новости российской архитектуры:

Визуальная чистота
20.02.2026

Визуальная чистота

Александр Жидков, Михаил Гуманков
Кирпичная вуаль
20.02.2026

Кирпичная вуаль

Айк Навасардян, Рубен Аракелян
Иглы созерцания горизонта
19.02.2026

Иглы созерцания горизонта

Николай Переслегин, Георгий Трофимов, Сергей Переслегин
Отель у озера
18.02.2026

Отель у озера

Тимур Абдуллаев, Екатерина Абдуллаева