Коворкинг Base4Work
Фотография © BoysPlayNice Photography & Concept
Коворкинг Base4Work
Фотография © BoysPlayNice Photography & Concept
В Братиславе, тем не менее, сохранилось не так много действительно классных, достойных полноценной ревитализации промышленных объектов, а фигура Юрковича слишком значима в контексте развития архитектуры всего региона. Но для того, что бы вернуть ценный памятник городу понадобились усилия целой команды неравнодушных людей, собранной девелопером. Собственно реставрацией и консервацией здания бывшей ТЭЦ занимались специалисты компании PAMARCH. Сотрудники DF Creative Group разрабатывали новые конструктивные решения, а студия Perspektiv отвечала за интерьеры коворкинга, пространство которого мыслилось как некий смысловой центр квартала, место активного взаимодействия самых разных людей.
Коворкинг Base4Work
Фотография © BoysPlayNice Photography & Concept
Коворкинг Base4Work
Фотография © BoysPlayNice Photography & Concept
Коворкинг Base4Work
Фотография © BoysPlayNice Photography & Concept
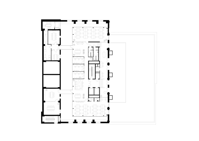
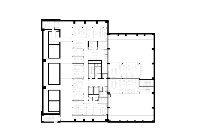
В свободное пространство котельной и турбинного зала внедрили независимую пятиэтажную структуру, которая и формирует разнообразные рабочие зоны. Вновь привнесенное таким образом оказывается визуально отделено от исторического. В нижней части расположен вестибюль с кафе, на каждом этаже есть и стандартные, и «горячие» рабочие места (их может занять любой), отдельные небольшие офисы, кабинки для телефонных разговоров, разнообразные переговорные и зоны командной работы, места для разного рода мероприятий и неформального общения, на крыше обустроена терраса с баром. В получившемся максимально гибким пространстве могут одновременно работать до 450 человек.
Коворкинг Base4Work
Фотография © BoysPlayNice Photography & Concept
Коворкинг Base4Work
Фотография © BoysPlayNice Photography & Concept
Авторы проекта постарались сохранить как можно больше свидетельств промышленного прошлого здания, подчеркнув тем самым уникальность вновь создаваемой рабочей среды. Именно это, по их мнению, способно привлечь сюда активных людей с нестандартным мышлением. Кроме открытых потолков, обнажающих балки огромного крана в верхней части здания, они сохранили и включили в свою концепцию гигантские бетонные воронки для подачи угля. Более того, внутри некоторых из них удалось разместить переговорные, а в двух, расположенных на самом верху, даже остеклена часть пола, что позволяет еще острей почувствовать и осознать «брутальное» прошлое здания. Но одновременно здесь нашлось место и для современных материалов, которые, по мнению архитекторов, отвечают настроению и логике промышленного объекта: например, древесно-волокнистые плиты и экологичные панели из переработанных пластиковых бутылок.
Коворкинг Base4Work
Фотография © BoysPlayNice Photography & Concept
Коворкинг Base4Work
Фотография © BoysPlayNice Photography & Concept
Коворкинг Base4Work
Фотография © BoysPlayNice Photography & Concept
Коворкинг Base4Work
Фотография © BoysPlayNice Photography & Concept
Коворкинг Base4Work
Фотография © BoysPlayNice Photography & Concept
Коворкинг Base4Work
Фотография © BoysPlayNice Photography & Concept
Коворкинг Base4Work
Фотография © BoysPlayNice Photography & Concept
Коворкинг Base4Work
Фотография © BoysPlayNice Photography & Concept
