Вестибюль в БЦ «Европассаж»
                Фото © Алік Усік + Сергій Нікіфоров
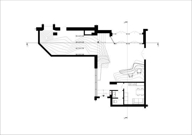
        Вестибюль назван авторами «Межсосуществование». Здесь линии – ламели потолка – устремляются за основным транзитными потоками, а также образуют «турбулентные завихрения» в местах концентрации функций – например, у стойки или в зоне отдыха. Так возникает «сосуществование». А «меж» появляется благодаря инструменту tween curves, то есть «между-линиям», в программе Rhino, которая использовалась при разработке этого проекта. То есть слово «межсосуществование» отражает соединение функции проекта с методом его создания.
Вестибюль в БЦ «Европассаж»
                Фото © Алік Усік + Сергій Нікіфоров
        Также линии здесь символизируют эпоху массовой кастомизации, когда воплотить что-либо не типовое, не стандартное, не прямоугольное не составляет особого труда.
Вестибюль в БЦ «Европассаж»
                Фото © Алік Усік + Сергій Нікіфоров
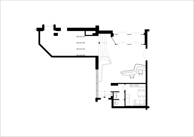
        Стойка эффектно изогнута, отмечая рабочие места двух сотрудников: ее форма направляет посетителей в нужную сторону, а также позволяет использовать только необходимый минимум площади. Рядом помещен диван с двумя пуфами, если можно так назвать напоминающие абстрактную скульптуру предметы мебели. Изголовье дивана перетекает в лестницу, ведущую к турникетам и лифтам.
Черный вестибюль «Сосуществование» площадью 450 м2 появился в 2019. С белым его роднит не только некоторые особенности формы, но и насыщенно-бирюзовые акценты. «Сосуществование» здесь означает соединение разных приемов и методов – геометрических, архитектурных, пространственных.
Вестибюль в БЦ «Европассаж»
                Фото © Алік Усік
        Кроме стойки администратора, зоны с сидениями и лифтового холла, здесь есть кафе и пространство для общения. Они помещены до турникетов, что особенно удобно: там сотрудники могут спокойно поговорить со своими гостями.
Вестибюль в БЦ «Европассаж»
                Фото © Алік Усік
        Линии здесь проведены не только деревянными ламелями на потолке (усиленными трубками светильников), но и узором на износостойком ковровом покрытии. Светильники спускаются ниже в местах скопления людей и в ключевых функциональных точках.
В двусветном пространстве по главному транзитному маршруту помещена инсталляция из 512 шариков-светильников. Они могут менять свой цвет и реагировать на движение человека, причем неочевидно: ему придется поломать голову над тем, как работает эта интерактивная схема с искусственным интеллектом. За окном помещена еще одна инсталляция – из шестиугольных чешуек: ее приводит в движение ветер.
Вестибюль в БЦ «Европассаж»
                Фото © Алік Усік
        Вестибюль в БЦ «Европассаж»
                Фото © Алік Усік
        Вестибюль в БЦ «Европассаж»
                Фото © Алік Усік
        Вестибюль в БЦ «Европассаж»
                Фото © Алік Усік
        
                        
            
            
        
                            