Главный фасад. Благотворительная клиника в Никарагуа
© MARTLET Architects
Благотворительная клиника в Никарагуа
информация:
-
статус
реализовано -
даты
01.2018 — 03.2018 / 01.2019 — 03.2020 -
место
поселение Ла Сальвия, д.17 -
координаты
13.004838, -87.624934 -
функция
Туризм/здравоохранение / Больница
Благотворительная клиника общего профиля с жильем для персонала -
общая площадь
132 м2 -
высота
4,2 -
этажность
1 -
строительный объем
394 м3 -
авторский коллектив
Архитекторы: Михаил Михайлович Шишин, Елизавета Александровна Шишина -
партнеры, заказчики, смежники
Заказчик: НКО Health&Help

Елизавета Шишина /
/ Россия
Михаил Шишин /
/ РоссияMARTLET Architects /
/ РоссияОкна с фасада закрыты деревянной облицовкой для защиты помещений от перегрева. Благотворительная клиника в Никарагуа
© MARTLET Architects
Архи.ру об этом объекте:
Алёна Кузнецова. Благотворительная архитектура
Бюро Martlet Architects, за которым стоит молодая российская пара, с помощью архитектуры участвует в решении проблем стран третьего мира. Показываем школу и две клиники, построенные на краю света за счет благотворительных фондов и силами волонтеров.
читать дальшеЮжный фасад. Благотворительная клиника в Никарагуа
© MARTLET Architects
история проекта:
Идея проекта принадлежит некоммерческой организации Health&Help. Цель их деятельности – оказание базовой медицинской помощи людям в удаленных регионах планеты. На основании данных, предоставленных Министерством Здравоохранения Никарагуа, организацией был определен регион, наиболее нуждающийся в помощи, и найден участок под строительство в деревне La Salvia. Организация Health&Help обратилась напрямую к MARTLET Architects (архитекторы Михаил и Елизавета Шишины) с просьбой разработать проект клиники и довести его до реализации на месте.
описание:
Объект представляет собой медицинский пункт, оказывающий базовую помощь людям, живущим вдали от государственных пунктов здравоохранения и не имеющим возможности и средств добраться до них. Основные проблемы данного региона – тропические лихорадки, паразитарные болезни, диабет, подростковая беременность. Весь персонал – это волонтеры из разных стран, приезжающие работать в клинику на срок от нескольких месяцев до года. Поэтому вторая важная функция объекта – это жилая зона.
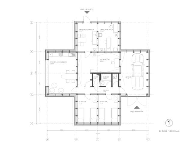
В плане здание имеет четырехчастную форму, где каждое крыло соответствует своей функции – медицинские помещения, кухня-гостиная, спальни, гараж. Центральная часть здания отдана под хранение и санузлы.
Мы использовали простую форму, но сделали из нее яркий и очевидный символ медицинской помощи – крест красного цвета, чтобы привлечь внимание к проблеме. В то же время, мы использовали только натуральные, тактильно приятные материалы, чтобы здание было интуитивно притягательным для человека, и придали объему пластичности, чтобы акцентировать взаимосвязь с окружающей его природой – океаном, вулканами, лесами. Мы наделили здание эмоциями, свойственными человеку, с любопытством и восхищением наблюдающим за уходящим за океан солнцем.
Архитектурный облик здания основан на переосмыслении местных строительных технологий. Используя широко распространенные в Никарагуа приемы, мы уделили большое внимание пропорциям, деталям, качеству обработки и сочетанию материалов. Многие решения продиктованы жарким климатом с ярко выраженным сезоном дождей, и высокой сейсмической активностью в регионе. Нижняя часть здания выполнена каменной (бетон, натуральный камень), а несущий каркас – деревянный. Отделка фасадов и полов выполнена из древесины гаунакасте, отличающейся плотной и твердой структурой, устойчивой к грибкам, гниению и термитам. Наружные стены двойные с вентилируемым зазором – в данном случае во избежание перегрева здания. Окна в медицинских и жилых помещениях подняты к потолку и закрыты деревянной облицовкой, которая отсекает прямые солнечные лучи и защищает от любопытных взглядов местных жителей. Во всех помещениях организована естественная вентиляция подкровельного пространства, а сама крыша покрыта специальной гидроизоляцией белого цвета. В кухне-гостиной, предусмотрено панорамное окно, выходящее на западную сторону, из которого открывается вид на океан.
Здание реализовано полностью автономным – энергообеспечение от солнечных панелей, вода из колодца, независимая канализация. Водонапорный бак на крыше позволяет минимизировать расход энергии на работу насосов, кроме того во внутренней шахте организован сбор дождевой воды. В строительстве использовались преимущественно местные материалы, а все работы велись волонтерами и местными жителями вручную без использования тяжелой техники.