Размещено на портале Архи.ру (www.archi.ru)

10.09.2021

Градсовет Петербурга 8.09.2021

Алёна Кузнецова
Объект:
Реконструкция вестибюля станции метрополитена «Фрунзенская» с созданием Единого диспетчерского центра
Адрес:
Россия, Санкт-Петербург. Московский проспект, д. 71 А
Мастерская:
Архитектурное бюро А.С.+
Авторский коллектив:
ГАП: А.В. Сохацкий 
Арт-директор: Н.А. Сохацкая 
Архитектор: И.М. Лапин, А.А. Самсонидзе,  А.Б. Тарабрин 
При участии М.А. Мамошина 
Визуализации: А.А. Самсонидзе, И.М. Лапин 
 

Градсовет рассмотрел новый вариант перестройки станции метро «Фрунзенская»: проект от московских архитекторов, Единый диспетчерский центр и противоречивый традиционализм.

Реконструкция станции метро «Фрунзенская»

Вестибюль станции метро «Фрунзенская»
Проектировщик: Архитектурное бюро А.С.+, «Единые Системные Технологии»
Заказчик: ГУП «Петербургский метрополитен»
Обсуждали: архитектурно-градостроительный облик


Нынешний вестибюль станции метро «Фрунзенская» построен в 1961 году по проекту Арона Гецкина, который за свою жизнь принял участие в проектировании еще трех десятков объектов петербургской подземки. Некоторые павильоны за его авторством уже перестроены – например, «Горьковская», на другие есть планы – градсовет уже обсуждал реконструкцию «Политехнической» и не один раз – «Парка Победы». «Фрунзенскую» ждет реконструкция с полной заменой эскалаторов и пристройкой Единого диспетчерского центра метрополитена – для нее, к слову, проекты тоже уже составлялись, например, в виде гигантского паука.

​Следует отметить, что объекты метро через градсовет проходят мучительнее других – более или менее тепло с первого раза приняли только «Политехническую», но и ее отклонили с небольшим перевесом голосов, получив перед этим волну общественного недовольства. Тогда же, вспоминая более удачные примеры из московской практики, было решено совместно с Санкт-Петербургским Союзом архитекторов разработать положение о проведении архитектурных конкурсов для реконструкции объектов транспортной инфраструктуры. Но, очевидно, с этим пока что не успели.
Реконструкция вестибюля станции метрополитена «Фрунзенская» с созданием Единого диспетчерского центра
Реконструкция вестибюля станции метрополитена «Фрунзенская» с созданием Единого диспетчерского центра
© Архитектурное бюро А.С.+

Александр Сохацкий – московский, что уже необычно, архитектор, о чем за время обсуждения вспоминали часто и зачем-то искали причины, по которым с петербургским метро, пусть и на Московском проспекте, работает столичная мастерская. Сошлись на том, что у бюро АС+ есть удачный релевантный опыт: в прошлом году по его проекту под Единый диспетчерский центр московского метрополитена приспособили кинотеатр «Ереван», работа была отмечена дипломом «Золотого сечения».

Пресловутая ответственность за работу в культурной столице, очевидно, довлела над архитекторами – как заметил рецензент Михаил Мамошин, это едва ли не первая традиционалистская работа в портфолио компании. Александр Сохацкий в свою очередь рассказал, что ориентировался на наследие Владимира Щербина – здание Российской национальной библиотеки и соседний с участком восьмиэтажный дом.  
Реконструкция вестибюля станции метрополитена «Фрунзенская» с созданием Единого диспетчерского центра
Реконструкция вестибюля станции метрополитена «Фрунзенская» с созданием Единого диспетчерского центра
© Архитектурное бюро А.С.+

Над наземным вестибюлем вырастет объем диспетчерского центра с куполом и шпилем, высота почти достигнет разрешенных 28 метров. Решение фасада трехчастное: стилобат, пилонадный ярус и аттик, в отделке используется юрский камень и испанский серый известняк. Арки входа на первом уровне сделаны в одном масштабе с соседним зданием скотопригонного двора, которое носит статус памятника федерального значения. Сразу за ним на территории бывшего молокозавода активно строятся высотные жилые кварталы. Здание метрополитена по задумке авторов должно стать связующим звеном между окружающей разновременной архитектурой. При этом закругленная часть «работает» уже не на Московский проспект, а на внутриквартальную застройку, поэтому сделана в более современной стилистике. 
Реконструкция вестибюля станции метрополитена «Фрунзенская» с созданием Единого диспетчерского центра. Развертка фасадов М 1/500
Реконструкция вестибюля станции метрополитена «Фрунзенская» с созданием Единого диспетчерского центра. Развертка фасадов М 1/500
© Архитектурное бюро А.С.+
Реконструкция вестибюля станции метрополитена «Фрунзенская» с созданием Единого диспетчерского центра
Реконструкция вестибюля станции метрополитена «Фрунзенская» с созданием Единого диспетчерского центра
© Архитектурное бюро А.С.+

Михаил Мамошин отметил, что многие предшествующие работы отвергались из-за «непопадания в ментальность Московского проспекта», в данном же случае этот недостаток устранен. Архитектура, которую эксперт обозначил как «геометризированный классицизм», соответствует, по его словам, «правилам игры: трехчастность фасада, интересно решенный ордер, грамотно закрепленные пилонами углы». 
Реконструкция вестибюля станции метрополитена «Фрунзенская» с созданием Единого диспетчерского центра
Реконструкция вестибюля станции метрополитена «Фрунзенская» с созданием Единого диспетчерского центра
© Архитектурное бюро А.С.+
Реконструкция вестибюля станции метрополитена «Фрунзенская» с созданием Единого диспетчерского центра
Реконструкция вестибюля станции метрополитена «Фрунзенская» с созданием Единого диспетчерского центра
© Архитектурное бюро А.С.+

Владимир Григорьев посчитал, что для традиционалистской работы не хватает деталей, а Сергея Орешкина удивило, что на фасаде четыре арки. Никита Явейн отметил, что высота избыточна: масштаб здания скорее подходит для центра управления полетами. Александр Карпов указал на то, что пешеходные потоки будут конфликтовать с предлагаемым благоустройством, поскольку «люди имеют свойство ходить по прямой». Часть спорных моментов Александр Сохацкий объяснил тем, что архитекторы являются «рабами заказчика и развития города» – станция Арона Гецкина хороша, но увеличение нагрузки на общественный транспорт никто не отменял.
Реконструкция вестибюля станции метрополитена «Фрунзенская» с созданием Единого диспетчерского центра
Реконструкция вестибюля станции метрополитена «Фрунзенская» с созданием Единого диспетчерского центра
© Архитектурное бюро А.С.+

В целом члены градсовета посчитали проект большим шагом вперед. Если вспомнить станцию-паука, с ними сложно не согласиться. Однако существенные замечания по-прежнему имелись.

Никита Явейн рассказал о традиции застройки Московского проспекта: «шести-семиэтажные жилые дома с мелкой структурой и пластикой, большим количествах деталей перемежаются с общественные зданиями более крупного масштаба, причем последние располагаются в курдонерах или западах». Новая «Фрунзенская» этот строй нарушает, поскольку при внушительных размерах выходит на красную линию. Поэтому ее нужно либо заглубить, либо масштабировать. Что хуже – грушевидный план здания не соответствует классической структуре, причем самое в нем неприятное – «легкомысленный хохолок, модернистский приемчик». 
Реконструкция вестибюля станции метрополитена «Фрунзенская» с созданием Единого диспетчерского центра
Реконструкция вестибюля станции метрополитена «Фрунзенская» с созданием Единого диспетчерского центра
© Архитектурное бюро А.С.+

Сергей Орешкин согласился с тем, что масштаб «гипертрофированный» и выразил сожаление об утрате «родовых признаков архитектуры транспортных сооружений периода оттепели». По его мнению, работа сырая: не хватает детализации, формы грубые, стилистика не петербургская. Михаил Кондиайн поддержал тезис об излишней монумнтальности и предложил более четко разделить традиционный фасад, выходящий на Московский проспект, и полукруглую часть здания: «подкова, которая имеет одностильный фасад в меняющемся ордере – странная вещь».
Реконструкция вестибюля станции метрополитена «Фрунзенская» с созданием Единого диспетчерского центра. Фотомонтаж  © Архитектурное бюро А.С.+
Реконструкция вестибюля станции метрополитена «Фрунзенская» с созданием Единого диспетчерского центра. Фотомонтаж
© Архитектурное бюро А.С.+
Реконструкция вестибюля станции метрополитена «Фрунзенская» с созданием Единого диспетчерского центра. Фотомонтаж  © Архитектурное бюро А.С.+
Реконструкция вестибюля станции метрополитена «Фрунзенская» с созданием Единого диспетчерского центра. Фотомонтаж
© Архитектурное бюро А.С.+

Владимир Григорьев отметил, что у московских и петербургских архитекторов разные миры – как ментальные, так и нормативные, однако призвал не дистанцироваться друг от друга. Он согласился, что «при такой сухости и классицистичности приема задний фасад должен быть гладко округлым без уступа, который полностью ломает композицию» и предложил доработать соотношение частей, поскольку «тема первого этажа не вяжется с композицией здания». А завершил цитатой, найденной у Тита Ливия, иногда много, по его мнению, объясняющей: «И Цезарь решил переустроить Рим. И он позвал рабов: архитекторов и строителей».  

Итог: «за» проголосовали 3 члена градсовета, «против» – 15. Решено доработать архитектурно-градостроительный облик.
 
Подробнее о проекте –>
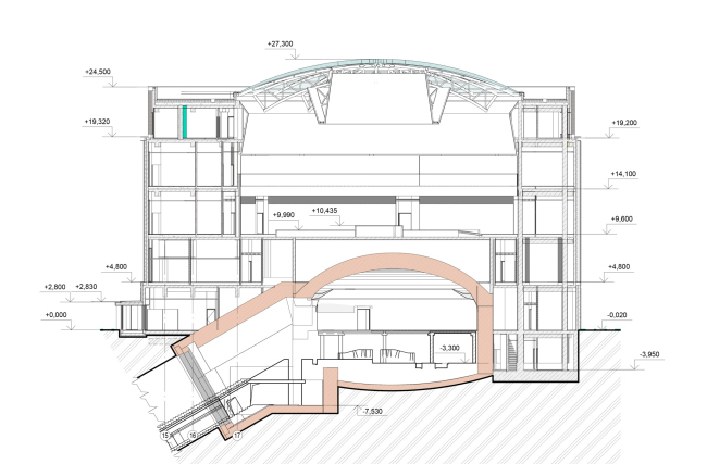
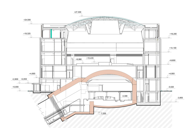
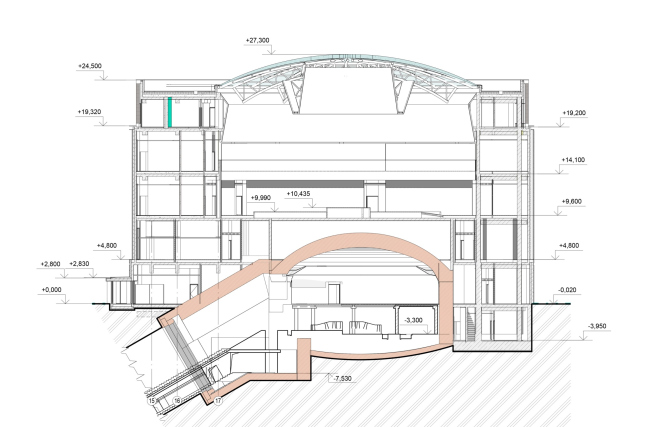
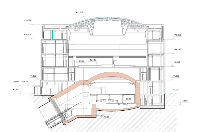
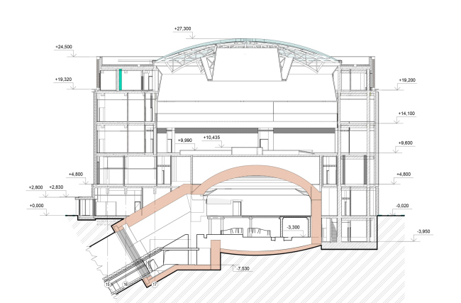
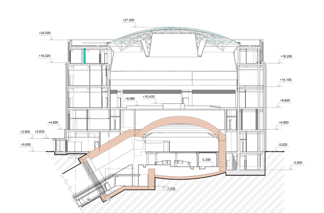
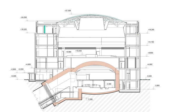
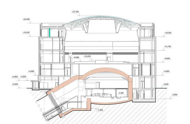
Реконструкция вестибюля станции метрополитена «Фрунзенская» с созданием Единого диспетчерского центра. Разрез 1-1
Реконструкция вестибюля станции метрополитена «Фрунзенская» с созданием Единого диспетчерского центра. Разрез 1-1
© Архитектурное бюро А.С.+
Реконструкция вестибюля станции метрополитена «Фрунзенская» с созданием Единого диспетчерского центра. Генеральный план
Реконструкция вестибюля станции метрополитена «Фрунзенская» с созданием Единого диспетчерского центра. Генеральный план
© Архитектурное бюро А.С.+