Размещено на портале Архи.ру (www.archi.ru)

26.08.2019

Нью-Йорк в себе

Алёна Кузнецова
Объект:
Комплекс Snail-apartments
Адрес:
США, Нью-Йорк. 438 W 38th St
Архитектор:
Александр Попов
Ольга Чернова
Мастерская:
Архиматика
Авторский коллектив:
Кристина Малийова, Александр Попов, Рустам Горпенюк, Вова Иванов, Ольга Чернова, Александр Симонов

Компания Архиматика представила свой первый проект для Манхэттена, в котором воплотила все принципы PRO-жилья. Элитный комплекс с выразительной архитектурой спроектирован так, чтобы его жители чувствовали себя в безопасности, но не одиночестве.

Комплекс Snail-apartments
Комплекс Snail-apartments
© Архиматика

Проект для Нью-Йорка – дело серьезное для всякого архбюро. А для постсоветского – еще и статусное. Принято считать, что наших архитекторов в других странах не ждут – мол, куда им, пусть сначала у нас научатся строить. Однако в последнее время проекты появляются: Сергей Чобан строит в Германии, «Меганом» придумал для Манхэттена ультратонкий небоскреб. Эти первые опыты экспансии интересно изучить: что интересного предлагают архитекторы? Чем отличается от нашего? Получается ли лучше в другой системе бюрократии и законов?

В случае Архиматики можно предположить, что конкурентным преимуществом стала философия, преобразованная в метод: в основе всех проектов киевской компании лежит серьезно проработанная концепция индивидуальности жилья, которую архитекторы постоянно совершенствуют.

Метод заключается в следующем. Прежде, чем начать проектирование, Архиматика проводит довольно серьезное социологическое исследование: на какую аудиторию рассчитан будущий комплекс? Чем живут эти люди, чем занимаются, какие у них привычки? После чего создают планировки, которые подойдут именно им, компонуют квартиры в дом, подбирают фасад. Это похоже на работу с контекстом, но учитывается не только история и окружение, но прежде всего современные пользователи. Выстраивая рабочий процесс не от случайно пришедшего в голову образа, а «изнутри», Архиматика создает дома, которые действительно отражают героя нашего времени. И доводит архитектуру до логического конца – потому что творчески прорабатывается не только оболочка, но и пространство.
Комплекс Snail-apartments
Комплекс Snail-apartments
© Архиматика

Итак, Манхэттен. Его типичный житель – немного невротик вроде Вуди Аллена, немного Джеймс Бонд, и немного героиня Эми Шумер из «Красотка на всю голову». Одиночка, успешный специалист, всегда торопится, не готовит еду дома, и вообще не стремится заниматься своим жильем – с готовностью делегирует любые домашние дела наемным помощникам. Не приводит домой гостей, но держит собаку. А еще он до параноидальности вежлив – случайно соприкоснувшись с вами в городской суете он немедленно упреждающе извинится, правда отчасти из желания не расширять случайный контакт, и забыть о вас навсегда. Ему нужно иметь убежище – островок спокойствия в эпицентре суеты, тихую заводь, раковину, берлогу в конце концов, где он отгородится от всего мира, сосредоточится на себе или своих решениях, отдохнет, остановится. Но при этом не останется один, не будет в коконе. В отдельных аспектах характеристика может показаться стереотипной для жителя любого мегаполиса, но в сумме – это очень специфический исключительно манхетенский портрет.

На основе «фоторобота» разработали 16 планировочных типов для 30 апартаментов будущего комплекса. Эти 30 «модулей» площадью от 27 до 170 м2, как фигурки объемного тетриса, соединяются и формируют прямоугольный брусок всего здания.
Комплекс Snail-apartments
Комплекс Snail-apartments
© Архиматика
Комплекс Snail-apartments. Варианты планировок
Комплекс Snail-apartments. Варианты планировок
© Архиматика
Комплекс Snail-apartments. Разрезы
Комплекс Snail-apartments. Разрезы
© Архиматика

Первые два этажа – общественные, к ним вернемся позднее. Нижние жилые этажи занимают небольшие студии. Здесь есть крохотная кухня с фронтом чуть больше метра и двумя конфорками – разогреть, поесть, потом бежать по делам или упасть в кровать. Под стать кухне и рабочее место: ноутбуку, основному инструменту фрилансера, много пространства не нужно. В этой планировочной иерархии главенствуют гардероб и кровать – для них предусмотрено больше всего площади. В целом получается гостиничный номер высокого класса. А чтобы жить в нем было комфортно долго и при разных обстоятельствах – на этаже есть общая большая кухня, где можно приготовить ужин, а также лаунж-зона, где можно посидеть с друзьями или пообщаться с соседом. С таким дополнением нижний блок становится больше похож по типологии на хостел-коливинг.
Комплекс Snail-apartments. План 2-3 этажей
Комплекс Snail-apartments. План 2-3 этажей
© Архиматика

Следующий уровень – односпаленные квартиры, площадь которых начинается от 40 м2. Здесь каждая функциональная зона получает более четкие границы: кухня и спальня разделены, есть небольшой кабинет. Дальше, то есть выше, следуют пять полутораэтажных квартир: в «антресолях» кабинет с видом на город, внизу – спальня и кухня. У одной из этих квартир есть выход на террасу: она появилась из-за перепада высот, которого требуют местные нормы.
Комплекс Snail-apartments. Схемы организации квартир © Архиматика
Комплекс Snail-apartments. Схемы организации квартир
© Архиматика
Комплекс Snail-apartments. Разрезы © Архиматика
Комплекс Snail-apartments. Разрезы
© Архиматика
Комплекс Snail-apartments. Схемы организации квартир © Архиматика
Комплекс Snail-apartments. Схемы организации квартир
© Архиматика
Комплекс Snail-apartments. Разрезы © Архиматика
Комплекс Snail-apartments. Разрезы
© Архиматика
Комплекс Snail-apartments. План 4 и 5 этажей © Архиматика
Комплекс Snail-apartments. План 4 и 5 этажей
© Архиматика
Комплекс Snail-apartments
Комплекс Snail-apartments
© Архиматика

Последний «кубик» – пентхаус, непреложный элемент американского элитного дома. В каждой из трех спален есть санузел, выделенные кабинет и гардероб. Все громоздкое и сезонное можно спрятать в комнате для хранения – назвать ее «кладовкой» язык не поворачивается. Столовая располагается в эркере, откуда Нью-Йорк как на ладони.
Комплекс Snail-apartments
Комплекс Snail-apartments
© Архиматика
Комплекс Snail-apartments. План пентхауса на 10 этаже
Комплекс Snail-apartments. План пентхауса на 10 этаже
© Архиматика

Разнообразные планировки позволяют наполнить дом людьми разного возраста, семейного положения и статуса, но при этом у них скорее всего будет схожее мировоззрение. В теории соседи не будут мешать друг другу, но быстро перезнакомятся, а в лучшем случае – подружатся или будут поддерживать более или менее регулярные контакты. По крайней мере, это одна из задач, которую ставили при проектировании. Решение ее – в общих пространствах дома.

Входную группу отмечает гигантский в масштабах здания латунный козырек, по которому вверх, к зелени висячего сада, ползет скульптурное семейство улиток. Образ окончательно не утвержден, но тем не менее он достаточно ясно выражает идею упорной целеустремленности: так и хочется сказать «да это ж про меня, про нас про всех...©» – большинство из нас такие вот улитки, медленно, но верно движущиеся к цели. В то же время моллюски достаточно велики и неожиданны, чтобы быть восприняты как яркий авторский жест, есть в них что-то льюис-кэрроловское, – но, с другой стороны, образ безобидных «тихоходов» по-своему умиротворяет и даже намекает на то, что вот он, дом – раковина для всех в нем живущих, не надо носить ее на себе, но можно войти внутрь. Объемный козырек смело заворачивает внутрь, «затягивая» входящего, и создавая эффект проникновения в «раковину» дома – многие, вероятно, в детстве рассматривали, к примеру, ракушку рапана, раздумывая о том, как он проникает за поворот ее спирали, в безопасность своего земного дома. Кстати о спирали – она тут как тут: рядом со входом тему «винта», на котором построены многие раковины, поддерживает лестница за округлым стеклом прозрачного эркера – здесь мы как будто уже видим раковину в разрезе, как в учебнике, воспринимая суть образа улитки и по частям, и одновременно. Лобби, вопреки манхэттенским традициям небольшое и уютное, подхватывает заданную тему убежища. Пусть и хрупкого, местами стеклянно-прозрачного, но и надежного. В конце концов, snail, с английского – и винт, и улитка, – так что образ развивается дальше, в деталях ненавязчиво-бионического свойства, к примеру неожиданно выпуклых окнах, но обо всем по порядку.
Комплекс Snail-apartments
Комплекс Snail-apartments
© Архиматика

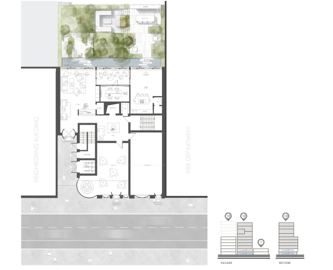
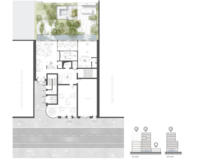
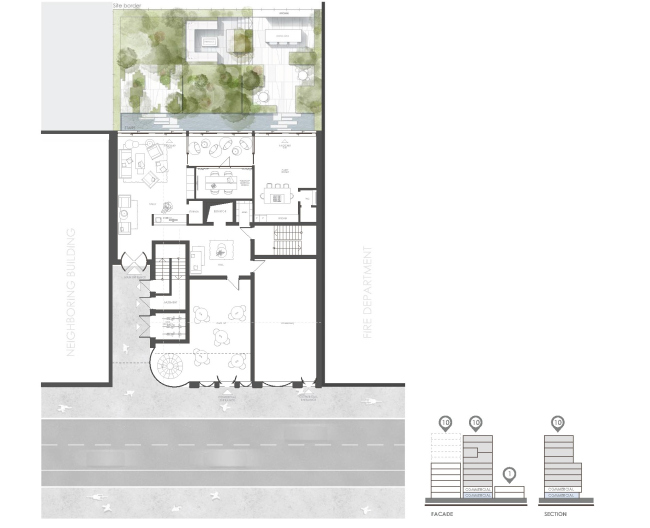
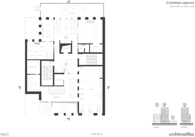
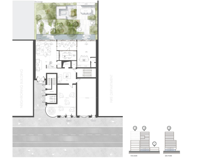
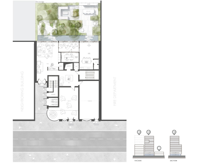
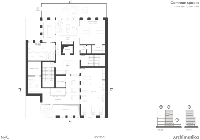
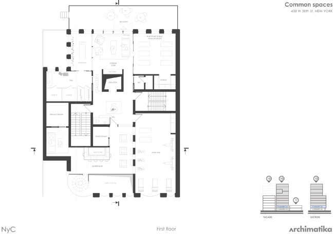
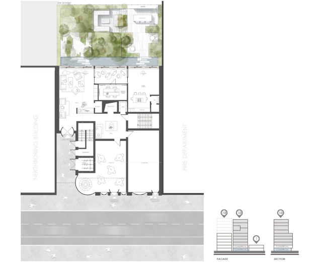
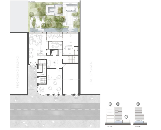
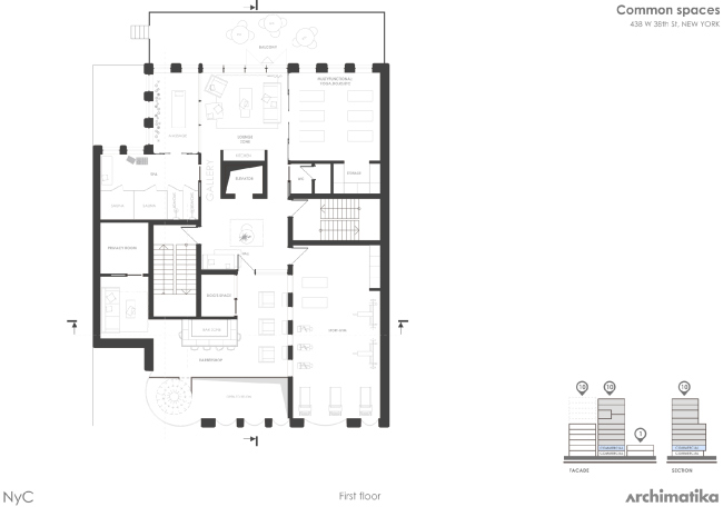
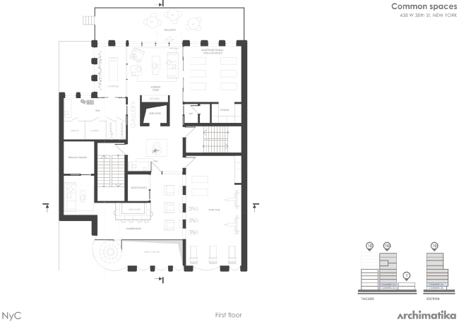
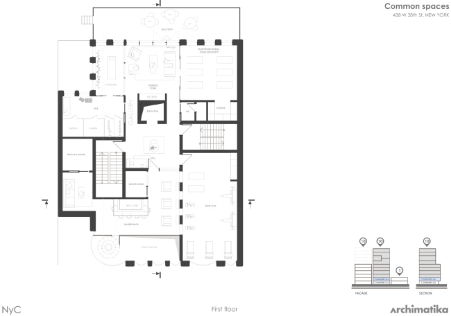
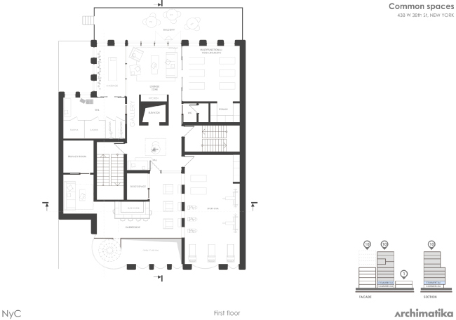
Первые два этажа – это «домашнее» общественное пространство, куда можно прийти «в тапочках». Здесь будет кафе, сигарная комната, барбершоп, который вечером превращается в бар простым поворотом кресел. Для другого способа отдыхать – тренажерный зал, комната для йоги, массажная, сауна, душ. А также место для велосипедов, упомянутая общая кухня, тихая комната для важного разговора или встречи. Интересно, что все эти зоны можно объединить: задвинуть звукоизоляционные перегородки и закатить, например, вечеринку. И конечно специальная комната для собак, в которой питомец может подождать хозяина и даже при необходимости получить некоторые виды сервиса. Также у жильцов и их гостей в распоряжении будет зеленый дворик, идеи благоустройства которого Архиматика по доброй традиции поручила придумать детской студии Arch4Kids.
Комплекс Snail-apartments. Общественное пространство
Комплекс Snail-apartments. Общественное пространство
© Архиматика
Комплекс Snail-apartments. План первого этажа
Комплекс Snail-apartments. План первого этажа
© Архиматика

Непривычно рассказывать о здании и потратить первую половину текста на планировки и общественные пространство. Но – такова Архиматика. И это при том, что сама «архитектура», если говорить об оболочке здания – весьма эффектна.

Участок под Snail-apartments – это лакуна между пожарной станцией и пятиэтажным жилым домом, оба здания из красного кирпича, с чугунными лестницами и балкончиками – классический Нью-Йорк, каким мы его знаем по голливудским фильмам. Архиматика подхватывает лофт-стилистику, которой предостаточно и в других зданиях этого района, переосмысляет ее в новых материалах и образах. Но выдерживает и равенство карнизов: нижний, выступающий к улице объем выровнен по высоте с соседним зданием, следующие шесть этажей ощутимо отступают вглубь участка, формируя крупную ступеньку с террасой на ней согласно упомянутым выше нормам.
Комплекс Snail-apartments
Комплекс Snail-apartments
© Архиматика
Комплекс Snail-apartments. План 6 этажа
Комплекс Snail-apartments. План 6 этажа
© Архиматика

Главная деталь, конечно, – выпуклые окна, похожие на цилиндрики пневматической почты. Мощные простенки той части здания, что выходит на красную линию – привычный способ создать образ укрытия, необходимого для защиты от стрел врага или от студеного ветра. А «выдуваемые» из бетонного остова пузыри, которые, кажется, вот-вот лопнут, – это уже о хрупкости духа, утомленного скоростью событий. С другой стороны, матовость и толщина моллированного стекла заставляет фантазировать, как об него разбиваются электронные волны, защищая жильцов от информационного потока. Граница получается прозрачной, но ощутимой: человек продолжает наблюдать мир, но может не впускать его к себе. Если же мы представим выпуклые окна и простенки в разрезе, то получится рисунок, похожий на срезы некоторых винтовых раковин, состоящих из множества круглящихся перегородок. Только этот ажурный рисунок не свернут в спираль, а по-человечески «развернут» на фасад вдоль красной линии улицы. Выпуклости окон формируют и другую ассоциацию, классическую – с рядами арок разной ширины, один из актуальных в наше время приемов.
Комплекс Snail-apartments
Комплекс Snail-apartments
© Архиматика

Цилиндрические окна не открываются, для проветривания планируется использовать разработанный SCHUCO боковой профиль с регулируемым проветриванием, также как и систему искусственной вентиляции, принятую в Северной Америке. Мыть гнутые стекла необходимо снаружи, аналогично современным стеклянным фасадам. Гнутое моллированное стекло благодаря его форме значительно сложнее разбить, чем плоское, – поясняют архитекторы, – но даже если разбить удастся, каленое стекло с защитной пленкой позволит избежать опасных осколков.

Традиционный для Нью-Йорка темно-красный кирпич на фасадах заменяет бетон шоколадного оттенка с вкраплением мрамора двух цветов. Сочетание со стеклом и латунью отдает дань традициям ар-деко и современным небоскребам.

Все вместе дает нам дом с очевидно «штучной», остро-дизайнерской внешностью, которая заставляет вспомнить венские эпатажи от Холляйна, и одновременно интерпретирует образ традиционного нью-йоркского здания современным языком, технически более совершенным – взять хотя бы выгнутые безрамные эркеры, они выглядят исключительно дорого, как редкий предмет из бутика. Эффектные приемы: винтовая лестница в прозрачном цилиндре, золотистая поверхность ребер-волн «входа в раковину дома» под козырьком, чередование простенков со скругленными углами и полуциркульных стекол, – интерпретируют небанальный образ, не лишенный известной философичной символики: здесь и смирение, и упорство, и любовь к мельчайшим природным деталям, и смелость придать им артистичный hyperscale. Скульптура входа «врастает» в дом и определяет его «генокод», находит ритмичные отклики в его фасадах. Он – дом-скульптура, но родственен соседним кирпичным «просто»-домам, совмещая авторский прием и контекстуальную чуткость, смелость модернистской пластики шестидесятых-семидесятых и склонность современных авторов к неоромантическому осмыслению всего и вся, того, что вокруг, что внутри, и о чем еще можно подумать в связи со всем этим. Любопытный получается сплав, главное – заметный и цельный, хотя и требующий качественного технического воплощения, что в Нью-Йорке, надо думать, возможно.
Комплекс Snail-apartments
Комплекс Snail-apartments
© Архиматика

У Нью-Йорка много эпитетов, один из важных – одинокий. Есть прекрасная книга Оливии Лэнг, которая так и называется – «Одинокий город», где она рассказывает о разных персонажах – от Эдварда Хоппера до Энди Уорхола, исследуя их чувство потерянности и заброшенности именно в этом огромном городе – материала оказалось предостаточно. Snail apartments во многом откликается на это ощущение, отрабатывая тему некоторой хрупкости и трогательной уязвимости, присущей всем, даже самым успешным людям.

Сейчас Архиматика вместе с заказчиком и партнерами просчитывает бюджет и возможные риски, не исключено, что проект ждет доработка.
 
Комплекс Snail-apartments
Комплекс Snail-apartments
© Архиматика
Комплекс Snail-apartments
Комплекс Snail-apartments
© Архиматика