Размещено на портале Архи.ру (www.archi.ru)

06.08.2018

Две правды для Татлина

Алёна Кузнецова, Юлия Тарабарина
Объект:
Апартаменты Tatlin
Адрес:
Россия, Москва. ул. Бакунинская, 5
Мастерская:
AI Studio
Architects of Invention
Авторский коллектив:
Ведущая команда Лондона: Доминикас Даунис, Кам Дхиман, Карлос Уртадо де Мендоса, Гиоргий Нишнианидзе, Николоз Джапаридзе, Тео Кирн, Антон Хмельницкий, Вано Кнеслашвили, Хосе Лозано, Альберт Серрано, Давид Цанава, Фабио Зампезе
Исполнительная команда Москвы: Иван Бабич, Ирина Браташова, Юлия Могилевцева, Никита Цымбал,  Наталья Крикотина

История о том, как благородный по-своему замысел столкнулся с принуждением к еще большему благородству и чем это закончилось.

Апартаменты Tatlin. Первоначальный вариант проекта
Апартаменты Tatlin. Первоначальный вариант проекта
© Architects of Invention

Здание будущих Tatlin apartements, представленных на риелторском сайте проекта как «апартаменты для неординарных людей», должно стать результатом реконструкции Телеграфа, построенного в 1927-1928 по проекту инженера В.В. Патека на Бакунинской улице, недалеко от метро «Бауманская». Район этот – ближе к ТТК, чем к Садовому, зато рядом метро, МГТУ тоже совсем недалеко. Застройка очень пестрая, разновременная: от миниатюрных, но пышных особняков середины XIX века до брежневских «элиток» розового кирпича. Впрочем в четырех минутах ходьбы от будущих апартаментов – палаты Щербакова, успешно защищенные общественностью в 1987 году от строительства трассы Третьего кольца и ныне функционирующие непонятно как, но зато «сделанные» под XVIII век с высокой кровлей в шашечку... Выглядят немного как новодел, хотя все стены сохранены, но время от времени в голову приходит – и зачем тогда старались? А защищали отчаянно, давали интервью, сидели в доме под бульдозерами, правда, нас, детей, сидеть не пускали, а разрешали только убирать снег вокруг.

Словом, пестрое окружение и неравномерное. Слева башня АТС 1960-х, для которой тоже все проектируют реконструкции (в частности, см. здесь), и все никак. Пока только облицевали.

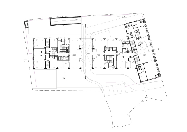
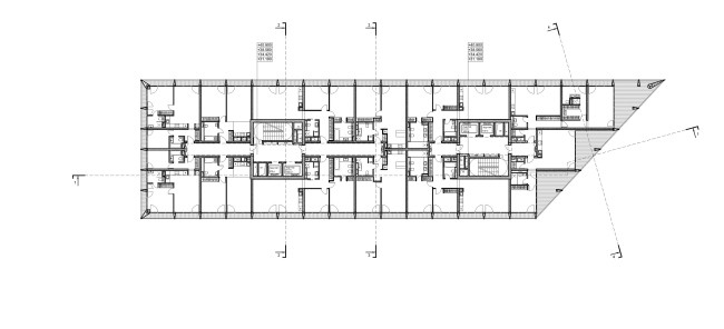
Здание Телеграфа 1920-х занимает здесь хронологически среднюю позицию, будучи сравнительно редким для этих мест примером архитектуры конструктивизма, причем, как заметил Сергей Чобан на архсовете в августе 2016, конструктивизма питерского толка, которого в Москве немного. «Т»-образное в плане, на красной линии по сторонам от уходящего вглубь четырехэтажного корпуса два двухэтажных флигеля. Исторически главный фасад бы украшен узнаваемой триадой: монументальные надписи «Почта», «Телефон», «Телеграф». В Москве есть еще два почти таких же здания Патека – на Ордынке и Арбате, это были одни из первых телефонных станций в городе.
Здание Телеграфа на улице Бакунинская № 5. Историческая фотография
Здание Телеграфа на улице Бакунинская № 5. Историческая фотография
Предоставлено Architects of Invention
Здание Телеграфа на улице Бакунинская № 5. Историческая фотография
Здание Телеграфа на улице Бакунинская № 5. Историческая фотография
Предоставлено Architects of Invention
Здание Телеграфа на улице Бакунинская № 5. Исходное состояние
Здание Телеграфа на улице Бакунинская № 5. Исходное состояние
Предоставлено Architects of Invention

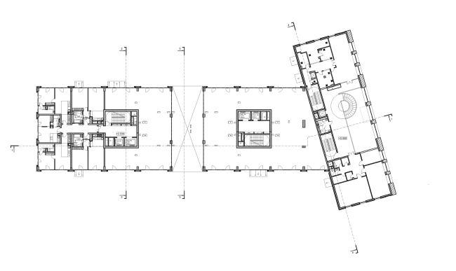
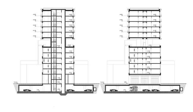
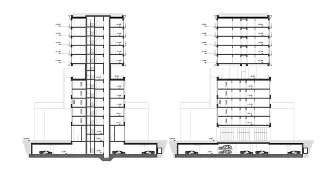
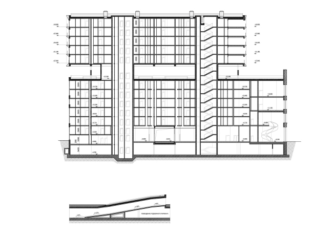
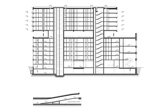
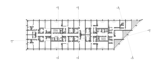
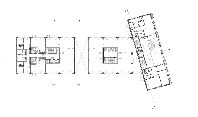
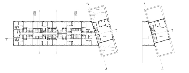
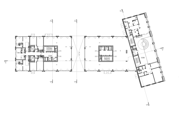
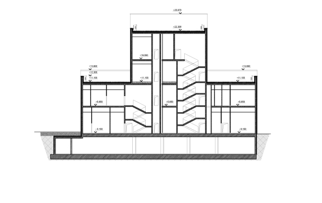
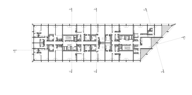
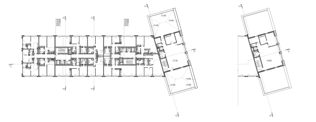
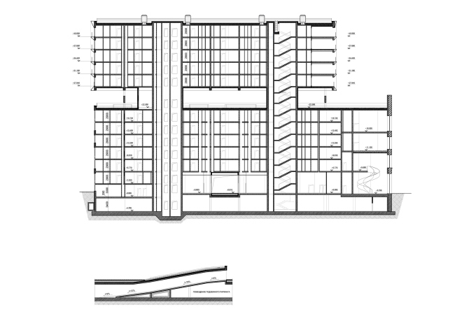
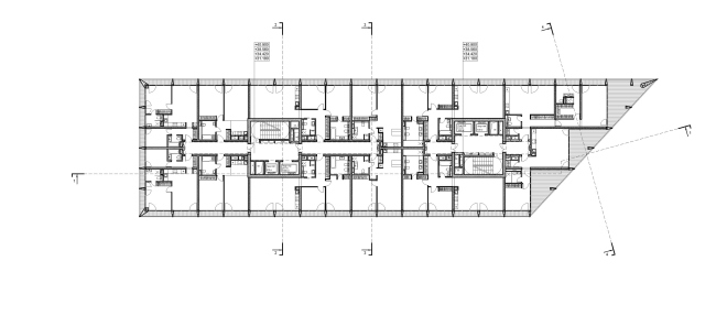
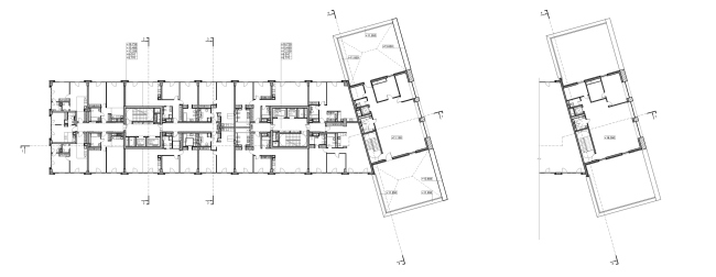
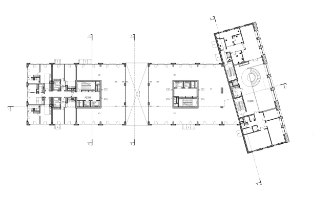
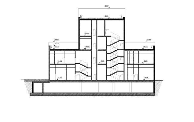
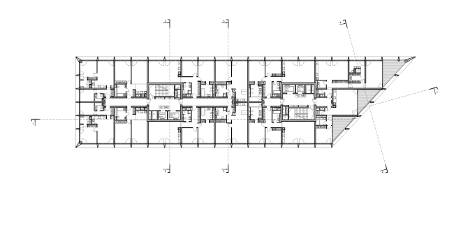
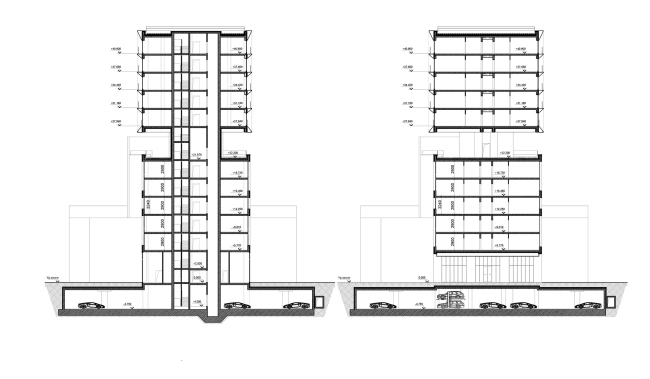
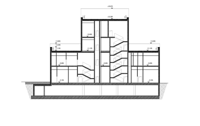
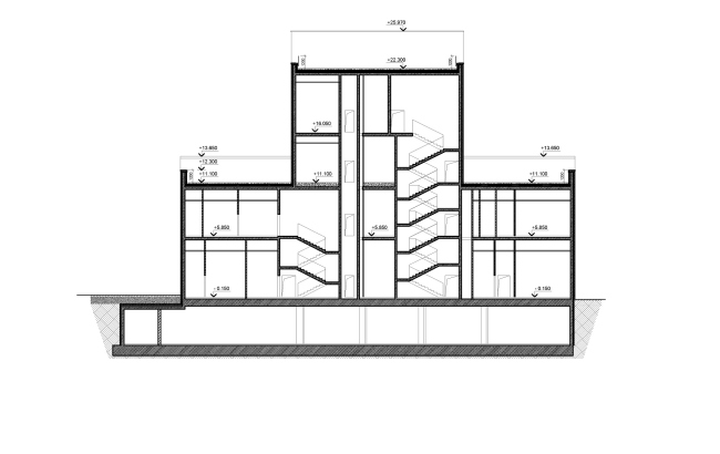
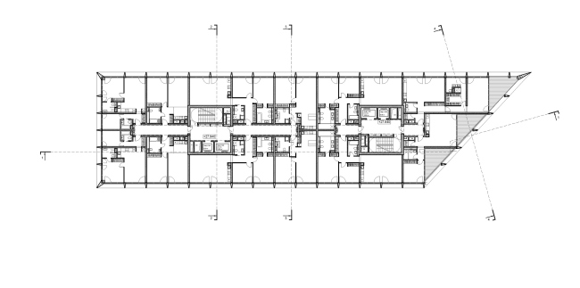
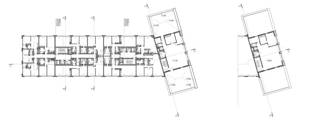
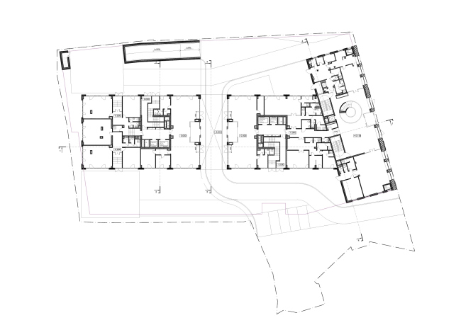
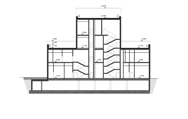
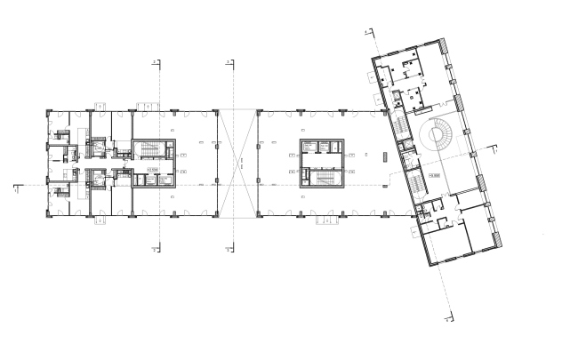
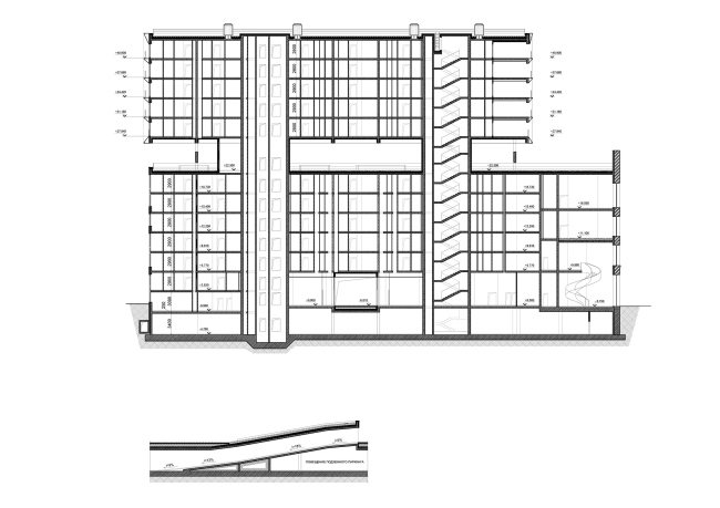
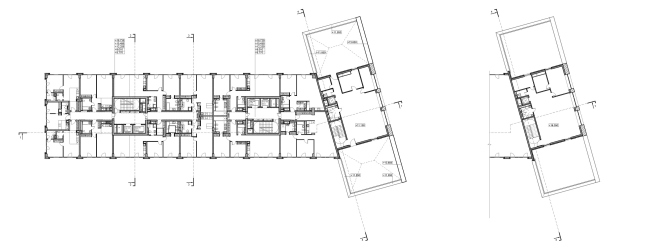
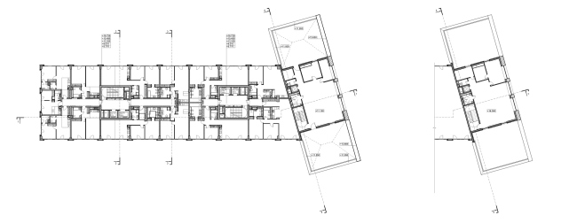
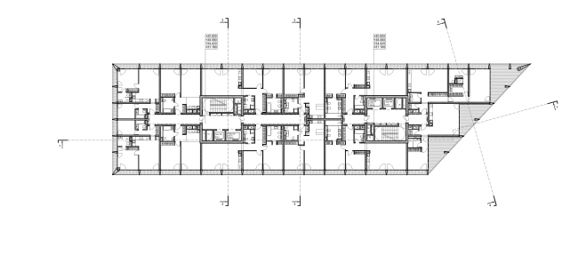
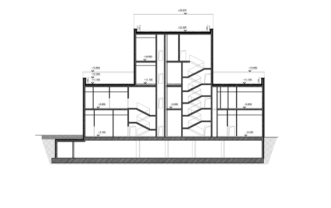
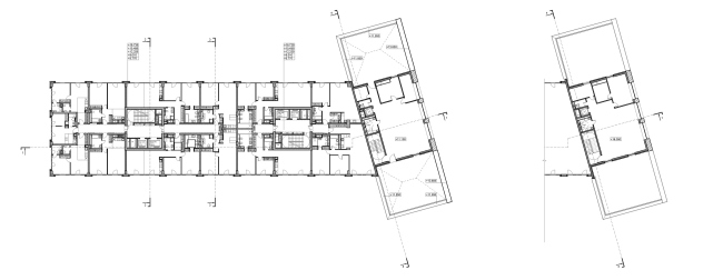
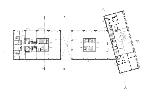
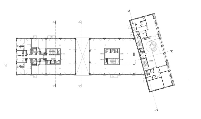
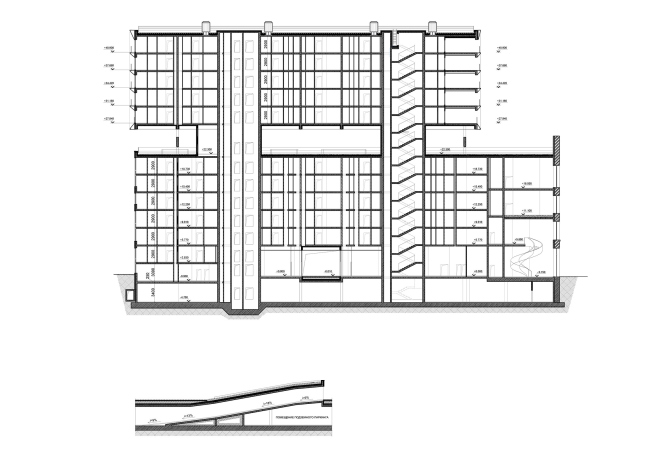
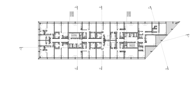
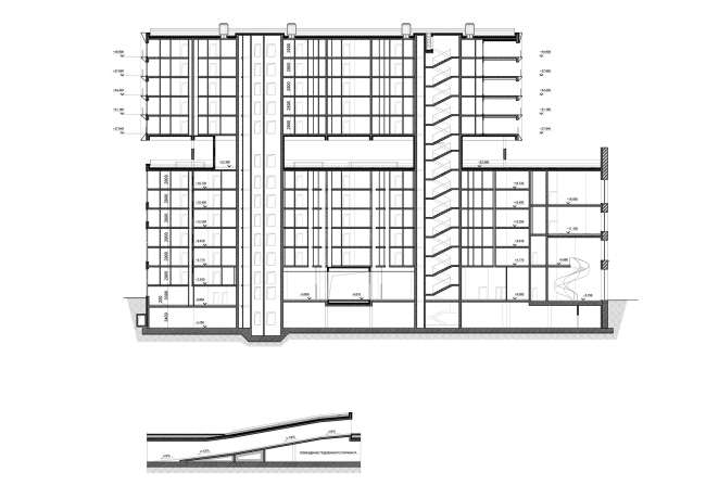
Здание не имеет охранного статуса, но в проекте Architects of Invention с самого начала предполагалось уличный фасад сохранить, восстановив исторические оконные переплеты и красно-серую раскраску по архивным данным; сохраненная историческая часть здания при улице должна была вместить магазины-кафе и двусветный атриум лобби. Длинный объем в глубине участка предполагалось заменить его подобием, разместив внутри 3-звездную гостиницу. Над условно-«старым» объемом гостиницы архитекторы поместили лаконично-элегантный параллелепипед «апартаментов длительного проживания»: решетка крупных окон-«кессонов», острый скос-нос с сторону Бакунинской, панели фиброцемента, цветное стекло. Поскольку дворовый корпус стоял под углом к улице, надстройка получила дополнительный динамический импульс.
Апартаменты Tatlin
Апартаменты Tatlin
© Architects of Invention
Апартаменты Tatlin
Апартаменты Tatlin
© Architects of Invention

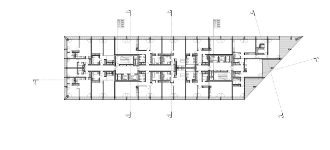
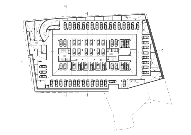
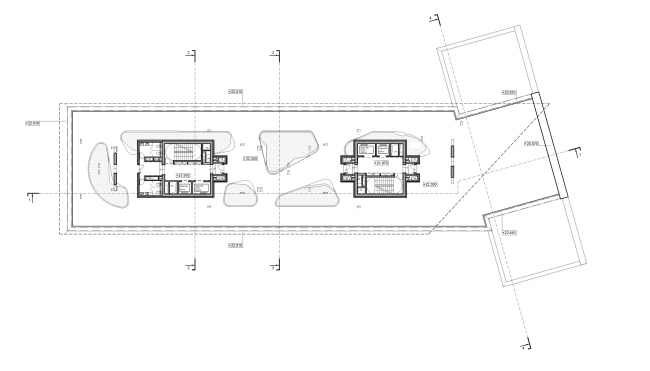
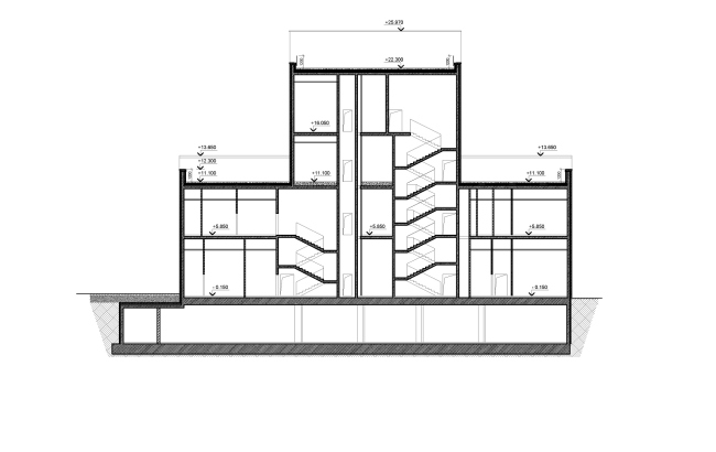
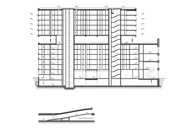
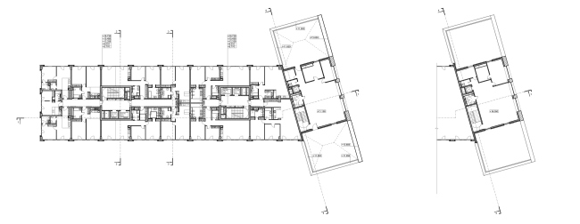
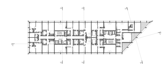
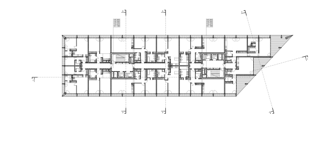
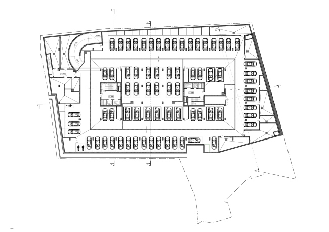
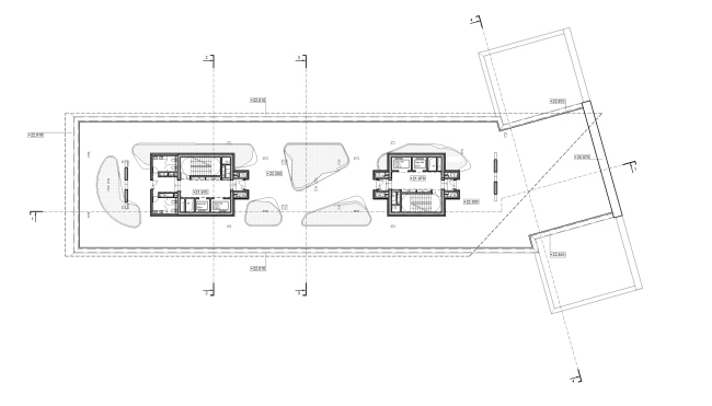
Между «старым» и новым объемами – прослойка стеклянного этажа, скрывающего V-образные опоры – в нем зимний сад, детская и спортивная площадки, коворкинг и библиотека, со стороны Бакунинской – открытая терраса с панорамным видом. Прослойка создает эффект парения, горизонтального небоскреба, скос добавляет динамики в духе Родченко, ну а название Tatlin apartements инициировано, вероятно, Т-образной формой плана и обратно-Т-образной фасада. Одиннадцать этажей, 45 м высоты, подземная парковка на 65 машин, 130 апартаментов.

Все довольно красиво и остро: свежий стеклянно-ребристый, летящий объем надстройки, подхватывающий авангардные идеи здания АТС, уличную часть которого, то ли только фасад, то ли весь блок по красной линии, авторы и девелоперы планировали сохранить по доброй воле, без законодательного принуждения, а лишь по рекомендации.
Апартаменты Tatlin
Апартаменты Tatlin
© Architects of Invention
Апартаменты Tatlin
Апартаменты Tatlin
© Architects of Invention
Апартаменты Tatlin
Апартаменты Tatlin
© Architects of Invention
Апартаменты Tatlin
Апартаменты Tatlin
© Architects of Invention

Реконструкцию такого типа Дарья Парамонова называет «метаболической»: «когда историческое здание достраивается за счет добавления крупных, доминирующих объемов, выполненных в модернисткой стилистике, нависающих, пожирающих первоначальную постройку». Увеличивая площадь объекта, эти пристройки «тем самым трансформируют его под главное требование – быть финансово оправданным и, следовательно, получить право на вторую жизнь в новом обществе...».
Апартаменты Tatlin
Апартаменты Tatlin
© Architects of Invention
Апартаменты Tatlin
Апартаменты Tatlin
© Architects of Invention
Апартаменты Tatlin
Апартаменты Tatlin
© Architects of Invention
Апартаменты Tatlin
Апартаменты Tatlin
© Architects of Invention

Стилистика дома определенно наследует обаяние «авангарда вообще» или говоря шире модернизма, начиная от названия Татлин. Фактически, модернистский блок надстроен над конструктивистским зданием. Внутри тему поддерживает лаконизм, белизна, винтовая лестница в холле.
Апартаменты Tatlin
Апартаменты Tatlin
© Architects of Invention
Апартаменты Tatlin
Апартаменты Tatlin
© Architects of Invention

Дальше история продолжилась таким вот образом. Проект вынесли на упомянутый выше архсовет, и там изрядно раскритиковали, хотя кто-то и поддержал благородное намерение сохранить конструктивистское здание без статуса пусть не целиком, но частично. Особенно категоричен был Сергей Чобан, увидевший в здании АТС 1920-х «сочетание новых материалов с традиционной монументальной неоклассической структурой и композицией, что характерно именно для петербургской школы. Для такого здания абсолютно противопоказано давление, если не сказать изнасилование, нависающим объемом». Чобан предложил сохранить здание целиком, устроить в бывшей АТС лофт-апартаменты, а метры добрать, построив в глубине участка башню.

Проект отправили на доработку, рекомендовав рассмотреть все возможности для сохранения здания целиком и затем утвердили в ноябре 2016 – в рамках предложенной первоначальной концепции с надстройкой-балкой, но с условием сохранения всего здания конструктивистской АТС. Да.
Апартаменты Tatlin
Апартаменты Tatlin
© Architects of Invention

Ну а в июле текущего года сначала отменили презентацию проекта для журналистов, а потом стало известно, что весь дворовый корпус снесли. Это и не секрет, это хорошо видно на риелторском сайте апартаментов, там, где мониторинг строительного процесса для покупателей.
***

В этой истории есть две правды. Первая – правда заказчика и отчасти архитектора, если не сказать проектировщика: пригласили англичан, те спроектировали, законов не нарушили, даже по доброй воле предложили сохранить часть неохраняемого, актуальным образом вдохновились авангардом, назвали Tatlin – согласовательный орган вторгся, принял вкусовое, да-да, именно вкусовое, потому что охранного статуса нет, решение, – приказал сохранить здание целиком. Согласились, переделали проект, а потом сделали все так, как планировали с самого начала.

Вторая – правда общественности, часть которой архсовет и знаменитые архитекторы в нем. Здание конца 1920-х, редкой для Москвы разновидности конструктивизма «питерского разлива», если соглашаться с Сергеем Чобаном – а если не соглашаться, то может быть это уже постконструктивизм, предтеча 1930-х? – Но так или иначе здание достойно охраны. Попробовали сохранить целиком, согласовали проект с сохранением, и ведь не попросили переделать полностью, так, как предлагал Сергей Чобан.

Затем получили ответный ход. Теперь уже дворовый корпус настоящим никак не будет, возвращаемся к началу. Общественность возмущена и совершенно бессильна. Честно ли так поступать? А честно на архсовете просить проект переделать? А надо ли архсовету хотеть большего, если всё равно сюжет обрастает «многими печалями»? Согласовали бы так, и так было со-своему благородно? Насколько важна подлинность дворового корпуса АТС? Есть над чем неординарным людям поломать голову. Есть в этой истории и переклички с историей палат Щербакова, хотя они, конечно, совершенно неодинаковые, скорее обе звучат на этакой печальной струне разбитых надежд. А вот сказать, что Татлин переворачивается в гробу, наверное, нельзя – в 1920-е и 1930-е годы практика надстроек по 2-3 этажа, как правило над доходными домами, была совершенно обычной, хотя и не Татлин ею занимался.

В общем-то все, кого не касается финансовая составляющая проекта и стоимость строительства подземной парковки на пятне, занятой постройкой конца 1920-х со всеми ее особенностями, согласятся с правдой номер два. Но, с другой стороны, никто не попробовал выкупить участок, чтобы спасти здание конструктивизма. Кстати, кажется, и одиночных пикетов у стройки не замечено. Всё идет своим чередом, здание памятник-непамятник потихоньку метаболически переваривают, впитывая с желудочными соками тему конструктивизма; такова, знаете ли, жизнь.
Апартаменты Tatlin
Апартаменты Tatlin
© Architects of Invention
Апартаменты Tatlin
Апартаменты Tatlin
© Architects of Invention
Апартаменты Tatlin
Апартаменты Tatlin
© Architects of Invention
Апартаменты Tatlin
Апартаменты Tatlin
© Architects of Invention
Апартаменты Tatlin
Апартаменты Tatlin
© Architects of Invention
Апартаменты Tatlin
Апартаменты Tatlin
© Architects of Invention
Апартаменты Tatlin
Апартаменты Tatlin
© Architects of Invention
Апартаменты Tatlin
Апартаменты Tatlin
© Architects of Invention
Апартаменты Tatlin
Апартаменты Tatlin
© Architects of Invention
Апартаменты Tatlin
Апартаменты Tatlin
© Architects of Invention
Апартаменты Tatlin
Апартаменты Tatlin
© Architects of Invention