Размещено на портале Архи.ру (www.archi.ru)

01.03.2018

В ожидании деревянных городов

Юлия Тарабарина
Объект:
Центральная модель застройки
Адрес:
Россия, Москва.
Центральная модель застройки
Адрес:
Россия,
Центральная модель застройки
Адрес:
Россия,
Центральная модель застройки
Адрес:
Россия,
Центральная модель застройки
Адрес:
Россия, Москва.
Центральная модель застройки
Адрес:
Россия,
Центральная модель застройки
Адрес:
Россия,

Изучаем семь проектов «центральной модели» конкурса стандартного жилья АИЖК, вышедших в финал. Среди них два рассчитаны на деревянный конструктив и отражают ожидание скорого изменения нормативов – разрешения многоэтажного строительства из дерева в РФ. Уже в июле, говорят знающие люди.

Параметры центральной модели из конкурсного задания © АИЖК + КБ «Стрелка»
Параметры центральной модели из конкурсного задания © АИЖК + КБ «Стрелка»

О проектах среднеэтажной и малоэтажной застройки, вышедших в финал конкурса стандартного жилья АИЖК, также как и о конкурсном задании, мы уже рассказывали. Напоминаем, что второй тур интернет-голосования, на котором можно выразить свое предпочтение проектам в то время как их авторы заняты доработкой, открыто на сайте «Стрелки» – выбирайте, выбирайте… Пока же изучим проекты так называемой «центральной» модели.

Ее название – самое загадочное, а причины две. Во-первых, очевидно, что организаторы не хотели акцентировать слово «высотная», столь дискредитированное московскими и замкадовскими стройками, во-вторых – согласно заданию параметры не столь уж зашкаливают и более чем деликатны: никаких 25 этажей. Этажность основной застройки в этой модели – до девяти, всего на 2 этажа выше максимальной высотности «средней» модели, и, в общем-то, соответствует советским микрорайонам начала 1970-х. Башни-акценты – до 18 этажей, более чем скромно по представлениям современного москвича. Рекомендуемая согласно стандарту плотность – 18 000–25 000 м2/га, что прямо соответствует большинству пилотных проектов реновации. Из чего заключаем: то, что по стандартам, предлагаемым всей стране – модель застройки центра, для Москвы немного, Москва вся, если рассуждать в этих категориях – в некотором роде центр, и 25 000 м2/га для нее скорее мало, чем много.
Фронт застройки и формирование границ. Схемы центральной модели из конкурсного задания © АИЖК + КБ «Стрелка»
Фронт застройки и формирование границ. Схемы центральной модели из конкурсного задания © АИЖК + КБ «Стрелка»

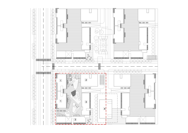
От проектов центральной модели по заданию требовалось: создать замкнутый контур периметральной застройки квартала, потому что в центре города, как можно было понять, не слишком безопасно, много функций и людей. Вместо детского сада спроектировать школу. Функции распределить по возможности вертикально. Использовать кровли для озеленения и, в частности, для прогулочных площадок школ: все это немного диссонирует с заданной высотой в 9 этажей и звучит как задание по уплотнению Манхеттена; ощущение такое, что авторы задания то ли говорят «девять», в уме же держат «девятнадцать», или же – не будем развивать теорий заговора – просто перестраховываются. Приоритет здесь рекомендуется отдать пешему передвижению, машиномест в задании до обидного мало – одно на 6 человек, то есть на 2-3 семьи с одним ребенком или без детей. Или одна машина на семью из 5-6 человек. Очень по-сингапурски для 9-этажной высотности. Впрочем, всегда можно предположить надземную многоярусную парковку в соседнем квартале.
Хозяйственная инфраструктура и озеленение. Схемы центральной модели из конкурсного задания © АИЖК + КБ «Стрелка»
Хозяйственная инфраструктура и озеленение. Схемы центральной модели из конкурсного задания © АИЖК + КБ «Стрелка»

Здесь из типологического ряда изъят «малоэтажный дом», так называемая urban villa, присутствующая в двух других моделях, вместо нее появилась «башня», отличие – в высотности до 18 этажей.
Три типа домов. Схемы центральной модели из конкурсного задания © АИЖК + КБ «Стрелка»
Три типа домов. Схемы центральной модели из конкурсного задания © АИЖК + КБ «Стрелка»

Рассмотрим проекты, в «центральной» модели их семь.

DA Project: пазл
Россия
Центральная модель застройки © DA Project
Центральная модель застройки © DA Project

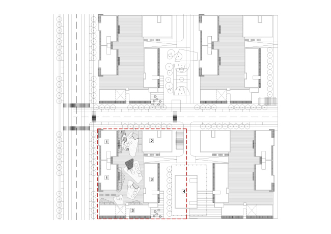
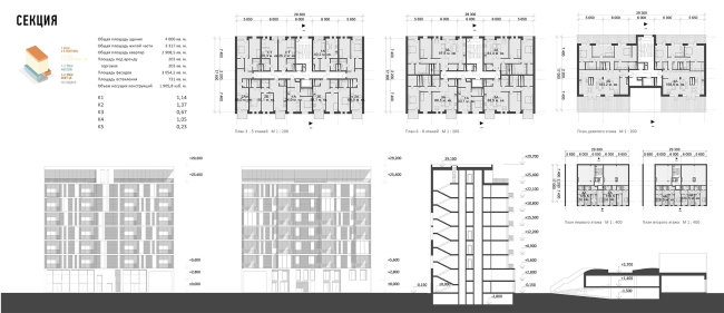
Приватность двух дворов обеспечена одноярусными перемычками между домами с террасами на их кровлях. Восьмиэтажной высоты арки, ведущие во дворы, кажутся перевернутыми перемычками и частью объемной головоломки; в них спокойно может войти пешеход, но ведь «от чужих» всегда можно поставить решетки. Окна модным приемом соединены в вертикали по 2 и по 4. Шестнадцатиэтажная башня похожа на донжон: она несколько толще секционных и галерейных домов, отчего вторгается углом в свой двор. Два квартала примерно одинаковых пропорций разделены внутренним проездом и сдвинуты, освобождая у внешнего контура место для школы, игровой площадки школьников и наземной парковки. Под школьной игровой намечена подземная парковка на 50 мест, плюс 65 наземных по периметру, всего 115, меньше, чем 150 указанных в задании.

Проект предполагает ряд «фишек», к примеру, освещение дворов фонарями, подвешенными на растяжках между домами – они выглядят довольно уютно, а также: частные террасы на крыше почему-то только одного из домов, и заглубленные мусорные контейнеры.
Центральная модель застройки © DA Project
Центральная модель застройки © DA Project
Центральная модель застройки © DA Project
Центральная модель застройки © DA Project
Центральная модель застройки. Фасады © DA Project
Центральная модель застройки. Фасады © DA Project
Центральная модель застройки © DA Project
Центральная модель застройки © DA Project
Центральная модель застройки. Фасады © DA Project
Центральная модель застройки. Фасады © DA Project
Центральная модель застройки. Фасады © DA Project
Центральная модель застройки. Фасады © DA Project
Центральная модель застройки. Фасады © DA Project
Центральная модель застройки. Фасады © DA Project
***

Бюро ARD: южный квартал
Россия
Центральная модель застройки © бюро ARD
Центральная модель застройки © бюро ARD

По словам архитекторов, их проект основан на исследовании городов Южного федерального округа, рассчитан на их условия и климат, и противопоставлен, таким образом, безразличию как советского типового, так и позднейшего коммерческого проектирования. Авторы предлагают ряд модулей, связанных с разными функциями, – их разная компоновка должна обеспечить разнообразие. ARD также позаботились о максимуме комфорта для квартир первых и последних этажей, для них запланированы палисадники и террасы на кровлях; этот же подход заставил разбить все объемы на три части по высоте.
Центральная модель застройки © бюро ARD
Центральная модель застройки © бюро ARD

Прямоугольный участок здесь также продольно поделен на две половины; на одном торце территории собраны башня, стоящая насколько это возможно «на отшибе», то есть отделенная от соседних домов сквером и площадью, и школа с внутренним двором. В здешней башне – 18 максимальных этажей и 70 м высоты, она выглядит стройной доминантой, а не донжоном; пять нижних этажей стеклянные, вверху башню украшают глубоко вынесенные балконы. Галерейные дома здесь 5-этажные, в секционных – 9 этажей; впрочем секции стыкуются только по одному разу – с галерейными домами, в основном же расставлены отдельно, с проходами между ними, и никакого замкнутого «контура безопасности» (или страха?) здесь нет. Помимо школы нашлось место для ДОУ. Подземные парковки есть под всеми домами, под башней – даже 2 яруса. Дворы – террасные, в несколько уровней.
Центральная модель застройки © бюро ARD
Центральная модель застройки © бюро ARD
Центральная модель застройки © бюро ARD
Центральная модель застройки © бюро ARD
Центральная модель застройки © бюро ARD
Центральная модель застройки © бюро ARD
Центральная модель застройки © бюро ARD
Центральная модель застройки © бюро ARD
Центральная модель застройки © бюро ARD
Центральная модель застройки © бюро ARD
***

BOLD Collective: модуль деревянного каркаса 
Нидерланды
Центральная модель застройки © BOLD Collective
Центральная модель застройки © BOLD Collective

Проект голландцев Bold называется супер-каркас: superframe, он основан на каркасном модуле. Все фасады объединены сеткой тонкой клетчатой разгранки, совершенно одинаковой, но предполагающей разнообразие внутри клеток. Что довольно изящно и предполагает много стекла, а значит, стеклопакетов, а значит, проект не может быть бюджетным, – комментируют пользователи сайта «Стрелки». Квадратно-кубический модуль присущ проект в целом : на нем построены, делая его довольно гибким, и объемы с их волнистой высотностью. Предполагается, что фасадные модули будут изготавливать на заводе.
Центральная модель застройки © BOLD Collective
Центральная модель застройки © BOLD Collective
Центральная модель застройки © BOLD Collective
Центральная модель застройки © BOLD Collective
Центральная модель застройки © BOLD Collective
Центральная модель застройки © BOLD Collective
Центральная модель застройки © BOLD Collective
Центральная модель застройки © BOLD Collective

Два квартала целиком замкнуты – как и просили в задании, внутри приватные дворы, снаружи по контуру первых этажей помещения для коммерческой аренды. В первых этажах нарисовано прямо очень много кафе. Школа встроена в первый этаж большего квартала. Все кровли зеленые, кроме террас там предусмотрены солнечные панели. Внутри каждой секции предусмотрены места для общения жильцов – «коммуналки», впрочем, голландцы пишут в ошибкой – «комунэлка», что простительно для неживших в СССР, и даже обаятельно-литературно. Эти общественные пространства снабжены большим окном – в 4 модуля, и похожи на hole, которые нередко проделывает MVRDV в теле своих зданий.
Центральная модель застройки © BOLD Collective
Центральная модель застройки © BOLD Collective
Центральная модель застройки © BOLD Collective
Центральная модель застройки © BOLD Collective

Башня – этакий разновысотный гриб, 5-12-15-18 этажей, 18 на внешнем углу, 5 внутри, – отнесена, как и в предыдущем проекте, на дальний угол, отделена проездом и площадью. Ее фасады подчинены той же модульно-квадратной сетке, что и у кварталов. Площадь – подчеркнуто городская, и вообще этот проект подает себя как отчетливо-городской, в нем есть чувство именно городской среды без попыток засадить окрестности притворной зеленью, что импонирует. Кроме того проект красив сам по себе – подчеркнутой модульностью кубиков, очевидной гибкостью решений, прозрачностью, легкими контурами, ясной логикой. Глядя на него, остро ощущаешь контраст с работами российских коллег, более, простите меня, скованных в визуальной части.
Центральная модель застройки © BOLD Collective
Центральная модель застройки © BOLD Collective
Центральная модель застройки © BOLD Collective
Центральная модель застройки © BOLD Collective
Центральная модель застройки © BOLD Collective
Центральная модель застройки © BOLD Collective
Центральная модель застройки © BOLD Collective
Центральная модель застройки © BOLD Collective

И да: авторы предлагают каркас домов – всех, включая башню, – из клееного бруса. Каждый кубометр клееного дерева, из которого мы строим, – это тонна CO2, утверждают архитекторы Bold. Вспоминая о деревянном прошлом российских городов, они указывают на возможность передового экологичного будущего ее строительства, поскольку наша страна к тому же обладает наибольшими запасами дерева. Их бы устами. Но это и не единственный проект с деревянным каркасом, предложенный на конкурсе: в частности, команда Boustany–Suphasidh–Desfonds+A2OM в среднеэтажной модели тоже предлагала конструктив из клееного бруса. В скобках заметим, что дома с деревянным каркасом – это прошлое скорее фахверковой Голландии, чем бревенчатой России, ну да и ладно.

Помимо каркасного, фасадного и планировочного модуля авторы предлагают, как и в предыдущем проекте, модуль функциональный, вписывая его в кубики своего каркаса.
Модули функций. Центральная модель застройки © BOLD Collective
Модули функций. Центральная модель застройки © BOLD Collective

Еще одна особенность: почему-то иностранные участники в большей степени стремятся объяснить свой проект и упорно описывают свою концепцию на планшетах. Наши сограждане по-видимому убеждены, что читать «в наше время никто не будет», и обходятся картинками. А все же зря они такого мнения о своих зрителях. 
***

Sara Simoska: практичный квартал с супермаркетом
Македония
Центральная модель застройки © Sara Simoska
Центральная модель застройки © Sara Simoska

В отличие от голландцев, архитекторы из Македонии предпочли не описывать свой проект. Участок здесь не разделен на две-три соподчиненных площадки, а трактован как единое целое: 4 корпуса окружают двор, довольно сильно отступая от контура территории, засаженного строем деревьев и превращенного в бульвар. Здесь как-то все по-максимуму: в башне 18 этажей, в остальных домах по 9. Подковообразное подземное пространство обеспечивает парковку домам и супермаркету – да-да, здесь запланирован именно супермаркет, а не магазинчики в первых этажах. Все это удобно и практично, хотя не очень модно; кажется, что проект отличается от других большим реализмом, так что хочется заподозрить, что авторы вынесли на конкурс что-то из своих не пошедших в дело работ. Довольно неожиданно преобладание галерейных домов: их два из четырех, что придает предложению, также как и каменные фасады, «южный» привкус.
Центральная модель застройки © Sara Simoska
Центральная модель застройки © Sara Simoska
Центральная модель застройки © Sara Simoska
Центральная модель застройки © Sara Simoska
Центральная модель застройки © Sara Simoska
Центральная модель застройки © Sara Simoska
Центральная модель застройки © Sara Simoska
Центральная модель застройки © Sara Simoska
Центральная модель застройки © Sara Simoska
Центральная модель застройки © Sara Simoska
Центральная модель застройки © Sara Simoska
Центральная модель застройки © Sara Simoska
Центральная модель застройки © Sara Simoska
Центральная модель застройки © Sara Simoska
***

Luis Eduardo Calderón García: парк ацтеков
Колумбия
Центральная модель застройки © Luis Eduardo Calderón García
Центральная модель застройки © Luis Eduardo Calderón García

Колумбийские архитекторы называют свой район «парковым» и делают акцент на сети больших и маленьких парков. Впрочем, впечатлившись русской зимой, они рисуют свои парки заснеженными, да еще и ночью, надо думать, где-нибудь в начале января – вот уж не-южный вариант, стеклянные верхние этажи выглядят глыбами снега и льда, и все вообще несколько мрачновато, рассчитано на суровые русские души – что, по контрасту с легкими футуристическими «деревянными городами» голландцев особенно брутально. Зато здесь предусмотрены теплые внутренние проходы в уровне первого этажа и общественные пространства с зимними садами – для нас, несчастных, вынужденных жить все время в зиме.
Центральная модель застройки © Luis Eduardo Calderón García
Центральная модель застройки © Luis Eduardo Calderón García

Подкупает то, что Calderón García рассматривают свой квартал как часть модульного целого и сразу планируют большой фрагмент города с соподчинением пространств, улиц, площадей, несколько выходя за рамки конкурсного задания, предполагающего один квартал. В отличие от других участников архитекторы сразу рисуют свой urban block частью симметричной композиции из четырех таких, делящих, или, как сейчас говорят, шерящих один общий сквер. У их квартала нет жестких контуров-улиц.
Центральная модель застройки © Luis Eduardo Calderón García
Центральная модель застройки © Luis Eduardo Calderón García
Центральная модель застройки © Luis Eduardo Calderón García
Центральная модель застройки © Luis Eduardo Calderón García

Планировки похожи на ацтекские символы, архитектура домов тяготеет к тяжеловесности классического послевоенного модернизма. Башни в таком массиве едва читаются.
Центральная модель застройки © Luis Eduardo Calderón García
Центральная модель застройки © Luis Eduardo Calderón García
Центральная модель застройки © Luis Eduardo Calderón García
Центральная модель застройки © Luis Eduardo Calderón García
***

Pole Design: город деревянный и модульный
Россия
Центральная модель застройки © Pole Design
Центральная модель застройки © Pole Design

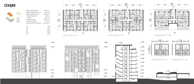
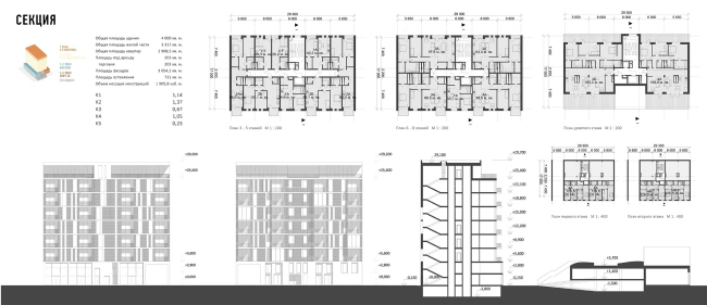
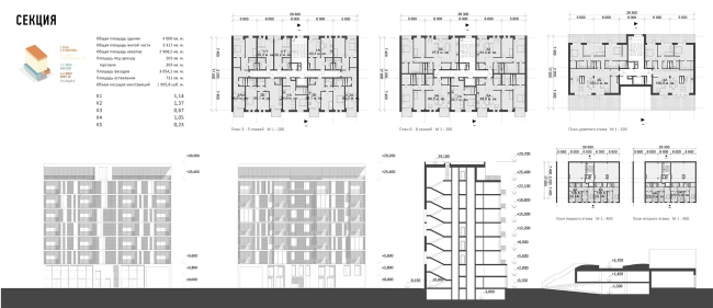
Жилые дома Екатерины Шорниковой и Владимира Кузьмина рассчитаны на деревянные конструкции с использованием CLT-панелей: каркас, перекрытия, перегородки. По информации, которую архитекторы приводят со ссылкой на Ассоциацию деревянного домостроения, новые стандарты, разрешающие строительство зданий из клееного бруса, планируется утвердить в России уже в июле 2018. Из достоинств деревянного строительства, помимо ограничения выбросов СО2 и возобновляемости ресурса, авторы называют: возможность изготавливать больше элементов заводским способом и собирать в любое время года, меньший вес здания, увеличение скорости сборки в 3-4 раза, уменьшение стройплощадки и количества людей на стройке. Фасады запланированы вентилируемые из практически любых материалов: от фиброцементных, керамических, стеклянных – до собственно деревянных.
Центральная модель застройки © Pole Design
Центральная модель застройки © Pole Design

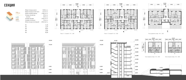
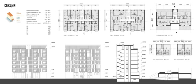
Модульность квартир в проекте основана на шаге опор 6,6 х 3,3 м, что позволяет варьировать и «набирать» необходимые планировки квартир.

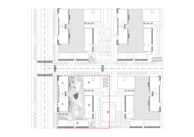
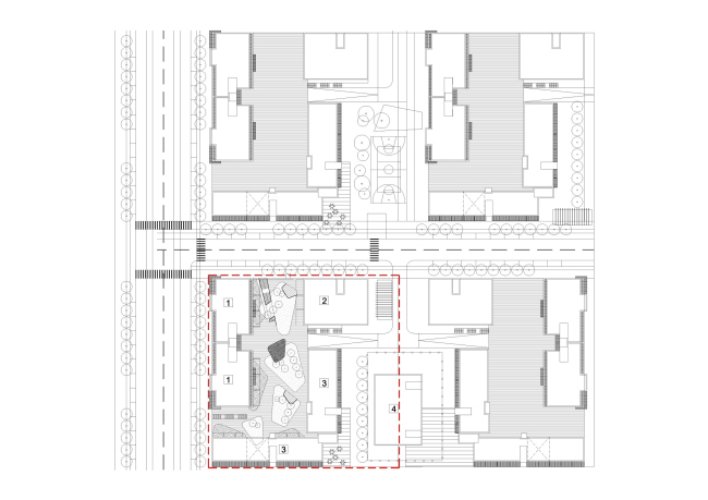
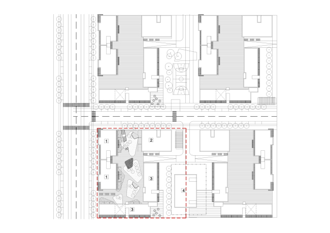
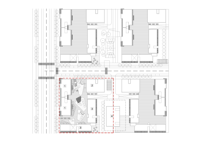
Кроме того, так же как и колумбийцы, Поле-Дизайн рассматривают свой квартал не автономно, а как часть более крупного образования – урбан-блок квартала, если пользоваться новой московской терминологией. Получается 6 базовых блоков с минимальной площадью 0,6 га, их можно комбинировать, причем набор в каждом квартале тоже может быть разным – от наиболее полного, со школой и ритейлом, до ограниченного только жильем и пользующегося инфраструктурой соседнего квартала. Где-то посередине в списке элементов набора возникает парковка – не под землей, а в стилобате под двором. Дворы, разумеется, а как же, без машин, с «микро-огородами», небольшие.
Центральная модель застройки © Pole Design
Центральная модель застройки © Pole Design
Центральная модель застройки © Pole Design
Центральная модель застройки © Pole Design
Центральная модель застройки © Pole Design
Центральная модель застройки © Pole Design
Центральная модель застройки © Pole Design
Центральная модель застройки © Pole Design

Между собой «базовые модули» стыкуются пешеходно-велосипедным «бульваром-парком» – сюда, в относительно безопасное, но в то же время открытое пространство, вынесены, школы, сады, площадки детские и спортивные и общественные пространства. Их пересекают «жилые улицы» (living streets) – внутренние проезды с небольшим движением. Наружу, к автомобильным городским трассам, кварталы обращены фронтом красной линии.

Проект, таким образом, рассчитан на широкое понимание модульности, от внутренней, связанной с каркасом и вариантами планировок квартир, до городской. Его взгляд – несколько шире собственно конкурного задания, что позволяет авторам преодолеть затесненность предложенного «моделью» участка. Подобный модульный подход в среднеэтажной модели мы наблюдали в предложении ДНК аг, и надо сказать, несмотря на то, что модульность и вариативность были среди требований конкурсного задания, эта тема оказалась, по-видимому, одной из сложных и развита далеко не во всех проектах. Проект Поле-Дизайн – один из них.
Центральная модель застройки © Pole Design
Центральная модель застройки © Pole Design
Центральная модель застройки © Pole Design
Центральная модель застройки © Pole Design
Сечение и фасады © Pole Design
Сечение и фасады © Pole Design
Центральная модель застройки. План первого и типового этажа © Pole Design
Центральная модель застройки. План первого и типового этажа © Pole Design
***
Archifellows («Товарищи архитекторы»)
Россия
Центральная модель застройки © Archifellows («Товарищи архитекторы»)
Центральная модель застройки © Archifellows («Товарищи архитекторы»)

Товарищи с девизом «Жить ярко» предлагают квартал с довольно-таки разнообразной, узнаваемой архитектурой: «авангардным» галерейным домом, «сталинскими» ризалитами и кирпичом, «чикагской» башней, модернистскими стеклянными дугами и цилиндрами, и прочими стилевыми намеками и изысками, призванными создать город кажущейся разновременности. С одной стороны, это может показаться стилизаторством, но с другой – внимание к архитектурной составляющей и ее «типологическая» мотивация скорее подкупает.
Центральная модель застройки © Archifellows («Товарищи архитекторы»)
Центральная модель застройки © Archifellows («Товарищи архитекторы»)
Центральная модель застройки © Archifellows («Товарищи архитекторы»)
Центральная модель застройки © Archifellows («Товарищи архитекторы»)
Центральная модель застройки © Archifellows («Товарищи архитекторы»)
Центральная модель застройки © Archifellows («Товарищи архитекторы»)

Приватный двор отделен стекляшкой-перемычкой, на кровле вторых этажей секционного возникают просторные террасы. Но верхние кровли не эксплуатируемые, зато на них появляются солнечные батареи. Жестко замкнутого контура тут нет, зато два двора делятся на приватный – куда можно войти лишь через небольшой разрыв фронта застройки, и городскую площадь, или сквер, между жилыми домами и школой. Вторая городская площадь на углу еще более открыта – таким образом возникает довольно-таки стройная иерархия трех общественных пространств.
Центральная модель застройки © Archifellows («Товарищи архитекторы»)
Центральная модель застройки © Archifellows («Товарищи архитекторы»)
Модульные типы квартир © Archifellows («Товарищи архитекторы»)
Модульные типы квартир © Archifellows («Товарищи архитекторы»)
Модульные типы квартир © Archifellows («Товарищи архитекторы»)
Модульные типы квартир © Archifellows («Товарищи архитекторы»)
Модульные типы квартир © Archifellows («Товарищи архитекторы»)
Модульные типы квартир © Archifellows («Товарищи архитекторы»)
***
Модульные типы квартир © Archifellows («Товарищи архитекторы»)
Модульные типы квартир © Archifellows («Товарищи архитекторы»)